Villa for sale at BILTHOVEN with reference 19109227664
Soestdijkseweg Zuid 176, 3721 AH BILTHOVEN—Ref. LN102014
Exclusieve Gooise villa ‘De Beuk’ – Prachtig wonen te midden van natuur en comfort.
‘De Beuk’ is de perfecte Gooise jaren ’30-villa: getoogde voordeur, diep doorlopende rietkap, taps toelopende schoorstenen, luiken, visgraatparket met bies, knusse maar lichte balken en een heerlijk groene tuin met zwembad.
Gebouwd in 1939 in Engelse landhuisstijl door architect P.C. van Uchelen, biedt deze villa een unieke combinatie van elegantie, functionaliteit en wooncomfort.
Het voelt of u hier echt compleet middenin in het bos woont, terwijl u ook zo naar Utrecht, Amersfoort of Hilversum rijdt. Scholen, winkelcentrum, sportverenigingen en zelfs een treinstation: alle faciliteiten van Bilthoven bevinden zich nabij.
En de 18 holes van Golfclub De Pan liggen wel héél aanlokkelijk dichtbij!
Ruimte en sfeer
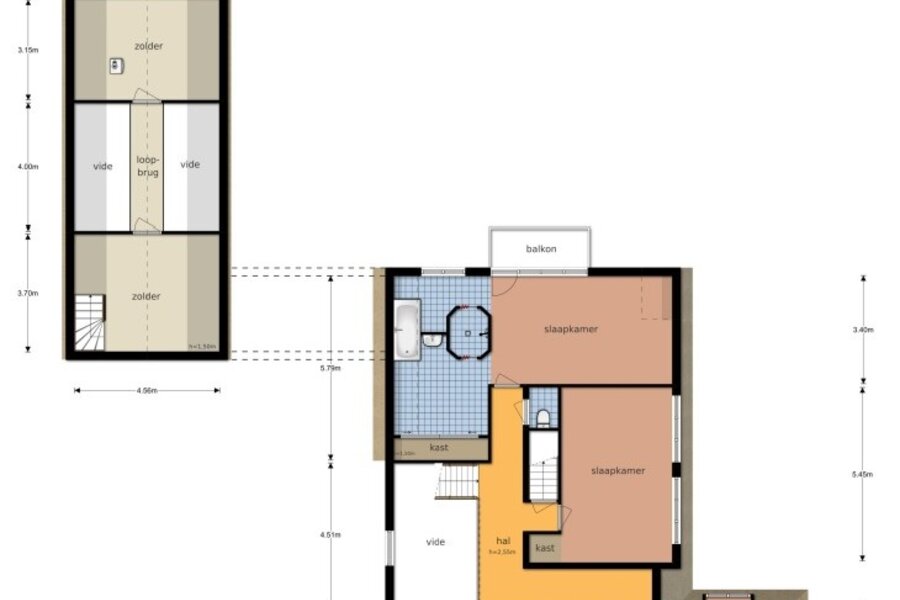
Met een royale woonoppervlakte van 725 m² en een praktische indeling biedt deze villa een harmonieuze leefomgeving. De woonkamer, eetkamer en keuken lopen naadloos in elkaar over, terwijl beglaasde deuren zorgen voor privacy zonder het gevoel van verbondenheid te verliezen.
De fraaie hal met hoge vide en originele trappenhuis vormt het hart van het huis.
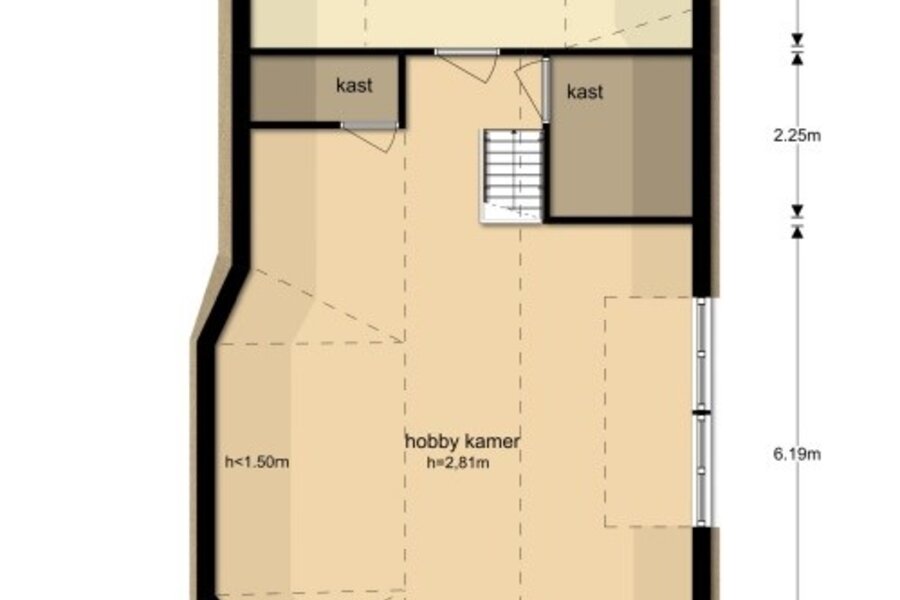
De villa beschikt over 5 ruime slaapkamers, een zolder die perfect is als chill-ruimte en een zwembad met veranda – ideaal voor familie en vrienden. De gastenvleugel met fitness- en wellnessruimte biedt extra mogelijkheden voor logees of een au pair.
Rust, natuur en bereikbaarheid
De omliggende tuin, ontworpen door landschapsarchitect Copijn, biedt privacy en rust. Het perceel van 2.415 m² is verrassend onderhoudsvriendelijk, met gazons en volwassen bomen die de seizoenen prachtig reflecteren. Direct vanuit uw woning loopt u naar het Panbos of landgoederen Houdringe en Beerschoten.
Het familiehuis ‘De Beuk’ is niet alleen een architectonisch meesterwerk, maar vooral een warm (t)huis waar iedere generatie zich welkom voelt. Beleef deze unieke charme van dit tijdloze familiehuis!
Voor een bezichtiging van deze fraaie villa kunt u contact opnemen met mij, Jacques E. Walch, NVM Register Makelaar of Bart Lammerts, NVM Makelaar van ons makelaarskantoor Laren.
‘De Beuk’ is de perfecte Gooise jaren ’30-villa: getoogde voordeur, diep doorlopende rietkap, taps toelopende schoorstenen, luiken, visgraatparket met bies, knusse maar lichte balken en een heerlijk groene tuin met zwembad.
Gebouwd in 1939 in Engelse landhuisstijl door architect P.C. van Uchelen, biedt deze villa een unieke combinatie van elegantie, functionaliteit en wooncomfort.
Het voelt of u hier echt compleet middenin in het bos woont, terwijl u ook zo naar Utrecht, Amersfoort of Hilversum rijdt. Scholen, winkelcentrum, sportverenigingen en zelfs een treinstation: alle faciliteiten van Bilthoven bevinden zich nabij.
En de 18 holes van Golfclub De Pan liggen wel héél aanlokkelijk dichtbij!
Ruimte en sfeer
Met een royale woonoppervlakte van 725 m² en een praktische indeling biedt deze villa een harmonieuze leefomgeving. De woonkamer, eetkamer en keuken lopen naadloos in elkaar over, terwijl beglaasde deuren zorgen voor privacy zonder het gevoel van verbondenheid te verliezen.
De fraaie hal met hoge vide en originele trappenhuis vormt het hart van het huis.
De villa beschikt over 5 ruime slaapkamers, een zolder die perfect is als chill-ruimte en een zwembad met veranda – ideaal voor familie en vrienden. De gastenvleugel met fitness- en wellnessruimte biedt extra mogelijkheden voor logees of een au pair.
Rust, natuur en bereikbaarheid
De omliggende tuin, ontworpen door landschapsarchitect Copijn, biedt privacy en rust. Het perceel van 2.415 m² is verrassend onderhoudsvriendelijk, met gazons en volwassen bomen die de seizoenen prachtig reflecteren. Direct vanuit uw woning loopt u naar het Panbos of landgoederen Houdringe en Beerschoten.
Het familiehuis ‘De Beuk’ is niet alleen een architectonisch meesterwerk, maar vooral een warm (t)huis waar iedere generatie zich welkom voelt. Beleef deze unieke charme van dit tijdloze familiehuis!
Voor een bezichtiging van deze fraaie villa kunt u contact opnemen met mij, Jacques E. Walch, NVM Register Makelaar of Bart Lammerts, NVM Makelaar van ons makelaarskantoor Laren.
| Property ID | LN102014 |
|---|---|
| Asking price | € 2.650.000 k.k. |
| Type of house | Villa |
| Living area | 450 m² |
| Lot surface area | 2.415 m² |
| Year of construction | 1939 |
| Renovation year | - |
| Bedrooms | 5 |
| Bathrooms | 4 |
| Garages | 1 |
| Energielabel | D |
Voorma en Walch Laren Brink 34, 1251 KW Laren
- Telephone:+31.35.539.90.80
- EMAIL:laren@voorma-walch.nl
- Website:voorma-walch.nl
- Monday - FridayOpen from 08.30 - 17.30
- Saturday Open from 10.00 - 16.00
- Sunday Closed
































































