Villa for sale at BLARICUM with reference 19809238763
Laantje van Oversteegen 15, 1262 BC BLARICUM—Ref. HN103348
Gezellige hoekwoning met parkeerplaats voor 2 auto's op eigen terrein.
Deze ideale, nagenoeg nieuwe en instapklare gezinswoning, is gelegen in de populaire en kindvriendelijke wijk de Blaricummermeent, beschikt over een fraai aangelegde tuin op het noordwesten, met een zonnig terras en voldoende privacy. De woning is gelegen op een fantastische locatie in een van de laatst gebouwde delen van de wijk, dichtbij het Gooimeer en het strand. Zeer goed geïsoleerd, voorzien van een warmtepomp (volledig van het gas af), vloerverwarming, vloerkoeling en energielabel A+++!
Alle woningen in De Blaricummermeent maken gebruik van een nieuwe en eigentijdse vorm van energie. De huizen zijn aangesloten op een zogenaamd warmte/koude opslagsysteem. Een systeem dat kostentechnisch erg interessant is. Dit betekent dat elk huis is uitgerust met een warmtepomp i.p.v. een cv-ketel. Gas is overbodig geworden. Naast verwarmen kan het systeem ook koelen, waardoor de woning in de zomer heerlijk koel is. De bewoners van De Blaricummermeent leveren zodoende – door minder CO2-uitstoot – een belangrijke bijdrage aan een beter milieu. Kortom, elke woning is met deze duurzame oplossing klaar voor de toekomst, zonder dat het wooncomfort wordt geschaad.
Indeling:
Entree, hal, meterkast, kast met opstelling van de warmtepomp en garderobe, modern vrij hangend toilet met fontein. De nette keuken bevindt zich aan de voorzijde van de woning en beschikt over diverse inbouwapparatuur waaronder een inductiekookplaat, oven, magnetron, vaatwasser en koel- vriescombinatie.
De woonkamer is aan de achterzijde van de woning gesitueerd en heeft openslaande deuren welke toegang geeft tot de fantastische zonnige tuin. Onder de trap bevindt zich een praktische bergkast.
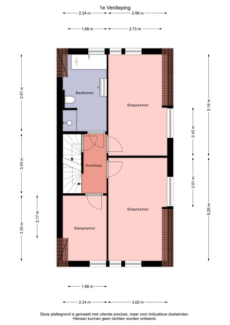
Eerste verdieping:
Royale overloop, 3 royale slaapkamers met een mooi uitzicht op de Meentstroom. De luxe badkamer is voorzien van een ruime inloopdouche, een ligbad, vrij hangend toilet, design radiator en wastafelmeubel met spiegel.
Tweede verdieping:
4de slaapkamers aan de achterzijde. Aan de voorzijde is de waskamer met de aansluitingen voor de was en droog apparatuur.
Tuin:
De tuin is fraai aangelegd en op de middag en avond zon gelegen, beschikt over heerlijk terras, ruime vrijstaande berging met elektra! Aan de zijkant kunt u 2 auto's kwijt.
Een zalige, energiezuinige en moderne, pannen gedekte woning op fijne locatie in een kindvriendelijke nieuwbouwwijk gelegen.
Deze ideale, nagenoeg nieuwe en instapklare gezinswoning, is gelegen in de populaire en kindvriendelijke wijk de Blaricummermeent, beschikt over een fraai aangelegde tuin op het noordwesten, met een zonnig terras en voldoende privacy. De woning is gelegen op een fantastische locatie in een van de laatst gebouwde delen van de wijk, dichtbij het Gooimeer en het strand. Zeer goed geïsoleerd, voorzien van een warmtepomp (volledig van het gas af), vloerverwarming, vloerkoeling en energielabel A+++!
Alle woningen in De Blaricummermeent maken gebruik van een nieuwe en eigentijdse vorm van energie. De huizen zijn aangesloten op een zogenaamd warmte/koude opslagsysteem. Een systeem dat kostentechnisch erg interessant is. Dit betekent dat elk huis is uitgerust met een warmtepomp i.p.v. een cv-ketel. Gas is overbodig geworden. Naast verwarmen kan het systeem ook koelen, waardoor de woning in de zomer heerlijk koel is. De bewoners van De Blaricummermeent leveren zodoende – door minder CO2-uitstoot – een belangrijke bijdrage aan een beter milieu. Kortom, elke woning is met deze duurzame oplossing klaar voor de toekomst, zonder dat het wooncomfort wordt geschaad.
Indeling:
Entree, hal, meterkast, kast met opstelling van de warmtepomp en garderobe, modern vrij hangend toilet met fontein. De nette keuken bevindt zich aan de voorzijde van de woning en beschikt over diverse inbouwapparatuur waaronder een inductiekookplaat, oven, magnetron, vaatwasser en koel- vriescombinatie.
De woonkamer is aan de achterzijde van de woning gesitueerd en heeft openslaande deuren welke toegang geeft tot de fantastische zonnige tuin. Onder de trap bevindt zich een praktische bergkast.
Eerste verdieping:
Royale overloop, 3 royale slaapkamers met een mooi uitzicht op de Meentstroom. De luxe badkamer is voorzien van een ruime inloopdouche, een ligbad, vrij hangend toilet, design radiator en wastafelmeubel met spiegel.
Tweede verdieping:
4de slaapkamers aan de achterzijde. Aan de voorzijde is de waskamer met de aansluitingen voor de was en droog apparatuur.
Tuin:
De tuin is fraai aangelegd en op de middag en avond zon gelegen, beschikt over heerlijk terras, ruime vrijstaande berging met elektra! Aan de zijkant kunt u 2 auto's kwijt.
Een zalige, energiezuinige en moderne, pannen gedekte woning op fijne locatie in een kindvriendelijke nieuwbouwwijk gelegen.
| Property ID | HN103348 |
|---|---|
| Asking price | € 895.000 k.k. |
| Type of house | Villa |
| Living area | 135 m² |
| Lot surface area | 220 m² |
| Year of construction | 2021 |
| Renovation year | - |
| Bedrooms | 4 |
| Bathrooms | 1 |
| Garages | - |
| Energielabel | A+++ |
Voorma en Walch Huizen Ceintuurbaan 22, 1271 BJ Huizen
- Telephone:+31.35.525.31.35
- EMAIL:huizen@voorma-walch.nl
- Website:www.voorma-walch.nl
- Monday - FridayOpen from 08.30 - 17.30
- Saturday - SundayClosed













































