Apartment for sale at Zwolle with reference 19906305573
Zuiderkerkstraat 2, 8011 HG Zwolle—Ref. ZE101411
Op slechts 300 meter afstand van het Centraal Station én de historische binnenstad van Zwolle vinden we dit in 2018 volledig gerenoveerde bovenwoning (penthouse) met authentieke details zoals glas in lood en plafond ornamenten. Bij de renovatie is de villa uitgebouwd en opgedeeld in twee appartementen waarvan het bovenste appartement nu in de verkoop is. De uitbouw is volledig geïsoleerd en van het gerenoveerde gedeelte zijn de muren en het dak geïsoleerd en de ramen vervangen door dubbelglas (monumenten isolatieglas). 
De ruime en lichte woonkamer met visgraat parket en een houtkachel bevindt zich op de eerste verdieping van het gerenoveerde gedeelte. Aan de voorzijde geven openslaande deuren toegang naar het balkon waar in de middag en de avond heerlijk van de zon en de avondluchten kan worden genoten. In de uitbouw bevindt zich de royale open keuken. Deze heeft een klein balkon waar men heerlijk in de ochtendzon kan ontbijten. Een wenteltrap geeft toegang tot het dakterras met een vrij uitzicht rondom en voldoende ruimte voor bijvoorbeeld een lounge set.
Op 5 minuten loopafstand ligt het station met directe verbindingen naar alle grote steden in ons land. Voorzieningen zoals theater, bioscoop, restaurants, winkels en musea in het centrum zijn lopend of fietsend bereikbaar. Parken en de groene wandelroute naar het prachtige IJsselgebied bevinden zich in de directe omgeving evenals de uitvalswegen naar de A28.
Deze woning maakt onderdeel uit van een door architectenbureau Rudy Uytenhaak + partners architecten bv ontwikkeld plan.
Begane grond:
Ruime entree met een hal voorzien van glas in lood ramen en toegang naar het stijlvolle trappenhuis en de garderobe. Er is hier ook voldoende ruimte voor het plaatsen van bijv. fietsen. Tevens bevindt zich hier de meterkast.
Er is reeds gekeken naar de mogelijkheden een lift te plaatsen in de woning, schetsen hiervan bevinden zich achter de foto's.
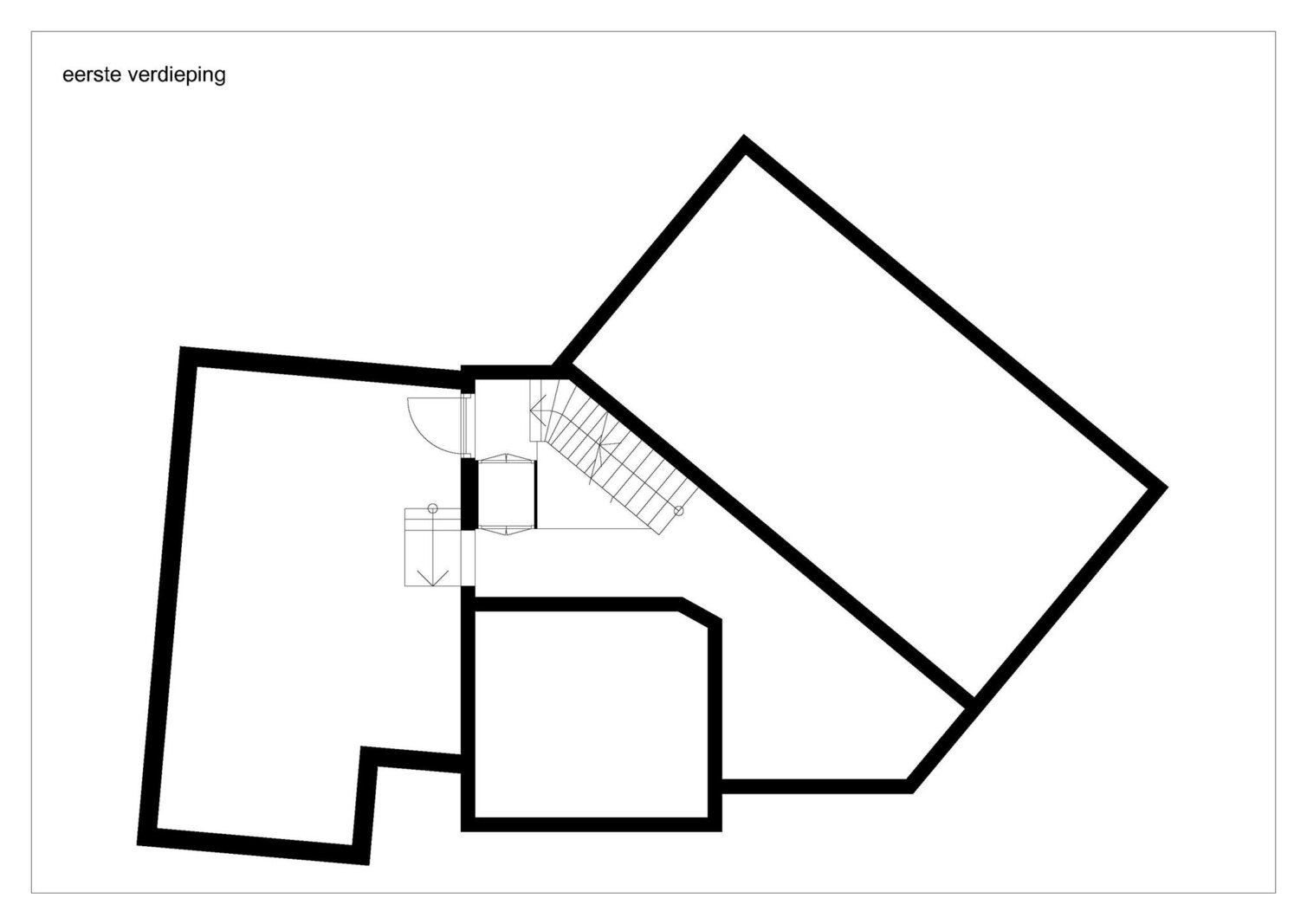
Eerste verdieping:
Overloop met toegang tot de uitbouw met de open woon- en eetkeuken, en het gerenoveerde gedeelte met een studeer/slaapkamer, toilet en de woonkamer. De keuken is voorzien van een spoeleiland, diverse inbouwapparatuur, een quooker en een ruime kastenwand. Door middel van een wenteltrap is het bovengelegen dakterras te bereiken.
Tweede verdieping:
Overloop met toegang tot de tweede en de derde slaapkamer, een tweede toilet en de badkamer. Tevens een bergruimte met wasmachine-aansluiting. Vanuit de overloop is er met een vlizo trap toegang tot een ruime vliering. De moderne badkamer is voorzien van douchecabine, ligbad, design radiator en wastafel.
Parkeren:
Bij het appartement hoort het recht op een gemeentelijke parkeervergunning.
Kortom een duurzaam verbouwd historisch pand, ruim en licht, met vrij uitzicht en prachtige details op een unieke locatie in Zwolle.
En vanuit Zwolle zijn er goede treinverbindingen, met een reistijd van ongeveer een uur zijn bijvoorbeeld Amsterdam, Rotterdam, Utrecht en Groningen heel makkelijk bereikbaar.
Heeft u interesse in deze prachtige woning, wij maken graag tijd voor u vrij!
De ruime en lichte woonkamer met visgraat parket en een houtkachel bevindt zich op de eerste verdieping van het gerenoveerde gedeelte. Aan de voorzijde geven openslaande deuren toegang naar het balkon waar in de middag en de avond heerlijk van de zon en de avondluchten kan worden genoten. In de uitbouw bevindt zich de royale open keuken. Deze heeft een klein balkon waar men heerlijk in de ochtendzon kan ontbijten. Een wenteltrap geeft toegang tot het dakterras met een vrij uitzicht rondom en voldoende ruimte voor bijvoorbeeld een lounge set.
Op 5 minuten loopafstand ligt het station met directe verbindingen naar alle grote steden in ons land. Voorzieningen zoals theater, bioscoop, restaurants, winkels en musea in het centrum zijn lopend of fietsend bereikbaar. Parken en de groene wandelroute naar het prachtige IJsselgebied bevinden zich in de directe omgeving evenals de uitvalswegen naar de A28.
Deze woning maakt onderdeel uit van een door architectenbureau Rudy Uytenhaak + partners architecten bv ontwikkeld plan.
Begane grond:
Ruime entree met een hal voorzien van glas in lood ramen en toegang naar het stijlvolle trappenhuis en de garderobe. Er is hier ook voldoende ruimte voor het plaatsen van bijv. fietsen. Tevens bevindt zich hier de meterkast.
Er is reeds gekeken naar de mogelijkheden een lift te plaatsen in de woning, schetsen hiervan bevinden zich achter de foto's.
Eerste verdieping:
Overloop met toegang tot de uitbouw met de open woon- en eetkeuken, en het gerenoveerde gedeelte met een studeer/slaapkamer, toilet en de woonkamer. De keuken is voorzien van een spoeleiland, diverse inbouwapparatuur, een quooker en een ruime kastenwand. Door middel van een wenteltrap is het bovengelegen dakterras te bereiken.
Tweede verdieping:
Overloop met toegang tot de tweede en de derde slaapkamer, een tweede toilet en de badkamer. Tevens een bergruimte met wasmachine-aansluiting. Vanuit de overloop is er met een vlizo trap toegang tot een ruime vliering. De moderne badkamer is voorzien van douchecabine, ligbad, design radiator en wastafel.
Parkeren:
Bij het appartement hoort het recht op een gemeentelijke parkeervergunning.
Kortom een duurzaam verbouwd historisch pand, ruim en licht, met vrij uitzicht en prachtige details op een unieke locatie in Zwolle.
En vanuit Zwolle zijn er goede treinverbindingen, met een reistijd van ongeveer een uur zijn bijvoorbeeld Amsterdam, Rotterdam, Utrecht en Groningen heel makkelijk bereikbaar.
Heeft u interesse in deze prachtige woning, wij maken graag tijd voor u vrij!
| Property ID | ZE101411 | 
|---|---|
| Asking price | € 865.000 k.k. | 
| Type of house | Apartment | 
| Living area | 168 m² | 
| Lot surface area | - | 
| Year of construction | 1899 | 
| Renovation year | - | 
| Bedrooms | 3 | 
| Bathrooms | 1 | 
| Garages | - | 
| Energielabel | A+ | 
Rodenburg Makelaars Zwolle by Dynamis Exclusief Aagje Dekenstraat 51, 8023 BZ Zwolle
- Telephone:+31.038.4.222.222
- EMAIL:zwolle@rodenburg.nl
- Website:www.rodenburg.nl
- Monday - FridayOpen from 08.30 - 17.30
- Saturday - SundayClosed




















































