Villa for sale at BLARICUM with reference 19609795022
Bussummerweg 14, 1261 CA BLARICUM—Ref. NY100408
Exclusive Vlassak Verhulst Villa (2023): an icon of luxury in the heart of Blaricum
Opportunities to acquire a recently built Vlassak Verhulst villa of this caliber in Het Gooi are rare. This is one of those exceptional moments.
In a prime location within walking distance of the picturesque village center of Blaricum and surrounded by peace and greenery stands this detached villa that blends classical grandeur with contemporary perfection. Every element exudes luxury, refinement, and comfort down to the smallest detail.
The finishing is sublime, there is a generous double garage, and the showpiece is an exclusive swimming pool with a movable floor, a technical masterpiece that unites elegance and functionality at an unparalleled level.
This is without doubt one of the most complete and impressive villas currently available in Het Gooi.
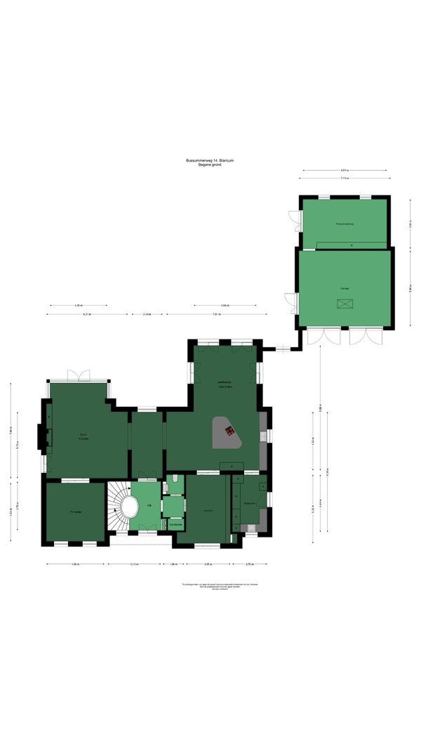
Ground floor: grandeur and everyday comfort
Through the imposing entrance you enter a stately hall with elegant staircase, spacious cloakroom, and guest toilet. The tone is set immediately. Spacious, stylish, and refined.
• TV room: intimate and atmospheric, ideal for lounging or movie nights.
• Living room: generous and bright with a fireplace and French doors to the terrace and garden where indoors and outdoors flow together in harmony.
• Kitchen diner: the heart of the home with a generous island, premium appliances, and abundant storage. A luxurious utility room with custom cabinetry adjoins.
• Study: can be closed off and has its own entrance, perfect for working from home with full privacy.
First floor: calm and ultimate private quarters
The grand staircase leads to a floor where tranquility and luxury prevail.
• Primary suite: with walk in closet, private balcony, and an exclusive bathroom with freestanding bathtub, twin walk in shower, and double vanity.
• Second bedroom: spacious with a private bathroom.
• Third bedroom: flexible in use, also with en suite bathroom, toilet, and a second walk in closet.
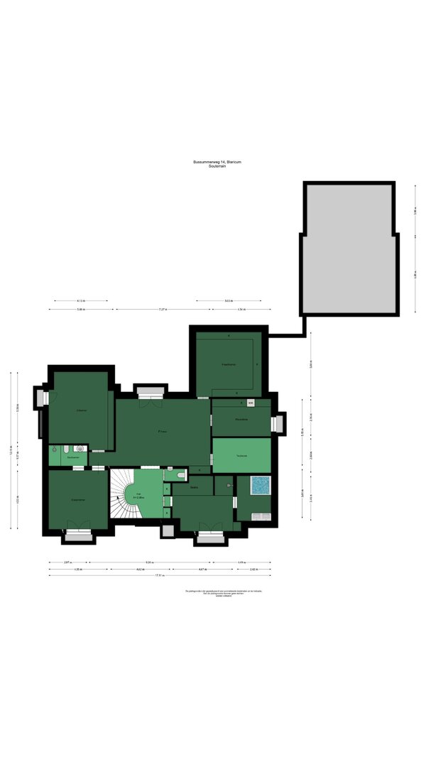
Lower level: wellness, fitness, and hospitality
A full additional level designed for ultimate comfort.
• Wellness area: design sauna, plunge pool, and a serene ambiance.
• Gym: fully equipped for cardio, strength, and yoga.
• Guest room: elegant with a private bathroom that delivers hotel level comfort at home.
• Additional walk in closet, large laundry room, and discreet technical rooms with heat pump, home automation, and more.
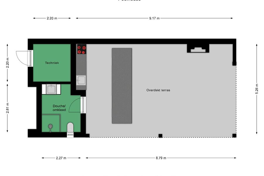
Pool house: outdoor living with style
The beautifully landscaped garden includes a modern pool house with:
• Covered terrace with fireplace.
• Luxurious shower and changing room.
• Fully fitted outdoor kitchen with premium appliances.
A perfect setting for long summer evenings, culinary moments, and generous hospitality.
Garage and additional space
A large double garage with automatic doors, driveway, and separate storage. Above the garage is a multifunctional space that is ideal as an au pair or guest suite.
Location: the best of Blaricum
Situated on the charming Bussummerweg, a green and characterful avenue, this villa offers ultimate privacy together with the conviviality of the village. Within walking distance are exclusive boutiques and dining such as Moeke Spijkstra and Hotel Bellevue, as well as all daily amenities. Nature reserves including the Tafelberg heath and the Goois Nature Reserve are around the corner, ideal for walking, cycling, or horseback riding.
Features
• Living area approx. 525 m²
• Plot approx. 2,100 m²
• Year of construction 2023
• Energy label A+
• Vlassak Verhulst villa of absolute top tier
• Swimming pool with movable floor, a technical and aesthetic masterpiece
• Prime location in the heart of Blaricum
A unique opportunity for those who seek only the very best.
Opportunities to acquire a recently built Vlassak Verhulst villa of this caliber in Het Gooi are rare. This is one of those exceptional moments.
In a prime location within walking distance of the picturesque village center of Blaricum and surrounded by peace and greenery stands this detached villa that blends classical grandeur with contemporary perfection. Every element exudes luxury, refinement, and comfort down to the smallest detail.
The finishing is sublime, there is a generous double garage, and the showpiece is an exclusive swimming pool with a movable floor, a technical masterpiece that unites elegance and functionality at an unparalleled level.
This is without doubt one of the most complete and impressive villas currently available in Het Gooi.
Ground floor: grandeur and everyday comfort
Through the imposing entrance you enter a stately hall with elegant staircase, spacious cloakroom, and guest toilet. The tone is set immediately. Spacious, stylish, and refined.
• TV room: intimate and atmospheric, ideal for lounging or movie nights.
• Living room: generous and bright with a fireplace and French doors to the terrace and garden where indoors and outdoors flow together in harmony.
• Kitchen diner: the heart of the home with a generous island, premium appliances, and abundant storage. A luxurious utility room with custom cabinetry adjoins.
• Study: can be closed off and has its own entrance, perfect for working from home with full privacy.
First floor: calm and ultimate private quarters
The grand staircase leads to a floor where tranquility and luxury prevail.
• Primary suite: with walk in closet, private balcony, and an exclusive bathroom with freestanding bathtub, twin walk in shower, and double vanity.
• Second bedroom: spacious with a private bathroom.
• Third bedroom: flexible in use, also with en suite bathroom, toilet, and a second walk in closet.
Lower level: wellness, fitness, and hospitality
A full additional level designed for ultimate comfort.
• Wellness area: design sauna, plunge pool, and a serene ambiance.
• Gym: fully equipped for cardio, strength, and yoga.
• Guest room: elegant with a private bathroom that delivers hotel level comfort at home.
• Additional walk in closet, large laundry room, and discreet technical rooms with heat pump, home automation, and more.
Pool house: outdoor living with style
The beautifully landscaped garden includes a modern pool house with:
• Covered terrace with fireplace.
• Luxurious shower and changing room.
• Fully fitted outdoor kitchen with premium appliances.
A perfect setting for long summer evenings, culinary moments, and generous hospitality.
Garage and additional space
A large double garage with automatic doors, driveway, and separate storage. Above the garage is a multifunctional space that is ideal as an au pair or guest suite.
Location: the best of Blaricum
Situated on the charming Bussummerweg, a green and characterful avenue, this villa offers ultimate privacy together with the conviviality of the village. Within walking distance are exclusive boutiques and dining such as Moeke Spijkstra and Hotel Bellevue, as well as all daily amenities. Nature reserves including the Tafelberg heath and the Goois Nature Reserve are around the corner, ideal for walking, cycling, or horseback riding.
Features
• Living area approx. 525 m²
• Plot approx. 2,100 m²
• Year of construction 2023
• Energy label A+
• Vlassak Verhulst villa of absolute top tier
• Swimming pool with movable floor, a technical and aesthetic masterpiece
• Prime location in the heart of Blaricum
A unique opportunity for those who seek only the very best.
| Property ID | NY100408 |
|---|---|
| Asking price | € 8.500.000 k.k. |
| Type of house | Villa |
| Living area | 525 m² |
| Lot surface area | 2.100 m² |
| Year of construction | 2023 |
| Renovation year | - |
| Bedrooms | 4 |
| Bathrooms | 5 |
| Garages | 1 |
| Energielabel | A+ |
Netherlands Sotheby's International Realty Emmalaan 23, 1075 AT Amsterdam
- Telephone:+31.88.37.47.000
- EMAIL:info@sothebysrealty.nl
- Website:www.sothebysrealty.nl
- Monday - FridayOpen from 09.00 - 17.00
- Saturday - SundayClosed



























































































