Villa for sale at HUIZEN with reference 19610738734
Anne Franklaan 14, 1277 BR HUIZEN—Ref. HN103589
Royale vrijstaande villa met aangebouwde garage en zonnige tuin rondom.
Direct nabij het Gooimeer, in de breed opgezette woonwijk ‘Het Vierde Kwadrant’ rustig gelegen aan einde van een doodlopend straatje. De moderne, goed onderhouden en zonnige villa is in 1997 opgeleverd, volledig geïsoleerd en voorzien van een riante woonkamer, fantastische halfopen keuken, heerlijke serre, 4 slaapkamer en 2 badkamers.
Indeling:
Begane grond:
Ruime hal, modern toilet met extra urinoir en een fontein, toegang naar de grote garage met de wasmachine- en droger aansluiting, royale woonkamer met een moderne open haard van Kalfire, openslaande deuren naar de achtertuin, eetkamer met serre, moderne complete keuken voorzien van alle apparatuur en stenen aanrechtblad, op de begane grond ligt een fraaie eikenhouten vloer, in de keuken een nette plavuizen vloer, de heerlijke tuin is voorzien van een overkapping met houtkachel en een heerlijke zonneterras.
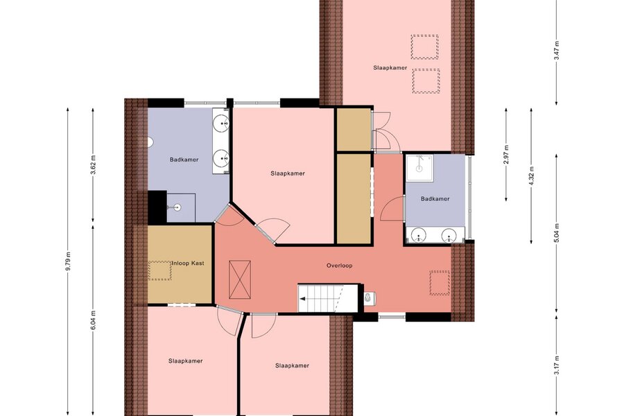
1e verdieping:
Ruime overloop, 4 royale slaapkamers, 2 moderne badkamers met inloopdouche, dubbele wastafel met meubel, vloerverwarming en 1 badkamer met toilet. De gehele 1ste verdieping is voorzien van een eikenhouten vloer.
2e verdieping:
Over de gehele woning gelegen stahoge bergzolder bereikbaar middels vlizotrap.
Een heerlijke lichte villa rondom voorzien van hardhouten kozijnen met draai/kiep ramen, ruim gezinshuis met 4 slaapkamers, 2 badkamers, de woning is volledig geïsoleerd en staat op een fantastisch perceel.
Deze villa is turnkey en zo te betrekken.
Direct nabij het Gooimeer, in de breed opgezette woonwijk ‘Het Vierde Kwadrant’ rustig gelegen aan einde van een doodlopend straatje. De moderne, goed onderhouden en zonnige villa is in 1997 opgeleverd, volledig geïsoleerd en voorzien van een riante woonkamer, fantastische halfopen keuken, heerlijke serre, 4 slaapkamer en 2 badkamers.
Indeling:
Begane grond:
Ruime hal, modern toilet met extra urinoir en een fontein, toegang naar de grote garage met de wasmachine- en droger aansluiting, royale woonkamer met een moderne open haard van Kalfire, openslaande deuren naar de achtertuin, eetkamer met serre, moderne complete keuken voorzien van alle apparatuur en stenen aanrechtblad, op de begane grond ligt een fraaie eikenhouten vloer, in de keuken een nette plavuizen vloer, de heerlijke tuin is voorzien van een overkapping met houtkachel en een heerlijke zonneterras.
1e verdieping:
Ruime overloop, 4 royale slaapkamers, 2 moderne badkamers met inloopdouche, dubbele wastafel met meubel, vloerverwarming en 1 badkamer met toilet. De gehele 1ste verdieping is voorzien van een eikenhouten vloer.
2e verdieping:
Over de gehele woning gelegen stahoge bergzolder bereikbaar middels vlizotrap.
Een heerlijke lichte villa rondom voorzien van hardhouten kozijnen met draai/kiep ramen, ruim gezinshuis met 4 slaapkamers, 2 badkamers, de woning is volledig geïsoleerd en staat op een fantastisch perceel.
Deze villa is turnkey en zo te betrekken.
| Property ID | HN103589 |
|---|---|
| Asking price | € 1.150.000 k.k. |
| Type of house | Villa |
| Living area | 181 m² |
| Lot surface area | 496 m² |
| Year of construction | 1997 |
| Renovation year | - |
| Bedrooms | 4 |
| Bathrooms | 2 |
| Garages | 1 |
| Energielabel | C |
Voorma en Walch Huizen Ceintuurbaan 22, 1271 BJ Huizen
- Telephone:+31.35.525.31.35
- EMAIL:huizen@voorma-walch.nl
- Website:www.voorma-walch.nl
- Monday - FridayOpen from 08.30 - 17.30
- Saturday - SundayClosed
Broker














































