Villa a vendre a BLARICUM avec reference 19109558804
Boslaan 7, 1261 CB BLARICUM—Réf. BM100814
De Boslaan – het is Blaricum op zijn Blaricumst:
Een lommerrijk klinkerstraatje waar statige bomen hun takken naar elkaar uitstrekken en de Blaricummerheide of het knusse centrum zich op loopafstand bevinden.
Klassiek Goois met een eigentijdse twist: een landelijke rietenkap met wolfseinden, wit stucwerk boven een stoere baksteenplint, fraaie roederamen en deels gepotdekselde gevels – het ideale plaatje, en wellicht wel uw nieuwe thuis: deze luxueuze vrijstaande villa van 470 m² op een riant perceel van 1.888 m².
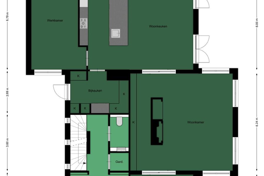
Begane grond – Riant en stijlvol wonen
Binnenkomst via de overdekte entree in de royale ontvangsthal met garderobe, gastentoilet en toegang tot het trappenhuis. Direct rechts bevindt zich de gezellige zitkamer, ideaal als bibliotheek, lounge of extra tv-kamer.
De riante woonkamer is zeer sfeervol en centraal gelegen op de begane grond. De luxe woonkeuken is het hart van het huis: een indrukwekkende leefruimte voorzien van een groot kookeiland en directe toegang tot de overdekte veranda met heaters via openslaande deuren – perfect voor zomerse diners buiten.
Aangrenzend aan de woonkeuken vindt u een praktische bijkeuken met veel kastruimte en een doorgang naar een ruime werkkamer – ideaal voor kantoor aan huis, atelier of speelkamer.
Eerste verdieping – Ruimte en rust
De eerste verdieping beschikt over maar liefst drie grote slaapkamers, elk met eigen privé badkamer en suite en maatwerken kasten. De master bedroom aan de tuinzijde is een ware privésuite, voorzien van een imposante kleedruimte met fantastisch daklicht en een eigen royale badkamer met design ligbad, dubbele wastafel en royale inloopdouche. Op de overloop bevinden zich nog een separaat toilet en maatwerkkasten.
Het souterrain
Via de vaste trapt daalt u af naar het exclusieve souterrain - deze woonloop is volledig ingericht op comfort, ontspanning en een actieve levensstijl. Deze hoogwaardige woonlaag combineert het beste van twee werelden: aan de ene zijde een compleet uitgeruste fitnessruimte en een elegante wellness, aan de andere zijde een sfeervolle thuisbioscoop met een stijlvolle bar – ideaal voor ontspanning en entertainment.
De ruimte is doordacht ingedeeld en met oog voor detail afgewerkt. Daarnaast is er een ruime gasten(slaap)kamer met een eigen badkamer aanwezig.
Bijgebouw – poolhouse
Het bijgebouw is volledig ingericht en voorzien van alle luxe gemakken. Het beschikt over een eigen badkamer met douche en toilet, een complete keukenopstelling en bergruimte. De royale leefruimte die naar eigen wens kan worden ingericht als gastenverblijf, au-pairwoning, kantoor of praktijkruimte biedt zicht over de onder architectuur aangelegde tuin.
Een bijzonder pluspunt zijn de brede harmonicadeuren aan de zwembadzijde, die volledig open kunnen, waardoor binnen en buiten naadloos in elkaar overgaan. Dit maakt deze leefruimte uitermate geschikt voor ontspanning, creatieve beroepen of als zelfstandige woonunit.
Kenmerken
- woonoppervlak circa 470m2
- Perceeloppervlak circa 1.888m2
- Bouwjaar: 2013
- Architect: Bertram Beerbaum - Kabaz
- Absolute A-locatie aan een rustige laan en op loopafstand van het centrum van Blaricum
- Riant en luxueus volledig ingericht poolhouse cq. guesthouse.
Spreekt het perfecte samenspel tussen ‘huis’ en ‘inrichting’ u aan? Neem dan snel contact met ons op voor het inplannen van een uitgebreide rondleiding. Jacques Walch, NVM Register Makelaar, en Tessa Soede, NVM Makelaar leiden u graag rond. Nog beter is om uw eigen NVM-aankoopmakelaar mee te nemen.
Ook kunt u elke zaterdag tussen 10.00 en 14.00 uur bij ons op kantoor aan de Torenlaan 12D in Blaricum binnenlopen voor extra informatie onder het genot van een cappuccino met verse appeltaart.
Een lommerrijk klinkerstraatje waar statige bomen hun takken naar elkaar uitstrekken en de Blaricummerheide of het knusse centrum zich op loopafstand bevinden.
Klassiek Goois met een eigentijdse twist: een landelijke rietenkap met wolfseinden, wit stucwerk boven een stoere baksteenplint, fraaie roederamen en deels gepotdekselde gevels – het ideale plaatje, en wellicht wel uw nieuwe thuis: deze luxueuze vrijstaande villa van 470 m² op een riant perceel van 1.888 m².
Begane grond – Riant en stijlvol wonen
Binnenkomst via de overdekte entree in de royale ontvangsthal met garderobe, gastentoilet en toegang tot het trappenhuis. Direct rechts bevindt zich de gezellige zitkamer, ideaal als bibliotheek, lounge of extra tv-kamer.
De riante woonkamer is zeer sfeervol en centraal gelegen op de begane grond. De luxe woonkeuken is het hart van het huis: een indrukwekkende leefruimte voorzien van een groot kookeiland en directe toegang tot de overdekte veranda met heaters via openslaande deuren – perfect voor zomerse diners buiten.
Aangrenzend aan de woonkeuken vindt u een praktische bijkeuken met veel kastruimte en een doorgang naar een ruime werkkamer – ideaal voor kantoor aan huis, atelier of speelkamer.
Eerste verdieping – Ruimte en rust
De eerste verdieping beschikt over maar liefst drie grote slaapkamers, elk met eigen privé badkamer en suite en maatwerken kasten. De master bedroom aan de tuinzijde is een ware privésuite, voorzien van een imposante kleedruimte met fantastisch daklicht en een eigen royale badkamer met design ligbad, dubbele wastafel en royale inloopdouche. Op de overloop bevinden zich nog een separaat toilet en maatwerkkasten.
Het souterrain
Via de vaste trapt daalt u af naar het exclusieve souterrain - deze woonloop is volledig ingericht op comfort, ontspanning en een actieve levensstijl. Deze hoogwaardige woonlaag combineert het beste van twee werelden: aan de ene zijde een compleet uitgeruste fitnessruimte en een elegante wellness, aan de andere zijde een sfeervolle thuisbioscoop met een stijlvolle bar – ideaal voor ontspanning en entertainment.
De ruimte is doordacht ingedeeld en met oog voor detail afgewerkt. Daarnaast is er een ruime gasten(slaap)kamer met een eigen badkamer aanwezig.
Bijgebouw – poolhouse
Het bijgebouw is volledig ingericht en voorzien van alle luxe gemakken. Het beschikt over een eigen badkamer met douche en toilet, een complete keukenopstelling en bergruimte. De royale leefruimte die naar eigen wens kan worden ingericht als gastenverblijf, au-pairwoning, kantoor of praktijkruimte biedt zicht over de onder architectuur aangelegde tuin.
Een bijzonder pluspunt zijn de brede harmonicadeuren aan de zwembadzijde, die volledig open kunnen, waardoor binnen en buiten naadloos in elkaar overgaan. Dit maakt deze leefruimte uitermate geschikt voor ontspanning, creatieve beroepen of als zelfstandige woonunit.
Kenmerken
- woonoppervlak circa 470m2
- Perceeloppervlak circa 1.888m2
- Bouwjaar: 2013
- Architect: Bertram Beerbaum - Kabaz
- Absolute A-locatie aan een rustige laan en op loopafstand van het centrum van Blaricum
- Riant en luxueus volledig ingericht poolhouse cq. guesthouse.
Spreekt het perfecte samenspel tussen ‘huis’ en ‘inrichting’ u aan? Neem dan snel contact met ons op voor het inplannen van een uitgebreide rondleiding. Jacques Walch, NVM Register Makelaar, en Tessa Soede, NVM Makelaar leiden u graag rond. Nog beter is om uw eigen NVM-aankoopmakelaar mee te nemen.
Ook kunt u elke zaterdag tussen 10.00 en 14.00 uur bij ons op kantoor aan de Torenlaan 12D in Blaricum binnenlopen voor extra informatie onder het genot van een cappuccino met verse appeltaart.
| ID de propriété | BM100814 |
|---|---|
| Prix demandé | € 5.995.000 k.k. |
| Type de maison | Villa |
| Surface habitable | 470 m² |
| Superficie du terrain | 1.888 m² |
| Année de construction | 2013 |
| Année de rénovation | - |
| Chambres à coucher | 4 |
| Salles de bains | 4 |
| Garages | 1 |
| Energielabel | A++ |
Voorma en Walch Blaricum Torenlaan 12 D, 1261 GD Blaricum
- Téléphone:+31.35.531.53.00
- Courriel:blaricum@voorma-walch.nl
- Site web:voorma-walch.nl
- Lundi - VendrediOuvert du 08.30 - 17.30
- Samedi Ouvert du 10.00 - 16.00
- Dimanche Fermé














































