Villa a vendre a BLARICUM avec reference 19209653461
Laantje van Borsen 9, 1261 ZD BLARICUM—Réf. BM100831
In het jonge en ruim opgezette woongebied De Blaricummermeent, aan een rustig en groen laantje, staat deze charmante rietgedekte vrijstaande woning (A++) van circa 183 m². De woning biedt een comfortabele indeling, royale leefruimtes en een prachtig ruim uniek perceel (614 m²) met veel privacy en vrij uitzicht. De straat is autoluw en uitsluitend toegankelijk voor bestemmingsverkeer – ideaal voor gezinnen of mensen die rust zoeken, met stedelijke gemakken binnen handbereik.
Begane grond
Bij binnenkomst in de royale hal valt direct het gevoel van ruimte en licht op. In de hal bevinden zich het moderne gastentoilet, de meterkast en de vaste trap naar de eerste verdieping. Vanuit de hal leidt de weg naar de ruime en sfeervolle woonkamer, gelegen aan de tuinzijde. Deze is voorzien van grote raampartijen, maatwerkkasten, dubbele openslaande deuren naar de veranda en een visgraat-pvc-vloer. Binnen- en buitenleven lopen hier naadloos in elkaar over. De veranda vormt een beschutte plek waar op warme avonden tot in de late uurtjes genoten kan worden.
Aan de voorzijde van de woning bevindt zich de moderne Siematic keuken, uitgerust met een royaal kookeiland, inductiekookplaat, een grote koelkast en vriezer en 2 ovens met stoomfunctie. Dankzij de ruime opzet is er volop plaats voor een grote eettafel, waarmee deze ruimte het hart van de woning vormt – ideaal voor kookliefhebbers en gezellige etentjes.
Aangrenzend aan de hal is de bijkeuken (voormalige garage) bereikbaar. Deze is voorzien van aansluitingen voor wasmachine en droger, een extra spoelbak en een achterdeur naar de tuin. Een praktische ruimte die uitstekend dienstdoet als wasruimte, berging of extra werkplek.
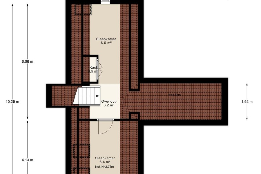
Eerste verdieping
De eerste verdieping is ruim van opzet en telt vier comfortabele slaapkamers, waarvan er momenteel één als kastenkamer is ingericht. De hoofdslaapkamer, gelegen aan de tuinkant van de woning, is royaal van formaat. De overige drie kamers zijn flexibel in te delen en ideaal te gebruiken als kinder-, logeer- of werkkamer.
De ruime badkamer beschikt over een ligbad, aparte douche en een wastafel. Daarnaast is er op deze verdieping een apart toilet aanwezig, wat extra comfort biedt tijdens de drukke ochtenduren.
Tweede verdieping
De zolderverdieping is verrassend licht en praktisch ingedeeld. Hier bevinden zich nog twee sfeervolle kamers, beide voorzien van dakramen. Op de overloop is extra bergruimte gecreëerd in de schuine dakdelen. Deze etage leent zich uitstekend voor gebruik als logeerkamer, speelruimte of rustige werkplek.
Tuin
De tuin is gelegen op een groot perceel met daarbij de hele dag zon en schaduw plekken. Er is veel privacy aanwezig en het vrije uitzicht over de Meentzoom is zeer aangenaam. In de tuin is een sproei installatie en een tuinhuisje aanwezig. Op de oprit is ruimte voor het parkeren van 2 auto’s.
Omgeving
De Blaricummermeent is een moderne woonwijk aan de oostzijde van Blaricum. De wijk is bijzonder kindvriendelijk en populair bij jonge gezinnen dankzij de veilige opzet, de speelplekken, basisscholen in de buurt en het actieve buurtgevoel. Er is veel variatie in woningtypes en de straten zijn ruim en rustig.
Binnen enkele minuten fietsen is het oude dorp van Blaricum bereikbaar, met zijn gezellige dorpskern vol horecagelegenheden, speciaalzaken en echte dorpssfeer. Ook het Gooimeer met zijn jachthavens, strandjes en recreatiemogelijkheden ligt vlakbij. Dankzij de ligging nabij de A27 en A1 zijn steden als Amsterdam, Utrecht en Amersfoort snel bereikbaar, terwijl u thuis geniet van de rust van het Gooi.
Bijzonderheden:
• Unieke locatie in de Blaricummermeent, met een groot perceel (614m2) en veel privacy.
• Woonoppervlakte: circa 183m2.
• Alle woningen op de Blaricummermeent zijn voorzien van een energiezuinige warmtepomp.
• Energiezuinig huis (A++) met op de garage 7 zonnepanelen en een WTW installatie.
• Volledige vloerverwarming in het huis, inclusief koelfunctie.
• Prachtig besloten tuin met mooi uitzicht over het water en een gezellige aangrenzende veranda.
• Parkeren op eigen terrein.
• Iedere kamer is voorzien van een vaste data aansluiting.
Voor een bezichtiging van deze rietgedekte vrijstaande woning kunt u natuurlijk contact met ons opnemen: Voorma en Walch Makelaars in het Gooi te Blaricum, Laura Smit NVM Makelaar. Nog beter is om uw eigen NVM makelaar mee te nemen.
Voor een cappuccino met warm appelgebak bent u op zaterdagmorgen tussen 10:00 – 14:00 uur meer dan welkom op ons kantoor te Blaricum aan de Torenlaan 12d (de Garage)
Begane grond
Bij binnenkomst in de royale hal valt direct het gevoel van ruimte en licht op. In de hal bevinden zich het moderne gastentoilet, de meterkast en de vaste trap naar de eerste verdieping. Vanuit de hal leidt de weg naar de ruime en sfeervolle woonkamer, gelegen aan de tuinzijde. Deze is voorzien van grote raampartijen, maatwerkkasten, dubbele openslaande deuren naar de veranda en een visgraat-pvc-vloer. Binnen- en buitenleven lopen hier naadloos in elkaar over. De veranda vormt een beschutte plek waar op warme avonden tot in de late uurtjes genoten kan worden.
Aan de voorzijde van de woning bevindt zich de moderne Siematic keuken, uitgerust met een royaal kookeiland, inductiekookplaat, een grote koelkast en vriezer en 2 ovens met stoomfunctie. Dankzij de ruime opzet is er volop plaats voor een grote eettafel, waarmee deze ruimte het hart van de woning vormt – ideaal voor kookliefhebbers en gezellige etentjes.
Aangrenzend aan de hal is de bijkeuken (voormalige garage) bereikbaar. Deze is voorzien van aansluitingen voor wasmachine en droger, een extra spoelbak en een achterdeur naar de tuin. Een praktische ruimte die uitstekend dienstdoet als wasruimte, berging of extra werkplek.
Eerste verdieping
De eerste verdieping is ruim van opzet en telt vier comfortabele slaapkamers, waarvan er momenteel één als kastenkamer is ingericht. De hoofdslaapkamer, gelegen aan de tuinkant van de woning, is royaal van formaat. De overige drie kamers zijn flexibel in te delen en ideaal te gebruiken als kinder-, logeer- of werkkamer.
De ruime badkamer beschikt over een ligbad, aparte douche en een wastafel. Daarnaast is er op deze verdieping een apart toilet aanwezig, wat extra comfort biedt tijdens de drukke ochtenduren.
Tweede verdieping
De zolderverdieping is verrassend licht en praktisch ingedeeld. Hier bevinden zich nog twee sfeervolle kamers, beide voorzien van dakramen. Op de overloop is extra bergruimte gecreëerd in de schuine dakdelen. Deze etage leent zich uitstekend voor gebruik als logeerkamer, speelruimte of rustige werkplek.
Tuin
De tuin is gelegen op een groot perceel met daarbij de hele dag zon en schaduw plekken. Er is veel privacy aanwezig en het vrije uitzicht over de Meentzoom is zeer aangenaam. In de tuin is een sproei installatie en een tuinhuisje aanwezig. Op de oprit is ruimte voor het parkeren van 2 auto’s.
Omgeving
De Blaricummermeent is een moderne woonwijk aan de oostzijde van Blaricum. De wijk is bijzonder kindvriendelijk en populair bij jonge gezinnen dankzij de veilige opzet, de speelplekken, basisscholen in de buurt en het actieve buurtgevoel. Er is veel variatie in woningtypes en de straten zijn ruim en rustig.
Binnen enkele minuten fietsen is het oude dorp van Blaricum bereikbaar, met zijn gezellige dorpskern vol horecagelegenheden, speciaalzaken en echte dorpssfeer. Ook het Gooimeer met zijn jachthavens, strandjes en recreatiemogelijkheden ligt vlakbij. Dankzij de ligging nabij de A27 en A1 zijn steden als Amsterdam, Utrecht en Amersfoort snel bereikbaar, terwijl u thuis geniet van de rust van het Gooi.
Bijzonderheden:
• Unieke locatie in de Blaricummermeent, met een groot perceel (614m2) en veel privacy.
• Woonoppervlakte: circa 183m2.
• Alle woningen op de Blaricummermeent zijn voorzien van een energiezuinige warmtepomp.
• Energiezuinig huis (A++) met op de garage 7 zonnepanelen en een WTW installatie.
• Volledige vloerverwarming in het huis, inclusief koelfunctie.
• Prachtig besloten tuin met mooi uitzicht over het water en een gezellige aangrenzende veranda.
• Parkeren op eigen terrein.
• Iedere kamer is voorzien van een vaste data aansluiting.
Voor een bezichtiging van deze rietgedekte vrijstaande woning kunt u natuurlijk contact met ons opnemen: Voorma en Walch Makelaars in het Gooi te Blaricum, Laura Smit NVM Makelaar. Nog beter is om uw eigen NVM makelaar mee te nemen.
Voor een cappuccino met warm appelgebak bent u op zaterdagmorgen tussen 10:00 – 14:00 uur meer dan welkom op ons kantoor te Blaricum aan de Torenlaan 12d (de Garage)
| ID de propriété | BM100831 |
|---|---|
| Prix demandé | € 1.475.000 k.k. |
| Type de maison | Villa |
| Surface habitable | 183 m² |
| Superficie du terrain | 614 m² |
| Année de construction | 2015 |
| Année de rénovation | - |
| Chambres à coucher | 6 |
| Salles de bains | 1 |
| Garages | - |
| Energielabel | A++ |
Voorma en Walch Blaricum Torenlaan 12 D, 1261 GD Blaricum
- Téléphone:+31.35.531.53.00
- Courriel:blaricum@voorma-walch.nl
- Site web:voorma-walch.nl
- Lundi - VendrediOuvert du 08.30 - 17.30
- Samedi Ouvert du 10.00 - 16.00
- Dimanche Fermé


















































