Villa a vendre a WASSENAAR avec reference 19210602345
Schouwweg 65A, 2243 BH WASSENAAR—Réf. WR104398
Welkom in Villa Wassenaar.
Op toplocatie in Wassenaar aan de Schouwweg 65 a bieden wij deze bestaande woning met bouwjaar 1953 aan op een gigantisch perceel van 6.845 m2!
De woning is echter gedateerd en dient gerenoveerd te worden. Echter is het ook mogelijk om de woning te slopen en een eigen villa te bouwen, binnen de regels die het vigerende bestemmingsplan biedt. Om een idee te geven heeft architectenbureau Van Manen uit Noordwijk een ontwerp gemaakt. Dit ontwerp is positief ontvangen door de Secretaris van de commissie Welstand en Cultureel Erfgoed (OKW) van de gemeente Wassenaar, tevens Beleidsadviseur Stedenbouw.
Voor meer informatie en plattegronden, zie de projectwebsite: villawassenaar.com
Kerngegevens van het ontwerp:
- gebruiksoppervlakte: ca 415 m²;
- perceeloppervlak ca 6.845 m2
- tijdloos ontwerp, verankerd in klassieke Wassenaarse stijl, ontworpen met oog voor rust, licht en detail;
- gebruik van hoogwaardige materialen;
- ontwerp van architectenbureau Van Manen;
- souterrain met hoge raampartijen;
- veranda & zonneterras;
- ontwerp is positief ontvangen door Gemeente Wassenaar (Secr. OKW);
- carport voor 2 auto’s;
- ruimtelijke leefkeuken;
- zwemvijver;
- tuinontwerp Studio B;
- wijnkelder, wellness & fitness
- alles naar wens aanpasbaar
"Een privédomein te midden van ongerepte natuur. Deze iconische villa met een klassieke uitstraling ligt op één van de meest prestigieuze plekken in Nederland. Een rietgedekte vrijstaande villa dat alles in zich heeft voor optimaal comfort. Hier floreren rust, ruimte en verbinding. Ervaar zelf de luxe van karaktervol wonen in een idyllische privé-oase. De prachtige tuin strekt zich uit tot voorbij de twee aangrenzende percelen. Na de met waterlelies begroeide vijver en vlak achter de hoefijzervormige heggen, markeert een stilstaand water, het begin van een prachtig klein bos."
Uiteraard is het ontwerp naar eigen inzicht en smaak aan te passen. Wenst u meer informatie of wilt u de bestaande woning en het prachtige kavel met eigen ogen bekijken, sfeer proeven en de tuin beleven? Maak dan snel een afspraak met ons kantoor, wij helpen u graag verder.
============================================================
Informatie bestaande woning.
Vrijstaande villa (bouwjaar 1953, architect AH Wegerif) met dubbele garage en carport, alsmede een inpandige garage/berging, gelegen op een perceel van 6.845 m2.
De huidige villa biedt ca. 224m² woonoppervlakte exclusief de overig inpandige ruimte van ca 94 m2 en de externe bergruimte van 41 m2.
Indeling bestaande woning:
Begane grond: entree, hal, garderobe, toilet, inpandige garage, keuken en bijkeuken met zij-ingang, tuingerichte woon-/eetkamer met open haard en fraai uitzicht op de tuin en zonneterras.
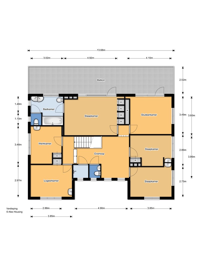
Eerste verdieping: overloop, 6 slaapkamers en 2 badkamers, groot balkon aan de achterzijde.
Vliering over de gehele woning, nu onbenutte ruimte.
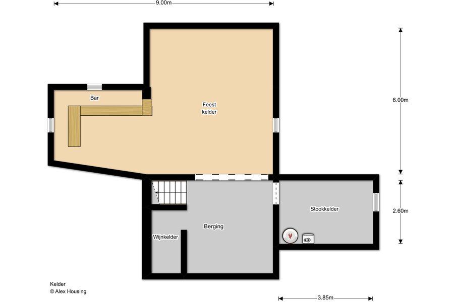
Souterrain: vaste trap naar souterrain voor de opslag voor wijn en proviand, alsmede een hobbyruimte aanwezig.
Bijzonderheden:
- tuinsproei-installatie en eigen bron;
- olietank is verwijderd, KIWA certificaat d.d. 1997;
- oprit voor meerdere auto's;
- dubbele garage met elektrisch bedienbare roldeur (40m²) en inpandige garage/berging (23m²);
- ouderdomsclausule, asbestclausule en niet-bewoningsclausule van toepassing op de NVM koopovereenkomst.
Op toplocatie in Wassenaar aan de Schouwweg 65 a bieden wij deze bestaande woning met bouwjaar 1953 aan op een gigantisch perceel van 6.845 m2!
De woning is echter gedateerd en dient gerenoveerd te worden. Echter is het ook mogelijk om de woning te slopen en een eigen villa te bouwen, binnen de regels die het vigerende bestemmingsplan biedt. Om een idee te geven heeft architectenbureau Van Manen uit Noordwijk een ontwerp gemaakt. Dit ontwerp is positief ontvangen door de Secretaris van de commissie Welstand en Cultureel Erfgoed (OKW) van de gemeente Wassenaar, tevens Beleidsadviseur Stedenbouw.
Voor meer informatie en plattegronden, zie de projectwebsite: villawassenaar.com
Kerngegevens van het ontwerp:
- gebruiksoppervlakte: ca 415 m²;
- perceeloppervlak ca 6.845 m2
- tijdloos ontwerp, verankerd in klassieke Wassenaarse stijl, ontworpen met oog voor rust, licht en detail;
- gebruik van hoogwaardige materialen;
- ontwerp van architectenbureau Van Manen;
- souterrain met hoge raampartijen;
- veranda & zonneterras;
- ontwerp is positief ontvangen door Gemeente Wassenaar (Secr. OKW);
- carport voor 2 auto’s;
- ruimtelijke leefkeuken;
- zwemvijver;
- tuinontwerp Studio B;
- wijnkelder, wellness & fitness
- alles naar wens aanpasbaar
"Een privédomein te midden van ongerepte natuur. Deze iconische villa met een klassieke uitstraling ligt op één van de meest prestigieuze plekken in Nederland. Een rietgedekte vrijstaande villa dat alles in zich heeft voor optimaal comfort. Hier floreren rust, ruimte en verbinding. Ervaar zelf de luxe van karaktervol wonen in een idyllische privé-oase. De prachtige tuin strekt zich uit tot voorbij de twee aangrenzende percelen. Na de met waterlelies begroeide vijver en vlak achter de hoefijzervormige heggen, markeert een stilstaand water, het begin van een prachtig klein bos."
Uiteraard is het ontwerp naar eigen inzicht en smaak aan te passen. Wenst u meer informatie of wilt u de bestaande woning en het prachtige kavel met eigen ogen bekijken, sfeer proeven en de tuin beleven? Maak dan snel een afspraak met ons kantoor, wij helpen u graag verder.
============================================================
Informatie bestaande woning.
Vrijstaande villa (bouwjaar 1953, architect AH Wegerif) met dubbele garage en carport, alsmede een inpandige garage/berging, gelegen op een perceel van 6.845 m2.
De huidige villa biedt ca. 224m² woonoppervlakte exclusief de overig inpandige ruimte van ca 94 m2 en de externe bergruimte van 41 m2.
Indeling bestaande woning:
Begane grond: entree, hal, garderobe, toilet, inpandige garage, keuken en bijkeuken met zij-ingang, tuingerichte woon-/eetkamer met open haard en fraai uitzicht op de tuin en zonneterras.
Eerste verdieping: overloop, 6 slaapkamers en 2 badkamers, groot balkon aan de achterzijde.
Vliering over de gehele woning, nu onbenutte ruimte.
Souterrain: vaste trap naar souterrain voor de opslag voor wijn en proviand, alsmede een hobbyruimte aanwezig.
Bijzonderheden:
- tuinsproei-installatie en eigen bron;
- olietank is verwijderd, KIWA certificaat d.d. 1997;
- oprit voor meerdere auto's;
- dubbele garage met elektrisch bedienbare roldeur (40m²) en inpandige garage/berging (23m²);
- ouderdomsclausule, asbestclausule en niet-bewoningsclausule van toepassing op de NVM koopovereenkomst.
| ID de propriété | WR104398 |
|---|---|
| Prix demandé | € 2.750.000 k.k. |
| Type de maison | Villa |
| Surface habitable | 224 m² |
| Superficie du terrain | 6.845 m² |
| Année de construction | 1953 |
| Année de rénovation | - |
| Chambres à coucher | 6 |
| Salles de bains | 2 |
| Garages | 2 |
| Energielabel | G |
Welp Makelaardij Van Hogendorpstraat 16 d, 2242 KZ Wassenaar
- Téléphone:+31.070.51.11.720
- Courriel:info@welpmakelaardij.nl
- Site web:www.welpmakelaardij.nl
- Lundi - VendrediOuvert du 09.00 - 17.30
- Samedi Ouvert du 10.00 - 14.00
- Dimanche Fermé

















