Appartement a vendre a 'S-GRAVENHAGE avec reference 19310503413
Denneweg 13B, 2514 CB 'S-GRAVENHAGE—Réf. SE101666
Stijlvol stadsappartement op toplocatie, Denneweg 13B in Den Haag.
HIGHLIGHTS;
-Woonoppervlakte 144 m²
- Groot zonnig terras;
- Eigen grond;
- 2 ruime slaapkamers;
- 1 kleinere slaapkamer;
- Luxe open keuken met inbouwapparatuur;
- 2 badkamers;
- Energielabel C;
- Moderne badkamer met ligbad en inloopdouche;
- Unieke locatie met alle voorzieningen binnen handbereik;
- VVE bijdrage €228,88,- per maand;
Gelegen aan de levendige Denneweg, midden in het historische centrum van Den Haag biedt dit moderne en sfeervolle appartement een unieke woonervaring. Omringd door luxe boetieks, gezellige cafés en hoogwaardige restaurants woon je hier in een van de meest charmante en gewilde straten van de stad. Het Haagse Bos, het Binnenhof en het Centraal Station bevinden zich op loopafstand, en dankzij de uitstekende openbaar vervoersverbindingen ben je snel in Scheveningen of andere delen van de stad.
Indeling;
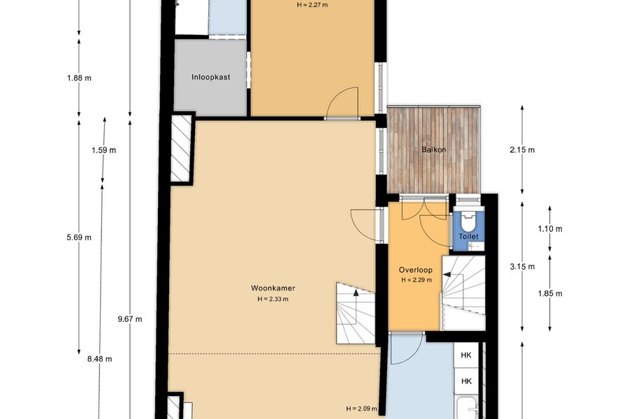
Tweede verdieping
Via de gezamenlijke entree op de begane grond bereikt u de eerste verdieping, waar zich de voordeur van de woning bevindt. Een trap brengt u vervolgens naar de sfeervolle tweede verdieping, waar het wooncomfort direct begint. U komt binnen in een ruime overloop die toegang biedt tot de royale, lichte woonkamer met open keuken. Dankzij de grote raampartijen baadt de ruimte in natuurlijk licht, wat zorgt voor een warme en aangename sfeer. De moderne keuken is voorzien van hoogwaardige inbouwapparatuur en vormt samen met de woonkamer een stijlvolle en functionele leefruimte – ideaal voor zowel ontspannen als gezellig dineren met gasten. Op deze verdieping bevindt zich ook een ruime slaapkamer met directe toegang tot een luxe badkamer, compleet met inloopdouche, wastafel en een comfortabel ligbad. Verder vindt u hier een ingebouwde kledingkast en een separaat toilet.
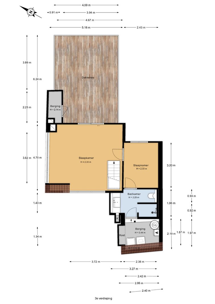
Derde verdieping
De derde verdieping biedt een ruime tweede slaapkamer met directe toegang tot een zonnig privéterras – de perfecte plek voor uw ochtendkoffie of om in alle rust van de avondzon te genieten. Daarnaast is er een tweede, kleinere slaapkamer die uitstekend dienst kan doen als logeerkamer, werkkamer of kinderkamer. Deze kamer beschikt over een eigen, tweede badkamer met douche, toilet en wastafel. Tot slot is er een praktische wasruimte, handig gelegen naast de badkamer.
Bijzonderheden;
- projectnotaris van toepassing;
- niet-bewonersclausule van toepassing;
- ouderdoms- en materialenclausule van toepassing;
De informatie in deze advertentie is met grote zorgvuldigheid samengesteld. Ondanks deze zorg en aandacht is het mogelijk dat de inhoud onvolledig en/of onjuist is. Aan de inhoud van deze advertentie kunnen op geen enkele wijze rechten of aanspraken ontleend worden.
*** ENGLISH TEXT BELOW***
Stylish city apartment in prime location, Denneweg 13B in The Hague.
HIGHLIGHTS;
-Living area 144 m²
- Large sunny terrace;
- Freehold;
- 2 spacious bedrooms;
- 1 smaller bedroom;
- Luxury open kitchen with built-in appliances;
- 2 bathrooms;
- Energy label C;
- Modern bathroom with walk-in shower;
- Unique location with all amenities within easy reach;
- VVE contribution €228,88 per month;
Located on the lively Denneweg, in the middle of the historic center of The Hague, this modern and attractive apartment offers a unique living experience. Surrounded by luxury boutiques, cozy cafes and high-quality restaurants, you live here in one of the most charming and desirable streets in the city. The Haagse Bos, the Binnenhof and the Central Station are within walking distance, and thanks to the excellent public transport connections you can quickly reach Scheveningen or other parts of the city.
Layout;
Second Floor:
Entering the home through a shared entrance at ground level, you arrive at the first floor where the private front door welcomes you in. A staircase then takes you to the beautifully appointed second floor, where the main living space unfolds. Step inside and discover a spacious landing that leads to the bright, expansive living room with an open-concept kitchen. Floor-to-ceiling windows flood the space with natural daylight, creating a warm and inviting atmosphere throughout. The sleek, modern kitchen is fully equipped with high-end built-in appliances and blends seamlessly with the living area—perfect for both everyday comfort and entertaining. Also on this level is a generous bedroom with direct access to a luxurious bathroom featuring a walk-in shower, stylish washbasin, and a relaxing bathtub. A built-in wardrobe and separate toilet complete the floor’s practical and elegant layout.
Third Floor:
Upstairs, the third floor offers a large second bedroom that opens directly onto a sunny private terrace—the perfect spot to enjoy your morning coffee or unwind in the evening sun. Adjacent is a versatile second bedroom, ideal as a guest room, home office, or nursery. This room benefits from an en-suite second bathroom, complete with a walk-in shower, toilet, and washbasin. A conveniently located laundry area adds to the overall functionality of this well-designed upper floor.
Property Details:
- project notary applicable;
- non-residential clause applicable (this means that the owner has not ever lived in the apartment in the past);
- age clause and materials clause applicable;
The information in this advertisement has been compiled with great care. Despite this care and attention, it is possible that the content is incomplete and/or incorrect. No rights or claims can be derived in any way from the content of this advertisement.
HIGHLIGHTS;
-Woonoppervlakte 144 m²
- Groot zonnig terras;
- Eigen grond;
- 2 ruime slaapkamers;
- 1 kleinere slaapkamer;
- Luxe open keuken met inbouwapparatuur;
- 2 badkamers;
- Energielabel C;
- Moderne badkamer met ligbad en inloopdouche;
- Unieke locatie met alle voorzieningen binnen handbereik;
- VVE bijdrage €228,88,- per maand;
Gelegen aan de levendige Denneweg, midden in het historische centrum van Den Haag biedt dit moderne en sfeervolle appartement een unieke woonervaring. Omringd door luxe boetieks, gezellige cafés en hoogwaardige restaurants woon je hier in een van de meest charmante en gewilde straten van de stad. Het Haagse Bos, het Binnenhof en het Centraal Station bevinden zich op loopafstand, en dankzij de uitstekende openbaar vervoersverbindingen ben je snel in Scheveningen of andere delen van de stad.
Indeling;
Tweede verdieping
Via de gezamenlijke entree op de begane grond bereikt u de eerste verdieping, waar zich de voordeur van de woning bevindt. Een trap brengt u vervolgens naar de sfeervolle tweede verdieping, waar het wooncomfort direct begint. U komt binnen in een ruime overloop die toegang biedt tot de royale, lichte woonkamer met open keuken. Dankzij de grote raampartijen baadt de ruimte in natuurlijk licht, wat zorgt voor een warme en aangename sfeer. De moderne keuken is voorzien van hoogwaardige inbouwapparatuur en vormt samen met de woonkamer een stijlvolle en functionele leefruimte – ideaal voor zowel ontspannen als gezellig dineren met gasten. Op deze verdieping bevindt zich ook een ruime slaapkamer met directe toegang tot een luxe badkamer, compleet met inloopdouche, wastafel en een comfortabel ligbad. Verder vindt u hier een ingebouwde kledingkast en een separaat toilet.
Derde verdieping
De derde verdieping biedt een ruime tweede slaapkamer met directe toegang tot een zonnig privéterras – de perfecte plek voor uw ochtendkoffie of om in alle rust van de avondzon te genieten. Daarnaast is er een tweede, kleinere slaapkamer die uitstekend dienst kan doen als logeerkamer, werkkamer of kinderkamer. Deze kamer beschikt over een eigen, tweede badkamer met douche, toilet en wastafel. Tot slot is er een praktische wasruimte, handig gelegen naast de badkamer.
Bijzonderheden;
- projectnotaris van toepassing;
- niet-bewonersclausule van toepassing;
- ouderdoms- en materialenclausule van toepassing;
De informatie in deze advertentie is met grote zorgvuldigheid samengesteld. Ondanks deze zorg en aandacht is het mogelijk dat de inhoud onvolledig en/of onjuist is. Aan de inhoud van deze advertentie kunnen op geen enkele wijze rechten of aanspraken ontleend worden.
*** ENGLISH TEXT BELOW***
Stylish city apartment in prime location, Denneweg 13B in The Hague.
HIGHLIGHTS;
-Living area 144 m²
- Large sunny terrace;
- Freehold;
- 2 spacious bedrooms;
- 1 smaller bedroom;
- Luxury open kitchen with built-in appliances;
- 2 bathrooms;
- Energy label C;
- Modern bathroom with walk-in shower;
- Unique location with all amenities within easy reach;
- VVE contribution €228,88 per month;
Located on the lively Denneweg, in the middle of the historic center of The Hague, this modern and attractive apartment offers a unique living experience. Surrounded by luxury boutiques, cozy cafes and high-quality restaurants, you live here in one of the most charming and desirable streets in the city. The Haagse Bos, the Binnenhof and the Central Station are within walking distance, and thanks to the excellent public transport connections you can quickly reach Scheveningen or other parts of the city.
Layout;
Second Floor:
Entering the home through a shared entrance at ground level, you arrive at the first floor where the private front door welcomes you in. A staircase then takes you to the beautifully appointed second floor, where the main living space unfolds. Step inside and discover a spacious landing that leads to the bright, expansive living room with an open-concept kitchen. Floor-to-ceiling windows flood the space with natural daylight, creating a warm and inviting atmosphere throughout. The sleek, modern kitchen is fully equipped with high-end built-in appliances and blends seamlessly with the living area—perfect for both everyday comfort and entertaining. Also on this level is a generous bedroom with direct access to a luxurious bathroom featuring a walk-in shower, stylish washbasin, and a relaxing bathtub. A built-in wardrobe and separate toilet complete the floor’s practical and elegant layout.
Third Floor:
Upstairs, the third floor offers a large second bedroom that opens directly onto a sunny private terrace—the perfect spot to enjoy your morning coffee or unwind in the evening sun. Adjacent is a versatile second bedroom, ideal as a guest room, home office, or nursery. This room benefits from an en-suite second bathroom, complete with a walk-in shower, toilet, and washbasin. A conveniently located laundry area adds to the overall functionality of this well-designed upper floor.
Property Details:
- project notary applicable;
- non-residential clause applicable (this means that the owner has not ever lived in the apartment in the past);
- age clause and materials clause applicable;
The information in this advertisement has been compiled with great care. Despite this care and attention, it is possible that the content is incomplete and/or incorrect. No rights or claims can be derived in any way from the content of this advertisement.
| ID de propriété | SE101666 |
|---|---|
| Prix demandé | € 799.500 k.k. |
| Type de maison | Appartement |
| Surface habitable | 143 m² |
| Superficie du terrain | - |
| Année de construction | 1880 |
| Année de rénovation | - |
| Chambres à coucher | 3 |
| Salles de bains | 2 |
| Garages | - |
| Energielabel | C |
Avenir Vastgoed Anna Paulownastraat 99, 2518 BC Den Haag
- Téléphone:+31.70.820.98.92
- Courriel:info@avenirvastgoed.com
- Site web:www.avenirvastgoed.com
- Lundi - VendrediOuvert du 09.00 - 18.00
- Samedi Sur rendez-vous
- Dimanche Fermé





























