Villa a vendre a LAREN avec reference 19508381591
Breeweg 17, 1251 DX LAREN—Réf. LN102013
Vrijstaande villa met veelzijdige mogelijkheden aan de Breeweg te Laren
Aan de rand van het gezellige dorp Laren op loopafstand van de Zuiderheide en op een ruim perceel van 1.680 m² ligt deze robuuste vrijstaande villa. De villa is gebouwd in 1994 en is thans in gebruik als praktijkwoning, maar biedt na enkele aanpassingen uitstekende mogelijkheden voor een ruime gezinsvilla.
De woning ligt in een rustige kindvriendelijke woonomgeving en de oprit biedt plaats voor meerdere auto’s.
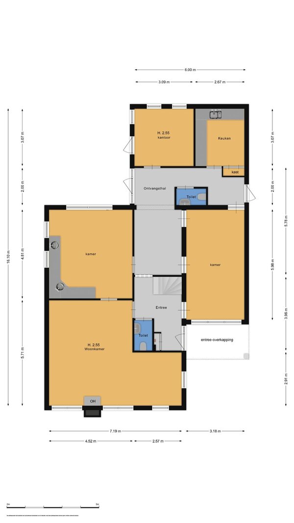
Indeling
Begane grond:
Overdekte entree, ruime hal met garderobe en toilet, L-vormige woonkamer met open haard en doorgang naar de praktijkruimte. Deze ruimte heeft een ruime schuifpui naar de achtertuin en is eenvoudig samen te voegen met de woonkamer. De grote kamer met kitchenette aan de voorzijde van de woning is ideaal voor het creëren van een ruime luxe woonkeuken.
Tweede royale ontvangsthal met eigen entree, garderobe, toilet en deur naar de achtertuin. Aan de achterzijde van de woning bevindt zich nog een dichte keuken en een kamer met deur naar de achtertuin.
De indeling biedt tal van mogelijkheden, zoals het creëren van een slaapkamer en een badkamer op de begane grond, een royale woonkeuken aan de voor- of achterzijde van de woning en is zeer geschikt voor diegene die op zoek zijn naar een woning met praktijkruimte aan huis.
1e Verdieping:
Overloop met vide, slaapkamer voorzien van wastafel en deur naar overdekt balkon (loggia), riante ouderslaapkamer voorzien van dakkapel en eveneens naar het overdekte balkon, 3e royale slaapkamer met kitchenette, eenvoudige maar ruime badkamer en een separaat toilet.
Vliering:
Op de overloop bevindt zich een luik met vlizotrap naar een grote stahoge zolder. Door het plaatsen van een vaste trap naar deze 2e verdieping en het plaatsen van dakramen kan de bruikbare woonruimte worden vergroot met ruim 25 m².
Bijzondere kenmerken:
- Locatie; op loopafstand van de Zuiderheide en de middelbare school Laar en Berg en nabij natuurgebied de Laarder
Engh en uitvalswegen.
- De woning is voorzien van een alarminstallatie en meerdere vertrekken zijn uitgerust met airconditioning.
- Energielabel C.
Deze ruime vrijstaande villa biedt een perfecte basis en volop mogelijkheden om het geheel naar eigen wens in te richten.
Wilt u de mogelijkheden van deze moderne vrijstaande villa ervaren, neem dan contact op met Bart Lammerts, NVM Makelaar van ons makelaarskantoor Laren. Nog beter is om uw eigen NVM aankoopmakelaar mee te nemen.
Aan de rand van het gezellige dorp Laren op loopafstand van de Zuiderheide en op een ruim perceel van 1.680 m² ligt deze robuuste vrijstaande villa. De villa is gebouwd in 1994 en is thans in gebruik als praktijkwoning, maar biedt na enkele aanpassingen uitstekende mogelijkheden voor een ruime gezinsvilla.
De woning ligt in een rustige kindvriendelijke woonomgeving en de oprit biedt plaats voor meerdere auto’s.
Indeling
Begane grond:
Overdekte entree, ruime hal met garderobe en toilet, L-vormige woonkamer met open haard en doorgang naar de praktijkruimte. Deze ruimte heeft een ruime schuifpui naar de achtertuin en is eenvoudig samen te voegen met de woonkamer. De grote kamer met kitchenette aan de voorzijde van de woning is ideaal voor het creëren van een ruime luxe woonkeuken.
Tweede royale ontvangsthal met eigen entree, garderobe, toilet en deur naar de achtertuin. Aan de achterzijde van de woning bevindt zich nog een dichte keuken en een kamer met deur naar de achtertuin.
De indeling biedt tal van mogelijkheden, zoals het creëren van een slaapkamer en een badkamer op de begane grond, een royale woonkeuken aan de voor- of achterzijde van de woning en is zeer geschikt voor diegene die op zoek zijn naar een woning met praktijkruimte aan huis.
1e Verdieping:
Overloop met vide, slaapkamer voorzien van wastafel en deur naar overdekt balkon (loggia), riante ouderslaapkamer voorzien van dakkapel en eveneens naar het overdekte balkon, 3e royale slaapkamer met kitchenette, eenvoudige maar ruime badkamer en een separaat toilet.
Vliering:
Op de overloop bevindt zich een luik met vlizotrap naar een grote stahoge zolder. Door het plaatsen van een vaste trap naar deze 2e verdieping en het plaatsen van dakramen kan de bruikbare woonruimte worden vergroot met ruim 25 m².
Bijzondere kenmerken:
- Locatie; op loopafstand van de Zuiderheide en de middelbare school Laar en Berg en nabij natuurgebied de Laarder
Engh en uitvalswegen.
- De woning is voorzien van een alarminstallatie en meerdere vertrekken zijn uitgerust met airconditioning.
- Energielabel C.
Deze ruime vrijstaande villa biedt een perfecte basis en volop mogelijkheden om het geheel naar eigen wens in te richten.
Wilt u de mogelijkheden van deze moderne vrijstaande villa ervaren, neem dan contact op met Bart Lammerts, NVM Makelaar van ons makelaarskantoor Laren. Nog beter is om uw eigen NVM aankoopmakelaar mee te nemen.
| ID de propriété | LN102013 |
|---|---|
| Prix demandé | € 1.295.000 k.k. |
| Type de maison | Villa |
| Surface habitable | 187 m² |
| Superficie du terrain | 1.680 m² |
| Année de construction | 1994 |
| Année de rénovation | - |
| Chambres à coucher | 3 |
| Salles de bains | 1 |
| Garages | - |
| Energielabel | C |
Voorma en Walch Laren Brink 34, 1251 KW Laren
- Téléphone:+31.35.539.90.80
- Courriel:laren@voorma-walch.nl
- Site web:voorma-walch.nl
- Lundi - VendrediOuvert du 08.30 - 17.30
- Samedi Ouvert du 10.00 - 16.00
- Dimanche Fermé

















































