Villa a louer a WASSENAAR avec reference 19610853908
Rijksstraatweg 228, 2241 BX WASSENAAR—Réf. WR104452
Spacious and attractive corner house with a large extension, 4 bedrooms, 2 bathrooms, and a wraparound garden
This well-maintained and spacious corner house boasts a large extension at the rear and side of the house, situated in a conveniently location in Wassenaar, within walking distance of the American School of The Hague (ASH), public transport, and various exit roads. The house features four bedrooms, a walk-in closet, two bathrooms, a study, a garden on three sides, and a detached storage shed.
Layout
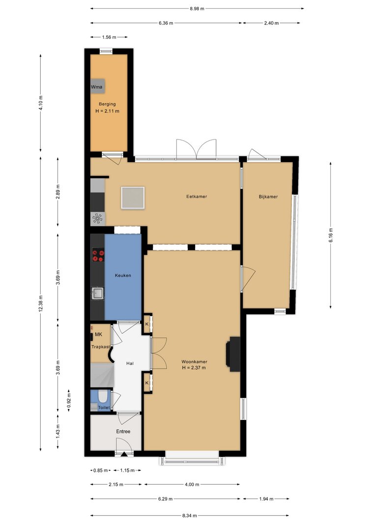
Ground Floor
Entrance, spacious hall with a renovated guest toilet. Stylish steel doors lead into the bright and generously sized living/dining room with wooden floors, a fireplace, and French doors leading to the terrace and garden. The modern, semi-open kitchen has been renovated and is fully equipped. At the side of the house is a separate study, which can be closed off if desired. At the rear is a separate laundry room with additional storage space.
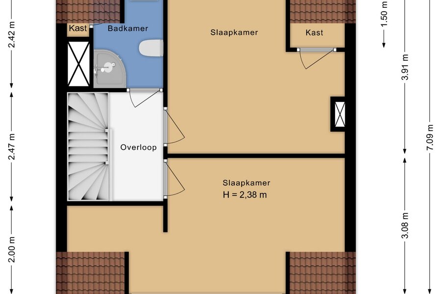
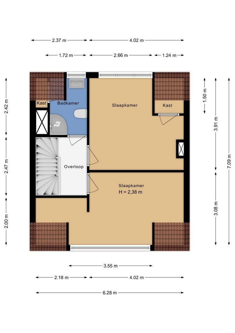
First Floor
Landing. Spacious master bedroom at the rear with a walk-in closet and adjoining balcony (formerly a bedroom). Large bedroom at the front. Renovated, modern bathroom with a shower, bathtub, toilet, and underfloor heating.
Second Floor
Landing. Two well-sized bedrooms with storage space. Second bathroom with a shower and toilet.
Attic
Practical loft with additional storage space.
Outdoor Space
The house has a garden on three sides, allowing you to enjoy sunshine and privacy at any time of the day. There is also a separate storage room.
Details:
- Available immediately.
- Rent is excluding gas, electricity abd watercosts.
- Lease period: approx 2 years (fixed term with a diplomatioc clause for landlord). Landlord returns to the property after 2 years, either party can terminate the lease after the fixed term. If landlord needs to stay longer abroad, he could offer to extend the lease. Tenant is free to accept or not. If landlord does not offer to extend, the lease is terminated after 2 years.
- Ideal home for a (international) family
- Conveniently located near ASH, public transport, and major roads.
A comfortable and fully equipped family home in a very central and desirable location in Wassenaar. Contact us for more information or to schedule a viewing.
======================================================================
Ruime en sfeervolle hoekwoning met grote uitbouw, 4 slaapkamers, 2 badkamers en tuin rondom
Op een uitstekende locatie in Wassenaar, op loopafstand van de American School of The Hague (ASH), openbaar vervoer en diverse uitvalswegen, ligt deze goed onderhouden en royale gezinswoning (hoekhuis) met een grote uitbouw aan de achter- en zijkant. De woning beschikt over vier slaapkamers, een walk-in closet, twee badkamers, een werkkamer, een tuin aan drie zijden en een vrijstaande berging.
Indeling
Begane grond
Entree, ruime hal met vernieuwd gastentoilet. Via stijlvolle stalen deuren bereikt u de lichte en royaal uitgebouwde woon-/eetkamer met houten vloeren, open haard en dubbele openslaande deuren naar het terras en de tuin. De moderne, halfopen keuken is recent vernieuwd en volledig uitgerust.
Aan de zijkant van de woning bevindt zich een separate werkkamer, welke indien gewenst kan worden afgesloten. Aan de achterzijde is een aparte wasruimte met extra bergruimte.
Eerste verdieping
Overloop. Royale hoofdslaapkamer aan de achterzijde met walk-in closet en aangrenzend balkon (voorheen een slaapkamer). Grote slaapkamer aan de voorzijde. Vernieuwde, moderne badkamer voorzien van douche, ligbad, toilet en vloerverwarming.
Tweede verdieping
Overloop. Twee goed bemeten slaapkamers met bergruimte. Tweede badkamer met douche en toilet.
Zolder
Praktische vliering met extra bergruimte.
Buitenruimte
De woning heeft een tuin aan drie zijden, waardoor u op ieder moment van de dag van zon en privacy kunt genieten. Daarnaast is er een separate berging.
Bijzonderheden:
- Beschikbaar per direct.
- Huur is excusief gas, elektra en waterlasten.
- Huurperiode: ongeveer 2 jaar (huurovereenkomst bepaalde tijd met een diplomatenclausule voor verhuurder). Verhuurder keert na 2 jaar terug in de woning. Na de afgesproken vaste periode van 2 jaar kunnen beide partijen de huur beëindigen. Verhuurder heeft de mogelijkheid, indien zij langer in het buitenland moet verblijven, om te verlengen. Huurder kan niet verlengen. Verlenging op initiatief van verhuurder na 2 jaar is mogelijk in overleg en met instemming van huurder.
- Ideale woning voor een (internationaal) gezin.
- Gunstige ligging t.o.v. ASH, openbaar vervoer en uitvalswegen.
Een comfortabele en complete gezinswoning op een zeer centrale en gewilde locatie in Wassenaar. Neem contact met ons op voor meer informatie of het plannen van een bezichtiging.
This well-maintained and spacious corner house boasts a large extension at the rear and side of the house, situated in a conveniently location in Wassenaar, within walking distance of the American School of The Hague (ASH), public transport, and various exit roads. The house features four bedrooms, a walk-in closet, two bathrooms, a study, a garden on three sides, and a detached storage shed.
Layout
Ground Floor
Entrance, spacious hall with a renovated guest toilet. Stylish steel doors lead into the bright and generously sized living/dining room with wooden floors, a fireplace, and French doors leading to the terrace and garden. The modern, semi-open kitchen has been renovated and is fully equipped. At the side of the house is a separate study, which can be closed off if desired. At the rear is a separate laundry room with additional storage space.
First Floor
Landing. Spacious master bedroom at the rear with a walk-in closet and adjoining balcony (formerly a bedroom). Large bedroom at the front. Renovated, modern bathroom with a shower, bathtub, toilet, and underfloor heating.
Second Floor
Landing. Two well-sized bedrooms with storage space. Second bathroom with a shower and toilet.
Attic
Practical loft with additional storage space.
Outdoor Space
The house has a garden on three sides, allowing you to enjoy sunshine and privacy at any time of the day. There is also a separate storage room.
Details:
- Available immediately.
- Rent is excluding gas, electricity abd watercosts.
- Lease period: approx 2 years (fixed term with a diplomatioc clause for landlord). Landlord returns to the property after 2 years, either party can terminate the lease after the fixed term. If landlord needs to stay longer abroad, he could offer to extend the lease. Tenant is free to accept or not. If landlord does not offer to extend, the lease is terminated after 2 years.
- Ideal home for a (international) family
- Conveniently located near ASH, public transport, and major roads.
A comfortable and fully equipped family home in a very central and desirable location in Wassenaar. Contact us for more information or to schedule a viewing.
======================================================================
Ruime en sfeervolle hoekwoning met grote uitbouw, 4 slaapkamers, 2 badkamers en tuin rondom
Op een uitstekende locatie in Wassenaar, op loopafstand van de American School of The Hague (ASH), openbaar vervoer en diverse uitvalswegen, ligt deze goed onderhouden en royale gezinswoning (hoekhuis) met een grote uitbouw aan de achter- en zijkant. De woning beschikt over vier slaapkamers, een walk-in closet, twee badkamers, een werkkamer, een tuin aan drie zijden en een vrijstaande berging.
Indeling
Begane grond
Entree, ruime hal met vernieuwd gastentoilet. Via stijlvolle stalen deuren bereikt u de lichte en royaal uitgebouwde woon-/eetkamer met houten vloeren, open haard en dubbele openslaande deuren naar het terras en de tuin. De moderne, halfopen keuken is recent vernieuwd en volledig uitgerust.
Aan de zijkant van de woning bevindt zich een separate werkkamer, welke indien gewenst kan worden afgesloten. Aan de achterzijde is een aparte wasruimte met extra bergruimte.
Eerste verdieping
Overloop. Royale hoofdslaapkamer aan de achterzijde met walk-in closet en aangrenzend balkon (voorheen een slaapkamer). Grote slaapkamer aan de voorzijde. Vernieuwde, moderne badkamer voorzien van douche, ligbad, toilet en vloerverwarming.
Tweede verdieping
Overloop. Twee goed bemeten slaapkamers met bergruimte. Tweede badkamer met douche en toilet.
Zolder
Praktische vliering met extra bergruimte.
Buitenruimte
De woning heeft een tuin aan drie zijden, waardoor u op ieder moment van de dag van zon en privacy kunt genieten. Daarnaast is er een separate berging.
Bijzonderheden:
- Beschikbaar per direct.
- Huur is excusief gas, elektra en waterlasten.
- Huurperiode: ongeveer 2 jaar (huurovereenkomst bepaalde tijd met een diplomatenclausule voor verhuurder). Verhuurder keert na 2 jaar terug in de woning. Na de afgesproken vaste periode van 2 jaar kunnen beide partijen de huur beëindigen. Verhuurder heeft de mogelijkheid, indien zij langer in het buitenland moet verblijven, om te verlengen. Huurder kan niet verlengen. Verlenging op initiatief van verhuurder na 2 jaar is mogelijk in overleg en met instemming van huurder.
- Ideale woning voor een (internationaal) gezin.
- Gunstige ligging t.o.v. ASH, openbaar vervoer en uitvalswegen.
Een comfortabele en complete gezinswoning op een zeer centrale en gewilde locatie in Wassenaar. Neem contact met ons op voor meer informatie of het plannen van een bezichtiging.
| ID de propriété | WR104452 |
|---|---|
| Prix demandé | € 3.700 |
| Type de maison | Villa |
| Surface habitable | 191 m² |
| Superficie du terrain | 423 m² |
| Année de construction | 1958 |
| Année de rénovation | - |
| Chambres à coucher | 4 |
| Salles de bains | 2 |
| Garages | - |
| Energielabel | F |
Welp Makelaardij Van Hogendorpstraat 16 d, 2242 KZ Wassenaar
- Téléphone:+31.070.51.11.720
- Courriel:info@welpmakelaardij.nl
- Site web:www.welpmakelaardij.nl
- Lundi - VendrediOuvert du 09.00 - 17.30
- Samedi Ouvert du 10.00 - 14.00
- Dimanche Fermé














































