Appartement a vendre a AMSTERDAM avec reference 19709048790
Prinsengracht 1033C, 1017 KP AMSTERDAM—Réf. AM102621
Prinsengracht 1033, Amsterdam
Wonen in een rijksmonument met een tuin als verrassing midden in de stad
Stap binnen in dit karaktervolle appartement van ca. 119 m², gelegen in een prachtig rijksmonumentaal pakhuis uit 1680. In de jaren ’70 werd het onder architect Edo Spier op stijlvolle wijze getransformeerd tot een exclusief wooncomplex, waarbij historische charme en modern wooncomfort samenkomen.
Wat dit appartement écht bijzonder maakt? Niet alleen de geweldige ligging in het hart van Amsterdam, maar ook de oase van rust die je vindt in de unieke, riante binnentuin — een zeldzaam groen juweel midden in de stad. Het complex beschikt bovendien over een lift, wat het woongemak vergroot.
Binnen tref je twee goed bemeten slaapkamers, perfect geschikt voor zowel comfortabel wonen als een thuiskantoor of logeerkamer. Daarnaast is er een extra praktische externe berging: ideaal voor fietsen, koffers of seizoensspullen.
Een bijzonder stukje Amsterdam waar ruimte, rust en historie samenkomen.
Indeling:
Gemeenschappelijke entree naar de voordeur van het appartement. Vanuit de hal, met een aparte wc, leidt een klein trapje naar de woonkeuken. De woonkeuken is voorzien van een kookeiland met moderne inbouwapparatuur. Grote raampartijen zorgen voor veel natuurlijk lichtinval. Daarnaast zijn er openslaande deuren die toegang bieden tot de gemeenschappelijke binnentuin.
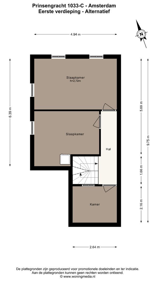
Op de eerste verdieping van het appartement bevindt zich de eerste ruime slaapkamer welke door de hoekligging veel natuurlijk licht geeft. Het uitzicht op de binnentuin is een meer dan aangenaam uitzicht.
De ramen en houten balken geven de kamer een warme en karaktervolle uitstraling. Tevens treft u op deze verdieping een tweede kamer welke de mogelijkheid geeft tot het inrichten van een werkkamer, inloopkast of tweede badkamer.
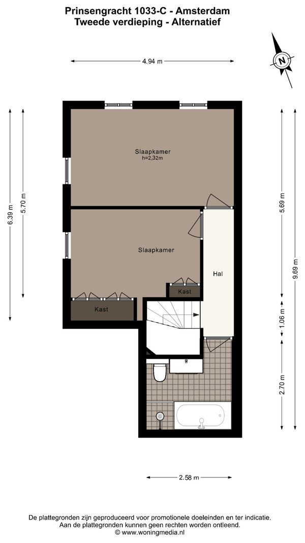
De trap naar de tweede verdieping leidt naar de tweede slaapkamer, welke voorzien is van inbouwkasten, ook hier treft u uitzicht over de groene binnentuin.
Via de overloop bereikt u de badkamer, welke uitgerust is met een toilet, een wastafel en wastafelmeubel, een ruime inloopdouche en een ligbad. De afwerking zorgt voor een luxe en elegante uitstraling.
Alternatieve indeling
Dit appartement biedt diverse flexibele indelingsmogelijkheden, waardoor het eenvoudig is om de ruimte aan te passen aan uw persoonlijke wensen. Met name op de bovenste verdiepingen is het mogelijk om op elke etage twee afzonderlijke kamers te creëren, wat extra wooncomfort en functionaliteit biedt. Voor een beter beeld van de verschillende opties verwijzen wij u graag naar de alternatieve plattegronden die wij in de presentatie hebben opgenomen.
Locatie en Bereikbaarheid
Dit appartement is gelegen op een prachtige locatie aan de beroemde Prinsengracht, tussen de Reguliersgracht en de Vijzelstraat, in het hart van Amsterdam. Hier ervaart u de rust van een charmante buurt met het gemak van de stad.
Binnen enkele minuten lopen zijn er een breed scala aan restaurants, cafés, winkels en gezellige lunchgelegenheden. Ook de Jordaan, de 9 Straatjes en het sfeervolle Amstelveld liggen vlakbij. Voor de dagelijkse boodschappen zijn er meerdere supermarkten en traiteurs in de buurt, evenals sport- en yogastudio’s voor de nodige ontspanning.
Daarnaast is het uitstekend bereikbaar. Diverse tramhaltes bevinden zich op korte afstand, en de Noord/Zuidlijn heeft een metrostation op slechts een paar stappen van het appartement, bij Vijzelgracht/Prinsengracht.
Kenmerken:
- Woonoppervlakte van 119 m² (conform NEN 2580 gemeten)
- 2 slaapkamers en werkkamer
- Gelegen aan een prachtige binnentuin in het centrum van Amsterdam
- Beschermd stads- en dorpsgezicht, Unesco World Heritage
- Rijksmonument
- VvE: Professioneel beheerd, MJOP beschikbaar
- Servicekosten: € 320,- per maand
- Voorschot Stookkosten € 200,- per maand (gas en licht)
- Geen energielabel vanwege monumentenstatus
- Flexibele indeling; verdeeld over 3 woonlagen
- Aparte berging in kelder van 4 m²
- Eigen grond
- Parkeren via vergunningstelsel
- Notariskeuze is aan koper, echter volgens het model van de Koninklijke Notariële Beroepsorganisatie en het Ringmodel koopcontract Amsterdam en op voorwaarde dat deze notaris in Amsterdam gevestigd is.
Deze informatie is door Engel & Völkers met de nodige zorgvuldigheid samengesteld. Ten aanzien van de juistheid van de vermelde informatie kan door Engel & Völkers geen aansprakelijkheid worden aanvaard, noch kan aan de vermelde informatie enig recht worden ontleend
De Meetinstructie is gebaseerd op de NEN2580. Het object is opgemeten door een professionele organisatie en eventuele discrepanties in de gegeven metingen kunnen Engel & Völkers niet worden aangerekend. Koper verklaart in de gelegenheid te zijn gesteld om een eigen NEN 2580 meting de (laten) uitvoeren.
Wonen in een rijksmonument met een tuin als verrassing midden in de stad
Stap binnen in dit karaktervolle appartement van ca. 119 m², gelegen in een prachtig rijksmonumentaal pakhuis uit 1680. In de jaren ’70 werd het onder architect Edo Spier op stijlvolle wijze getransformeerd tot een exclusief wooncomplex, waarbij historische charme en modern wooncomfort samenkomen.
Wat dit appartement écht bijzonder maakt? Niet alleen de geweldige ligging in het hart van Amsterdam, maar ook de oase van rust die je vindt in de unieke, riante binnentuin — een zeldzaam groen juweel midden in de stad. Het complex beschikt bovendien over een lift, wat het woongemak vergroot.
Binnen tref je twee goed bemeten slaapkamers, perfect geschikt voor zowel comfortabel wonen als een thuiskantoor of logeerkamer. Daarnaast is er een extra praktische externe berging: ideaal voor fietsen, koffers of seizoensspullen.
Een bijzonder stukje Amsterdam waar ruimte, rust en historie samenkomen.
Indeling:
Gemeenschappelijke entree naar de voordeur van het appartement. Vanuit de hal, met een aparte wc, leidt een klein trapje naar de woonkeuken. De woonkeuken is voorzien van een kookeiland met moderne inbouwapparatuur. Grote raampartijen zorgen voor veel natuurlijk lichtinval. Daarnaast zijn er openslaande deuren die toegang bieden tot de gemeenschappelijke binnentuin.
Op de eerste verdieping van het appartement bevindt zich de eerste ruime slaapkamer welke door de hoekligging veel natuurlijk licht geeft. Het uitzicht op de binnentuin is een meer dan aangenaam uitzicht.
De ramen en houten balken geven de kamer een warme en karaktervolle uitstraling. Tevens treft u op deze verdieping een tweede kamer welke de mogelijkheid geeft tot het inrichten van een werkkamer, inloopkast of tweede badkamer.
De trap naar de tweede verdieping leidt naar de tweede slaapkamer, welke voorzien is van inbouwkasten, ook hier treft u uitzicht over de groene binnentuin.
Via de overloop bereikt u de badkamer, welke uitgerust is met een toilet, een wastafel en wastafelmeubel, een ruime inloopdouche en een ligbad. De afwerking zorgt voor een luxe en elegante uitstraling.
Alternatieve indeling
Dit appartement biedt diverse flexibele indelingsmogelijkheden, waardoor het eenvoudig is om de ruimte aan te passen aan uw persoonlijke wensen. Met name op de bovenste verdiepingen is het mogelijk om op elke etage twee afzonderlijke kamers te creëren, wat extra wooncomfort en functionaliteit biedt. Voor een beter beeld van de verschillende opties verwijzen wij u graag naar de alternatieve plattegronden die wij in de presentatie hebben opgenomen.
Locatie en Bereikbaarheid
Dit appartement is gelegen op een prachtige locatie aan de beroemde Prinsengracht, tussen de Reguliersgracht en de Vijzelstraat, in het hart van Amsterdam. Hier ervaart u de rust van een charmante buurt met het gemak van de stad.
Binnen enkele minuten lopen zijn er een breed scala aan restaurants, cafés, winkels en gezellige lunchgelegenheden. Ook de Jordaan, de 9 Straatjes en het sfeervolle Amstelveld liggen vlakbij. Voor de dagelijkse boodschappen zijn er meerdere supermarkten en traiteurs in de buurt, evenals sport- en yogastudio’s voor de nodige ontspanning.
Daarnaast is het uitstekend bereikbaar. Diverse tramhaltes bevinden zich op korte afstand, en de Noord/Zuidlijn heeft een metrostation op slechts een paar stappen van het appartement, bij Vijzelgracht/Prinsengracht.
Kenmerken:
- Woonoppervlakte van 119 m² (conform NEN 2580 gemeten)
- 2 slaapkamers en werkkamer
- Gelegen aan een prachtige binnentuin in het centrum van Amsterdam
- Beschermd stads- en dorpsgezicht, Unesco World Heritage
- Rijksmonument
- VvE: Professioneel beheerd, MJOP beschikbaar
- Servicekosten: € 320,- per maand
- Voorschot Stookkosten € 200,- per maand (gas en licht)
- Geen energielabel vanwege monumentenstatus
- Flexibele indeling; verdeeld over 3 woonlagen
- Aparte berging in kelder van 4 m²
- Eigen grond
- Parkeren via vergunningstelsel
- Notariskeuze is aan koper, echter volgens het model van de Koninklijke Notariële Beroepsorganisatie en het Ringmodel koopcontract Amsterdam en op voorwaarde dat deze notaris in Amsterdam gevestigd is.
Deze informatie is door Engel & Völkers met de nodige zorgvuldigheid samengesteld. Ten aanzien van de juistheid van de vermelde informatie kan door Engel & Völkers geen aansprakelijkheid worden aanvaard, noch kan aan de vermelde informatie enig recht worden ontleend
De Meetinstructie is gebaseerd op de NEN2580. Het object is opgemeten door een professionele organisatie en eventuele discrepanties in de gegeven metingen kunnen Engel & Völkers niet worden aangerekend. Koper verklaart in de gelegenheid te zijn gesteld om een eigen NEN 2580 meting de (laten) uitvoeren.
| ID de propriété | AM102621 |
|---|---|
| Prix demandé | € 1.300.000 k.k. |
| Type de maison | Appartement |
| Surface habitable | 119 m² |
| Superficie du terrain | - |
| Année de construction | 1680 |
| Année de rénovation | - |
| Chambres à coucher | 2 |
| Salles de bains | 1 |
| Garages | - |
| Energielabel | - |
Engel & Völkers Amsterdam Willemsparkweg 89, 1071 GT Amsterdam
- Téléphone:+31.20.716.24.18
- Courriel:amsterdamzuid@engelvoelkers.com
- Site web:www.engelvoelkers.com/en-nl/netherlands
- Lundi - VendrediOuvert du 08.30 - 17.30
- Samedi Sur rendez-vous
- Dimanche Fermé



































