Villa a vendre a BLARICUM avec reference 19709054961
Enghlaan 10, 1261 CC BLARICUM—Réf. LN101145
Het realiseren van uw eigen droomvilla, het is hier mogelijk…
Sinds 1936 is ons makelaarskantoor aan het Gooi verbonden, het is echter zelden dat wij een villa annex bouwkavel van ruim 9.000 m2 mogen aanbieden in één van de parels van het Gooi: het pittoreske Blaricum.
Aan een van de meest begeerde lanen van Blaricum, in het hart van de Gouden Driehoek, bieden wij met trots deze exclusieve bouwkavel aan, gelegen aan de Enghlaan 10. Een buitenkans voor wie droomt van het realiseren van een eigen droomvilla op een unieke locatie, of iemand die het bestaande woonhuis geheel aanpast aan de eisen van deze tijd.
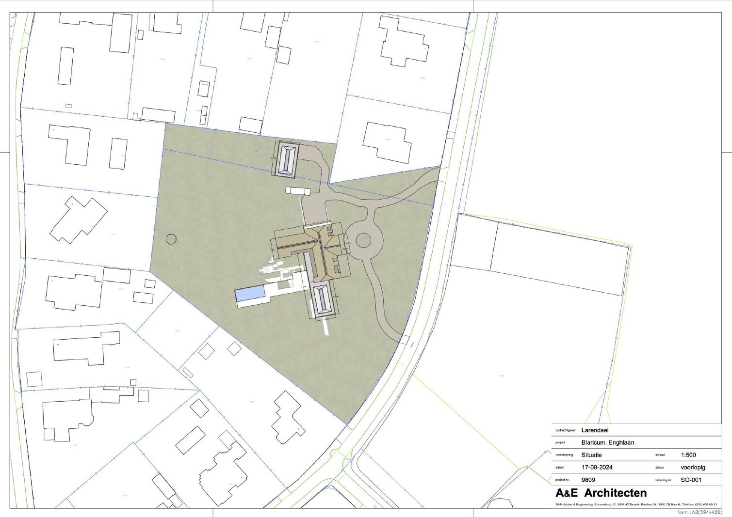
Deze royale kavel van ruim 9.000 m2 beschikt over een bouwvlek waar maar liefst 483 m² als footprint mag worden gebouwd, inclusief de bijgebouwen. Dit biedt u alle vrijheid om een stijlvol en ruim familiehuis te ontwerpen, volledig naar eigen inzicht, uiteraard binnen de geldende richtlijnen. Denk aan riante leefruimtes, luxe woonkeuken, wellness, of een prachtige tuin met zwembad: hier is het allemaal mogelijk!
Wat maakt deze locatie zo bijzonder?
• Ongekend vrij uitzicht over de voorgelegen Blaricumse Engh, oftewel, kijk zover het oog reikt.
• Rust en privacy, omringd door natuur en exclusieve villabebouwing.
• Toch op loopafstand van het levendige dorpshart van Blaricum, met culinaire hotspots als IJssalon De Hoop, Red Sun
en het karakteristieke Moeke Spijkstra. Aan de andere kant bent u ook zo op de hoofdweg om bijvoorbeeld richting
Amsterdam te rijden.
Een zeldzaam aanbod in een omgeving waar opportunity’s als deze schaars zijn. De perfecte balans tussen rust, ruimte en reuring. Hier bouwt u niet zomaar een huis, maar een toekomst, in het mooiste stukje Nederland.
Kortom een unieke kans om op een van de mooiste plekken van het toch al zo betoverend mooie Gooi uw eigen meesterwerk te realiseren.
Voor nadere informatie kunt u contact opnemen met Jacques E. Walch, NVM Register Makelaar of met Bart H.A.M. Lammerts, NVM Makelaar. Nog beter is om uw eigen NVM aankoopmakelaar mee te nemen.
Sinds 1936 is ons makelaarskantoor aan het Gooi verbonden, het is echter zelden dat wij een villa annex bouwkavel van ruim 9.000 m2 mogen aanbieden in één van de parels van het Gooi: het pittoreske Blaricum.
Aan een van de meest begeerde lanen van Blaricum, in het hart van de Gouden Driehoek, bieden wij met trots deze exclusieve bouwkavel aan, gelegen aan de Enghlaan 10. Een buitenkans voor wie droomt van het realiseren van een eigen droomvilla op een unieke locatie, of iemand die het bestaande woonhuis geheel aanpast aan de eisen van deze tijd.
Deze royale kavel van ruim 9.000 m2 beschikt over een bouwvlek waar maar liefst 483 m² als footprint mag worden gebouwd, inclusief de bijgebouwen. Dit biedt u alle vrijheid om een stijlvol en ruim familiehuis te ontwerpen, volledig naar eigen inzicht, uiteraard binnen de geldende richtlijnen. Denk aan riante leefruimtes, luxe woonkeuken, wellness, of een prachtige tuin met zwembad: hier is het allemaal mogelijk!
Wat maakt deze locatie zo bijzonder?
• Ongekend vrij uitzicht over de voorgelegen Blaricumse Engh, oftewel, kijk zover het oog reikt.
• Rust en privacy, omringd door natuur en exclusieve villabebouwing.
• Toch op loopafstand van het levendige dorpshart van Blaricum, met culinaire hotspots als IJssalon De Hoop, Red Sun
en het karakteristieke Moeke Spijkstra. Aan de andere kant bent u ook zo op de hoofdweg om bijvoorbeeld richting
Amsterdam te rijden.
Een zeldzaam aanbod in een omgeving waar opportunity’s als deze schaars zijn. De perfecte balans tussen rust, ruimte en reuring. Hier bouwt u niet zomaar een huis, maar een toekomst, in het mooiste stukje Nederland.
Kortom een unieke kans om op een van de mooiste plekken van het toch al zo betoverend mooie Gooi uw eigen meesterwerk te realiseren.
Voor nadere informatie kunt u contact opnemen met Jacques E. Walch, NVM Register Makelaar of met Bart H.A.M. Lammerts, NVM Makelaar. Nog beter is om uw eigen NVM aankoopmakelaar mee te nemen.
| ID de propriété | LN101145 |
|---|---|
| Prix demandé | € 7.875.000 k.k. |
| Type de maison | Villa |
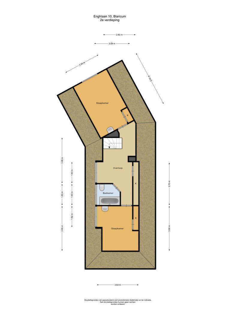
| Surface habitable | 547 m² |
| Superficie du terrain | 9.138 m² |
| Année de construction | 1938 |
| Année de rénovation | - |
| Chambres à coucher | 7 |
| Salles de bains | 4 |
| Garages | 1 |
| Energielabel | - |
Voorma en Walch Laren Brink 34, 1251 KW Laren
- Téléphone:+31.35.539.90.80
- Courriel:laren@voorma-walch.nl
- Site web:voorma-walch.nl
- Lundi - VendrediOuvert du 08.30 - 17.30
- Samedi Ouvert du 10.00 - 16.00
- Dimanche Fermé
Agence



































