Villa a vendre a HUIZEN avec reference 19911908536
Händellaan 13, 1272 EE HUIZEN—Réf. HN103652
Vrijheid, rust en natuur op een unieke plek in de Sijsjesberg.
Op een werkelijk fantastische locatie in de geliefde wijk Sijsjesberg ligt deze helft van een dubbel woonhuis met eigen oprit, zonnige tuin op het zuiden en volop uitbreidingsmogelijkheden. Een heerlijk licht gezinshuis op een plek waar rust, groen en voorzieningen perfect samenkomen.
De ligging is uitzonderlijk: binnen enkele minuten loop je zo de natuur in, met onder andere de Sijsjesberg, Limitische Heide, Tafelberg, Naardereng, het Gooimeer en het Crailose Bos binnen handbereik. Tegelijkertijd liggen scholen, sportfaciliteiten, het openluchtzwembad en de oude dorpskern allemaal dichtbij.
De woning ligt in een bijzonder rustige straat waar nauwelijks verkeer of geparkeerde auto’s zijn. Kinderen kunnen hier nog veilig buiten spelen en buren kennen elkaar en staan voor elkaar klaar. Een fijne, sociale woonomgeving waar je je direct thuis zult voelen.
Binnen valt direct het overvloedige daglicht op. Dankzij de grote raampartijen en de gunstige ligging is het een heerlijk licht huis, met een prettige sfeer in alle vertrekken.
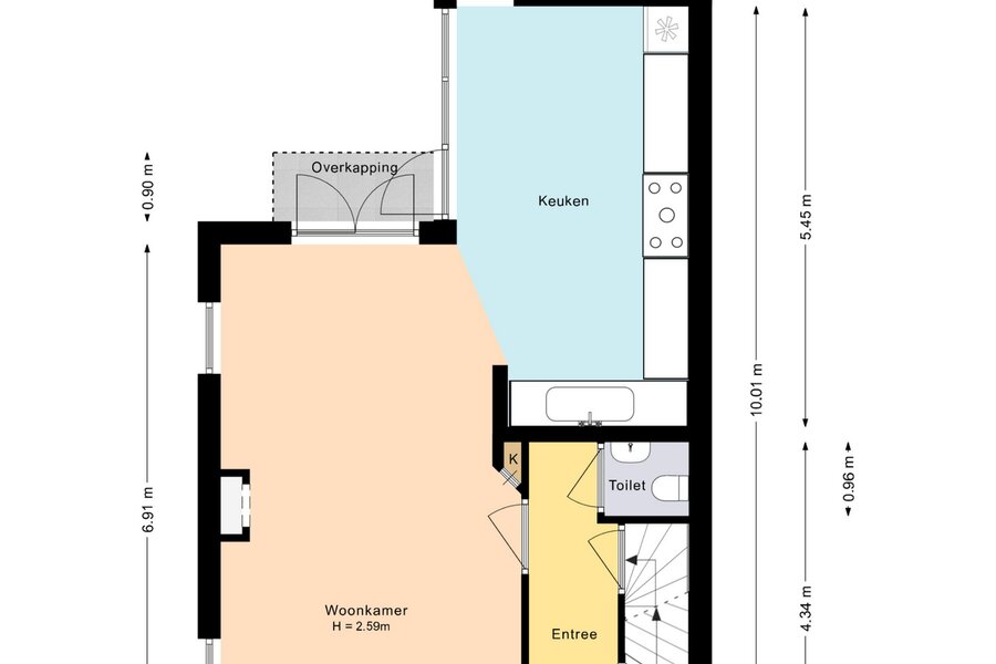
Indeling
Begane grond:
Via de entree met hal, toilet en meterkast kom je in de lichte woonkamer met uitzicht op de tuin. De keuken bevindt zich aan de achterzijde en is modern uitgevoerd met onder andere een kookfornuis, koelkast, vaatwasser, afzuigkap, dubbele spoelbak en Quooker. Vanuit de keuken heb je toegang tot de zonnige achtertuin.
Eerste verdieping:
De eerste verdieping beschikt over drie goed bemeten slaapkamers en een nette badkamer. De slaapkamer aan de achterzijde heeft toegang tot een balkon.
Tweede verdieping:
De zolderverdieping is voorzien van een dakkapel en biedt een volwaardige vierde slaapkamer met veel bergruimte.
Kelder en berging:
Daarnaast is er een praktische kelder aanwezig en beschikt de woning over veel extra bergruimte.
Buitenleven met karakter:
De zonnige achtertuin op het zuiden is een absolute eyecatcher. Hier geniet je van privacy, rust en een groene, bijna sprookjesachtige setting. De tuin is rijk beplant met volwassen bomen en struiken, waaronder een prachtige krentenboom, een rijkbloeiende rododendron en een druivenboom die volop druiven geeft. De oude beukenhaag met organische vormen en natuurlijke poort zorgt voor een uniek en sfeervol geheel.
Met een perceel van maar liefst 337 m² biedt de tuin bovendien volop ruimte om te leven, spelen en ontspannen.
Instapklaar én vol potentie:
De woning is netjes onderhouden en direct te betrekken, maar biedt tegelijkertijd uitstekende mogelijkheden om uit te bouwen en naar eigen wens te moderniseren. Er zijn reeds twee uitgewerkte uitbreidingsplannen beschikbaar, wat deze woning bijzonder interessant maakt voor de toekomst.
Ligging:
De ligging aan de rand van Huizen zorgt voor een ideale combinatie van rust en bereikbaarheid. Binnen enkele minuten bereik je de uitvalswegen richting Amsterdam. Op loopafstand bevinden zich meerdere goede basisscholen, waaronder de Dr. Maria Montessorischool, de Flevoschool en de Beatrixschool.
Ook sportliefhebbers zitten hier perfect: zwemmen, tennis, hockey, voetbal en meer liggen allemaal binnen handbereik.
Bijzonderheden:
- Bouwjaar 1956
- Woonoppervlakte ca. 108 m²
- Perceeloppervlakte 337 m²
- Energielabel D
- Moderne keuken met complete inbouwapparatuur
- 4 slaapkamers
- Kelder en veel bergruimte
- Oprit met ruimte voor twee auto’s
- Zonnige tuin op het zuiden
- Zeer rustige en kindvriendelijke straat
- Direct nabij natuur, scholen en sportvoorzieningen
- Uitstekende uitbouwmogelijkheden (plannen aanwezig)
Voor een bezichtiging kun je contact opnemen met de makelaar Mitch Eriks, of nog beter met je eigen NVM aankoopmakelaar.
Op een werkelijk fantastische locatie in de geliefde wijk Sijsjesberg ligt deze helft van een dubbel woonhuis met eigen oprit, zonnige tuin op het zuiden en volop uitbreidingsmogelijkheden. Een heerlijk licht gezinshuis op een plek waar rust, groen en voorzieningen perfect samenkomen.
De ligging is uitzonderlijk: binnen enkele minuten loop je zo de natuur in, met onder andere de Sijsjesberg, Limitische Heide, Tafelberg, Naardereng, het Gooimeer en het Crailose Bos binnen handbereik. Tegelijkertijd liggen scholen, sportfaciliteiten, het openluchtzwembad en de oude dorpskern allemaal dichtbij.
De woning ligt in een bijzonder rustige straat waar nauwelijks verkeer of geparkeerde auto’s zijn. Kinderen kunnen hier nog veilig buiten spelen en buren kennen elkaar en staan voor elkaar klaar. Een fijne, sociale woonomgeving waar je je direct thuis zult voelen.
Binnen valt direct het overvloedige daglicht op. Dankzij de grote raampartijen en de gunstige ligging is het een heerlijk licht huis, met een prettige sfeer in alle vertrekken.
Indeling
Begane grond:
Via de entree met hal, toilet en meterkast kom je in de lichte woonkamer met uitzicht op de tuin. De keuken bevindt zich aan de achterzijde en is modern uitgevoerd met onder andere een kookfornuis, koelkast, vaatwasser, afzuigkap, dubbele spoelbak en Quooker. Vanuit de keuken heb je toegang tot de zonnige achtertuin.
Eerste verdieping:
De eerste verdieping beschikt over drie goed bemeten slaapkamers en een nette badkamer. De slaapkamer aan de achterzijde heeft toegang tot een balkon.
Tweede verdieping:
De zolderverdieping is voorzien van een dakkapel en biedt een volwaardige vierde slaapkamer met veel bergruimte.
Kelder en berging:
Daarnaast is er een praktische kelder aanwezig en beschikt de woning over veel extra bergruimte.
Buitenleven met karakter:
De zonnige achtertuin op het zuiden is een absolute eyecatcher. Hier geniet je van privacy, rust en een groene, bijna sprookjesachtige setting. De tuin is rijk beplant met volwassen bomen en struiken, waaronder een prachtige krentenboom, een rijkbloeiende rododendron en een druivenboom die volop druiven geeft. De oude beukenhaag met organische vormen en natuurlijke poort zorgt voor een uniek en sfeervol geheel.
Met een perceel van maar liefst 337 m² biedt de tuin bovendien volop ruimte om te leven, spelen en ontspannen.
Instapklaar én vol potentie:
De woning is netjes onderhouden en direct te betrekken, maar biedt tegelijkertijd uitstekende mogelijkheden om uit te bouwen en naar eigen wens te moderniseren. Er zijn reeds twee uitgewerkte uitbreidingsplannen beschikbaar, wat deze woning bijzonder interessant maakt voor de toekomst.
Ligging:
De ligging aan de rand van Huizen zorgt voor een ideale combinatie van rust en bereikbaarheid. Binnen enkele minuten bereik je de uitvalswegen richting Amsterdam. Op loopafstand bevinden zich meerdere goede basisscholen, waaronder de Dr. Maria Montessorischool, de Flevoschool en de Beatrixschool.
Ook sportliefhebbers zitten hier perfect: zwemmen, tennis, hockey, voetbal en meer liggen allemaal binnen handbereik.
Bijzonderheden:
- Bouwjaar 1956
- Woonoppervlakte ca. 108 m²
- Perceeloppervlakte 337 m²
- Energielabel D
- Moderne keuken met complete inbouwapparatuur
- 4 slaapkamers
- Kelder en veel bergruimte
- Oprit met ruimte voor twee auto’s
- Zonnige tuin op het zuiden
- Zeer rustige en kindvriendelijke straat
- Direct nabij natuur, scholen en sportvoorzieningen
- Uitstekende uitbouwmogelijkheden (plannen aanwezig)
Voor een bezichtiging kun je contact opnemen met de makelaar Mitch Eriks, of nog beter met je eigen NVM aankoopmakelaar.
| ID de propriété | HN103652 |
|---|---|
| Prix demandé | € 825.000 k.k. |
| Type de maison | Villa |
| Surface habitable | 108 m² |
| Superficie du terrain | 337 m² |
| Année de construction | 1956 |
| Année de rénovation | - |
| Chambres à coucher | 4 |
| Salles de bains | 1 |
| Garages | - |
| Energielabel | D |
Voorma en Walch Huizen Piste de ceinture 22, 1271 BJ Huizen
- Téléphone:+31.35.525.31.35
- Courriel:huizen@voorma-walch.nl
- Site web:www.voorma-walch.nl
- Lundi - VendrediOuvert du 08.30 - 17.30
- Samedi - DimancheFermé
























































