Appartement a vendre a AMSTERDAM avec reference 19310593511
Patroclosstraat 162, 1076 NG AMSTERDAM—Réf. AM14702
Dubbel bovenhuis met eigen opgang die geheel naar eigen smaak te verbouwen is tot een top appartement op een uitstekende locatie in Zuid, in de Stadionbuurt.
Het appartement heeft een totale oppervlakte van 111 m2 en is verdeeld over de tweede en derde verdieping. Het beschikt over een balkon en dakterras en geeft diverse mogelijkheden in renovatie. Uitstekend gelegen, tussen het Olympiaplein en het Tuyll van Serooskerkenplein en direct achter de Parnassusweg, een ruime allee die het Olympiaplein verbindt met Buitenveldert (Zuid-as). Op loopafstand van winkels (waaronder die heerlijke bakker Le Fournil of het diverse aanbod van Marqt), horeca met onder andere Spaghetteria en meer aanbod aan de Marathonweg, openbaar vervoer en de ring A10; wat is dit toch een mooi stukje Amsterdam!
Het appartement behoeft intern een renovatie waarbij dit de kans is uw droompaleis te realiseren.
De indeling van het appartement is als volgt;
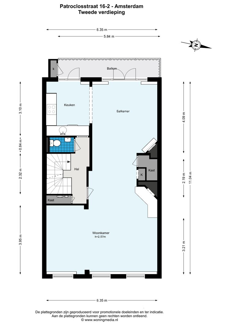
Opgang naar een bordes op de eerste verdieping. Eigen entree met trap naar de tweede verdieping. Overloop met trapkast en separaat toilet. De ruime L-vormige woonkamer is aan de straatzijde gelegen, is voorzien van een open haard en loopt door aan de achterzijde in de open keuken. Middels openslaande deuren alsmede een separate deur in de keuken is er toegang tot een balkon over de gehele breedte die op het westen gelegen is.
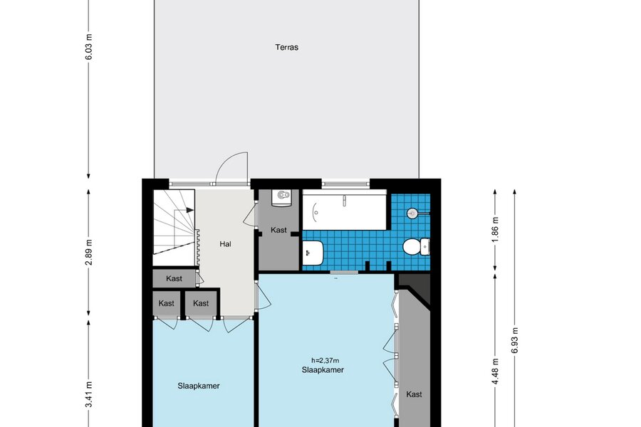
Middels een interne trap komt u op derde verdieping. Hier bevinden zich twee slaapkamers waarvan de hoofdslaapkamer voorzien is van vaste kasten en toegang geeft tot de badkamer. Thans is die voorzien van een ligbad, douche, toilet en wastafel. Vanaf de overloop heeft u toegang tot een ruim dakterras.
Het appartement is gelegen op erfpachtgrond van de gemeente Amsterdam. Er is reeds overgestapt op de Algemene Bepalingen voor Eeuwigdurende erfpacht 2016 van de gemeente Amsterdam met een vastgeklikte canon. De huidige jaarcanon van het lopende tijdvak bedraagt € 885,58. Daarnaast maakt het appartement onderdeel uit van een overzichtelijke en professioneel geadministreerde (Delair Vastgoedbeheer) vereniging van eigenaars. De maandelijkse servicekosten bedragen € 159,08.
Bijzonderheden;
- Nabij de Zuid-as gelegen;
- Eigen opgang met diverse mogelijkheden tot verbouwen;
- Woonoppervlakte: 111 m2;
- Rijksbeschermd stadsgezicht;
- Balkon en dakterras;
- Vaste notaris;
- Professioneel (Delair Vastgoedbeheer) geadministreerde VvE, maandelijkse servicekosten € 159,08;
- Verkoper heeft de woning feitelijk zelf nooit bewoond. Gebruikelijke clausules zullen worden opgenomen waaronder tevens begrepen de ouderdomsclausule alsmede de niet bewoningclausule.
Het appartement heeft een totale oppervlakte van 111 m2 en is verdeeld over de tweede en derde verdieping. Het beschikt over een balkon en dakterras en geeft diverse mogelijkheden in renovatie. Uitstekend gelegen, tussen het Olympiaplein en het Tuyll van Serooskerkenplein en direct achter de Parnassusweg, een ruime allee die het Olympiaplein verbindt met Buitenveldert (Zuid-as). Op loopafstand van winkels (waaronder die heerlijke bakker Le Fournil of het diverse aanbod van Marqt), horeca met onder andere Spaghetteria en meer aanbod aan de Marathonweg, openbaar vervoer en de ring A10; wat is dit toch een mooi stukje Amsterdam!
Het appartement behoeft intern een renovatie waarbij dit de kans is uw droompaleis te realiseren.
De indeling van het appartement is als volgt;
Opgang naar een bordes op de eerste verdieping. Eigen entree met trap naar de tweede verdieping. Overloop met trapkast en separaat toilet. De ruime L-vormige woonkamer is aan de straatzijde gelegen, is voorzien van een open haard en loopt door aan de achterzijde in de open keuken. Middels openslaande deuren alsmede een separate deur in de keuken is er toegang tot een balkon over de gehele breedte die op het westen gelegen is.
Middels een interne trap komt u op derde verdieping. Hier bevinden zich twee slaapkamers waarvan de hoofdslaapkamer voorzien is van vaste kasten en toegang geeft tot de badkamer. Thans is die voorzien van een ligbad, douche, toilet en wastafel. Vanaf de overloop heeft u toegang tot een ruim dakterras.
Het appartement is gelegen op erfpachtgrond van de gemeente Amsterdam. Er is reeds overgestapt op de Algemene Bepalingen voor Eeuwigdurende erfpacht 2016 van de gemeente Amsterdam met een vastgeklikte canon. De huidige jaarcanon van het lopende tijdvak bedraagt € 885,58. Daarnaast maakt het appartement onderdeel uit van een overzichtelijke en professioneel geadministreerde (Delair Vastgoedbeheer) vereniging van eigenaars. De maandelijkse servicekosten bedragen € 159,08.
Bijzonderheden;
- Nabij de Zuid-as gelegen;
- Eigen opgang met diverse mogelijkheden tot verbouwen;
- Woonoppervlakte: 111 m2;
- Rijksbeschermd stadsgezicht;
- Balkon en dakterras;
- Vaste notaris;
- Professioneel (Delair Vastgoedbeheer) geadministreerde VvE, maandelijkse servicekosten € 159,08;
- Verkoper heeft de woning feitelijk zelf nooit bewoond. Gebruikelijke clausules zullen worden opgenomen waaronder tevens begrepen de ouderdomsclausule alsmede de niet bewoningclausule.
| ID de propriété | AM14702 |
|---|---|
| Prix demandé | € 850.000 k.k. |
| Type de maison | Appartement |
| Surface habitable | 111 m² |
| Superficie du terrain | - |
| Année de construction | 1931 |
| Année de rénovation | - |
| Chambres à coucher | 2 |
| Salles de bains | 1 |
| Garages | - |
| Energielabel | - |
Mar J. Heule Makelaardij De Lairessestraat 16, 1071 PA Amsterdam
- Téléphone:+31.20.676.66.33
- Courriel:info@heulemakelaars.nl
- Site web:www.heulemakelaars.nl
- Lundi - JeudiOuvert du 08.30 - 17.00
- Vendredi Ouvert du 08.30 - 16.00
- Samedi - DimancheFermé




































