Villa a vendre a HUIZEN avec reference 19408605493
Sijtjespad 1, 1272 PR HUIZEN—Réf. LN101838
In het prachtige natuurgebied ligt - direct naast het Sijsjesbergbos - op een perceel van circa 10.000 m² het rietgedekte landhuis met garage en berging met overkapping. In alle rust en stilte…
Dit landhuis, nieuw gebouwd in 2016, is oprecht een echt familiehuis.
Door de bewuste keuze om geen wasted space te hebben én door de diverse woonfuncties onderling ook nog eens logisch met elkaar te laten communiceren, houdt dit huis uw gezin – zoals de eigenaar zegt – ‘op een organische manier bij elkaar’. Ja, je kunt je ergens terugtrekken, maar er is vooral ook verbinding. ‘Overdag trekt iedereen eigenlijk richting de keuken en eetkamer, terwijl we ’s avonds naar de andere kant verhuizen. ’ Het warme, persoonlijke karakter van dit huis blijkt niet alleen uit de lay-out, maar ook uit de gekozen materialen: hier is niks ‘standaard’. Mogen wij u even wijzen op de kozijnen? Massief mahonie. Deurlijsten in de entree? Marmer. Die trap, die zich als een lint van hout, glas en staal omhoog wikkelt door de verdiepingen? Ieder detail in de afwerking opnoemen gaat hier te ver, maar neemt u van ons aan: dit huis kent haast zijn gelijke niet. Uiteraard zit het met de technische snufjes ook helemaal goed: een muziekinstallatie is mogelijk door het gehele huis, er zijn ruim voldoende televisie aansluitingen en met een domotica-installatie bedient u de lichtsettings. Alle technische installaties hebben verdeelinrichtingen op elke verdieping, zodat u overal gemakkelijk bij kunt.
Het pand staat op een werkelijk prachtig perceel, compleet omgeven door natuurreservaten. De eigenaar vertelt: ‘Ik heb eindeloos gezocht naar een plek waar je het gevoel hebt dat je buiten woont, maar waar toch alle actie direct om je heen te vinden is. De kinderen hoeven bijvoorbeeld niet door het bos naar de basisschool te fietsen. Als je rechts de uitrit uitrijdt en weer rechts gaat, rijd je de berg af en ben je in Huizen zelf. Laren, Blaricum, Bussum en Naarden Vesting liggen binnen hand bereik en hebben uitstekend voortgezet onderwijs voor de kids en gezellige kroegjes en restaurants voor de ouders.
In de stijlvolle garage mét brug kunt u drie auto’s kwijt. U kunt dus naar alle hartenlust sleutelen aan uw bolide. Op de verdieping kunt u desgewenst auto-onderdelen opslaan of u gebruikt deze als hobbykamer.
U hebt geen inkijk vanaf de straat. Niemand ziet u hier wonen. Sterker nog, u zult regelmatig uit moeten leggen waar u precies te vinden bent. Wie de ingang gevonden heeft, heeft nog een oprijlaan van zo’n 150 meter te gaan voor hij bij de voordeur is – dus ‘privacy’ heeft u hier in overvloed – maar rijdt dan wel door een prachtig park waar de nieuwe aanplant is gekozen uit de soorten die aansluiten bij de natuur op het perceel en eromheen, denk aan imposante beuken, eiken, berken, vliegdennen, lariksen en taxussen.
Gelegen ongelooflijk dichtbij het Gooimeer – hetgeen heerlijk is voor de watersporters onder u – en ook al zo dichtbij Utrecht, Amersfoort en Amsterdam... ze zijn allemaal prima aan te rijden. Rust, maar met de stadse reuring vlakbij: ‘the best of both worlds.
N.B. Binnen de bouwvlek van het landhuis zijn nog ruime uitbouwingsmogelijkheden aanwezig.
Oplevering in overleg.
Onder voorbehoud gunning eigenaar.
Voor nadere informatie inzake deze bijzondere en spectaculaire villa, kunt u contact opnemen met Jacques E. Walch en/of Bart Lammerts, Makelaars van ons makelaarskantoor Laren en Blaricum. Nog beter is om uw eigen NVM Aankoopmakelaar mee te nemen.
Dit landhuis, nieuw gebouwd in 2016, is oprecht een echt familiehuis.
Door de bewuste keuze om geen wasted space te hebben én door de diverse woonfuncties onderling ook nog eens logisch met elkaar te laten communiceren, houdt dit huis uw gezin – zoals de eigenaar zegt – ‘op een organische manier bij elkaar’. Ja, je kunt je ergens terugtrekken, maar er is vooral ook verbinding. ‘Overdag trekt iedereen eigenlijk richting de keuken en eetkamer, terwijl we ’s avonds naar de andere kant verhuizen. ’ Het warme, persoonlijke karakter van dit huis blijkt niet alleen uit de lay-out, maar ook uit de gekozen materialen: hier is niks ‘standaard’. Mogen wij u even wijzen op de kozijnen? Massief mahonie. Deurlijsten in de entree? Marmer. Die trap, die zich als een lint van hout, glas en staal omhoog wikkelt door de verdiepingen? Ieder detail in de afwerking opnoemen gaat hier te ver, maar neemt u van ons aan: dit huis kent haast zijn gelijke niet. Uiteraard zit het met de technische snufjes ook helemaal goed: een muziekinstallatie is mogelijk door het gehele huis, er zijn ruim voldoende televisie aansluitingen en met een domotica-installatie bedient u de lichtsettings. Alle technische installaties hebben verdeelinrichtingen op elke verdieping, zodat u overal gemakkelijk bij kunt.
Het pand staat op een werkelijk prachtig perceel, compleet omgeven door natuurreservaten. De eigenaar vertelt: ‘Ik heb eindeloos gezocht naar een plek waar je het gevoel hebt dat je buiten woont, maar waar toch alle actie direct om je heen te vinden is. De kinderen hoeven bijvoorbeeld niet door het bos naar de basisschool te fietsen. Als je rechts de uitrit uitrijdt en weer rechts gaat, rijd je de berg af en ben je in Huizen zelf. Laren, Blaricum, Bussum en Naarden Vesting liggen binnen hand bereik en hebben uitstekend voortgezet onderwijs voor de kids en gezellige kroegjes en restaurants voor de ouders.
In de stijlvolle garage mét brug kunt u drie auto’s kwijt. U kunt dus naar alle hartenlust sleutelen aan uw bolide. Op de verdieping kunt u desgewenst auto-onderdelen opslaan of u gebruikt deze als hobbykamer.
U hebt geen inkijk vanaf de straat. Niemand ziet u hier wonen. Sterker nog, u zult regelmatig uit moeten leggen waar u precies te vinden bent. Wie de ingang gevonden heeft, heeft nog een oprijlaan van zo’n 150 meter te gaan voor hij bij de voordeur is – dus ‘privacy’ heeft u hier in overvloed – maar rijdt dan wel door een prachtig park waar de nieuwe aanplant is gekozen uit de soorten die aansluiten bij de natuur op het perceel en eromheen, denk aan imposante beuken, eiken, berken, vliegdennen, lariksen en taxussen.
Gelegen ongelooflijk dichtbij het Gooimeer – hetgeen heerlijk is voor de watersporters onder u – en ook al zo dichtbij Utrecht, Amersfoort en Amsterdam... ze zijn allemaal prima aan te rijden. Rust, maar met de stadse reuring vlakbij: ‘the best of both worlds.
N.B. Binnen de bouwvlek van het landhuis zijn nog ruime uitbouwingsmogelijkheden aanwezig.
Oplevering in overleg.
Onder voorbehoud gunning eigenaar.
Voor nadere informatie inzake deze bijzondere en spectaculaire villa, kunt u contact opnemen met Jacques E. Walch en/of Bart Lammerts, Makelaars van ons makelaarskantoor Laren en Blaricum. Nog beter is om uw eigen NVM Aankoopmakelaar mee te nemen.
| ID de propriété | LN101838 |
|---|---|
| Prix demandé | € 4.950.000 k.k. |
| Type de maison | Villa |
| Surface habitable | 485 m² |
| Superficie du terrain | 10.396 m² |
| Année de construction | 2016 |
| Année de rénovation | - |
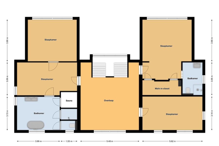
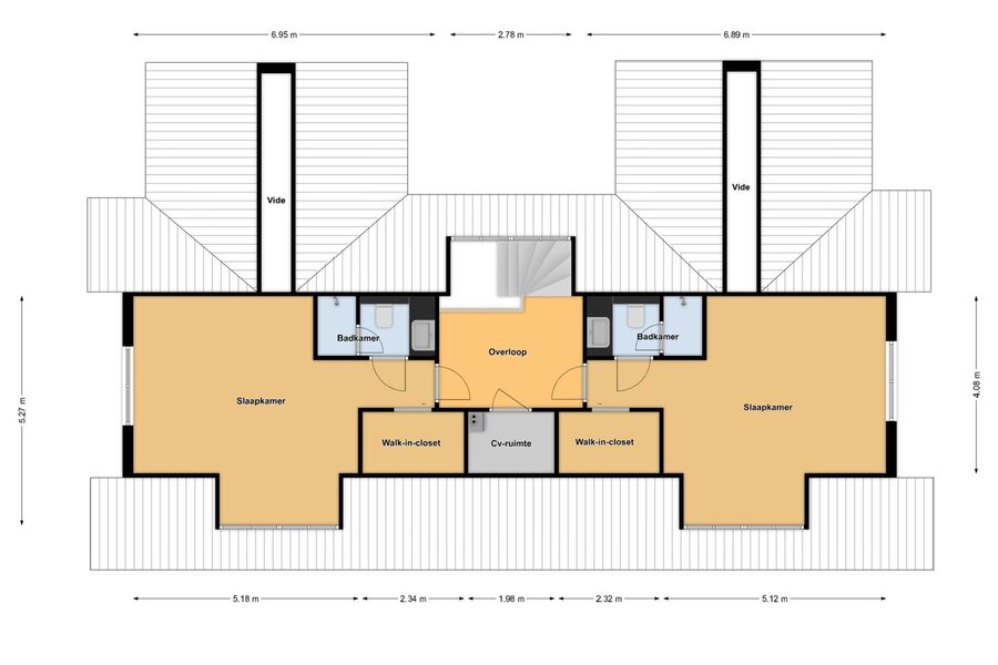
| Chambres à coucher | 4 |
| Salles de bains | 4 |
| Garages | 1 |
| Energielabel | A |
Voorma en Walch Laren Brink 34, 1251 KW Laren
- Téléphone:+31.35.539.90.80
- Courriel:laren@voorma-walch.nl
- Site web:voorma-walch.nl
- Lundi - VendrediOuvert du 08.30 - 17.30
- Samedi Ouvert du 10.00 - 16.00
- Dimanche Fermé

























