Appartement a vendre a ROTTERDAM avec reference 19508886959
Calandstraat 47E, 3016 CA ROTTERDAM—Réf. RM110547
Op zoek naar een luxe, gloednieuwe woning in een betoverende Rotterdamse wijk? Het transformatieproject The Caland is opgeleverd, dat betekent dat je direct kunt intrekken in een gloednieuwe, stijlvolle studio of appartement. Geen lange wachttijden, wél de kwaliteit en allure van een unieke woonbeleving in het historische Scheepvaartkwartier.
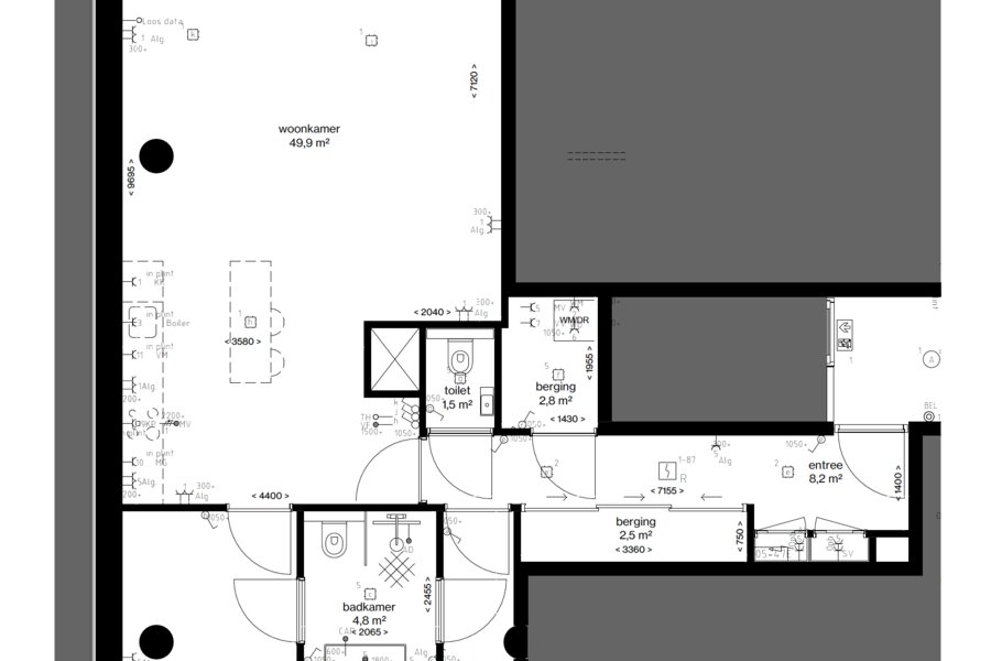
Calandstraat 47 E is een driekamerappartement gelegen op de 5e verdieping, met grote raampartijen van vloer tot aan het plafond. Beide slaapkamers beschikken over een badkamer en-suite. Daarnaast beschikt het appartement over een ruim balkon van 11 m²!
Betreed een wereld waar het summum van stedelijke elegantie en moderne luxe, omarmd door de historische charme van de omgeving hand in hand gaan.
Hier komen moderne elegantie en historische charme samen in een hoogwaardig gerenoveerd wooncomplex. Wat ooit een kantoorpand was, is getransformeerd naar 48 exclusieve appartementen en studio’s, met royale raampartijen voor optimaal lichtinval en een prachtig uitzicht over de stad. De woningen in The Caland zijn ontworpen met een scherp oog voor detail en voorzien van moderne, duurzame voorzieningen.
De studio's en appartementen zijn ontworpen met een scherp oog voor detail en bieden het ultieme comfort voor een exclusieve hedendaagse levensstijl. Dit is niet zomaar een appartementencomplex, het is een samensmelting van verleden en heden, van luxe en comfort. Maar het gaat verder dan alleen comfort - we hebben ook aandacht besteed aan duurzaamheid en energie-efficiëntie, met slimme technologieën die het milieu respecteren en tevens de energierekening verlagen.
Maak van jouw droomwoning een realiteit! Deze transformatie biedt de perfecte mix van geschiedenis en moderniteit, waarbij het beste van beide werelden wordt samengebracht. Beleef het zelf en maak deel uit van deze unieke woongemeenschap in het meest gewilde stukje Rotterdam.
Ontdek The Caland van binnen
Benieuwd hoe uw toekomstige appartement eruit kan zien? Met onze interactieve Matterport-tour wandelt u virtueel door het transformatieproject The Caland. Bekijk de indeling, ervaar de ruimte en ontdek alle beschikbare appartementen van binnen, gewoon vanaf uw eigen scherm. Klik op de virtuele tour onder media en bekijk de woning in 3D.
Bijzonderheden
- Oplevering per direct
- Bouwjaar 1975
- Transformatie 2024
- Eigen grond
- Energielabel A++
- 2 zonnepanelen
- Woonoppervlakte ca. 47 m²
- Vloerverwarming door de gehele woning
- Gemeenschappelijke binnentuin
- Parkeergarage onder het wooncomplex
- Parkeerplaats separaat te koop (koopsom vanaf €42.500,- vrij op naam)
- Privé berging in parkeerkelder aanwezig
- Lift aanwezig
- Hoge plafonds
- Grote raampartijen van vloer tot plafond
- Compleet afgewerkt sanitair inbegrepen
- Keukenafwerking is niet inbegrepen
EXTRA NOOT M.B.T. VERKOOP VRIJ OP NAAM
Het uitgangspunt voor de verkoop van de woningen in The Caland is een verkoopprijs op basis van vrij op naam voor eigen bewoning. Indien de woning wordt aangekocht met als doel als pied-a-terre of voor bewoning door (één van) uw kinderen of als belegging/investering, dan zal het percentage van 10,4% (in plaats van 0% of 2%) overdrachtsbelasting van toepassing zijn. In dit geval zal de koopsom (vrij op naam) verhoogt worden met 7,5% over de gehele koopsom. Voor een verdere toelichting kunt u contact opnemen met het verkoopteam.
IN COLLEGIALE VERKOOP MET OOMS MAKELAARS
Wij zijn de makelaar van de verkoper. Wij adviseren je jouw eigen makelaar mee te nemen voor de belangenbehartiging bij de aankoop van je toekomstig huis.
Aan deze aanbieding kunnen geen rechten worden ontleend.
Calandstraat 47 E is een driekamerappartement gelegen op de 5e verdieping, met grote raampartijen van vloer tot aan het plafond. Beide slaapkamers beschikken over een badkamer en-suite. Daarnaast beschikt het appartement over een ruim balkon van 11 m²!
Betreed een wereld waar het summum van stedelijke elegantie en moderne luxe, omarmd door de historische charme van de omgeving hand in hand gaan.
Hier komen moderne elegantie en historische charme samen in een hoogwaardig gerenoveerd wooncomplex. Wat ooit een kantoorpand was, is getransformeerd naar 48 exclusieve appartementen en studio’s, met royale raampartijen voor optimaal lichtinval en een prachtig uitzicht over de stad. De woningen in The Caland zijn ontworpen met een scherp oog voor detail en voorzien van moderne, duurzame voorzieningen.
De studio's en appartementen zijn ontworpen met een scherp oog voor detail en bieden het ultieme comfort voor een exclusieve hedendaagse levensstijl. Dit is niet zomaar een appartementencomplex, het is een samensmelting van verleden en heden, van luxe en comfort. Maar het gaat verder dan alleen comfort - we hebben ook aandacht besteed aan duurzaamheid en energie-efficiëntie, met slimme technologieën die het milieu respecteren en tevens de energierekening verlagen.
Maak van jouw droomwoning een realiteit! Deze transformatie biedt de perfecte mix van geschiedenis en moderniteit, waarbij het beste van beide werelden wordt samengebracht. Beleef het zelf en maak deel uit van deze unieke woongemeenschap in het meest gewilde stukje Rotterdam.
Ontdek The Caland van binnen
Benieuwd hoe uw toekomstige appartement eruit kan zien? Met onze interactieve Matterport-tour wandelt u virtueel door het transformatieproject The Caland. Bekijk de indeling, ervaar de ruimte en ontdek alle beschikbare appartementen van binnen, gewoon vanaf uw eigen scherm. Klik op de virtuele tour onder media en bekijk de woning in 3D.
Bijzonderheden
- Oplevering per direct
- Bouwjaar 1975
- Transformatie 2024
- Eigen grond
- Energielabel A++
- 2 zonnepanelen
- Woonoppervlakte ca. 47 m²
- Vloerverwarming door de gehele woning
- Gemeenschappelijke binnentuin
- Parkeergarage onder het wooncomplex
- Parkeerplaats separaat te koop (koopsom vanaf €42.500,- vrij op naam)
- Privé berging in parkeerkelder aanwezig
- Lift aanwezig
- Hoge plafonds
- Grote raampartijen van vloer tot plafond
- Compleet afgewerkt sanitair inbegrepen
- Keukenafwerking is niet inbegrepen
EXTRA NOOT M.B.T. VERKOOP VRIJ OP NAAM
Het uitgangspunt voor de verkoop van de woningen in The Caland is een verkoopprijs op basis van vrij op naam voor eigen bewoning. Indien de woning wordt aangekocht met als doel als pied-a-terre of voor bewoning door (één van) uw kinderen of als belegging/investering, dan zal het percentage van 10,4% (in plaats van 0% of 2%) overdrachtsbelasting van toepassing zijn. In dit geval zal de koopsom (vrij op naam) verhoogt worden met 7,5% over de gehele koopsom. Voor een verdere toelichting kunt u contact opnemen met het verkoopteam.
IN COLLEGIALE VERKOOP MET OOMS MAKELAARS
Wij zijn de makelaar van de verkoper. Wij adviseren je jouw eigen makelaar mee te nemen voor de belangenbehartiging bij de aankoop van je toekomstig huis.
Aan deze aanbieding kunnen geen rechten worden ontleend.
| ID de propriété | RM110547 | 
|---|---|
| Prix demandé | € 907.500 v.o.n. | 
| Type de maison | Appartement | 
| Surface habitable | 106 m² | 
| Superficie du terrain | - | 
| Année de construction | 2024 | 
| Année de rénovation | - | 
| Chambres à coucher | 2 | 
| Salles de bains | - | 
| Garages | - | 
| Energielabel | A++ | 
Baljon Makelaars Straatweg 233, 3054 AH Rotterdam
- Téléphone:+31.010.422.30.00
- Courriel:info@baljonmakelaars.nl
- Site web:www.baljonmakelaars.nl
- Lundi - VendrediOuvert du 08.30 - 17.30
- Samedi - DimancheFermé








































