Villa a vendre a HUIZEN avec reference 19509742939
Van Hogendorplaan 2, 1272 GG HUIZEN—Réf. HN103427
Charmante en zeer goed onderhouden jaren 30 villa met vrijstaande garage/berging, parkeren op eigen terrein, tuin op het zuiden en westen, op een perceel van 320m².
Gelegen aan een lommerrijke laan in gewilde wijk op loopafstand van verschillende basisscholen, winkels in de oude dorpskern en Goois Natuurreservaat.
Dichtbij middelbare scholen, openluchtzwembad De Sijsjesberg en diverse sportfaciliteiten.
Gunstig gelegen ten opzichte van de snelweg A1. De OV aansluitingen zijn om de hoek.
Bushalte 320 met een snelbus verbinding rechtstreeks naar NS Amsterdam-Amstel. Bushalte 100 voor NS Naarden Bussum.
Met de fiets is station Naarden Bussum in 15 minuten bereikbaar.
Beknopte omschrijving
Begane grond:
Entree, vestibule met originele tegels, centrale hal, toilet met fonteintje, praktische provisiekelder.
Ruime woonkamer met parket, open haard, erker met zicht op de voortuin, openslaande deuren naar de achtertuin.
Separate eetkeuken voorzien van inbouwapparatuur met vaste kasten, aangrenzende bijkeuken en deur naar de achtertuin.
Eerste verdieping:
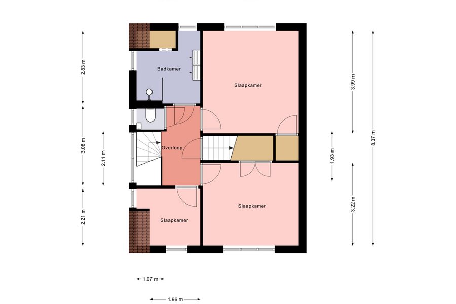
Overloop, toilet, 3 goede slaapkamers waarvan 2 met inbouwkast. Moderne badkamer uit 2020 met inloopdouche, wastafelmeubel met 2 kranen en vloerverwarming.
Tweede verdieping:
Vaste trap naar de in 2020 schitterend verbouwde zolder.
Hier bevindt zich de 4de zeer royale slaapkamer met aansluitend door stalen wand gescheiden badkamer. De luxe badkamer met vloerverwarming is voorzien van een inloopdouche, toilet, design radiator en wastafel met kraan. Deze verdieping is heerlijk licht door zijn vele elektrische dakramen.
Sfeervolle en met zorg aangelegde tuin rondom, zonnige en vrije achtertuin met een groot terras waar u tot laat in de avond de zon heeft.
Grote vrijstaande garage met in de voortuin parkeergelegenheid op eigen terrein.
Bijzonderheden:
- veel originele stijlkenmerken zoals glas en lood ramen en originele tegels bij vestibule
- Airconditioning
- Screens en zonwering
- Alarm installatie
- Aquacell waterontkalker
- 2 luxe badkamers uit 2020
Gelegen aan een lommerrijke laan in gewilde wijk op loopafstand van verschillende basisscholen, winkels in de oude dorpskern en Goois Natuurreservaat.
Dichtbij middelbare scholen, openluchtzwembad De Sijsjesberg en diverse sportfaciliteiten.
Gunstig gelegen ten opzichte van de snelweg A1. De OV aansluitingen zijn om de hoek.
Bushalte 320 met een snelbus verbinding rechtstreeks naar NS Amsterdam-Amstel. Bushalte 100 voor NS Naarden Bussum.
Met de fiets is station Naarden Bussum in 15 minuten bereikbaar.
Beknopte omschrijving
Begane grond:
Entree, vestibule met originele tegels, centrale hal, toilet met fonteintje, praktische provisiekelder.
Ruime woonkamer met parket, open haard, erker met zicht op de voortuin, openslaande deuren naar de achtertuin.
Separate eetkeuken voorzien van inbouwapparatuur met vaste kasten, aangrenzende bijkeuken en deur naar de achtertuin.
Eerste verdieping:
Overloop, toilet, 3 goede slaapkamers waarvan 2 met inbouwkast. Moderne badkamer uit 2020 met inloopdouche, wastafelmeubel met 2 kranen en vloerverwarming.
Tweede verdieping:
Vaste trap naar de in 2020 schitterend verbouwde zolder.
Hier bevindt zich de 4de zeer royale slaapkamer met aansluitend door stalen wand gescheiden badkamer. De luxe badkamer met vloerverwarming is voorzien van een inloopdouche, toilet, design radiator en wastafel met kraan. Deze verdieping is heerlijk licht door zijn vele elektrische dakramen.
Sfeervolle en met zorg aangelegde tuin rondom, zonnige en vrije achtertuin met een groot terras waar u tot laat in de avond de zon heeft.
Grote vrijstaande garage met in de voortuin parkeergelegenheid op eigen terrein.
Bijzonderheden:
- veel originele stijlkenmerken zoals glas en lood ramen en originele tegels bij vestibule
- Airconditioning
- Screens en zonwering
- Alarm installatie
- Aquacell waterontkalker
- 2 luxe badkamers uit 2020
| ID de propriété | HN103427 |
|---|---|
| Prix demandé | € 985.000 k.k. |
| Type de maison | Villa |
| Surface habitable | 147 m² |
| Superficie du terrain | 320 m² |
| Année de construction | 1935 |
| Année de rénovation | - |
| Chambres à coucher | 4 |
| Salles de bains | 2 |
| Garages | 1 |
| Energielabel | D |
Voorma en Walch Huizen Piste de ceinture 22, 1271 BJ Huizen
- Téléphone:+31.35.525.31.35
- Courriel:huizen@voorma-walch.nl
- Site web:www.voorma-walch.nl
- Lundi - VendrediOuvert du 08.30 - 17.30
- Samedi - DimancheFermé

















































