Villa a vendre a WASSENAAR avec reference 19606117799
Papegaaienlaan 17, 2243 AP WASSENAAR—Réf. WR103821
Statige 2-onder-1-kapvilla met allure, ruimte en comfort op toplocatie in Wassenaar.
Aan de geliefde Papegaaienlaan, in de rustige en groene villawijk “De Drie Papegaaien”, ligt deze indrukwekkende en uitstekend onderhouden 2-onder-1-kapvilla met maar liefst 213 m² woonoppervlakte op een royaal perceel van circa 600 m². Met een brede oprit voor meerdere auto’s, een riante garage en een verrassend ruime indeling is dit het ideale familiehuis voor wie royaal en comfortabel wil wonen.
Wonen met stijl en ruimte
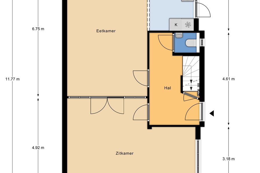
Via de fraai aangelegde voortuin en de royale oprit bereikt u de zij-entree. De ruime hal met garderobe, gastentoilet en toegang tot de kelder vormt een statige binnenkomst. De L-vormige woon- en eetkamer is heerlijk licht en biedt via openslaande deuren direct toegang tot de zonnige voor- en achtertuin met meerdere terrassen – perfect voor lange zomeravonden en ontspannen momenten in alle privacy.
De moderne open keuken is uitgevoerd met een stenen werkblad en diverse inbouwapparatuur en biedt tevens toegang tot de zijkant van de woning en de garage.
Volop leefruimte voor het hele gezin
De eerste verdieping beschikt over een lichte overloop met separaat toilet en drie goed bemeten slaapkamers, waaronder een royale kamer aan de voorzijde over de volle breedte. De badkamer is centraal gelegen en voorzien van een ligbad met douche en een wastafelmeubel.
Op de tweede verdieping treft u nog eens twee slaapkamers en maar liefst twee extra badkamers – ideaal voor grotere gezinnen of gasten. Tevens vindt u hier de opstelplaats voor wasmachine en droger en de CV-installatie. De slimme indeling zorgt voor optimaal comfort en privacy voor alle bewoners.
Buitenruimte en extra’s
De vrijstaande, ruime garage met kap en vliering biedt volop bergruimte of mogelijkheden voor hobby’s. De zonnige tuin rondom de woning biedt altijd een fijne plek in de zon of schaduw.
Ligging
De Papegaaienlaan staat bekend om haar rustige karakter en groene omgeving. Op korte afstand vindt u winkels, restaurants, scholen en openbaar vervoer. Ook uitvalswegen zijn snel bereikbaar. Deze combinatie maakt de locatie bijzonder geliefd bij gezinnen.
Bijzonderheden:
-Woonoppervlakte ca. 213 m²
-Perceel ca. 600 m²
-5 slaapkamers en 3 badkamers
-Vrijstaande garage met vliering
-Oprit voor meerdere auto’s
-Dak vernieuwd in 2019
-Voorzien van dubbel glas
-Gelegen in gewilde villawijk
-Ouderdomsclausule, niet-bewoningsclausule en asbestclausule van toepassing op de koopovereenkomst;
Bent u op zoek naar een royaal familiehuis met karakter, comfort en een uitstekende ligging?
Maak dan snel een afspraak en ervaar zelf de ruimte, lichtinval en sfeer van deze prachtige woning aan de Papegaaienlaan 17 in Wassenaar.
Aan de geliefde Papegaaienlaan, in de rustige en groene villawijk “De Drie Papegaaien”, ligt deze indrukwekkende en uitstekend onderhouden 2-onder-1-kapvilla met maar liefst 213 m² woonoppervlakte op een royaal perceel van circa 600 m². Met een brede oprit voor meerdere auto’s, een riante garage en een verrassend ruime indeling is dit het ideale familiehuis voor wie royaal en comfortabel wil wonen.
Wonen met stijl en ruimte
Via de fraai aangelegde voortuin en de royale oprit bereikt u de zij-entree. De ruime hal met garderobe, gastentoilet en toegang tot de kelder vormt een statige binnenkomst. De L-vormige woon- en eetkamer is heerlijk licht en biedt via openslaande deuren direct toegang tot de zonnige voor- en achtertuin met meerdere terrassen – perfect voor lange zomeravonden en ontspannen momenten in alle privacy.
De moderne open keuken is uitgevoerd met een stenen werkblad en diverse inbouwapparatuur en biedt tevens toegang tot de zijkant van de woning en de garage.
Volop leefruimte voor het hele gezin
De eerste verdieping beschikt over een lichte overloop met separaat toilet en drie goed bemeten slaapkamers, waaronder een royale kamer aan de voorzijde over de volle breedte. De badkamer is centraal gelegen en voorzien van een ligbad met douche en een wastafelmeubel.
Op de tweede verdieping treft u nog eens twee slaapkamers en maar liefst twee extra badkamers – ideaal voor grotere gezinnen of gasten. Tevens vindt u hier de opstelplaats voor wasmachine en droger en de CV-installatie. De slimme indeling zorgt voor optimaal comfort en privacy voor alle bewoners.
Buitenruimte en extra’s
De vrijstaande, ruime garage met kap en vliering biedt volop bergruimte of mogelijkheden voor hobby’s. De zonnige tuin rondom de woning biedt altijd een fijne plek in de zon of schaduw.
Ligging
De Papegaaienlaan staat bekend om haar rustige karakter en groene omgeving. Op korte afstand vindt u winkels, restaurants, scholen en openbaar vervoer. Ook uitvalswegen zijn snel bereikbaar. Deze combinatie maakt de locatie bijzonder geliefd bij gezinnen.
Bijzonderheden:
-Woonoppervlakte ca. 213 m²
-Perceel ca. 600 m²
-5 slaapkamers en 3 badkamers
-Vrijstaande garage met vliering
-Oprit voor meerdere auto’s
-Dak vernieuwd in 2019
-Voorzien van dubbel glas
-Gelegen in gewilde villawijk
-Ouderdomsclausule, niet-bewoningsclausule en asbestclausule van toepassing op de koopovereenkomst;
Bent u op zoek naar een royaal familiehuis met karakter, comfort en een uitstekende ligging?
Maak dan snel een afspraak en ervaar zelf de ruimte, lichtinval en sfeer van deze prachtige woning aan de Papegaaienlaan 17 in Wassenaar.
| ID de propriété | WR103821 |
|---|---|
| Prix demandé | € 1.385.000 k.k. |
| Type de maison | Villa |
| Surface habitable | 213 m² |
| Superficie du terrain | 600 m² |
| Année de construction | 1925 |
| Année de rénovation | - |
| Chambres à coucher | 5 |
| Salles de bains | 3 |
| Garages | 1 |
| Energielabel | D |
Welp Makelaardij Van Hogendorpstraat 16 d, 2242 KZ Wassenaar
- Téléphone:+31.070.51.11.720
- Courriel:info@welpmakelaardij.nl
- Site web:www.welpmakelaardij.nl
- Lundi - VendrediOuvert du 09.00 - 17.30
- Samedi Ouvert du 10.00 - 14.00
- Dimanche Fermé


















































