Villa a vendre a HUIZEN avec reference 19711010169
Piersonlaan 16, 1272 JR HUIZEN—Réf. HN103712
Gelegen in de gewilde woonomgeving 'de Zuidereng', met bos en heide van het Goois Natuur Reservaat direct op loopafstand, bevindt zich deze goed onderhouden 2-onder-1-kapwoning, eigen oprit, vrijstaande garage en een perceeloppervlak van maar liefst 383m²!
De omliggende tuin biedt veel groen en vrij zicht en door de ligging is er veel privacy.
In de direct omgeving bevinden zich verschillende scholen, tennis-/padel park De Kuil, zwembad Sijsjesberg en de winkels in de oude dorpskern.
Gunstige ligging nabij de A1 richting Amsterdam alsmede een rechtstreekse buslijn naar Amsterdam Amstel.
Indeling:
Begane grond:
Ruime entree, toilet, garderobe en meterkast. De sfeervolle woonkamer met open haard en grote raampartijen biedt een prachtig uitzicht op de voortuin. De keuken met hardstenen werkblad en keuken apparatuur en schuifpui naar de achtertuin zorgt voor een heerlijke verbinding binnen en buiten. De bijkeuken met wasmachineaansluiting en de CV-installatie maakt het plaatje compleet.
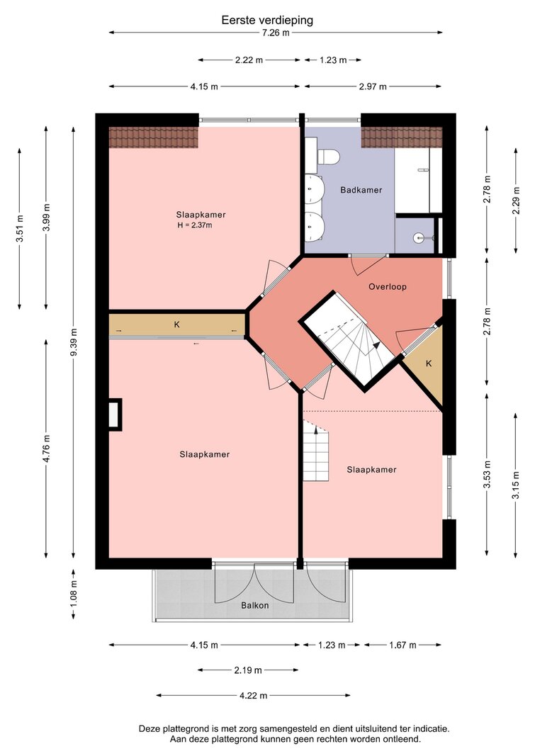
Eerste verdieping:
Overloop, slaapkamer met toegang tot balkon, vide en trap naar 2de verdieping, 2e en 3e slaapkamer waarvan er één met toegang tot het balkon en ruime kast. Badkamer met toilet, dubbele wastafel, douche whirlpool ligbad.
Tweede verdieping:
Een vaste trap leidt naar de ruime vierde slaapkamer op de zolderverdieping.
Souterrain:
Hal met toilet, berging. Royale multifunctionele ruimte met sauna en douche. Ideale ruimte voor de kinderen of kantoor aan huis.
Tuin:
Prachtige, brede besloten achtertuin welke veel privacy biedt. De tuin aan de voor- en zijkant is fraai aangelegd en heeft een vrij uitzicht.
Ruime oprit naar de garage voorzien van een elektrische deur.
Bijzonderheden:
- 8 zonnepanelen
- zeer ruime groene tuin
- Energielabel B
- Ruime vrijstaande garage
- Zeer gewilde en groene omgeving
Kortom: Een fantastische gezinswoning op een top locatie met veel ruimte. Maak snel een afspraak voor een bezichtiging en laat u verrassen!
De omliggende tuin biedt veel groen en vrij zicht en door de ligging is er veel privacy.
In de direct omgeving bevinden zich verschillende scholen, tennis-/padel park De Kuil, zwembad Sijsjesberg en de winkels in de oude dorpskern.
Gunstige ligging nabij de A1 richting Amsterdam alsmede een rechtstreekse buslijn naar Amsterdam Amstel.
Indeling:
Begane grond:
Ruime entree, toilet, garderobe en meterkast. De sfeervolle woonkamer met open haard en grote raampartijen biedt een prachtig uitzicht op de voortuin. De keuken met hardstenen werkblad en keuken apparatuur en schuifpui naar de achtertuin zorgt voor een heerlijke verbinding binnen en buiten. De bijkeuken met wasmachineaansluiting en de CV-installatie maakt het plaatje compleet.
Eerste verdieping:
Overloop, slaapkamer met toegang tot balkon, vide en trap naar 2de verdieping, 2e en 3e slaapkamer waarvan er één met toegang tot het balkon en ruime kast. Badkamer met toilet, dubbele wastafel, douche whirlpool ligbad.
Tweede verdieping:
Een vaste trap leidt naar de ruime vierde slaapkamer op de zolderverdieping.
Souterrain:
Hal met toilet, berging. Royale multifunctionele ruimte met sauna en douche. Ideale ruimte voor de kinderen of kantoor aan huis.
Tuin:
Prachtige, brede besloten achtertuin welke veel privacy biedt. De tuin aan de voor- en zijkant is fraai aangelegd en heeft een vrij uitzicht.
Ruime oprit naar de garage voorzien van een elektrische deur.
Bijzonderheden:
- 8 zonnepanelen
- zeer ruime groene tuin
- Energielabel B
- Ruime vrijstaande garage
- Zeer gewilde en groene omgeving
Kortom: Een fantastische gezinswoning op een top locatie met veel ruimte. Maak snel een afspraak voor een bezichtiging en laat u verrassen!
| ID de propriété | HN103712 |
|---|---|
| Prix demandé | € 995.000 k.k. |
| Type de maison | Villa |
| Surface habitable | 180 m² |
| Superficie du terrain | 383 m² |
| Année de construction | 1988 |
| Année de rénovation | - |
| Chambres à coucher | 4 |
| Salles de bains | 1 |
| Garages | 1 |
| Energielabel | B |
Voorma en Walch Huizen Piste de ceinture 22, 1271 BJ Huizen
- Téléphone:+31.35.525.31.35
- Courriel:huizen@voorma-walch.nl
- Site web:www.voorma-walch.nl
- Lundi - VendrediOuvert du 08.30 - 17.30
- Samedi - DimancheFermé


































































