Villa a vendre a BLARICUM avec reference 19908286453
Bussummerweg 37c, 1261 BZ BLARICUM—Réf. LN101314
Met gepaste trots presenteren wij, deze exclusieve en luxueuze villa met een woonoppervlakte van maar liefst 486 m², de villa mag absoluut als een bijzonder object worden beschouwd!
Op een schitterende plek, aan een idyllisch zandpaadje grenzend aan het Goois Natuurreservaat, ligt deze bijzonder charmante vrijstaande villa met dubbele inpandige garage, verwarmd buitenzwembad met royaal zonneterras en overdekt terras. Verder is er een poolhouse voorzien van buiten bbq, eet en zitgedeelte met tuinhaard en gezellige buitenbar. De villa is gelegen op een royaal perceel van 2370 m2, welke onder architectuur is aangelegd. De parkachtige tuin beschikt over diverse terrassen, een fraai gazon en prachtige borders met een grote variëteit aan beplanting. Ook is er een kleine boomgaard omheind door een klassiek Schapenhek.
Middels een elektrische toegangspoort bereikt u de ruime oprit met voldoende parkeergelegenheid op eigen terrein.
De indeling is als volgt:
Begane grond:
Bij binnenkomst valt direct de royale ontvangsthal op, met een indrukwekkend trappenhuis en veel lichtinval. Vanuit de ontvangsthal is er toegang tot een garderoberuimte met kastenwand, meterkast en royaal toilet en toegang tot de ruime woonkeuken. De living en werkkamer/bibliotheek zijn eveneens bereikbaar vanuit de centrale ontvangsthal. De ruime woonkamer ademt charme en luxe, met een prachtige parketvloer, een gashaard, op maat gemaakte kasten en rondom openslaande deuren naar de tuin. Middels ensuite deuren is de werkkamer/bibliotheek te bereiken eveneens voorzien van openslaande deuren naar de achtertuin, een sfeervolle gashaard, een stijlvol glazen barretje in de op maat gemaakte kasten rondom. Grenzend aan de werkkamer/bibliotheek bevindt zich het hart van het huis. De ruime woonkeuken met spoeleiland en een gezellige vaste bank in de erker. Ook hier zorgen de dubbele openslaande deuren (5x) voor een directe verbinding met de tuin. Uiteraard is de keuken volledig uitgerust met alle gewenste inbouwapparatuur, 2 vaatwassers en voldoende opbergruimte. Vanuit de keuken is er een 2e hal met overdekte entree, kastenwand, toegang tot een ruime berg-/provisiekelder en de doorgang naar de dubbele inpandige garage. De garage is voorzien van elektrische overheaddeuren, zijentree en achterentree en is tevens voorzien van de technische ruimte voor het zwembad.
1e Verdieping:
De ruime overloop is voorzien van een prachtige vide en dubbele deuren naar een overdekt balkon en overloopkast. Ruime (slaap)kamer met toegang tot de masterbedroom en een kleedkamer. De masterbedroom heeft toegang tot een sfeervol dakterras aan de zijkant van de woning en toegang tot een ruime badkamer met ligbad, inloopdouche, dubbel wastafelmeubel en een separaat toilet.
Verder treft u nog 4 ruime slaapkamers, 3 luxe badkamers en een waskamer met aansluitingen voor was en droogcombinaties en twee wasbakken. Alle slaapkamers hebben toegang tot een badkamer en De achterste slaapkamer is tevens uitgerust met een kitchenette. Ideaal voor gasten of een au pair aan huis.
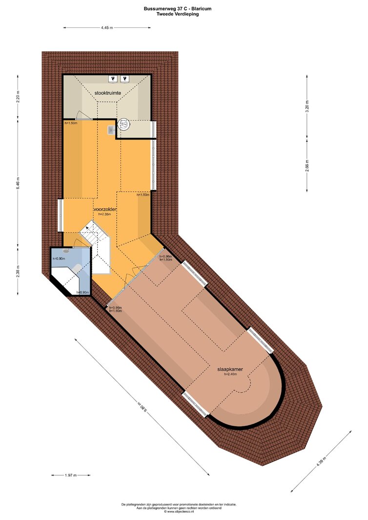
2e Verdieping:
Een vaste trap leidt naar de veelzijdige zolderverdieping met een grote multifunctionele ruimte en een ruime 7e slaapkamer en veel opbergruimte. Dankzij de dakkapellen en een op maat gemaakte bank is dit een sfeervolle en praktische verdieping.
Bijzonderheden:
Deze villa straalt elegantie en klasse uit en is gelegen op een toplocatie in de Gouden Driehoek. Het centrum van zowel Blaricum als Laren met alle faciliteiten bevinden zich slechts op korte afstand. Een fantastische kans voor wie op zoek is naar luxe, rust en ruimte. De tuin is een lust voor het oog en biedt volledige privacy, geen wonder dat de huidige eigenaren de prachtige verbindingen tussen binnen en buiten hebben laten vervaardigen.
Deze villa is niet zomaar een huis, maar een exclusieve woonbeleving. De fraaie architectuur, het hoogwaardige afwerkingsniveau en de adembenemende tuin met buitenzwembad en poolhouse maken dit een droomhuis op een absolute toplocatie.
Voor meer informatie over dit bijzondere familiehuis of een bezichtiging kunt u contact opnemen met mij Jacques E. Walch, NVM Register Makelaar of Bart H.A.M. Lammerts, NVM Makelaar van ons makelaarskantoor Laren. Nog beter is het om uw eigen NVM aankoopmakelaar mee te nemen.
Op een schitterende plek, aan een idyllisch zandpaadje grenzend aan het Goois Natuurreservaat, ligt deze bijzonder charmante vrijstaande villa met dubbele inpandige garage, verwarmd buitenzwembad met royaal zonneterras en overdekt terras. Verder is er een poolhouse voorzien van buiten bbq, eet en zitgedeelte met tuinhaard en gezellige buitenbar. De villa is gelegen op een royaal perceel van 2370 m2, welke onder architectuur is aangelegd. De parkachtige tuin beschikt over diverse terrassen, een fraai gazon en prachtige borders met een grote variëteit aan beplanting. Ook is er een kleine boomgaard omheind door een klassiek Schapenhek.
Middels een elektrische toegangspoort bereikt u de ruime oprit met voldoende parkeergelegenheid op eigen terrein.
De indeling is als volgt:
Begane grond:
Bij binnenkomst valt direct de royale ontvangsthal op, met een indrukwekkend trappenhuis en veel lichtinval. Vanuit de ontvangsthal is er toegang tot een garderoberuimte met kastenwand, meterkast en royaal toilet en toegang tot de ruime woonkeuken. De living en werkkamer/bibliotheek zijn eveneens bereikbaar vanuit de centrale ontvangsthal. De ruime woonkamer ademt charme en luxe, met een prachtige parketvloer, een gashaard, op maat gemaakte kasten en rondom openslaande deuren naar de tuin. Middels ensuite deuren is de werkkamer/bibliotheek te bereiken eveneens voorzien van openslaande deuren naar de achtertuin, een sfeervolle gashaard, een stijlvol glazen barretje in de op maat gemaakte kasten rondom. Grenzend aan de werkkamer/bibliotheek bevindt zich het hart van het huis. De ruime woonkeuken met spoeleiland en een gezellige vaste bank in de erker. Ook hier zorgen de dubbele openslaande deuren (5x) voor een directe verbinding met de tuin. Uiteraard is de keuken volledig uitgerust met alle gewenste inbouwapparatuur, 2 vaatwassers en voldoende opbergruimte. Vanuit de keuken is er een 2e hal met overdekte entree, kastenwand, toegang tot een ruime berg-/provisiekelder en de doorgang naar de dubbele inpandige garage. De garage is voorzien van elektrische overheaddeuren, zijentree en achterentree en is tevens voorzien van de technische ruimte voor het zwembad.
1e Verdieping:
De ruime overloop is voorzien van een prachtige vide en dubbele deuren naar een overdekt balkon en overloopkast. Ruime (slaap)kamer met toegang tot de masterbedroom en een kleedkamer. De masterbedroom heeft toegang tot een sfeervol dakterras aan de zijkant van de woning en toegang tot een ruime badkamer met ligbad, inloopdouche, dubbel wastafelmeubel en een separaat toilet.
Verder treft u nog 4 ruime slaapkamers, 3 luxe badkamers en een waskamer met aansluitingen voor was en droogcombinaties en twee wasbakken. Alle slaapkamers hebben toegang tot een badkamer en De achterste slaapkamer is tevens uitgerust met een kitchenette. Ideaal voor gasten of een au pair aan huis.
2e Verdieping:
Een vaste trap leidt naar de veelzijdige zolderverdieping met een grote multifunctionele ruimte en een ruime 7e slaapkamer en veel opbergruimte. Dankzij de dakkapellen en een op maat gemaakte bank is dit een sfeervolle en praktische verdieping.
Bijzonderheden:
Deze villa straalt elegantie en klasse uit en is gelegen op een toplocatie in de Gouden Driehoek. Het centrum van zowel Blaricum als Laren met alle faciliteiten bevinden zich slechts op korte afstand. Een fantastische kans voor wie op zoek is naar luxe, rust en ruimte. De tuin is een lust voor het oog en biedt volledige privacy, geen wonder dat de huidige eigenaren de prachtige verbindingen tussen binnen en buiten hebben laten vervaardigen.
Deze villa is niet zomaar een huis, maar een exclusieve woonbeleving. De fraaie architectuur, het hoogwaardige afwerkingsniveau en de adembenemende tuin met buitenzwembad en poolhouse maken dit een droomhuis op een absolute toplocatie.
Voor meer informatie over dit bijzondere familiehuis of een bezichtiging kunt u contact opnemen met mij Jacques E. Walch, NVM Register Makelaar of Bart H.A.M. Lammerts, NVM Makelaar van ons makelaarskantoor Laren. Nog beter is het om uw eigen NVM aankoopmakelaar mee te nemen.
| ID de propriété | LN101314 |
|---|---|
| Prix demandé | € 6.475.000 k.k. |
| Type de maison | Villa |
| Surface habitable | 486 m² |
| Superficie du terrain | 2.370 m² |
| Année de construction | 1998 |
| Année de rénovation | - |
| Chambres à coucher | 6 |
| Salles de bains | 4 |
| Garages | 1 |
| Energielabel | B |
Voorma en Walch Laren Brink 34, 1251 KW Laren
- Téléphone:+31.35.539.90.80
- Courriel:laren@voorma-walch.nl
- Site web:voorma-walch.nl
- Lundi - VendrediOuvert du 08.30 - 17.30
- Samedi Ouvert du 10.00 - 16.00
- Dimanche Fermé




























































