Villa a vendre a WASSENAAR avec reference 19110695579
Papewegse Hof 4, 2245 AL WASSENAAR—Réf. WR104644
Ruime en markante twee-onder-een-kapwoning met garage, kelder en vrij uitzicht over de weilanden, direct tegenover Landgoed De Horsten
In de exclusieve, rustige en bijzonder kindvriendelijke woonwijk Papewegse Hof, direct tegenover de entree van de Koninklijke Landgoederen De Horsten, ligt deze markante en uitstekend onderhouden half vrijstaande met karakteristiek parabolisch zadeldak. De woning werd in 2007 opgeleverd, is uitstekend geïsoleerd en beschikt over een energielabel A.
Deze royale gezinswoning biedt maar liefst circa 184 m² woonoppervlakte, aangevuld met 48 m² overige inpandige ruimte, waaronder een ruime kelder en een extra diepe garage. Met vijf slaapkamers, twee badkamers en drie aparte toiletten is er volop ruimte voor het hele gezin. De zonnige achtertuin op het zuidoosten biedt veel privacy en een prachtig vrij uitzicht over de omliggende weilanden.
De woning beschikt bovendien over een eigen oprit met parkeergelegenheid en maakt deel uit van het kleinschalige en geliefde nieuwbouwproject Papewegsehof.
De ligging is bijzonder gunstig: rustig en groen tussen Wassenaar en Voorschoten, met station Voorschoten, uitvalswegen, openbaar vervoer en diverse (internationale) scholen in de directe omgeving. Ook de gezellige dorpskernen van zowel Wassenaar als Voorschoten en het strand liggen op korte afstand.
Indeling:
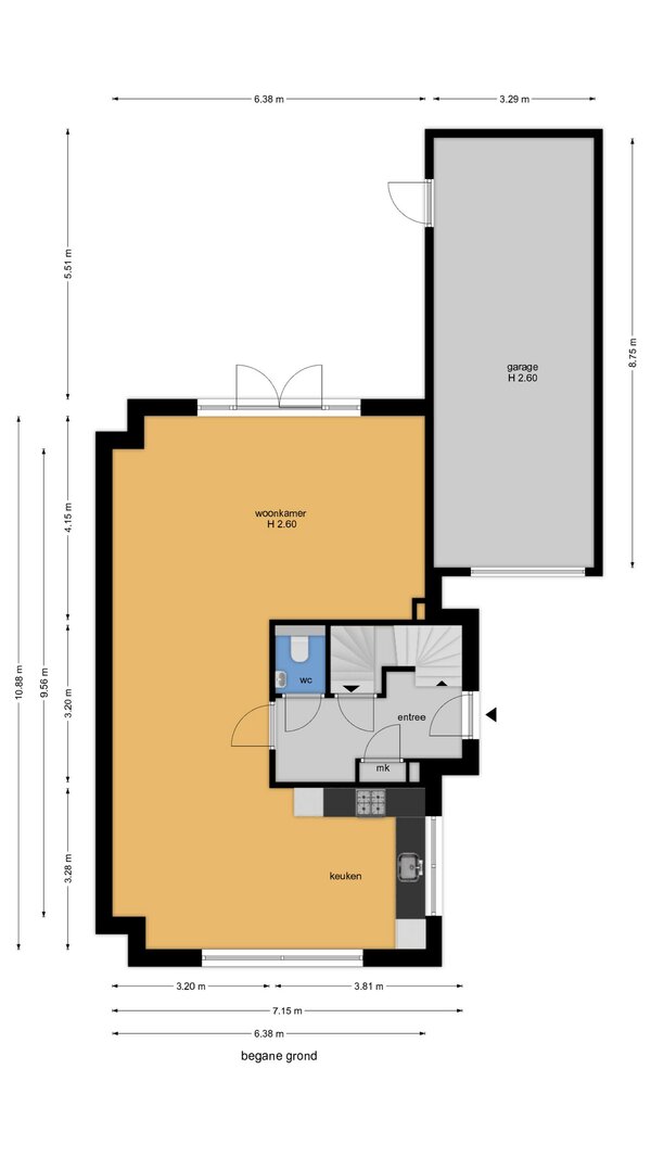
Begane grond
Via de entree kom je in een royale en lichte hal met fraaie houten trapopgang, meterkast en een stijlvol toilet met fonteintje. Vanuit de hal is tevens de ruime kelder bereikbaar via een vaste trap. Deze praktische ruimte is voorzien van stellingkasten en ideaal voor opslag en provisie.
De riante woon- en eetkamer is heerlijk licht en voorzien van een plavuizenvloer met vloerverwarming. Openslaande deuren verbinden de woonkamer met het terras en de zonnige achtertuin. De tuin biedt een beschutte zithoek en een prachtig vrij uitzicht over het groen en de weilanden. Langs de garage loopt een pad naar de voortuin, afgesloten met een poort. De achtertuin grenst aan een rustig, doodlopend watertje.
Aan de voorzijde van de woning bevindt zich de open keuken met uitzicht op de verzorgde voortuin en het autoluwe straatje. De keuken is compleet uitgerust met diverse inbouwapparatuur, waaronder een combi-oven/magnetron, separate magnetron, vaatwasser, gasfornuis en koel-/vriescombinatie.
Eerste verdieping
De ruime overloop geeft toegang tot drie comfortabele slaapkamers. Aan de voorzijde bevindt zich een royale slaapkamer met openslaande ramen en een charmant Frans balkon. Aan de achterzijde liggen twee goed bemeten slaapkamers, waarvan één eveneens met Frans balkon.
De luxe badkamer is voorzien van een ligbad, aparte douche, dubbele wastafels, handdoekradiator en vloerverwarming. Op de overloop bevindt zich daarnaast een separaat toilet.
Tweede verdieping
De tweede verdieping is bijzonder ruim en licht. Aan de voorzijde bevindt zich een indrukwekkende slaapkamer met een hoog raam tot in de nok, wat zorgt voor een prachtig ruimtelijk effect. Aan de achterzijde ligt een sfeervolle slaapkamer, eveneens tot in de nok, met een groot raam en een adembenemend vrij uitzicht over het weiland en Landgoed De Horsten.
Verder beschikt deze verdieping over een tweede badkamer met douche, wastafel, handdoekradiator en vloerverwarming, een separaat toilet en een praktische berging met opstelplaats voor wasmachine en droger, de Intergas cv-ketel (2024) en de mechanische ventilatie-unit.
Garage
De extra diepe en hoge garage (ca. 2,60 m hoog) is voorzien van praktische stellingkasten en is zowel via de tuin als via de oprit toegankelijk.
Bijzonderheden:
- ca. 184 m² woonoppervlakte en 48 m² overige inpandige ruimte
- ca. 356 m² perceel
- Ruim, licht en sfeervol familiehuis
- 5 slaapkamers, 2 badkamers, 3 toiletten
- Energielabel A
- Volledig geïsoleerd (vloer-, muur- en dakisolatie) en HR++ glas
- Fraai aangelegde zonnige tuin met vrij uitzicht over weilanden
- Ruime kelder en extra diepe garage
- Parkeren op eigen terrein
- Gunstige ligging nabij station Voorschoten, uitvalswegen en internationale scholen
- Direct tegenover Koninklijke Landgoederen De Horsten
- In 2026 volledig geschilderd (binnen en buiten)
- Niet-zelfbewoningsclausule en ouderdomsclausule van toepassing op de NVM koopovereenkomst
Deze informatie is door ons met de nodige zorgvuldigheid samengesteld. Onzerzijds wordt echter geen enkele aansprakelijkheid aanvaard voor enige onvolledigheid, onjuistheid of anderszins, dan wel de gevolgen daarvan. Alle opgegeven maten en oppervlakten zijn indicatief. Van toepassing zijn de NVM voorwaarden.
Enthousiast geworden?
Wij laten je deze bijzondere woning aan de Papewegse Hof 4 in Wassenaar graag persoonlijk ervaren. Neem contact met ons op voor het plannen van een bezichtiging.
In de exclusieve, rustige en bijzonder kindvriendelijke woonwijk Papewegse Hof, direct tegenover de entree van de Koninklijke Landgoederen De Horsten, ligt deze markante en uitstekend onderhouden half vrijstaande met karakteristiek parabolisch zadeldak. De woning werd in 2007 opgeleverd, is uitstekend geïsoleerd en beschikt over een energielabel A.
Deze royale gezinswoning biedt maar liefst circa 184 m² woonoppervlakte, aangevuld met 48 m² overige inpandige ruimte, waaronder een ruime kelder en een extra diepe garage. Met vijf slaapkamers, twee badkamers en drie aparte toiletten is er volop ruimte voor het hele gezin. De zonnige achtertuin op het zuidoosten biedt veel privacy en een prachtig vrij uitzicht over de omliggende weilanden.
De woning beschikt bovendien over een eigen oprit met parkeergelegenheid en maakt deel uit van het kleinschalige en geliefde nieuwbouwproject Papewegsehof.
De ligging is bijzonder gunstig: rustig en groen tussen Wassenaar en Voorschoten, met station Voorschoten, uitvalswegen, openbaar vervoer en diverse (internationale) scholen in de directe omgeving. Ook de gezellige dorpskernen van zowel Wassenaar als Voorschoten en het strand liggen op korte afstand.
Indeling:
Begane grond
Via de entree kom je in een royale en lichte hal met fraaie houten trapopgang, meterkast en een stijlvol toilet met fonteintje. Vanuit de hal is tevens de ruime kelder bereikbaar via een vaste trap. Deze praktische ruimte is voorzien van stellingkasten en ideaal voor opslag en provisie.
De riante woon- en eetkamer is heerlijk licht en voorzien van een plavuizenvloer met vloerverwarming. Openslaande deuren verbinden de woonkamer met het terras en de zonnige achtertuin. De tuin biedt een beschutte zithoek en een prachtig vrij uitzicht over het groen en de weilanden. Langs de garage loopt een pad naar de voortuin, afgesloten met een poort. De achtertuin grenst aan een rustig, doodlopend watertje.
Aan de voorzijde van de woning bevindt zich de open keuken met uitzicht op de verzorgde voortuin en het autoluwe straatje. De keuken is compleet uitgerust met diverse inbouwapparatuur, waaronder een combi-oven/magnetron, separate magnetron, vaatwasser, gasfornuis en koel-/vriescombinatie.
Eerste verdieping
De ruime overloop geeft toegang tot drie comfortabele slaapkamers. Aan de voorzijde bevindt zich een royale slaapkamer met openslaande ramen en een charmant Frans balkon. Aan de achterzijde liggen twee goed bemeten slaapkamers, waarvan één eveneens met Frans balkon.
De luxe badkamer is voorzien van een ligbad, aparte douche, dubbele wastafels, handdoekradiator en vloerverwarming. Op de overloop bevindt zich daarnaast een separaat toilet.
Tweede verdieping
De tweede verdieping is bijzonder ruim en licht. Aan de voorzijde bevindt zich een indrukwekkende slaapkamer met een hoog raam tot in de nok, wat zorgt voor een prachtig ruimtelijk effect. Aan de achterzijde ligt een sfeervolle slaapkamer, eveneens tot in de nok, met een groot raam en een adembenemend vrij uitzicht over het weiland en Landgoed De Horsten.
Verder beschikt deze verdieping over een tweede badkamer met douche, wastafel, handdoekradiator en vloerverwarming, een separaat toilet en een praktische berging met opstelplaats voor wasmachine en droger, de Intergas cv-ketel (2024) en de mechanische ventilatie-unit.
Garage
De extra diepe en hoge garage (ca. 2,60 m hoog) is voorzien van praktische stellingkasten en is zowel via de tuin als via de oprit toegankelijk.
Bijzonderheden:
- ca. 184 m² woonoppervlakte en 48 m² overige inpandige ruimte
- ca. 356 m² perceel
- Ruim, licht en sfeervol familiehuis
- 5 slaapkamers, 2 badkamers, 3 toiletten
- Energielabel A
- Volledig geïsoleerd (vloer-, muur- en dakisolatie) en HR++ glas
- Fraai aangelegde zonnige tuin met vrij uitzicht over weilanden
- Ruime kelder en extra diepe garage
- Parkeren op eigen terrein
- Gunstige ligging nabij station Voorschoten, uitvalswegen en internationale scholen
- Direct tegenover Koninklijke Landgoederen De Horsten
- In 2026 volledig geschilderd (binnen en buiten)
- Niet-zelfbewoningsclausule en ouderdomsclausule van toepassing op de NVM koopovereenkomst
Deze informatie is door ons met de nodige zorgvuldigheid samengesteld. Onzerzijds wordt echter geen enkele aansprakelijkheid aanvaard voor enige onvolledigheid, onjuistheid of anderszins, dan wel de gevolgen daarvan. Alle opgegeven maten en oppervlakten zijn indicatief. Van toepassing zijn de NVM voorwaarden.
Enthousiast geworden?
Wij laten je deze bijzondere woning aan de Papewegse Hof 4 in Wassenaar graag persoonlijk ervaren. Neem contact met ons op voor het plannen van een bezichtiging.
| ID de propriété | WR104644 |
|---|---|
| Prix demandé | € 1.195.000 k.k. |
| Type de maison | Villa |
| Surface habitable | 184 m² |
| Superficie du terrain | 356 m² |
| Année de construction | 2007 |
| Année de rénovation | - |
| Chambres à coucher | 5 |
| Salles de bains | 2 |
| Garages | 1 |
| Energielabel | A |
Welp Makelaardij Van Hogendorpstraat 16 d, 2242 KZ Wassenaar
- Téléphone:+31.070.51.11.720
- Courriel:info@welpmakelaardij.nl
- Site web:www.welpmakelaardij.nl
- Lundi - VendrediOuvert du 09.00 - 17.30
- Samedi Ouvert du 10.00 - 14.00
- Dimanche Fermé

















































