Bâtiment historique a vendre a HUIZEN avec reference 19610202503
Koningin Wilhelminastraat 5, 1271 PE HUIZEN—Réf. HN103437
In het centrum van Huizen, aan de rand van het winkelcentrum in het oude dorp gelegen royale vrijstaande woonboerderij met 332m2 woonoppervlakte.
De oude boerderij heeft een enorme metamorfose ondergaan. Het is volledig gemoderniseerd en verduurzaamd naar een energielabel B.
Bijzondere karakteristieke details zijn echter bewaard gebleven; de glas-in-lood ramen, originele binten door de gehele boerderij, de hooiberg is een heerlijke buitenkamer geworden met keuken en openhaard en er is voldoende opbergruimte voor fietsen e.d. in de schuur en overkapping. Terras en grasveld en speelruimte is er ook in overvloed.
Indeling:
Begane grond;
Schitterende royale entree met hoge vide en meterkast, ruime bijkeuken met vaste kastenwand, wasmachine-/ drogeropstelling en wastafel, gastentoilet met fontein en ruime kantoor-/hobbyruimte.
De riante woonkeuken met kastenwand en ruim kookeiland past perfect met de kleur van de gietvloer met vloerverwarming. De keuken is verder voorzien van moderne apparatuur zoals een inductiekookplaat met afzuiging, quooker, vaatwasser, 2 conventionele ovens, grote koelkast en een wijnklimaatkast.
De grote woonkamer is voorzien van balken die zo een warme sfeer en karakter geven aan deze boerderij. Een ruime houthaard/houtkachel hoort daar natuurlijk bij.
Achter de stalen deur in de woonkamer bevindt zich een aparte werk-/TV/kinderkamer met toegang tot een kelder. Alle wanden en plafonds op de begane grond zijn glad gestuukt en voorzien van fraaie inbouwspots en wandlampen.
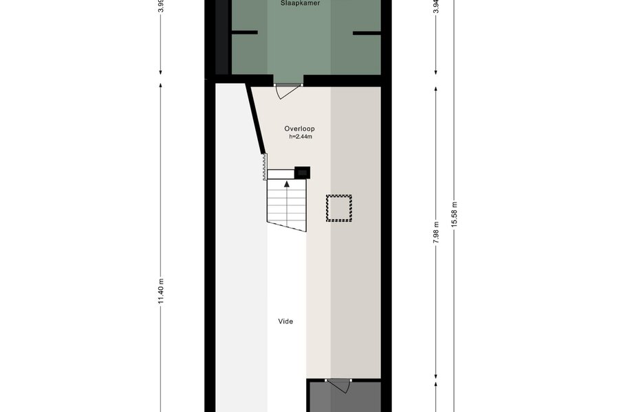
1e verdieping:
Via open eikenhouten bordestrap naar ruime overloop met velux dakvensters en mooi lichtinval is hier de verdieping met 4 slaapkamers en 2 badkamers. 1e ruime slaapkamer met airconditioning, binnenluiken en knieschotten voor berging rondom, 2e ruime slaapkamer met airconditioning berging achter de knieschotten en velux dakvensters, trapkast, 3e royale slaapkamer voorzien van airconditioning en binnenluiken. 2e Ruime badkamer met vloerverwarming, stortdouche, ligbad, toilet en dubbele wastafel.
Zeer ruime 4e ouderslaapkamer met walk-in closet en inpandige badkamer met vloerverwarming, dubbele wastafel, ligbad, toilet en inloopdouche met regendouche en sunshower.
2e verdieping:
Middels open trap naar zolderruimte is er nog toegang tot een kleine werk-/slaapkamer. Op de overloop zit een berging met een CW 6 cv-ketel, mechanische ventilatie, omvormer van de zonnepanelen.
Tuin:
Voldoende plek om fietsen te stallen in de daarvoor bestemde overkapping. Een aparte berging met de beregeningsinstallatie. Een originele hooischuur die nu dienst doet als heerlijke buitenkamer met keuken en een hout gestookte open haard. Aan de achterzijde van de boerderij is nog een speelgrasveld, terras, speeltoestel en trampoline.
Bijzonderheden:
- De onder architectuur aangelegde tuin met sproei-installatie heeft diverse terrassen en tuinverlichting.
- Energielabel B.
- 20 Zonnepanelen.
- De boerderij is nagenoeg geheel geïsoleerd en van dubbel glas voorzien.
- Parkeergelegenheid op eigen terrein voor 2 auto’s.
Kortom een fantastische karakteristieke woonboerderij in het oude dorp met veel ruimte waar met veel plezier gewoond en gedroomd kan worden door zowel volwassenen als kinderen.
De oude boerderij heeft een enorme metamorfose ondergaan. Het is volledig gemoderniseerd en verduurzaamd naar een energielabel B.
Bijzondere karakteristieke details zijn echter bewaard gebleven; de glas-in-lood ramen, originele binten door de gehele boerderij, de hooiberg is een heerlijke buitenkamer geworden met keuken en openhaard en er is voldoende opbergruimte voor fietsen e.d. in de schuur en overkapping. Terras en grasveld en speelruimte is er ook in overvloed.
Indeling:
Begane grond;
Schitterende royale entree met hoge vide en meterkast, ruime bijkeuken met vaste kastenwand, wasmachine-/ drogeropstelling en wastafel, gastentoilet met fontein en ruime kantoor-/hobbyruimte.
De riante woonkeuken met kastenwand en ruim kookeiland past perfect met de kleur van de gietvloer met vloerverwarming. De keuken is verder voorzien van moderne apparatuur zoals een inductiekookplaat met afzuiging, quooker, vaatwasser, 2 conventionele ovens, grote koelkast en een wijnklimaatkast.
De grote woonkamer is voorzien van balken die zo een warme sfeer en karakter geven aan deze boerderij. Een ruime houthaard/houtkachel hoort daar natuurlijk bij.
Achter de stalen deur in de woonkamer bevindt zich een aparte werk-/TV/kinderkamer met toegang tot een kelder. Alle wanden en plafonds op de begane grond zijn glad gestuukt en voorzien van fraaie inbouwspots en wandlampen.
1e verdieping:
Via open eikenhouten bordestrap naar ruime overloop met velux dakvensters en mooi lichtinval is hier de verdieping met 4 slaapkamers en 2 badkamers. 1e ruime slaapkamer met airconditioning, binnenluiken en knieschotten voor berging rondom, 2e ruime slaapkamer met airconditioning berging achter de knieschotten en velux dakvensters, trapkast, 3e royale slaapkamer voorzien van airconditioning en binnenluiken. 2e Ruime badkamer met vloerverwarming, stortdouche, ligbad, toilet en dubbele wastafel.
Zeer ruime 4e ouderslaapkamer met walk-in closet en inpandige badkamer met vloerverwarming, dubbele wastafel, ligbad, toilet en inloopdouche met regendouche en sunshower.
2e verdieping:
Middels open trap naar zolderruimte is er nog toegang tot een kleine werk-/slaapkamer. Op de overloop zit een berging met een CW 6 cv-ketel, mechanische ventilatie, omvormer van de zonnepanelen.
Tuin:
Voldoende plek om fietsen te stallen in de daarvoor bestemde overkapping. Een aparte berging met de beregeningsinstallatie. Een originele hooischuur die nu dienst doet als heerlijke buitenkamer met keuken en een hout gestookte open haard. Aan de achterzijde van de boerderij is nog een speelgrasveld, terras, speeltoestel en trampoline.
Bijzonderheden:
- De onder architectuur aangelegde tuin met sproei-installatie heeft diverse terrassen en tuinverlichting.
- Energielabel B.
- 20 Zonnepanelen.
- De boerderij is nagenoeg geheel geïsoleerd en van dubbel glas voorzien.
- Parkeergelegenheid op eigen terrein voor 2 auto’s.
Kortom een fantastische karakteristieke woonboerderij in het oude dorp met veel ruimte waar met veel plezier gewoond en gedroomd kan worden door zowel volwassenen als kinderen.
| ID de propriété | HN103437 |
|---|---|
| Prix demandé | € 1.900.000 k.k. |
| Type de maison | Bâtiment historique |
| Surface habitable | 332 m² |
| Superficie du terrain | 646 m² |
| Année de construction | 1922 |
| Année de rénovation | - |
| Chambres à coucher | 5 |
| Salles de bains | 2 |
| Garages | - |
| Energielabel | B |
Voorma en Walch Huizen Piste de ceinture 22, 1271 BJ Huizen
- Téléphone:+31.35.525.31.35
- Courriel:huizen@voorma-walch.nl
- Site web:www.voorma-walch.nl
- Lundi - VendrediOuvert du 08.30 - 17.30
- Samedi - DimancheFermé












































