Villa te koop in BLARICUM met referentie 19210831072
Agter Kampen 9, 1261 RA BLARICUM—Ref. LN102198
Eigentijdse villa met vrij uitzicht, maximale luxe, ultiem comfort en absolute privacy……
Op een unieke locatie met prachtig uitzicht, ligt Agter Kampen 9, een recent vernieuwde villa die modern wooncomfort, maximale luxe, tijdloos design en weids uitzicht combineert tot één harmonieus geheel.
Een plek waar rust, ruimte en luxe elkaar versterken. Waar u thuiskomt in stilte, maar toch binnen een half uur in Amsterdam of Utrecht bent.
Wonen met uitzicht én privacy
Het uitzicht over de aangrenzende weilanden is adembenemend. Geen voorbijgangers, geen inkijk, alleen de paarden aan de overkant als buren. Hier geniet u van volledige privacy, zonder dat u zelf een landgoed hoeft te onderhouden.
De villa is met oog voor detail volledig gerenoveerd en ingericht met uitsluitend hoogwaardige materialen. Eiken vloeren, maatwerk kasten, marmeren werkbladen, Gaggenau- en Bora-apparatuur, domotica installatie en airconditioning zorgen voor een levensstijl waarin gemak, sfeer en technologie samenkomen.
Indeling
Begane grond
De entree aan de noordzijde van de woning opent naar een ruime hal met garderobe, toilet en trapopgang. Vanuit hier bereikt u de woonkamer, TV-kamer, speelkamer en de royale woonkeuken.
De woonkamer met grote erker is licht en ruimtelijk, met zichtlijnen naar de tuin en de weilanden. De vaste kastenwand is in deze ruimte een ware eyecatcher, waar het bij de gashaard heerlijk vertoeven is. De woonkeuken vormt het kloppend hart van het huis: een plek om samen te komen, te koken en te genieten. De keuken is uitgevoerd in maatwerk, voorzien van marmeren werkbladen en topapparatuur. Openslaande deuren verbinden binnen met buiten: de veranda met buitenkeuken, heaters en lamellendak nodigt uit tot lange avonden in de open lucht.
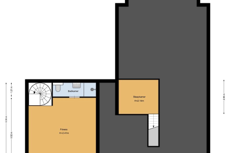
Een bijzonder element is het glazen luik in de vloer van de keuken. Dit biedt toegang tot de volwaardige gym in het souterrain via een elegante wenteltrap, omgeven door een natuurlijke moswand.
Via de bijkeuken bereikt u bovendien een extra slaapkamer in het tweede souterrain, ideaal voor gasten of au pair. Vanuit de bijkeuken heeft u aan de rechterzijde de tv-kamer voor de kinderen met het aangrenzende oh zo leuke kinderatelier.
Souterrain
De gym is een verrassende eyecatcher. Modern, licht en voorzien van een eigen badkamer. De moswand zorgt niet alleen voor sfeer, maar ook voor een gezonde luchtkwaliteit. Daarnaast is er in het souterrain een praktische slaapkamer, perfect voor logees of als wellnessruimte.
Eerste verdieping
De master suite ademt rust en elegantie. De ruime slaapkamer is verbonden met een walk-in-closet en een luxueuze badkamer met marmeren wastafels, een vrijstaand bad, inloopdouche en infraroodfunctie.
Daarnaast zijn er twee slaapkamers, waarvan één met een eigen terras boven de erker. Een tweede badkamer, separate toiletruimte en was-/techniekruimte maken deze verdieping compleet. Alles is met zorg ontworpen om comfort en functionaliteit te verenigen.
Buitenleven op topniveau
De tuin is aangelegd onder architectuur van en in onderhoud bij Meker Tuinen. Hier heerst een oase van rust, waarbij privacy gewaarborgd is. Aan de westzijde ligt het zonnige terras met verwarmd zwembad, omgeven door volwassen beplanting en een prachtig uitzicht over de weilanden.
Oude steeneiken, wolkenhagen en cortenstalen borders met hortensia’s en siergrassen geven de tuin karakter. Voor kinderen is er volop speelruimte met een trampoline, klimtoestellen en een hut.
Het tuinkantoor, met airconditioning en videoconferentie-installatie, biedt een inspirerende werkplek met uitzicht op het groen.
’s Avonds zorgt de sfeerverlichting voor een betoverende ambiance, terwijl de beveiliging discreet maar doeltreffend is geïntegreerd.
Locatie
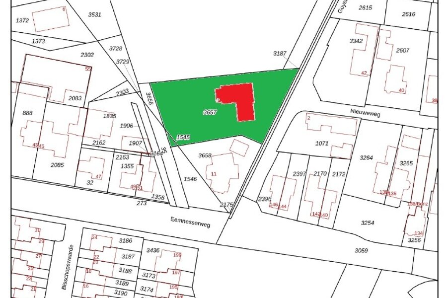
Agter Kampen 9 ligt op een uitzonderlijk punt in Blaricum: landelijk, maar uitstekend bereikbaar. In vijf minuten rijdt u naar de A27; binnen een half uur bent u in Amsterdam, Utrecht of Amersfoort.
De dorpskernen van Blaricum en Laren liggen op korte afstand en bieden alles wat u nodig heeft: scholen, winkels, restaurants en sportclubs. En de omliggende natuurgebieden met bos en heide zijn letterlijk om de hoek.
Bijzonderheden
• Woonoppervlakte: ca. 376 m² + tuinkantoor
• Perceeloppervlakte: ca. 1.676 m²
• Volledig vernieuwd en gemoderniseerd
• 7 kamers, waaronder 4 slaapkamers
• 3 badkamers
• Gym en kantoor in de tuin
• Verwarmd zwembad met zonneterras
• Volledige domotica
• Airconditioning (Daikin) in gehele woning
• Hoogwaardige keukenapparatuur (Gaggenau, Bora)
• Vrij uitzicht en optimale privacy
• Centrale ligging t.o.v. Laren, Blaricum en de A27
• Turn-key te aanvaarden (optioneel volledig ingericht)
Agter Kampen 9 Blaricum, een state-of-the-art villa waarin elke wens is afgevinkt: ruimte, rust, uitzicht en luxe. Een plek om niet alleen te wonen, maar te leven………..
Kortom, dit is een villa waarvan wij zeggen: dit voelt als thuiskomen!!
Voor een bezichtiging van deze vrijstaande villa kunt u contact opnemen met Bart Lammerts, NVM Makelaar. Nog beter is om uw eigen NVM-Aankoop makelaar mee te nemen.
Op een unieke locatie met prachtig uitzicht, ligt Agter Kampen 9, een recent vernieuwde villa die modern wooncomfort, maximale luxe, tijdloos design en weids uitzicht combineert tot één harmonieus geheel.
Een plek waar rust, ruimte en luxe elkaar versterken. Waar u thuiskomt in stilte, maar toch binnen een half uur in Amsterdam of Utrecht bent.
Wonen met uitzicht én privacy
Het uitzicht over de aangrenzende weilanden is adembenemend. Geen voorbijgangers, geen inkijk, alleen de paarden aan de overkant als buren. Hier geniet u van volledige privacy, zonder dat u zelf een landgoed hoeft te onderhouden.
De villa is met oog voor detail volledig gerenoveerd en ingericht met uitsluitend hoogwaardige materialen. Eiken vloeren, maatwerk kasten, marmeren werkbladen, Gaggenau- en Bora-apparatuur, domotica installatie en airconditioning zorgen voor een levensstijl waarin gemak, sfeer en technologie samenkomen.
Indeling
Begane grond
De entree aan de noordzijde van de woning opent naar een ruime hal met garderobe, toilet en trapopgang. Vanuit hier bereikt u de woonkamer, TV-kamer, speelkamer en de royale woonkeuken.
De woonkamer met grote erker is licht en ruimtelijk, met zichtlijnen naar de tuin en de weilanden. De vaste kastenwand is in deze ruimte een ware eyecatcher, waar het bij de gashaard heerlijk vertoeven is. De woonkeuken vormt het kloppend hart van het huis: een plek om samen te komen, te koken en te genieten. De keuken is uitgevoerd in maatwerk, voorzien van marmeren werkbladen en topapparatuur. Openslaande deuren verbinden binnen met buiten: de veranda met buitenkeuken, heaters en lamellendak nodigt uit tot lange avonden in de open lucht.
Een bijzonder element is het glazen luik in de vloer van de keuken. Dit biedt toegang tot de volwaardige gym in het souterrain via een elegante wenteltrap, omgeven door een natuurlijke moswand.
Via de bijkeuken bereikt u bovendien een extra slaapkamer in het tweede souterrain, ideaal voor gasten of au pair. Vanuit de bijkeuken heeft u aan de rechterzijde de tv-kamer voor de kinderen met het aangrenzende oh zo leuke kinderatelier.
Souterrain
De gym is een verrassende eyecatcher. Modern, licht en voorzien van een eigen badkamer. De moswand zorgt niet alleen voor sfeer, maar ook voor een gezonde luchtkwaliteit. Daarnaast is er in het souterrain een praktische slaapkamer, perfect voor logees of als wellnessruimte.
Eerste verdieping
De master suite ademt rust en elegantie. De ruime slaapkamer is verbonden met een walk-in-closet en een luxueuze badkamer met marmeren wastafels, een vrijstaand bad, inloopdouche en infraroodfunctie.
Daarnaast zijn er twee slaapkamers, waarvan één met een eigen terras boven de erker. Een tweede badkamer, separate toiletruimte en was-/techniekruimte maken deze verdieping compleet. Alles is met zorg ontworpen om comfort en functionaliteit te verenigen.
Buitenleven op topniveau
De tuin is aangelegd onder architectuur van en in onderhoud bij Meker Tuinen. Hier heerst een oase van rust, waarbij privacy gewaarborgd is. Aan de westzijde ligt het zonnige terras met verwarmd zwembad, omgeven door volwassen beplanting en een prachtig uitzicht over de weilanden.
Oude steeneiken, wolkenhagen en cortenstalen borders met hortensia’s en siergrassen geven de tuin karakter. Voor kinderen is er volop speelruimte met een trampoline, klimtoestellen en een hut.
Het tuinkantoor, met airconditioning en videoconferentie-installatie, biedt een inspirerende werkplek met uitzicht op het groen.
’s Avonds zorgt de sfeerverlichting voor een betoverende ambiance, terwijl de beveiliging discreet maar doeltreffend is geïntegreerd.
Locatie
Agter Kampen 9 ligt op een uitzonderlijk punt in Blaricum: landelijk, maar uitstekend bereikbaar. In vijf minuten rijdt u naar de A27; binnen een half uur bent u in Amsterdam, Utrecht of Amersfoort.
De dorpskernen van Blaricum en Laren liggen op korte afstand en bieden alles wat u nodig heeft: scholen, winkels, restaurants en sportclubs. En de omliggende natuurgebieden met bos en heide zijn letterlijk om de hoek.
Bijzonderheden
• Woonoppervlakte: ca. 376 m² + tuinkantoor
• Perceeloppervlakte: ca. 1.676 m²
• Volledig vernieuwd en gemoderniseerd
• 7 kamers, waaronder 4 slaapkamers
• 3 badkamers
• Gym en kantoor in de tuin
• Verwarmd zwembad met zonneterras
• Volledige domotica
• Airconditioning (Daikin) in gehele woning
• Hoogwaardige keukenapparatuur (Gaggenau, Bora)
• Vrij uitzicht en optimale privacy
• Centrale ligging t.o.v. Laren, Blaricum en de A27
• Turn-key te aanvaarden (optioneel volledig ingericht)
Agter Kampen 9 Blaricum, een state-of-the-art villa waarin elke wens is afgevinkt: ruimte, rust, uitzicht en luxe. Een plek om niet alleen te wonen, maar te leven………..
Kortom, dit is een villa waarvan wij zeggen: dit voelt als thuiskomen!!
Voor een bezichtiging van deze vrijstaande villa kunt u contact opnemen met Bart Lammerts, NVM Makelaar. Nog beter is om uw eigen NVM-Aankoop makelaar mee te nemen.
| Vastgoed ID | LN102198 |
|---|---|
| Vraagprijs | € 5.250.000 k.k. |
| Woningtype | Villa |
| Woonopp. | 376 m² |
| Perceelopp. | 1.676 m² |
| Bouwjaar | 1978 |
| Renovatiejaar | - |
| Slaapkamers | 4 |
| Badkamers | 3 |
| Garages | - |
| Energielabel | A |
Voorma en Walch Laren Brink 34, 1251 KW Laren
- Telefoon:+31.35.539.90.80
- Email:laren@voorma-walch.nl
- Website:voorma-walch.nl
- Maandag - VrijdagOpen van 08.30 - 17.30
- Zaterdag Open van 10.00 - 16.00
- Zondag Gesloten
















































































