Appartement te koop in NIEUWEGEIN met referentie 19310451211
Utrechtsestraatweg 48, 3438 AK NIEUWEGEIN—Ref. NY100396
See English translation below.
Wonen met karakter in het hart van Nieuwegein - “De Lantaern”
Stap binnen in de serene sfeer van het voormalige klooster De Lantaern, waar historie, rust en modern wooncomfort samenkomen. In dit bijzondere rijksmonument ligt dit prachtige appartement een unieke plek voor wie houdt van authentieke details, hoge raampartijen en een woonomgeving die écht anders is.
Dit appartement combineert de warme uitstraling van het verleden met de luxe van nu: smaakvol vernieuwde ruimtes, een slimme indeling en een rustige ambiance die je meteen omarmt.
In het charmante, karaktervolle klooster De Lantaern aan de Utrechtsestraat wacht een bijzonder royaal appartement van maar liefst 152 m² op een nieuwe bewoner. Dit is wonen met sfeer, luxe en historie in één. Met zijn royale leefruimtes, authentieke kloosterarchitectuur en moderne wooncomfort is dit appartement en zeldzame kans voor wie op zoek is naar iets bijzonders. De ligging is perfect!
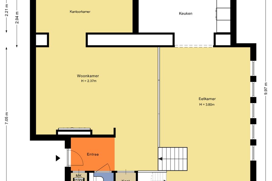
Indeling
Via het statige elektrisch hekwerk bereik je het binnenterrein van De Lantaern, met de privéparkeerplaatsen waarvan één bij het appartement hoort. De monumentale entree geeft toegang tot de gezamenlijke ontvangsthal met brievenbussen, bellenplateau, trapopgang en lift. De berging bevindt zich in het souterrain. De sfeervolle kloostertuin is voor gemeenschappelijk gebruik.
Omschrijving appartement:
Bij binnenkomst valt direct de hoogwaardige afwerking en overvloedige lichtinval door de prachtige hoge ramen op. De entree met meterkast, garderobe en modern toilet loopt naadloos over in de ruime woonkamer met glazen vide richting het eetgedeelte. De halfopen werkkamer heeft extra raampartijen en een vide op de keuken.
Via een kleine trap bereik je de royale eetkamer met plaats voor een grote eettafel. De keuken staat in halfopen verbinding met de eetkamer en is uitgevoerd in een moderne donkere stijl met marmerlook tegels. De hoekopstelling en hoge kastenwand bieden veel bergruimte en zijn voorzien van alle benodigde inbouwapparatuur.
Vanuit de eetkamer leidt een trap naar de hal met toegang tot de slaapkamer en de was-/bergruimte. De slaapkamer is sfeervol afgescheiden met een houten shutters wand, wat zorgt voor zowel privacy als licht. De luxe badkamer ensuite is uitgerust met een ruime inloopdouche, ligbad, tweede toilet, wastafelmeubel.
De was-/stook-/bergruimte biedt aansluitingen voor wasapparatuur, de opstelling van de luchtwarmtepomp en extra opbergruimte.
Bijzonderheden:
- Hoogwaardig afgewerkt en direct instapklaar
- Gelegen aan de voorzijde met fraai uitzicht over het Merwedekanaal
- Lichte woonkamer met prachtige vide naar de eetkamer en keuken
- Halfopen werk-/zitkamer grenzend aan de woonkamer
- Volledig afgewerkt met visgraat houten vloer en vloerverwarming
- Stijlvol toilet met marmerlook tegels, betonlook fonteintje en wandcloset
- Royale slaapkamer met sfeervolle houten shutters als scheidingswand
- Luxe badkamer en-suite met marmerlook tegels, inloopdouche, ligbad, wastafelmeubel en tweede toilet
- Toegang tot de gezamenlijke kloostertuin
- Fietsenberging in het souterrain
- Eigen parkeerplaats direct voor de deur
- Centrale ligging nabij diverse voorzieningen
- Uitstekend bereikbaar met zowel openbaar vervoer als auto
- Actieve en gezonde VVE, servicekosten €320,68
De Lantaern ligt in een van de meest geliefde delen van Nieuwegein: een rustige, groene straat met alle voorzieningen binnen handbereik. Op loopafstand vind je winkels, supermarkten, gezellige horeca en de knusse dorpskern van Jutphaas. De nabijgelegen Vaartsche Rijn , Fort Jutphaas, Kasteel Rijnhuizen en groene parkzones bieden heerlijke wandelroutes en plekken om te ontspannen, terwijl de omgeving wordt gekenmerkt door monumentale panden en historische straatjes. Dankzij de bushaltes, tramverbindingen en uitvalswegen richting Utrecht, A2 en A12 is de bereikbaarheid uitstekend. Sportfaciliteiten, scholen, gezondheidscentra en overige voorzieningen liggen eveneens dichtbij.
Voor meer informatie kunt u contact opnemen Alexandra van de Vegte-de Vilder, Sales Associate bij Netherlands Sotheby’s International Realty of neem contact op met uw eigen makelaar.
Living with Character in the Heart of Nieuwegein - “De Lantaern”
Step into the serene atmosphere of the former monastery De Lantaern, where history, tranquility, and modern comfort come together. This remarkable listed monument houses a beautiful apartment—an exceptional place for those who appreciate authentic details, tall windows, and a living environment that truly stands out.
The apartment seamlessly blends the warm charm of the past with today’s luxury: tastefully renovated spaces, a smart layout, and a calm ambiance that immediately embraces you.
In the charming and characterful monastery De Lantaern on Utrechtsestraat, a remarkably spacious apartment of no less than 152 m² awaits a new resident. This is living with atmosphere, luxury, and history all in one. With its generous living spaces, authentic monastic architecture, and modern comforts, this apartment offers a rare opportunity for anyone seeking something truly special. The location is perfect!
Layout
Through the stately gate, you reach the inner courtyard of De Lantaern, where the private parking spaces are located—one of which belongs to the apartment. The monumental entrance leads to the shared reception hall with mailboxes, intercom system, staircase, and lift. The storage room is located in the basement. The atmospheric cloister garden is available for communal use.
Apartment Description
Upon entering, the high-quality finishes and abundant natural light from the tall windows immediately catch the eye. The entrance hall with meter cupboard, wardrobe, and modern toilet flows seamlessly into the spacious living room with a glass mezzanine overlooking the dining area. The semi-open study features additional windows and a mezzanine overlooking the kitchen.
A small staircase leads to the generous dining room, with space for a large dining table. The kitchen is semi-open to the dining area and finished in a modern dark style with marble-look tiles. The corner layout and tall cabinet wall offer ample storage and are equipped with all necessary built-in appliances.
From the dining area, a staircase leads to the hallway giving access to the bedroom and laundry/storage room. The bedroom is attractively separated by wooden shutters, providing both privacy and light. The luxurious en-suite bathroom features a spacious walk-in shower, bathtub, second toilet, and washbasin cabinet.
The laundry/heating/storage room offers connections for laundry equipment, the air-source heat pump installation, and additional storage space.
Special Features
- High-quality finishes and move-in ready
- Located at the front with beautiful views over the Merwede Canal
- Bright living room with stunning mezzanine overlooking the dining room and kitchen
- Semi-open study/lounge area adjacent to the living room
- Fully finished with herringbone wooden flooring and underfloor heating
- Stylish toilet with marble-look tiles, concrete-look basin, and wall-hung toilet
- Spacious bedroom with atmospheric wooden shutter partition
- Luxurious en-suite bathroom with marble-look tiles, walk-in shower, bathtub, washbasin cabinet, and second toilet
- Access to the communal cloister garden
- Bicycle storage in the basement
- Private parking space directly at the entrance
- Central location near various amenities
- Excellent accessibility by both public transport and car
- Active and healthy homeowners’ association (HOA), service charges €320,68
De Lantaern is located in one of the most desirable areas of Nieuwegein: a quiet, green street with all amenities within easy reach. Shops, supermarkets, cozy cafés and restaurants, and the charming village center of Jutphaas are all within walking distance. The nearby Vaartsche Rijn and surrounding green parks offer delightful walking routes and relaxing spots, while the area is characterized by monumental buildings and historic streets. Thanks to nearby bus stops, tram connections, and major roads towards Utrecht, the A2, and A12, accessibility is excellent. Sports facilities, schools, healthcare centers, and other amenities are also close by.
For more information, please contact Alexandra van de Vegte-de Vilder, Sales Associate at Netherlands Sotheby’s International Realty, or reach out to your own real estate agent.
Wonen met karakter in het hart van Nieuwegein - “De Lantaern”
Stap binnen in de serene sfeer van het voormalige klooster De Lantaern, waar historie, rust en modern wooncomfort samenkomen. In dit bijzondere rijksmonument ligt dit prachtige appartement een unieke plek voor wie houdt van authentieke details, hoge raampartijen en een woonomgeving die écht anders is.
Dit appartement combineert de warme uitstraling van het verleden met de luxe van nu: smaakvol vernieuwde ruimtes, een slimme indeling en een rustige ambiance die je meteen omarmt.
In het charmante, karaktervolle klooster De Lantaern aan de Utrechtsestraat wacht een bijzonder royaal appartement van maar liefst 152 m² op een nieuwe bewoner. Dit is wonen met sfeer, luxe en historie in één. Met zijn royale leefruimtes, authentieke kloosterarchitectuur en moderne wooncomfort is dit appartement en zeldzame kans voor wie op zoek is naar iets bijzonders. De ligging is perfect!
Indeling
Via het statige elektrisch hekwerk bereik je het binnenterrein van De Lantaern, met de privéparkeerplaatsen waarvan één bij het appartement hoort. De monumentale entree geeft toegang tot de gezamenlijke ontvangsthal met brievenbussen, bellenplateau, trapopgang en lift. De berging bevindt zich in het souterrain. De sfeervolle kloostertuin is voor gemeenschappelijk gebruik.
Omschrijving appartement:
Bij binnenkomst valt direct de hoogwaardige afwerking en overvloedige lichtinval door de prachtige hoge ramen op. De entree met meterkast, garderobe en modern toilet loopt naadloos over in de ruime woonkamer met glazen vide richting het eetgedeelte. De halfopen werkkamer heeft extra raampartijen en een vide op de keuken.
Via een kleine trap bereik je de royale eetkamer met plaats voor een grote eettafel. De keuken staat in halfopen verbinding met de eetkamer en is uitgevoerd in een moderne donkere stijl met marmerlook tegels. De hoekopstelling en hoge kastenwand bieden veel bergruimte en zijn voorzien van alle benodigde inbouwapparatuur.
Vanuit de eetkamer leidt een trap naar de hal met toegang tot de slaapkamer en de was-/bergruimte. De slaapkamer is sfeervol afgescheiden met een houten shutters wand, wat zorgt voor zowel privacy als licht. De luxe badkamer ensuite is uitgerust met een ruime inloopdouche, ligbad, tweede toilet, wastafelmeubel.
De was-/stook-/bergruimte biedt aansluitingen voor wasapparatuur, de opstelling van de luchtwarmtepomp en extra opbergruimte.
Bijzonderheden:
- Hoogwaardig afgewerkt en direct instapklaar
- Gelegen aan de voorzijde met fraai uitzicht over het Merwedekanaal
- Lichte woonkamer met prachtige vide naar de eetkamer en keuken
- Halfopen werk-/zitkamer grenzend aan de woonkamer
- Volledig afgewerkt met visgraat houten vloer en vloerverwarming
- Stijlvol toilet met marmerlook tegels, betonlook fonteintje en wandcloset
- Royale slaapkamer met sfeervolle houten shutters als scheidingswand
- Luxe badkamer en-suite met marmerlook tegels, inloopdouche, ligbad, wastafelmeubel en tweede toilet
- Toegang tot de gezamenlijke kloostertuin
- Fietsenberging in het souterrain
- Eigen parkeerplaats direct voor de deur
- Centrale ligging nabij diverse voorzieningen
- Uitstekend bereikbaar met zowel openbaar vervoer als auto
- Actieve en gezonde VVE, servicekosten €320,68
De Lantaern ligt in een van de meest geliefde delen van Nieuwegein: een rustige, groene straat met alle voorzieningen binnen handbereik. Op loopafstand vind je winkels, supermarkten, gezellige horeca en de knusse dorpskern van Jutphaas. De nabijgelegen Vaartsche Rijn , Fort Jutphaas, Kasteel Rijnhuizen en groene parkzones bieden heerlijke wandelroutes en plekken om te ontspannen, terwijl de omgeving wordt gekenmerkt door monumentale panden en historische straatjes. Dankzij de bushaltes, tramverbindingen en uitvalswegen richting Utrecht, A2 en A12 is de bereikbaarheid uitstekend. Sportfaciliteiten, scholen, gezondheidscentra en overige voorzieningen liggen eveneens dichtbij.
Voor meer informatie kunt u contact opnemen Alexandra van de Vegte-de Vilder, Sales Associate bij Netherlands Sotheby’s International Realty of neem contact op met uw eigen makelaar.
Living with Character in the Heart of Nieuwegein - “De Lantaern”
Step into the serene atmosphere of the former monastery De Lantaern, where history, tranquility, and modern comfort come together. This remarkable listed monument houses a beautiful apartment—an exceptional place for those who appreciate authentic details, tall windows, and a living environment that truly stands out.
The apartment seamlessly blends the warm charm of the past with today’s luxury: tastefully renovated spaces, a smart layout, and a calm ambiance that immediately embraces you.
In the charming and characterful monastery De Lantaern on Utrechtsestraat, a remarkably spacious apartment of no less than 152 m² awaits a new resident. This is living with atmosphere, luxury, and history all in one. With its generous living spaces, authentic monastic architecture, and modern comforts, this apartment offers a rare opportunity for anyone seeking something truly special. The location is perfect!
Layout
Through the stately gate, you reach the inner courtyard of De Lantaern, where the private parking spaces are located—one of which belongs to the apartment. The monumental entrance leads to the shared reception hall with mailboxes, intercom system, staircase, and lift. The storage room is located in the basement. The atmospheric cloister garden is available for communal use.
Apartment Description
Upon entering, the high-quality finishes and abundant natural light from the tall windows immediately catch the eye. The entrance hall with meter cupboard, wardrobe, and modern toilet flows seamlessly into the spacious living room with a glass mezzanine overlooking the dining area. The semi-open study features additional windows and a mezzanine overlooking the kitchen.
A small staircase leads to the generous dining room, with space for a large dining table. The kitchen is semi-open to the dining area and finished in a modern dark style with marble-look tiles. The corner layout and tall cabinet wall offer ample storage and are equipped with all necessary built-in appliances.
From the dining area, a staircase leads to the hallway giving access to the bedroom and laundry/storage room. The bedroom is attractively separated by wooden shutters, providing both privacy and light. The luxurious en-suite bathroom features a spacious walk-in shower, bathtub, second toilet, and washbasin cabinet.
The laundry/heating/storage room offers connections for laundry equipment, the air-source heat pump installation, and additional storage space.
Special Features
- High-quality finishes and move-in ready
- Located at the front with beautiful views over the Merwede Canal
- Bright living room with stunning mezzanine overlooking the dining room and kitchen
- Semi-open study/lounge area adjacent to the living room
- Fully finished with herringbone wooden flooring and underfloor heating
- Stylish toilet with marble-look tiles, concrete-look basin, and wall-hung toilet
- Spacious bedroom with atmospheric wooden shutter partition
- Luxurious en-suite bathroom with marble-look tiles, walk-in shower, bathtub, washbasin cabinet, and second toilet
- Access to the communal cloister garden
- Bicycle storage in the basement
- Private parking space directly at the entrance
- Central location near various amenities
- Excellent accessibility by both public transport and car
- Active and healthy homeowners’ association (HOA), service charges €320,68
De Lantaern is located in one of the most desirable areas of Nieuwegein: a quiet, green street with all amenities within easy reach. Shops, supermarkets, cozy cafés and restaurants, and the charming village center of Jutphaas are all within walking distance. The nearby Vaartsche Rijn and surrounding green parks offer delightful walking routes and relaxing spots, while the area is characterized by monumental buildings and historic streets. Thanks to nearby bus stops, tram connections, and major roads towards Utrecht, the A2, and A12, accessibility is excellent. Sports facilities, schools, healthcare centers, and other amenities are also close by.
For more information, please contact Alexandra van de Vegte-de Vilder, Sales Associate at Netherlands Sotheby’s International Realty, or reach out to your own real estate agent.
| Vastgoed ID | NY100396 |
|---|---|
| Vraagprijs | € 975.000 k.k. |
| Woningtype | Appartement |
| Woonopp. | 152 m² |
| Perceelopp. | 152 m² |
| Bouwjaar | 2020 |
| Renovatiejaar | - |
| Slaapkamers | 1 |
| Badkamers | 1 |
| Garages | - |
| Energielabel | A+ |
Netherlands Sotheby's International Realty Emmalaan 23, 1075 AT Amsterdam
- Telefoon:+31.88.37.47.000
- Email:info@sothebysrealty.nl
- Website:www.sothebysrealty.nl
- Maandag - VrijdagOpen van 09.00 - 17.00
- Zaterdag - ZondagGesloten




















































