Villa te koop in WASSENAAR met referentie 19311403659 Van Wijnbergenlaan 6, 2242 JR WASSENAAR
Ref. WR104570

Welp Makelaardij
Vraagprijs€ 975.000 k.k.
Perceelopp.323 m²
Woonopp.176 m²

Contacteer Welp Makelaardij

Halfvrijstaande, levensloopbestendige villa op een rustige en groene locatie nabij centrum en duinen

Op een rustige, doodlopende laan en op korte loopafstand van het centrum én de duinen bieden wij deze ruime halfvrijstaande villa aan. De woning is levensloopbestendig dankzij de aanwezige lift en beschikt daarnaast over maar liefst vijf slaapkamers, energielabel B en parkeergelegenheid op eigen terrein. De woning beschikt over een ruime garage met elektrische deur en directe toegang tot de bijkeuken. De zonnige achtertuin biedt volop privacy en rust en vormt een heerlijke plek om te genieten van het buitenleven.

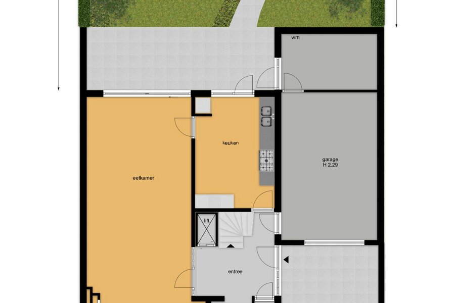
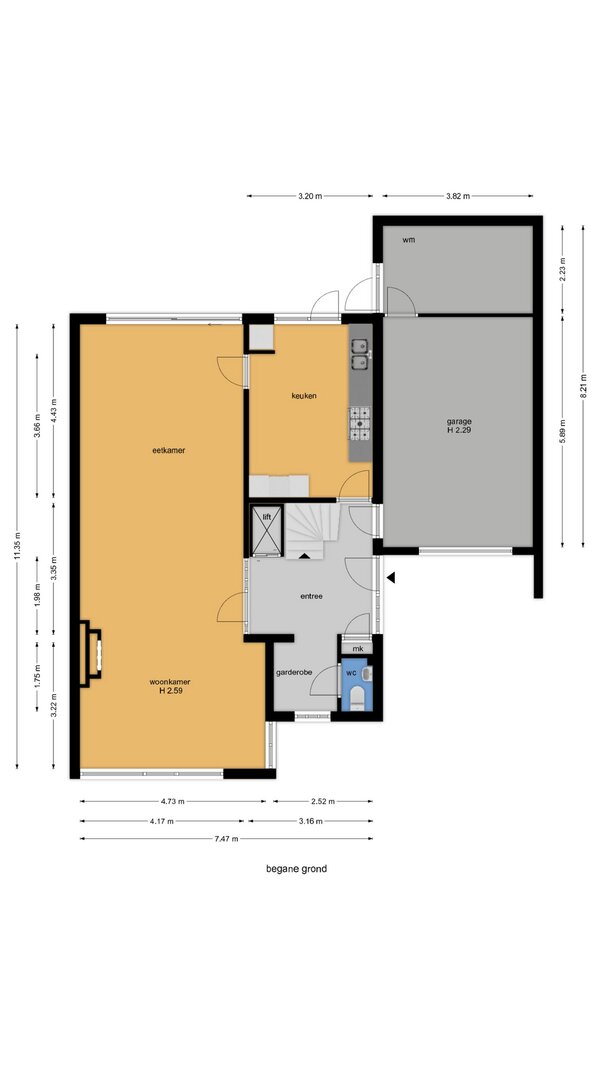
Indeling

Begane grond
Entree via de zijkant van de woning met toegang tot een royale hal voorzien van garderobe en een toilet met fonteintje. In de hal bevinden zich de trapopgang en de lift. Vanuit hier is er tevens interne toegang tot de garage en de bijkeuken. De garage is voorzien van een elektrische deur, verwarming en aansluitingen voor water en elektra. In de bijkeuken bevindt zich de wasmachineaansluiting.

De ruime en lichte doorzonwoonkamer is bereikbaar via een brede doorgang en kenmerkt zich door de fraaie houten vloer en de nette schouw. Dankzij de grote raampartijen aan zowel de voor- als achterzijde geniet de ruimte van een prettige lichtinval. De rechthoekige indeling zorgt voor een praktisch en ruimtelijk geheel.

De ruime keuken is compleet uitgerust met diverse inbouwapparatuur en biedt de mogelijkheid om bij de woonkamer te worden betrokken. Via de schuifpui en achterdeur is de tuin direct bereikbaar.

Eerste verdieping
Via de trap of lift bereikt u de ruime overloop met een hoog plafond tot in de nok, afgewerkt met fraai beschot. Dit zorgt voor een lichte en ruimtelijke uitstraling. Op de overloop bevindt zich tevens een tweede toilet. Vanaf hier is de ruime vliering bereikbaar, ideaal voor extra bergruimte en de opstelling van de mechanische ventilatie.

De verdieping beschikt over vijf slaapkamers. De hoofdslaapkamer aan de voorzijde is voorzien van een dakkapel. Aan de voorzijde bevindt zich tevens een tweede slaapkamer, eveneens met dakkapel. Aan de achterzijde liggen drie slaapkamers, waarvan twee met dakkapel. De vijfde slaapkamer bevindt zich boven de garage en is voorzien van meerdere dakramen.

De ruime badkamer is compleet uitgevoerd met een ligbad, inloopdouche, dubbel wastafelmeubel, handdoekradiator en mechanische ventilatie.

Buitenruimte
De groene voortuin en ruime oprit zorgen voor een prettige afstand tot de straat en bieden parkeergelegenheid voor twee auto’s op eigen terrein, met mogelijkheid tot laden. De brede achtertuin is vanuit meerdere ruimtes toegankelijk en beschikt over twee terrassen, waardoor u op verschillende momenten van de dag kunt kiezen voor zon of schaduw.

Bijzonderheden:
- Halfvrijstaande villa op een gewilde locatie
- Woonoppervlakte is 176 m2
- Perceel van 323 m2
- Gelegen in een rustige, groene woonomgeving nabij centrum en duinen
- Levensloopbestendig dankzij lift
- Vijf slaapkamers
- Parkeren op eigen terrein
- Ruime garage en praktische bijkeuken
- Grote vliering met veel bergruimte
- Dak-, vloer- en muurisolatie
- Energielabel B
- De verkoper heeft de woning niet bewoond
- Niet-bewoningsclausule, ouderdomsclausule en asbestclausule van toepassing op de koopovereenkomst

Deze presentatie is met zorg samengesteld door Welp Makelaardij. Desondanks aanvaarden wij geen aansprakelijkheid voor eventuele onjuistheden of onvolledigheden. Alle vermelde maten en oppervlakten zijn indicatief. De NVM-voorwaarden zijn van toepassing.

Enthousiast geworden?
Deze woning aan de Van Wijnbergenlaan 6 is absoluut een bezichtiging waard. Neem contact met ons op, wij leiden u graag rond!

Vastgoed IDWR104570
Vraagprijs€ 975.000 k.k.
WoningtypeVilla
Woonopp.176 m²
Perceelopp.323 m²
Bouwjaar1979
Renovatiejaar -
Slaapkamers5
Badkamers1
Garages1
EnergielabelB

Welp Makelaardij Van Hogendorpstraat 16 d, 2242 KZ Wassenaar

  • Maandag - VrijdagOpen van 09.00 - 17.30
  • Zaterdag Open van 10.00 - 14.00
  • Zondag Gesloten

Contacteer Welp Makelaardij