Appartement te koop in AMSTERDAM met referentie 19510076488
Van Baerlestraat 143, 1071 AW AMSTERDAM—Ref. LN102191
***SEE ENGLISH TEXT BELOW***
Wonen aan de iconische Van Baerlestraat betekent wonen in het hart van cultureel en stedelijk Amsterdam. Dit charmante appartement op nummer 14-III combineert klassieke allure met het comfort van de stad binnen handbereik. Een heerlijke plek voor wie houdt van levendigheid, stijl en gemak. Hier ervaar je dagelijks het beste dat Amsterdam te bieden heeft op een toplocatie in Oud-Zuid!
INDELING
Gemeenschappelijke entree, trap naar de eerste verdieping. Eigen voordeur met opgang naar de tweede verdieping. Ruime hal met trap naar de bovenste etage, veel vaste kasten met opbergruimte, een aparte wc en deur naar de royale leefruimte. Bij binnenkomst valt direct de hoeveelheid licht op die het appartement binnen treedt. Aan de voorzijde gelegen bevindt zich de goed uitgeruste keuken met diverse inbouwapparatuur. De achterzijde heeft volop ruimte om een sfeervolle living en (thuis) werkplek te creëren. Openslaande deuren naar het balkon van ca. 10 m² met vrij uitzicht en ligging op het westen, hier is het heerlijk genieten van de middag en avondzon.
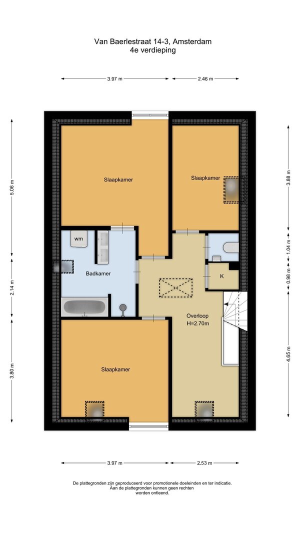
Op de tweede verdieping een ruime overloop, drie goede slaapkamers, vaste kasten met opbergruimte, een aparte wc en badkamer voorzien van dubbele wastafel, ligbad, douche en aansluitingen voor de wasmachine en droger. Via een luik toegang naar de vliering met extra opbergruimte.
OMGEVING & BEREIKBAARHEID
De Van Baerlestraat ligt op een van de meest geliefde locaties van Amsterdam, direct naast het Museumkwartier. Op loopafstand bevinden zich het Vondelpark, het Concertgebouw en diverse musea, evenals een breed aanbod aan cafés, restaurants en boetieks. Voor dagelijkse boodschappen en luxe winkels kun je terecht in de nabijgelegen Cornelis Schuytstraat en de P.C. Hooftstraat. De bereikbaarheid is uitstekend: met meerdere tram- en busverbindingen om de hoek ben je snel in de rest van de stad, en ook de Ring A10 en Station Zuid zijn eenvoudig bereikbaar. Een toplocatie voor wie centraal wil wonen zonder in te leveren op rust en comfort.
KENMERKEN
- Gebruiksoppervlakte wonen ca. 155 m² (NEN2580 meetrapport beschikbaar)
- Gelegen op eigen grond, geen erfpacht
- Energielabel A
- Drie slaapkamers en één badkamer
- Top locatie in Oud-Zuid om de hoek van het Vondelpark en P.C. Hooftstraat
- Op loopafstand van diverse musea (o.a. Rijksmuseum, Van Gogh en Stedelijk)
- Balkon van ca. 10 m² gelegen op het westen
- Maandelijkse VVE service kosten bedragen ca. € 465,-
- Actieve en professioneel beheerde Vereniging van Eigenaren
- Oplevering in overleg
- Niet zelfbewonings-clausule
- Ouderdomsclausule
- Verkoop onder voorbehoud gunning verkoper
Voor een rondleiding deze dubbele bovenwoning op een toplocatie in Amsterdam Oud-Zuid kunt u contact opnemen met Aldert J. Froma, NVM Makelaar van ons makelaarskantoor Laren. Nog beter is om uw eigen NVM makelaar mee te nemen.
Deze informatie is door ons met de nodige zorgvuldigheid samengesteld. Onzerzijds wordt echter geen enkele aansprakelijkheid aanvaard voor enige onvolledigheid, onjuistheid of anderszins, dan wel de gevolgen daarvan. Alle opgegeven maten en oppervlakten zijn indicatief. Koper heeft zijn eigen onderzoek plicht naar alle zaken die voor hem of haar van belang zijn. Met betrekking tot deze woning is de makelaar adviseur van verkoper. Wij adviseren u een deskundige (NVM-)makelaar in te schakelen die u begeleidt bij het aankoopproces. Indien u specifieke wensen heeft omtrent de woning, adviseren wij u deze tijdig kenbaar te maken aan uw aankopend makelaar en hiernaar zelfstandig onderzoek te (laten) doen. Indien u geen deskundige vertegenwoordiger inschakelt, acht u zich volgens de wet deskundige genoeg om alle zaken die van belang zijn te kunnen overzien. Van toepassing zijn de NVM voorwaarden.
_________________________________________________________________________________________________
Living on the iconic Van Baerlestraat means living in the heart of cultural and urban Amsterdam. This charming apartment at number 14-III combines classic allure with the comforts of the city within easy reach. A wonderful place for those who appreciate vibrancy, style, and convenience. Here you'll experience the best Amsterdam has to offer every day in a prime location in Oud-Zuid!
LAYOUT
Communal entrance, stairs to the first floor. Private front door with access to the second floor. Spacious hallway with stairs to the top floor, plenty of built-in closets with storage space, a separate toilet, and a door to the spacious living area. Upon entering, you'll immediately notice the abundance of light that fills the apartment. At the front is the well-equipped kitchen with various built-in appliances. The rear offers ample space to create a cozy living room and (home) workspace. French doors open onto the approximately 10 m² balcony with unobstructed views and a sout-west-facing location, perfect for enjoying the afternoon and evening sun. The second floor features a spacious landing, three good-sized bedrooms, built-in wardrobes with storage space, a separate toilet, and a bathroom with a double sink, bathtub, shower, and connections for a washing machine and dryer. A hatch provides access to the attic with additional storage space.
LOCATION & ACCESSIBILITY
Van Baerlestraat is situated in one of Amsterdam's most desirable locations, right next to the Museum Quarter. Within walking distance are Vondelpark, the Concertgebouw, and various museums, as well as a wide selection of cafés, good restaurants, and boutiques. For daily groceries and luxury shops, visit the nearby Cornelis Schuytstraat and P.C. Hooftstraat. Accessibility is excellent: with several tram and bus connections just around the corner, you can quickly reach the rest of the city, and the A10 ring road and Zuid Station are also easily accessible. A prime location for those who want to live centrally without sacrificing peace and quiet and comfort.
FEATURES
- Living area approx. 155 m² (NEN2580 measurement report available)
- Located on own ground, no leasehold
- Energy label A
- Three bedrooms and one bathroom
- Prime location in Oud-Zuid, around the corner from Vondelpark and P.C. Hooftstraat
- Within walking distance of various museums (including the Rijksmuseum, Van Gogh Museum, and Stedelijk Museum)
- West-facing balcony of approx. 10 m²
- Monthly VVE service fees are approx. € 465,-
- Active and professionally managed Homeowners' Association
- Delivery upon agreement
- Non-occupancy clause
- Age clause
- Sale subject to seller's approval
For a tour of this beautiful double upper house in a great location in Amsterdam Oud-Zuid, please contact Aldert J. Froma, NVM Real Estate Agent at our Laren real estate agency. It's even better if you bring your own NVM real estate agent.
This information has been compiled by us with due care. However, we accept no liability for any incompleteness, inaccuracy, or otherwise, or for the consequences thereof. All stated dimensions and surface areas are indicative. The buyer is obligated to investigate all matters of importance to them. The real estate agent is acting as the seller's advisor regarding this property. We recommend engaging an expert (NVM) real estate agent to guide you through the purchase process. If you have specific wishes regarding the property, we advise you to inform your purchasing agent in a timely manner and to conduct your own independent investigation. If you do not engage an expert representative, you are legally considered sufficiently expert to understand all relevant matters. The NVM terms and conditions apply.
Wonen aan de iconische Van Baerlestraat betekent wonen in het hart van cultureel en stedelijk Amsterdam. Dit charmante appartement op nummer 14-III combineert klassieke allure met het comfort van de stad binnen handbereik. Een heerlijke plek voor wie houdt van levendigheid, stijl en gemak. Hier ervaar je dagelijks het beste dat Amsterdam te bieden heeft op een toplocatie in Oud-Zuid!
INDELING
Gemeenschappelijke entree, trap naar de eerste verdieping. Eigen voordeur met opgang naar de tweede verdieping. Ruime hal met trap naar de bovenste etage, veel vaste kasten met opbergruimte, een aparte wc en deur naar de royale leefruimte. Bij binnenkomst valt direct de hoeveelheid licht op die het appartement binnen treedt. Aan de voorzijde gelegen bevindt zich de goed uitgeruste keuken met diverse inbouwapparatuur. De achterzijde heeft volop ruimte om een sfeervolle living en (thuis) werkplek te creëren. Openslaande deuren naar het balkon van ca. 10 m² met vrij uitzicht en ligging op het westen, hier is het heerlijk genieten van de middag en avondzon.
Op de tweede verdieping een ruime overloop, drie goede slaapkamers, vaste kasten met opbergruimte, een aparte wc en badkamer voorzien van dubbele wastafel, ligbad, douche en aansluitingen voor de wasmachine en droger. Via een luik toegang naar de vliering met extra opbergruimte.
OMGEVING & BEREIKBAARHEID
De Van Baerlestraat ligt op een van de meest geliefde locaties van Amsterdam, direct naast het Museumkwartier. Op loopafstand bevinden zich het Vondelpark, het Concertgebouw en diverse musea, evenals een breed aanbod aan cafés, restaurants en boetieks. Voor dagelijkse boodschappen en luxe winkels kun je terecht in de nabijgelegen Cornelis Schuytstraat en de P.C. Hooftstraat. De bereikbaarheid is uitstekend: met meerdere tram- en busverbindingen om de hoek ben je snel in de rest van de stad, en ook de Ring A10 en Station Zuid zijn eenvoudig bereikbaar. Een toplocatie voor wie centraal wil wonen zonder in te leveren op rust en comfort.
KENMERKEN
- Gebruiksoppervlakte wonen ca. 155 m² (NEN2580 meetrapport beschikbaar)
- Gelegen op eigen grond, geen erfpacht
- Energielabel A
- Drie slaapkamers en één badkamer
- Top locatie in Oud-Zuid om de hoek van het Vondelpark en P.C. Hooftstraat
- Op loopafstand van diverse musea (o.a. Rijksmuseum, Van Gogh en Stedelijk)
- Balkon van ca. 10 m² gelegen op het westen
- Maandelijkse VVE service kosten bedragen ca. € 465,-
- Actieve en professioneel beheerde Vereniging van Eigenaren
- Oplevering in overleg
- Niet zelfbewonings-clausule
- Ouderdomsclausule
- Verkoop onder voorbehoud gunning verkoper
Voor een rondleiding deze dubbele bovenwoning op een toplocatie in Amsterdam Oud-Zuid kunt u contact opnemen met Aldert J. Froma, NVM Makelaar van ons makelaarskantoor Laren. Nog beter is om uw eigen NVM makelaar mee te nemen.
Deze informatie is door ons met de nodige zorgvuldigheid samengesteld. Onzerzijds wordt echter geen enkele aansprakelijkheid aanvaard voor enige onvolledigheid, onjuistheid of anderszins, dan wel de gevolgen daarvan. Alle opgegeven maten en oppervlakten zijn indicatief. Koper heeft zijn eigen onderzoek plicht naar alle zaken die voor hem of haar van belang zijn. Met betrekking tot deze woning is de makelaar adviseur van verkoper. Wij adviseren u een deskundige (NVM-)makelaar in te schakelen die u begeleidt bij het aankoopproces. Indien u specifieke wensen heeft omtrent de woning, adviseren wij u deze tijdig kenbaar te maken aan uw aankopend makelaar en hiernaar zelfstandig onderzoek te (laten) doen. Indien u geen deskundige vertegenwoordiger inschakelt, acht u zich volgens de wet deskundige genoeg om alle zaken die van belang zijn te kunnen overzien. Van toepassing zijn de NVM voorwaarden.
_________________________________________________________________________________________________
Living on the iconic Van Baerlestraat means living in the heart of cultural and urban Amsterdam. This charming apartment at number 14-III combines classic allure with the comforts of the city within easy reach. A wonderful place for those who appreciate vibrancy, style, and convenience. Here you'll experience the best Amsterdam has to offer every day in a prime location in Oud-Zuid!
LAYOUT
Communal entrance, stairs to the first floor. Private front door with access to the second floor. Spacious hallway with stairs to the top floor, plenty of built-in closets with storage space, a separate toilet, and a door to the spacious living area. Upon entering, you'll immediately notice the abundance of light that fills the apartment. At the front is the well-equipped kitchen with various built-in appliances. The rear offers ample space to create a cozy living room and (home) workspace. French doors open onto the approximately 10 m² balcony with unobstructed views and a sout-west-facing location, perfect for enjoying the afternoon and evening sun. The second floor features a spacious landing, three good-sized bedrooms, built-in wardrobes with storage space, a separate toilet, and a bathroom with a double sink, bathtub, shower, and connections for a washing machine and dryer. A hatch provides access to the attic with additional storage space.
LOCATION & ACCESSIBILITY
Van Baerlestraat is situated in one of Amsterdam's most desirable locations, right next to the Museum Quarter. Within walking distance are Vondelpark, the Concertgebouw, and various museums, as well as a wide selection of cafés, good restaurants, and boutiques. For daily groceries and luxury shops, visit the nearby Cornelis Schuytstraat and P.C. Hooftstraat. Accessibility is excellent: with several tram and bus connections just around the corner, you can quickly reach the rest of the city, and the A10 ring road and Zuid Station are also easily accessible. A prime location for those who want to live centrally without sacrificing peace and quiet and comfort.
FEATURES
- Living area approx. 155 m² (NEN2580 measurement report available)
- Located on own ground, no leasehold
- Energy label A
- Three bedrooms and one bathroom
- Prime location in Oud-Zuid, around the corner from Vondelpark and P.C. Hooftstraat
- Within walking distance of various museums (including the Rijksmuseum, Van Gogh Museum, and Stedelijk Museum)
- West-facing balcony of approx. 10 m²
- Monthly VVE service fees are approx. € 465,-
- Active and professionally managed Homeowners' Association
- Delivery upon agreement
- Non-occupancy clause
- Age clause
- Sale subject to seller's approval
For a tour of this beautiful double upper house in a great location in Amsterdam Oud-Zuid, please contact Aldert J. Froma, NVM Real Estate Agent at our Laren real estate agency. It's even better if you bring your own NVM real estate agent.
This information has been compiled by us with due care. However, we accept no liability for any incompleteness, inaccuracy, or otherwise, or for the consequences thereof. All stated dimensions and surface areas are indicative. The buyer is obligated to investigate all matters of importance to them. The real estate agent is acting as the seller's advisor regarding this property. We recommend engaging an expert (NVM) real estate agent to guide you through the purchase process. If you have specific wishes regarding the property, we advise you to inform your purchasing agent in a timely manner and to conduct your own independent investigation. If you do not engage an expert representative, you are legally considered sufficiently expert to understand all relevant matters. The NVM terms and conditions apply.
| Vastgoed ID | LN102191 |
|---|---|
| Vraagprijs | € 1.495.000 k.k. |
| Woningtype | Appartement |
| Woonopp. | 155 m² |
| Perceelopp. | - |
| Bouwjaar | 1876 |
| Renovatiejaar | - |
| Slaapkamers | 3 |
| Badkamers | 1 |
| Garages | - |
| Energielabel | A |
Voorma en Walch Laren Brink 34, 1251 KW Laren
- Telefoon:+31.35.539.90.80
- Email:laren@voorma-walch.nl
- Website:voorma-walch.nl
- Maandag - VrijdagOpen van 08.30 - 17.30
- Zaterdag Open van 10.00 - 16.00
- Zondag Gesloten


















































