Villa te koop in LAREN met referentie 19710685257
Mauvezand 54, 1251 JG LAREN—Ref. BM100886
Aan de rand van het pittoreske Laren, verscholen tussen statige bomen en uitkijkend over de historische Mauvevijver, ligt een villa die zeldzaam genoemd mag worden. Niet alleen vanwege de exclusieve locatie, midden in natuurgebied en toch op loopafstand van het dorpshart, maar vooral omdat dit huis volledig voldoet aan het verlanglijstje waar zovelen naar zoeken. Geen verbouwstress, geen aannemers, geen compromissen: hier is alles tot in detail vernieuwbouwd in 2021/2022 en perfectionistisch afgewerkt.
Middels de automatische toegangspoort wordt de zeer ruime oprit met parkeergelegenheid voor meerdere auto's bereikt, met aan de linkerzijde een riant vrijstaand rietgedekt questhouse met aangrenzend een carport voor twee auto's en aan de
andere zijde de prachtige vrijstaande villa met een woonoppervlakte van circa 303 m².
Indeling
Begane grond:
Bij binnenkomst wordt meteen duidelijk dat deze villa gebouwd is vanuit een visie op woongenot. De hal met leren trapbekleding en zichtlijnen naar meerdere leefruimten vormt de luxe entree van een uitzonderlijk huis. Via elegante taatsdeuren betreedt u de riante woonkeuken, het sociale hart van de woning. Het kookeiland is uitgevoerd in marmer met een leerfinish, omringd door topklasse Gaggenau-apparatuur en een volledig ingerichte bar met wijnklimaatkasten. Koken, borrelen, genieten – het gebeurt allemaal hier.
De aangrenzende woonkamer is ruim, warm en stijlvol, met een met de hand gevlochten leren wand, een bio-ethanolhaard en een adembenemend uitzicht op de natuur. Daarnaast biedt de begane grond een werkkamer en een multifunctionele vleugel. Deze vleugel beschikt over een eigen entree, badkamer, tv-/loungeruimte met Dolby Digital bioscoopsysteem en zelfs een ‘eigen voordeur’. Perfect voor logees, tieners, au-pair, of gelijkvloers wonen.
Alle materialen spreken dezelfde taal: maatwerk, natuurlijke luxe en een ongekend oog voor detail. Van de Hongaarse punt eiken vloeren tot Lutron-domotica, 24/7 camerabewaking en hoogwaardige klimaatregulatie met warmtepomp en airconditioning: dit is comfort op het hoogste niveau.
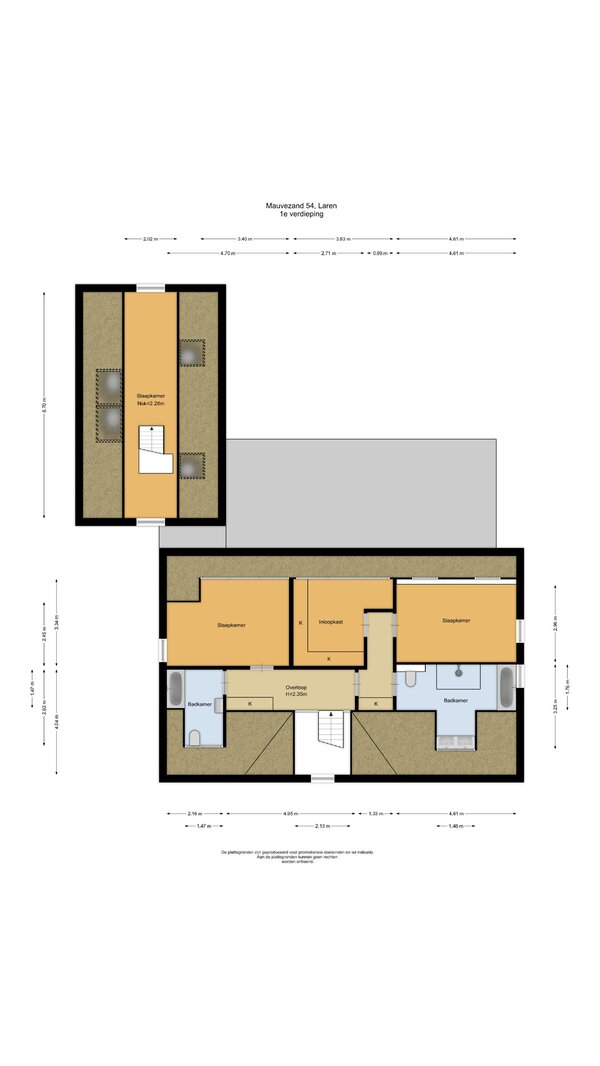
Eerste verdieping
De eerste verdieping is ontworpen als privéverblijf, met rust en ruimte als uitgangspunt. De master suite strekt zich uit over drie kamers: een serene slaapkamer, een riante dressing (desgewenst eenvoudig te wijzigen in extra slaapkamer) en een luxueuze badkamer voorzien van marmer, maatwerkmeubilair en Gessi-sanitair.
De overige twee slaapkamers delen dezelfde verfijning en beschikken over een eigen luxe badkamer. De overloop met vide benadrukt opnieuw het luchtige, open karakter van dit huis. Alles klopt, alles ademt kwaliteit en comfort.
Guesthouse
Op het erf bevindt zich een zelfstandig gastenverblijf met een woonoppervlakte van circa 71 m², bestaande uit een woonkamer, keuken, badkamer en slaapkamer biedt dit pand volledige zelfstandigheid. Ideaal als kantoor, atelier, studio, woning voor au-pair of logeerplek.
Tuin, terassen en zwembad
Wie de tuin inloopt, staat in een privéresort. Hier liggen zonneterrassen rondom een verwarmd magnesiumzwembad. Een onderhoudsarme, stijlvolle vlonder omsluit het water. De tuin is onder architectuur ontworpen en volledig computergestuurd beregend vanuit eigen bron. Voor kinderen is er een natuurlijk speelveld met klimnetten en hutten: avonturen in de natuur zonder het erf te verlaten.
Vanuit de tuin loopt u vrijwel direct een beschermd natuurgebied in. En dan te bedenken dat het gezellige centrum van Laren en Blaricum op enkele minuten ligt, en de Zuidas slechts een half uur rijden.
Bijzonderheden
- Volledig vernieuwbouwd in 2021/2022, instapklaar
- Woonoppervlakte villa; circa 303 m²
- Woonoppervlakte bijgebouw; circa 71 m²
- Rietgedekte villa met vrij uitzicht over beschermd natuurgebied
- Warmtepomp, 40 zonnepanelen en volledige airconditioning
- Lutron-domotica + uitgebreid beveiligingssysteem met 12 camera’s
- Luxe woonkeuken (Gaggenau), marmer en maatwerkafwerking
- Dolby Digital bioscoopruimte en magnesium zwembad
- Vrijstaand gastenverblijf met eigen voorzieningen
- Grote carport + veel parkeergelegenheid op eigen terrein
- Tuin met beregening, speelveld en volwassen bomen
- Op loopafstand van het centrum van Laren en Blaricum, direct aan natuur
Oplevering: in overleg
Voor een bezichtiging van dit karakteristieke landhuis, kunt u contact opnemen met Bart Lammerts, NVM Makelaar van ons makelaarskantoor Blaricum. Nog beter is om uw eigen NVM Aankoop makelaar mee te nemen.
Middels de automatische toegangspoort wordt de zeer ruime oprit met parkeergelegenheid voor meerdere auto's bereikt, met aan de linkerzijde een riant vrijstaand rietgedekt questhouse met aangrenzend een carport voor twee auto's en aan de
andere zijde de prachtige vrijstaande villa met een woonoppervlakte van circa 303 m².
Indeling
Begane grond:
Bij binnenkomst wordt meteen duidelijk dat deze villa gebouwd is vanuit een visie op woongenot. De hal met leren trapbekleding en zichtlijnen naar meerdere leefruimten vormt de luxe entree van een uitzonderlijk huis. Via elegante taatsdeuren betreedt u de riante woonkeuken, het sociale hart van de woning. Het kookeiland is uitgevoerd in marmer met een leerfinish, omringd door topklasse Gaggenau-apparatuur en een volledig ingerichte bar met wijnklimaatkasten. Koken, borrelen, genieten – het gebeurt allemaal hier.
De aangrenzende woonkamer is ruim, warm en stijlvol, met een met de hand gevlochten leren wand, een bio-ethanolhaard en een adembenemend uitzicht op de natuur. Daarnaast biedt de begane grond een werkkamer en een multifunctionele vleugel. Deze vleugel beschikt over een eigen entree, badkamer, tv-/loungeruimte met Dolby Digital bioscoopsysteem en zelfs een ‘eigen voordeur’. Perfect voor logees, tieners, au-pair, of gelijkvloers wonen.
Alle materialen spreken dezelfde taal: maatwerk, natuurlijke luxe en een ongekend oog voor detail. Van de Hongaarse punt eiken vloeren tot Lutron-domotica, 24/7 camerabewaking en hoogwaardige klimaatregulatie met warmtepomp en airconditioning: dit is comfort op het hoogste niveau.
Eerste verdieping
De eerste verdieping is ontworpen als privéverblijf, met rust en ruimte als uitgangspunt. De master suite strekt zich uit over drie kamers: een serene slaapkamer, een riante dressing (desgewenst eenvoudig te wijzigen in extra slaapkamer) en een luxueuze badkamer voorzien van marmer, maatwerkmeubilair en Gessi-sanitair.
De overige twee slaapkamers delen dezelfde verfijning en beschikken over een eigen luxe badkamer. De overloop met vide benadrukt opnieuw het luchtige, open karakter van dit huis. Alles klopt, alles ademt kwaliteit en comfort.
Guesthouse
Op het erf bevindt zich een zelfstandig gastenverblijf met een woonoppervlakte van circa 71 m², bestaande uit een woonkamer, keuken, badkamer en slaapkamer biedt dit pand volledige zelfstandigheid. Ideaal als kantoor, atelier, studio, woning voor au-pair of logeerplek.
Tuin, terassen en zwembad
Wie de tuin inloopt, staat in een privéresort. Hier liggen zonneterrassen rondom een verwarmd magnesiumzwembad. Een onderhoudsarme, stijlvolle vlonder omsluit het water. De tuin is onder architectuur ontworpen en volledig computergestuurd beregend vanuit eigen bron. Voor kinderen is er een natuurlijk speelveld met klimnetten en hutten: avonturen in de natuur zonder het erf te verlaten.
Vanuit de tuin loopt u vrijwel direct een beschermd natuurgebied in. En dan te bedenken dat het gezellige centrum van Laren en Blaricum op enkele minuten ligt, en de Zuidas slechts een half uur rijden.
Bijzonderheden
- Volledig vernieuwbouwd in 2021/2022, instapklaar
- Woonoppervlakte villa; circa 303 m²
- Woonoppervlakte bijgebouw; circa 71 m²
- Rietgedekte villa met vrij uitzicht over beschermd natuurgebied
- Warmtepomp, 40 zonnepanelen en volledige airconditioning
- Lutron-domotica + uitgebreid beveiligingssysteem met 12 camera’s
- Luxe woonkeuken (Gaggenau), marmer en maatwerkafwerking
- Dolby Digital bioscoopruimte en magnesium zwembad
- Vrijstaand gastenverblijf met eigen voorzieningen
- Grote carport + veel parkeergelegenheid op eigen terrein
- Tuin met beregening, speelveld en volwassen bomen
- Op loopafstand van het centrum van Laren en Blaricum, direct aan natuur
Oplevering: in overleg
Voor een bezichtiging van dit karakteristieke landhuis, kunt u contact opnemen met Bart Lammerts, NVM Makelaar van ons makelaarskantoor Blaricum. Nog beter is om uw eigen NVM Aankoop makelaar mee te nemen.
| Vastgoed ID | BM100886 |
|---|---|
| Vraagprijs | € 4.750.000 k.k. |
| Woningtype | Villa |
| Woonopp. | 374 m² |
| Perceelopp. | 2.435 m² |
| Bouwjaar | 1983 |
| Renovatiejaar | - |
| Slaapkamers | 4 |
| Badkamers | 4 |
| Garages | - |
| Energielabel | A+ |
Voorma en Walch Blaricum Torenlaan 12 D, 1261 GD Blaricum
- Telefoon:+31.35.531.53.00
- Email:blaricum@voorma-walch.nl
- Website:voorma-walch.nl
- Maandag - VrijdagOpen van 08.30 - 17.30
- Zaterdag Open van 10.00 - 16.00
- Zondag Gesloten
























































