Villa te koop in AMSTERDAM met referentie 19810999666
Van Miereveldstraat 7, 1071 DW AMSTERDAM—Ref. AM103024
Charmant familiehuis met zonnige tuin op top locatie in Amsterdam-Zuid!
Dit elegante en exclusieve herenhuis, rijk aan karakter, is een zeldzame vondst en ligt verscholen in een rustig gedeelte van het Museumkwartier in Amsterdam. De woning kenmerkt zich door verfijnd vakmanschap van hoog niveau en een scala aan charmante details, wat samen resulteert in een warme en uitnodigende gezinswoning. Met een totale woonoppervlakte van 321 m², verdeeld over vier woonlagen, aangevuld met een sfeervolle zolder en een compacte kelder, beschikt het huis tevens over een royaal en rustig gelegen achtertuin op het zuidoosten, die een oase van rust biedt.
De woning is met grote zorg gerenoveerd en gemoderniseerd, met behoud van de oorspronkelijke en karakteristieke elementen. Er zijn vier (met mogelijkheid tot vijf) ruime slaapkamers en drie luxueuze badkamers, verdeeld over vier verdiepingen. Daarnaast beschikt de woning over diverse buitenruimtes, waaronder een fraai aangelegde tuin, een balkon en een loggia. Authentieke details zijn rijkelijk aanwezig, zoals glas-in-loodramen, hoge plafonds, sierlijke paneeldeuren, klassieke ornamenten en een indrukwekkende marmeren entree.
Gelegen in de zeer gewilde wijk Amsterdam Oud-Zuid, bevindt de woning zich op loopafstand van het Concertgebouw, het Museumplein, het Rijksmuseum, de grachten en het Zuiderbad. In de directe omgeving ligt de Cornelis Schuytstraat met een gevarieerd aanbod aan speciaalzaken, boetieks en de Zuidermarkt. Luxe winkelstraten zoals de P.C. Hooftstraat, gezellige brasserieën en sfeervolle pleinen zijn om de hoek te vinden. Ondanks de centrale ligging in Amsterdam bevindt deze woning zich in een rustige en veilige buurt met doorgaans probleemloos parkeren.
Indeling:
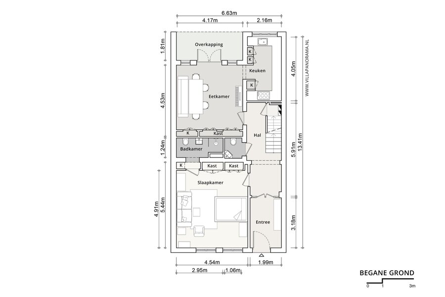
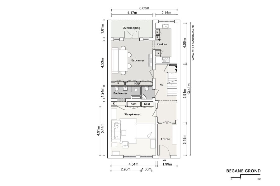
Begane grond:
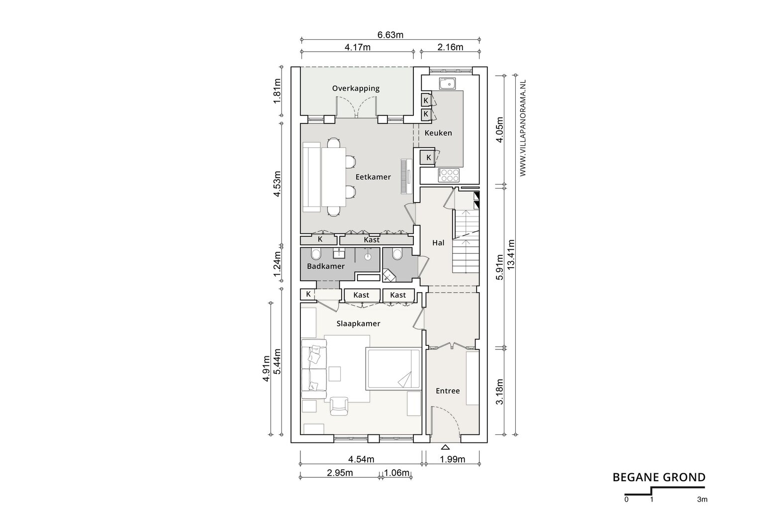
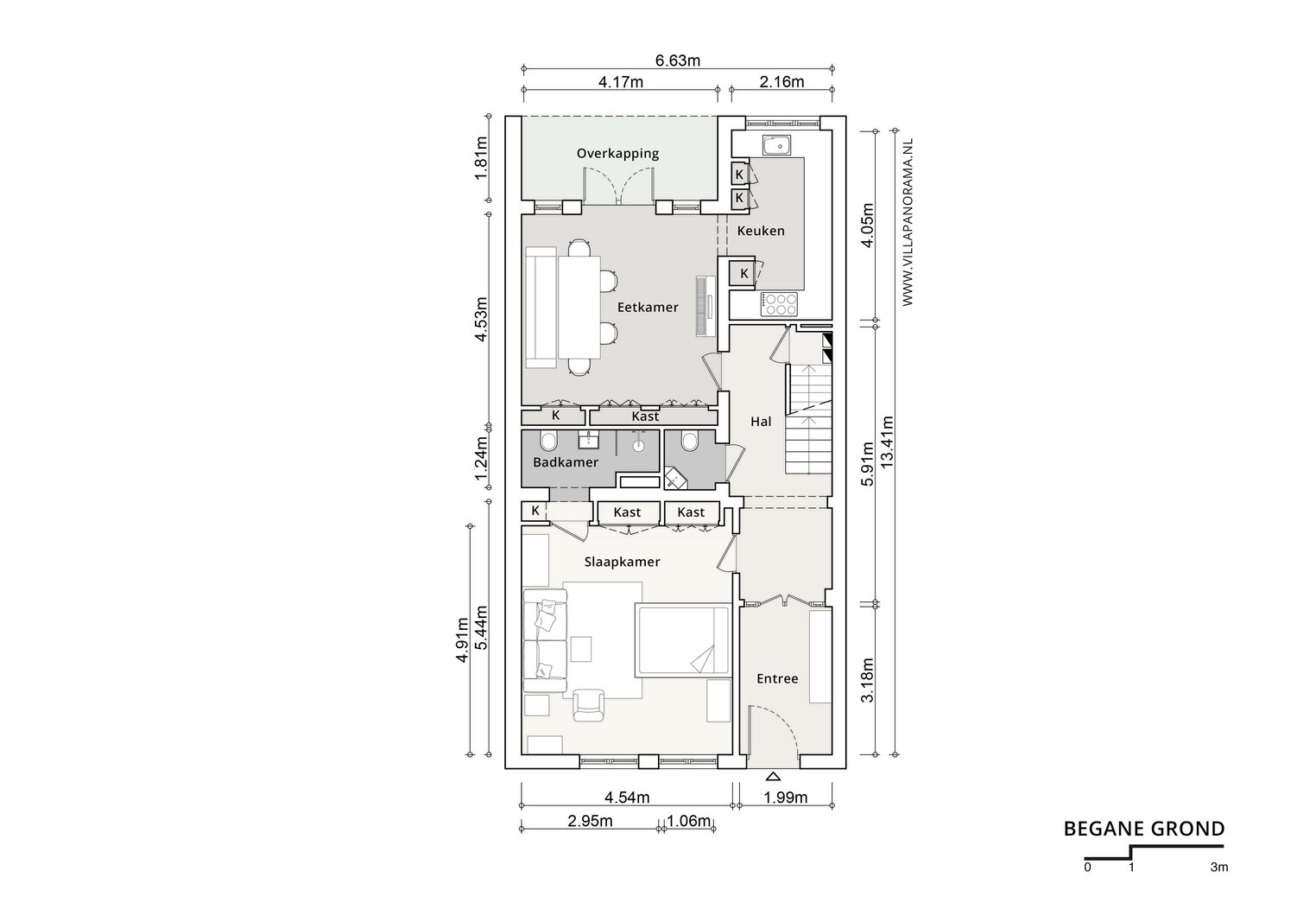
Royale entree met een imposante marmeren vestibule, voorzien van glas-in-looddetails en verfijnde afwerking. Een tweede hal leidt naar de gang en een gastentoilet met fonteintje. De voorkamer beschikt over vaste kasten en een aangrenzende badkamer met toilet, wastafelmeubel en regendouche, ideaal als gasten- of au-pairkamer. Aan de achterzijde bevindt zich de eetkamer met openslaande deuren naar een beschut terras en de fraai aangelegde tuin, ontworpen door gerenommeerd landschapsarchitect Eugénie André de la Porte. Aangrenzend ligt de semi-open keuken, uitgerust met hoogwaardige inbouwapparatuur en luxe werkbladen.
Kelder:
Via een trap vanaf de begane grond is de kleine kelder bereikbaar, uitermate geschikt voor opslag of om te transformeren tot wijnkelder.
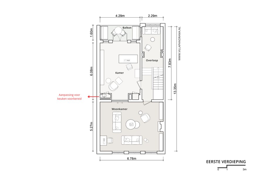
Tussenverdieping en eerste verdieping:
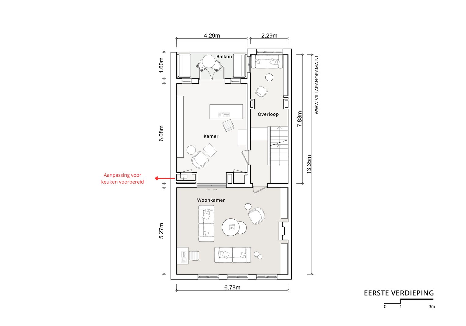
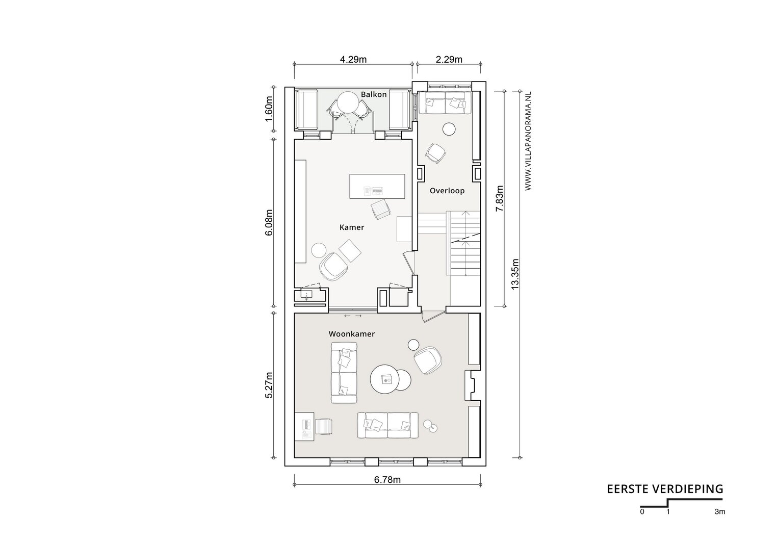
Voordat men de eerste verdieping bereikt, leidt de trap naar een charmante hoek omgeven door monumentale glas-in-loodramen. Deze ruimte wordt momenteel gebruikt als kleine bibliotheek met zithoek. Op de eerste verdieping bevinden zich twee ruime kamers: een lichte woonkamer aan de voorzijde met drie grote ramen, eveneens voorzien van karakteristiek glas-in-lood, een sfeervolle open haard en schuifdeuren naar een tweede kamer. Deze kamers kunnen zowel in open verbinding als afzonderlijk worden gebruikt, aangezien beide over een eigen toegang beschikken. Vanuit deze lichte ruimte geven openslaande deuren toegang tot het balkon met uitzicht op de tuin, waar volwassen bomen voor optimale privacy zorgen.
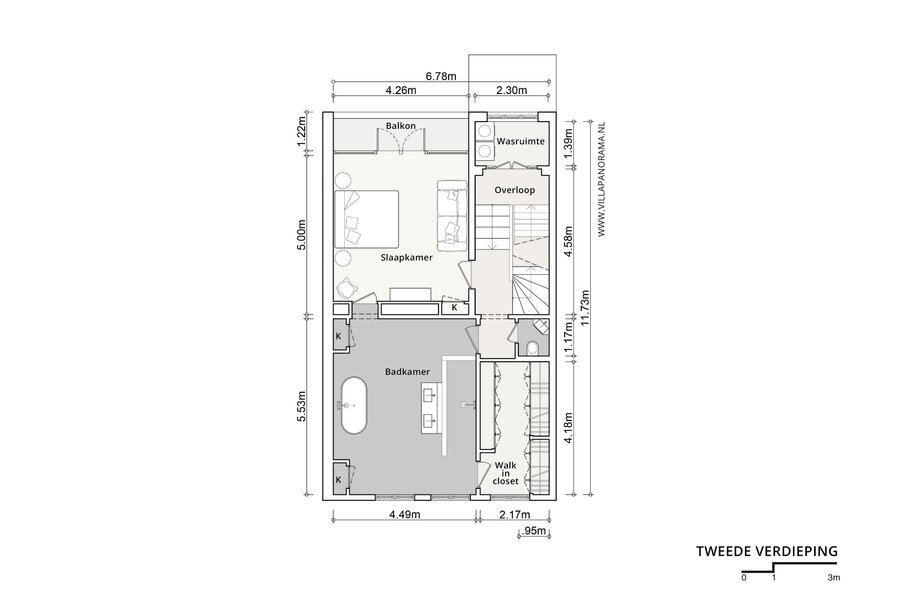
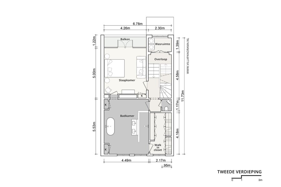
Tussenverdieping en tweede verdieping:
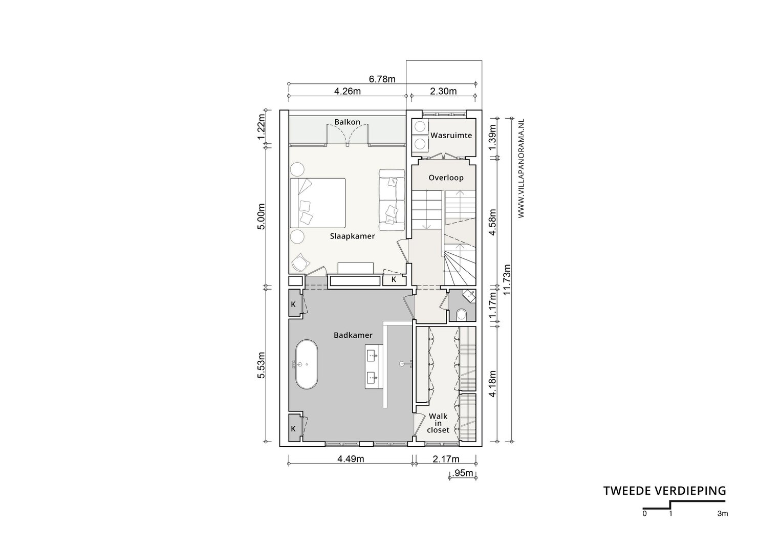
Op de tussenverdieping bevindt zich een aparte wasruimte. De tweede verdieping is ingericht als master suite aan de achterzijde, met openslaande deuren naar een privéloggia. De open indeling loopt over in een exclusieve badkamer van Watermonopoly London, die alle badkamers in de woning heeft verzorgd, met een separaat toilet en wastafel. Vanuit de badkamer is de kleedkamer aan de voorzijde bereikbaar, voorzien van maatwerk kasten.
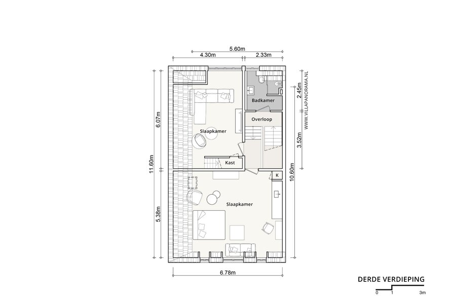
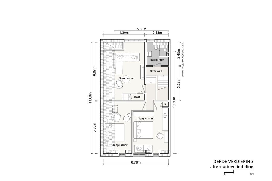
Tussenverdieping en derde verdieping:
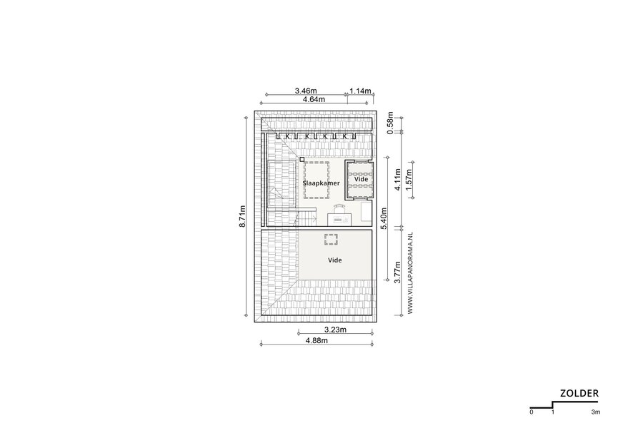
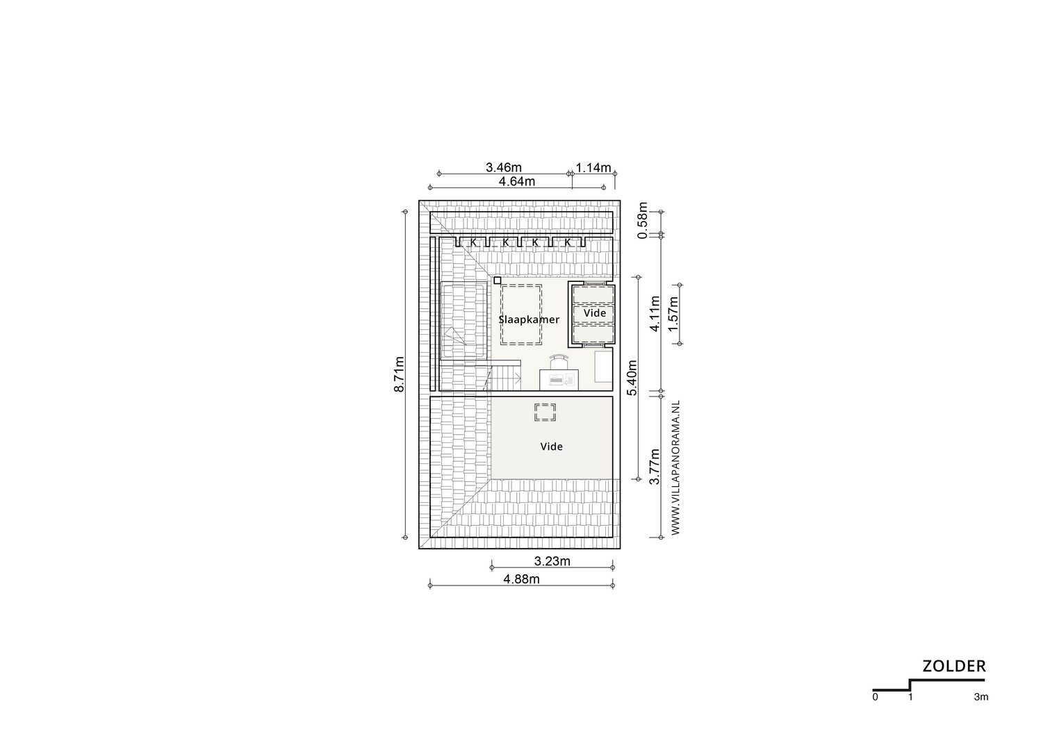
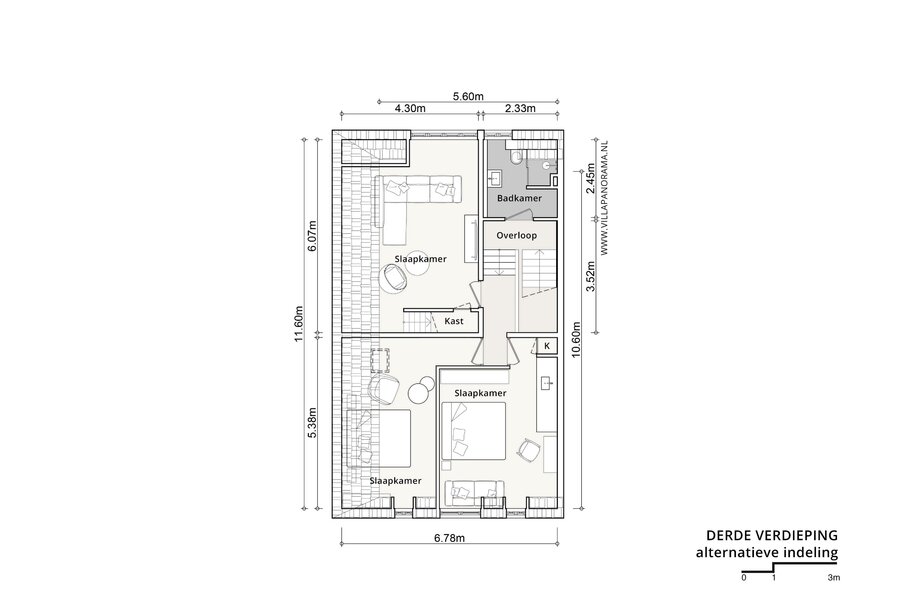
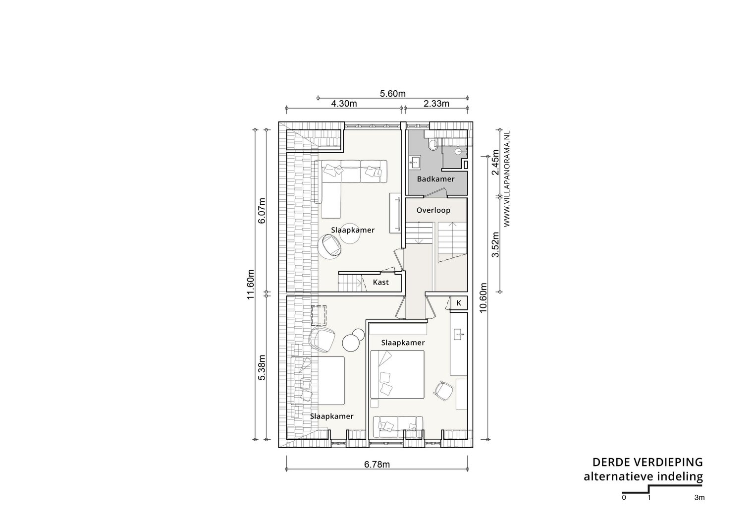
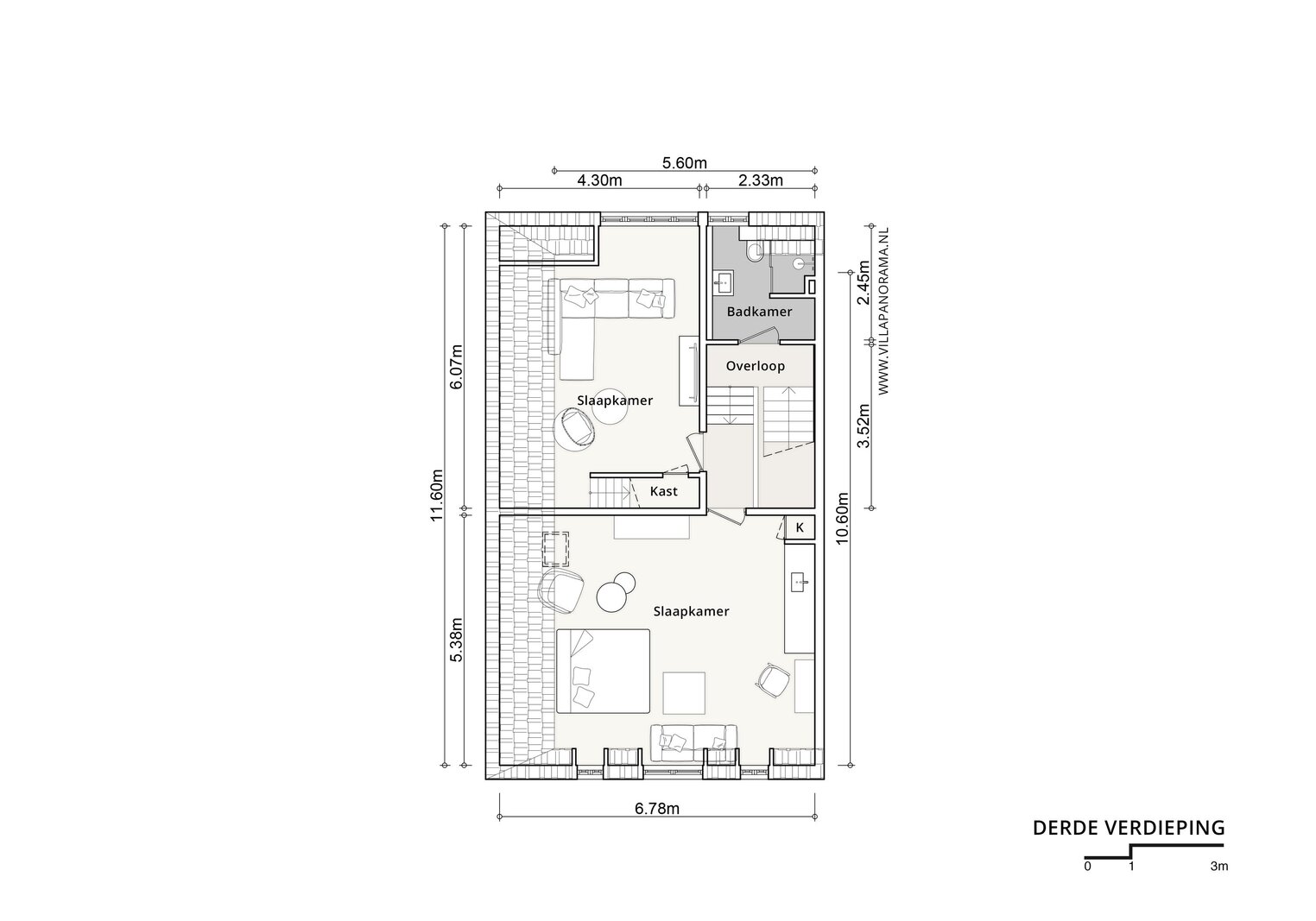
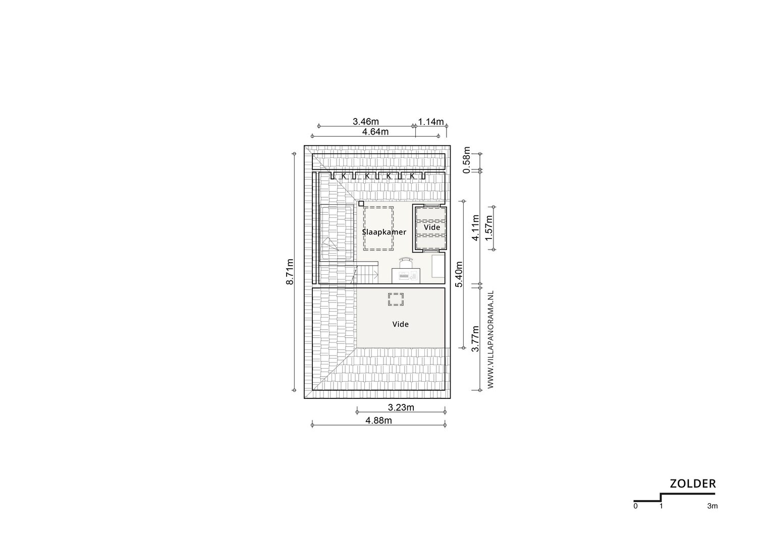
Overloop met een trap naar de badkamer aan de achterzijde. Een prachtige, ruime kamer met een open kapconstructie biedt tal van gebruiksmogelijkheden en beschikt tevens over een eigen pantry. Deze ruimte kan eventueel worden opgesplitst in twee afzonderlijke kamers. De achterslaapkamer heeft vaste kasten en toegang tot de zolder via een vaste trap, een ruimte die bijzonder geliefd is bij kinderen.
Bijzonderheden:
- Uitzonderlijk verfijnde afwerking met tal van details die comfort en leefbaarheid verhogen
- Recent gerenoveerd, inclusief volledige dubbele beglazing en een nieuw dak; energielabel C
- Betoverende, professioneel aangelegde tuin op het zuidoosten van circa 65 m²
- Naast de tuin beschikt de woning over een balkon en een loggia grenzend aan de master suite
- Alle kamers op de bovenverdiepingen zijn voorzien van airconditioning
- Alarmsysteem aanwezig
- Alle ramen op de begane grond zijn voorzien van rolluiken (merendeels elektrisch bedienbaar)
- Conform NEN2580 bedraagt het totale gebruiksoppervlak 321 m², inclusief kelder en zolder
- Eeuwigdurend afgekochte erfpacht.
- Ideale ligging nabij het iconische Rijksmuseum en andere bezienswaardigheden
- Gelegen in een veilige omgeving met meerdere consulaten in de directe nabijheid
- Aansluitingen t.b.v. keuken ook aanwezig op de eerste verdieping
Historie:
Dit tijdloze herenhuis bevindt zich in de schaduw van het Museumplein en maakt deel uit van een ensemble van drie statige panden aan de Van Miereveldstraat, ontworpen door de Amsterdamse architecten Hulshoff & Kok. Als beschermd monument heeft het pand een grote architectonische en historische waarde en vormt het een voorbeeld van de verfijnde stedelijke ontwikkeling van het late 19e-eeuwse Museumkwartier, passend bij het Rijksmuseum en het Concertgebouw. De gevel wordt gekenmerkt door twee markante pilasters in geelgrijze Waalsteen, geplaatst tegen rode ‘appelbloesem’-bakstenen vlakken met zwarte teeraccenten. De hoge plint en overige natuurstenen details zijn uitgevoerd in Franse kalksteen. In de monumentenbeschrijving wordt de gevel geroemd om zijn “paleisachtige” uitstraling.
-----------------------------------------------------------------------
Charming family home with a sunny garden in a prime location in Amsterdam South!
This elegant and exclusive townhouse, brimming with character, is a rare find nestled in the serene section of Amsterdam's Museum Quarter. It features exquisite, top-tier craftsmanship paired with an array of enchanting elements, creating a warm and inviting family residence. Spanning a total of 321 m² across four levels, plus a cozy attic and a compact basement, the property includes a generously sized, tranquil southeast-facing rear garden that serves as a peaceful retreat.
The home has been meticulously renovated and modernized while preserving its original, captivating features. It offers four (with the possibility of five) ample bedrooms and three luxurious bathrooms unfolding across four floors, along with outdoor amenities such as a lush garden, balcony, and loggia. Authentic highlights abound, including stained-glass windows, soaring ceilings, ornate paneled doors, classic moldings, and a grand marble entryway.
Positioned in the coveted Amsterdam Oud Zuid neighborhood, it's mere steps from the Concertgebouw, Museumsplein, Rijksmuseum, the canals, and Zuiderbad pool. Nearby, Cornelis Schuytstraat beckons with its array of specialty shops, boutiques, and the Zuidermarkt The P.C. Hooftstraat, cozy brasseries, and picturesque squares are right around the corner. Despite being in the beautiful center of Amsterdam, this townhouse is located in a quiet and secure neighborhood offering consistently hassle-free parking.
Layout:
Ground floor:
Grand entrance hall featuring a striking marble vestibule adorned with stained-glass accents and elegant trim. A secondary hall leads to the corridor and a guest toilet with sink. The front room includes built-in storage and an attached bathroom with toilet, vanity, and rain shower, perfect also as separate guest or au-pair room. At the back, the dining area opens via French doors to a sheltered terrace, and to the garden crafted by acclaimed landscape designer Eugenie André de la Porte. Adjacent is the semi-open kitchen, outfitted with premium appliances and luxurious surfaces throughout.
Basement
From the ground floor there are stairs down to the small basement, ideal to either use for storage or it can be turned into a wine-cellar.
Mezzanine and First floor:
Before one enters the first floor, the stairs lead to a lovely corner surrounded by monumental stained-glass windows. This corner is currently used as a small library with a sitting area. On the first floor there are two spacious rooms, a bright front living room with three oversized windows again with the typical Dutch stained-glass windows, a cozy fireplace, and sliding pocket doors to a second room that can either be used in a connected way or as two separate places as both rooms have own entry doors. This bright space also accesses the balcony via French doors overlooking the garden, offering privacy through the big trees shielding the area.
Mezzanine and Second floor:
Before arriving at the second floor, one faces a small room at the Mezzanine that is used as separate laundry room. The second floor is devoted to the master suite at the rear, complete with French doors to a private loggia. The open-concept design flows into an exclusive bathroom by Watermonopoly London, which handled all the home's baths, with separate toilet and sink. From the bathroom, reach the front dressing room with bespoke cabinetry.
Mezzanine and Third floor:
Landing with a half-level staircase to the rear bathroom. A beautiful room, spacious and open to the roof offers many possibilities to be used as it also has its own pantry, this spacious room can even be turned into two separate rooms. The rear bedroom offers built-in closets and attic access via stairs, an area most loved by any kid.
Details:
- Exceptionally refined throughout, with delightful touches that enhance comfort and livability
- Recently renovated, including full double glazing and a new roof: energy rating C
- Stunning, professionally landscaped southeast-facing garden of approx. 65 m²
- Beyond the garden, enjoy a pleasant balcony and loggia off the master bedroom
- Upper floors rooms each have air-conditioning
- Security system in use
- All windows at the ground-floor have rolling shutters (most of them electric)
- Per NEN2580 standards, the total usable area is 321 m², encompassing basement and attic
- On leasehold land under AB2016 terms; rent has been bought off in perpetuity
- Ideally located near the iconic Rijksmuseum and other landmarks
- Located in a safe environment: several consulates in direct vicinity
- Kitchen connections pre-installed at the first floor.
History:
This timeless townhouse sits in the shadow of Museumplein, one of three grand structures on Van Miereveldstraat, designed by Amsterdam architects Hulshoff & Kok. As a protected monument, it holds architectural and historical significance, exemplifying the sophisticated developments of the late 19th-century Museum Quarter that complement the Rijksmuseum and Concertgebouw. The facade showcases two prominent pilasters in yellow-gray Waalsteen bricks, set against red "apple blossom" brick panels accented in black tar. The tall base and other stone details are crafted from French limestone. The monument listing celebrates its "palatial" exterior.
Dit elegante en exclusieve herenhuis, rijk aan karakter, is een zeldzame vondst en ligt verscholen in een rustig gedeelte van het Museumkwartier in Amsterdam. De woning kenmerkt zich door verfijnd vakmanschap van hoog niveau en een scala aan charmante details, wat samen resulteert in een warme en uitnodigende gezinswoning. Met een totale woonoppervlakte van 321 m², verdeeld over vier woonlagen, aangevuld met een sfeervolle zolder en een compacte kelder, beschikt het huis tevens over een royaal en rustig gelegen achtertuin op het zuidoosten, die een oase van rust biedt.
De woning is met grote zorg gerenoveerd en gemoderniseerd, met behoud van de oorspronkelijke en karakteristieke elementen. Er zijn vier (met mogelijkheid tot vijf) ruime slaapkamers en drie luxueuze badkamers, verdeeld over vier verdiepingen. Daarnaast beschikt de woning over diverse buitenruimtes, waaronder een fraai aangelegde tuin, een balkon en een loggia. Authentieke details zijn rijkelijk aanwezig, zoals glas-in-loodramen, hoge plafonds, sierlijke paneeldeuren, klassieke ornamenten en een indrukwekkende marmeren entree.
Gelegen in de zeer gewilde wijk Amsterdam Oud-Zuid, bevindt de woning zich op loopafstand van het Concertgebouw, het Museumplein, het Rijksmuseum, de grachten en het Zuiderbad. In de directe omgeving ligt de Cornelis Schuytstraat met een gevarieerd aanbod aan speciaalzaken, boetieks en de Zuidermarkt. Luxe winkelstraten zoals de P.C. Hooftstraat, gezellige brasserieën en sfeervolle pleinen zijn om de hoek te vinden. Ondanks de centrale ligging in Amsterdam bevindt deze woning zich in een rustige en veilige buurt met doorgaans probleemloos parkeren.
Indeling:
Begane grond:
Royale entree met een imposante marmeren vestibule, voorzien van glas-in-looddetails en verfijnde afwerking. Een tweede hal leidt naar de gang en een gastentoilet met fonteintje. De voorkamer beschikt over vaste kasten en een aangrenzende badkamer met toilet, wastafelmeubel en regendouche, ideaal als gasten- of au-pairkamer. Aan de achterzijde bevindt zich de eetkamer met openslaande deuren naar een beschut terras en de fraai aangelegde tuin, ontworpen door gerenommeerd landschapsarchitect Eugénie André de la Porte. Aangrenzend ligt de semi-open keuken, uitgerust met hoogwaardige inbouwapparatuur en luxe werkbladen.
Kelder:
Via een trap vanaf de begane grond is de kleine kelder bereikbaar, uitermate geschikt voor opslag of om te transformeren tot wijnkelder.
Tussenverdieping en eerste verdieping:
Voordat men de eerste verdieping bereikt, leidt de trap naar een charmante hoek omgeven door monumentale glas-in-loodramen. Deze ruimte wordt momenteel gebruikt als kleine bibliotheek met zithoek. Op de eerste verdieping bevinden zich twee ruime kamers: een lichte woonkamer aan de voorzijde met drie grote ramen, eveneens voorzien van karakteristiek glas-in-lood, een sfeervolle open haard en schuifdeuren naar een tweede kamer. Deze kamers kunnen zowel in open verbinding als afzonderlijk worden gebruikt, aangezien beide over een eigen toegang beschikken. Vanuit deze lichte ruimte geven openslaande deuren toegang tot het balkon met uitzicht op de tuin, waar volwassen bomen voor optimale privacy zorgen.
Tussenverdieping en tweede verdieping:
Op de tussenverdieping bevindt zich een aparte wasruimte. De tweede verdieping is ingericht als master suite aan de achterzijde, met openslaande deuren naar een privéloggia. De open indeling loopt over in een exclusieve badkamer van Watermonopoly London, die alle badkamers in de woning heeft verzorgd, met een separaat toilet en wastafel. Vanuit de badkamer is de kleedkamer aan de voorzijde bereikbaar, voorzien van maatwerk kasten.
Tussenverdieping en derde verdieping:
Overloop met een trap naar de badkamer aan de achterzijde. Een prachtige, ruime kamer met een open kapconstructie biedt tal van gebruiksmogelijkheden en beschikt tevens over een eigen pantry. Deze ruimte kan eventueel worden opgesplitst in twee afzonderlijke kamers. De achterslaapkamer heeft vaste kasten en toegang tot de zolder via een vaste trap, een ruimte die bijzonder geliefd is bij kinderen.
Bijzonderheden:
- Uitzonderlijk verfijnde afwerking met tal van details die comfort en leefbaarheid verhogen
- Recent gerenoveerd, inclusief volledige dubbele beglazing en een nieuw dak; energielabel C
- Betoverende, professioneel aangelegde tuin op het zuidoosten van circa 65 m²
- Naast de tuin beschikt de woning over een balkon en een loggia grenzend aan de master suite
- Alle kamers op de bovenverdiepingen zijn voorzien van airconditioning
- Alarmsysteem aanwezig
- Alle ramen op de begane grond zijn voorzien van rolluiken (merendeels elektrisch bedienbaar)
- Conform NEN2580 bedraagt het totale gebruiksoppervlak 321 m², inclusief kelder en zolder
- Eeuwigdurend afgekochte erfpacht.
- Ideale ligging nabij het iconische Rijksmuseum en andere bezienswaardigheden
- Gelegen in een veilige omgeving met meerdere consulaten in de directe nabijheid
- Aansluitingen t.b.v. keuken ook aanwezig op de eerste verdieping
Historie:
Dit tijdloze herenhuis bevindt zich in de schaduw van het Museumplein en maakt deel uit van een ensemble van drie statige panden aan de Van Miereveldstraat, ontworpen door de Amsterdamse architecten Hulshoff & Kok. Als beschermd monument heeft het pand een grote architectonische en historische waarde en vormt het een voorbeeld van de verfijnde stedelijke ontwikkeling van het late 19e-eeuwse Museumkwartier, passend bij het Rijksmuseum en het Concertgebouw. De gevel wordt gekenmerkt door twee markante pilasters in geelgrijze Waalsteen, geplaatst tegen rode ‘appelbloesem’-bakstenen vlakken met zwarte teeraccenten. De hoge plint en overige natuurstenen details zijn uitgevoerd in Franse kalksteen. In de monumentenbeschrijving wordt de gevel geroemd om zijn “paleisachtige” uitstraling.
-----------------------------------------------------------------------
Charming family home with a sunny garden in a prime location in Amsterdam South!
This elegant and exclusive townhouse, brimming with character, is a rare find nestled in the serene section of Amsterdam's Museum Quarter. It features exquisite, top-tier craftsmanship paired with an array of enchanting elements, creating a warm and inviting family residence. Spanning a total of 321 m² across four levels, plus a cozy attic and a compact basement, the property includes a generously sized, tranquil southeast-facing rear garden that serves as a peaceful retreat.
The home has been meticulously renovated and modernized while preserving its original, captivating features. It offers four (with the possibility of five) ample bedrooms and three luxurious bathrooms unfolding across four floors, along with outdoor amenities such as a lush garden, balcony, and loggia. Authentic highlights abound, including stained-glass windows, soaring ceilings, ornate paneled doors, classic moldings, and a grand marble entryway.
Positioned in the coveted Amsterdam Oud Zuid neighborhood, it's mere steps from the Concertgebouw, Museumsplein, Rijksmuseum, the canals, and Zuiderbad pool. Nearby, Cornelis Schuytstraat beckons with its array of specialty shops, boutiques, and the Zuidermarkt The P.C. Hooftstraat, cozy brasseries, and picturesque squares are right around the corner. Despite being in the beautiful center of Amsterdam, this townhouse is located in a quiet and secure neighborhood offering consistently hassle-free parking.
Layout:
Ground floor:
Grand entrance hall featuring a striking marble vestibule adorned with stained-glass accents and elegant trim. A secondary hall leads to the corridor and a guest toilet with sink. The front room includes built-in storage and an attached bathroom with toilet, vanity, and rain shower, perfect also as separate guest or au-pair room. At the back, the dining area opens via French doors to a sheltered terrace, and to the garden crafted by acclaimed landscape designer Eugenie André de la Porte. Adjacent is the semi-open kitchen, outfitted with premium appliances and luxurious surfaces throughout.
Basement
From the ground floor there are stairs down to the small basement, ideal to either use for storage or it can be turned into a wine-cellar.
Mezzanine and First floor:
Before one enters the first floor, the stairs lead to a lovely corner surrounded by monumental stained-glass windows. This corner is currently used as a small library with a sitting area. On the first floor there are two spacious rooms, a bright front living room with three oversized windows again with the typical Dutch stained-glass windows, a cozy fireplace, and sliding pocket doors to a second room that can either be used in a connected way or as two separate places as both rooms have own entry doors. This bright space also accesses the balcony via French doors overlooking the garden, offering privacy through the big trees shielding the area.
Mezzanine and Second floor:
Before arriving at the second floor, one faces a small room at the Mezzanine that is used as separate laundry room. The second floor is devoted to the master suite at the rear, complete with French doors to a private loggia. The open-concept design flows into an exclusive bathroom by Watermonopoly London, which handled all the home's baths, with separate toilet and sink. From the bathroom, reach the front dressing room with bespoke cabinetry.
Mezzanine and Third floor:
Landing with a half-level staircase to the rear bathroom. A beautiful room, spacious and open to the roof offers many possibilities to be used as it also has its own pantry, this spacious room can even be turned into two separate rooms. The rear bedroom offers built-in closets and attic access via stairs, an area most loved by any kid.
Details:
- Exceptionally refined throughout, with delightful touches that enhance comfort and livability
- Recently renovated, including full double glazing and a new roof: energy rating C
- Stunning, professionally landscaped southeast-facing garden of approx. 65 m²
- Beyond the garden, enjoy a pleasant balcony and loggia off the master bedroom
- Upper floors rooms each have air-conditioning
- Security system in use
- All windows at the ground-floor have rolling shutters (most of them electric)
- Per NEN2580 standards, the total usable area is 321 m², encompassing basement and attic
- On leasehold land under AB2016 terms; rent has been bought off in perpetuity
- Ideally located near the iconic Rijksmuseum and other landmarks
- Located in a safe environment: several consulates in direct vicinity
- Kitchen connections pre-installed at the first floor.
History:
This timeless townhouse sits in the shadow of Museumplein, one of three grand structures on Van Miereveldstraat, designed by Amsterdam architects Hulshoff & Kok. As a protected monument, it holds architectural and historical significance, exemplifying the sophisticated developments of the late 19th-century Museum Quarter that complement the Rijksmuseum and Concertgebouw. The facade showcases two prominent pilasters in yellow-gray Waalsteen bricks, set against red "apple blossom" brick panels accented in black tar. The tall base and other stone details are crafted from French limestone. The monument listing celebrates its "palatial" exterior.
| Vastgoed ID | AM103024 |
|---|---|
| Vraagprijs | € 4.750.000 k.k. |
| Woningtype | Villa |
| Woonopp. | 321 m² |
| Perceelopp. | 177 m² |
| Bouwjaar | - |
| Renovatiejaar | - |
| Slaapkamers | 5 |
| Badkamers | 3 |
| Garages | - |
| Energielabel | C |
Amsterdam Sotheby's International Realty Emmalaan 23, 1075 AT Amsterdam
- Telefoon:+31.088.37.47.000
- Email:info@sothebysrealty.nl
- Website:www.sothebysrealty.nl
- Maandag - VrijdagOpen van 09.00 - 17.00
- Zaterdag - ZondagGesloten






















































