Villa te koop in BLARICUM met referentie 19907358532
Heideweg 5, 1261 GP BLARICUM—Ref. LN101748
Tussen de Torenlaan en de Melkweg in het Blaricumse deel van de ’Gouden Driehoek’, ligt verscholen en doodlopend in het groen de Heideweg. Met in dit deel slechts een handjevol villa’s. Op nummer 5 - met de tuin direct grenzend aan natuurreservaat het Mauvezand - een bijzondere villa. Als u hier op de parking uit uw bolide stapt - terwijl het hek weer zachtjes dicht zoeft - ervaart u de rust.
Ruim 450 m² compromisloos woongenot, met twaalf kamers, waarvan zes slaapkamers, vier badkamers, de woonkeuken uit uw dromen en in de tuin, grenzend aan Goois natuurreservaat het Mauvezand, terrassen, een zwembad en een poolhouse.
Wie aan wonen in het Gooi en in Blaricum denkt ziet mooi gerestaureerde boerderijen en rietgedekte landhuizen voor zich. Maar dat is niet het enige; de wat moderner en strakker vormgeven villa’s van recenter datum zijn ook ruim vertegenwoordigd. De villa op Heideweg 5 is er een van. En om maar meteen het vooroordeel dat modern en strak niet sfeervol zou zijn uit de wereld te helpen: modern en strak kan wel degelijk sfeervol zijn, deze villa is het bewijs. Want wat een heerlijk warm huis is dit!
Subliem vormgegeven door de internationaal vermaarde Marcel Wolterinck die ook de vormgeving van de tuin met zwembad en poolhouse voor zijn rekening nam en er zo een fraai ’Gesamtkunstwerk’ van maakte. Wolterinck had daarbij niet alleen oog voor vormgeving maar ook voor de optimale indeling, de gebruiksmogelijkheden, wooncomfort en de details die wonen in deze villa zo vanzelfsprekend comfortabel maakt. Dit is een heerlijk familiehuis waar iedereen zijn eigen plek kan vinden en waar alle ruimte is om samen te zijn met het gezin en met familie en vrienden. Waar gewoond, geleefd en ook nog gewerkt kan worden.
Zullen wij u maar even voorgaan?
We beginnen op de parking achter de solide, op afstand bedienbare, houten poort. Hier is ruim plaats voor vier auto’s en een flink aantal fietsen die een prettige overdekte stalling hebben gekregen. Een doorgang door twee hagen - links meer dan manshoog - biedt zicht op het voorste deel van de tuin. Links het zwembad met daarachter het poolhouse en rechts de villa.
De entreepartij heeft een contrasterende donkere kleur gekregen en doet vanuit de voorgevel een paar stappen naar voren om u en uw gasten een warm welkom te heten. Links en rechts van de villa zijn doorgangen naar het achterste deel van de tuin waar een kavelbreed gazon met een paar prachtige solitaire oude bomen de overgang vormt naar de rust en de stilte van het Mauvezand. Terug naar de voorzijde van de villa die hoewel modern en strak toch ook subtiel refereert aan de meer klassieke architectuur.
Via een paar treetjes gaan we naar het bordes en de verdiepingshoge dubbele voordeur. Eenmaal binnen zien we links en rechts trappen naar de verdieping. Recht voor u de hal die de U-vormige plattegrond in twee vleugels verdeeld. Links de woonkeuken - hier droomde u van - met open haard en aansluitend de bijkeuken. Dubbele deuren bieden daar toegang tot een van de veranda’s. En dan is er links van de bijkeuken nog een ’klompenhok’ en een tweede entree.
Aan de rechterkant van de hal de woonkamer met open haard en openslaande deuren naar het terras op het zuidwesten en het terras aan de zwembadzijde. Aansluitend een tweede woonkamer, eveneens een open haard en uitzicht op de tuin aan de Mauvezandzijde. Terug naar de hal waar zich aan het eind, links en rechts, twee garderobekasten bevinden. Daar tegenover, onder de trap links het toilet en onder de trap rechts de trap naar het souterrain.
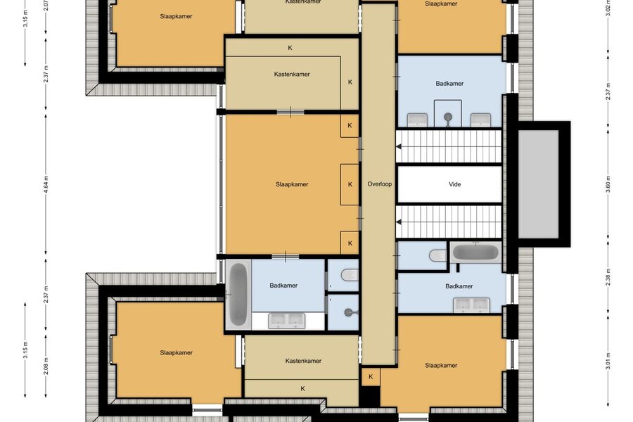
Bovengekomen op de 1e verdieping, ziet u links en rechts de overloop. U kijkt naar boven en ziet dat een lichtstraat voor daglicht zorgt, over de gehele lengte van de overloop, waar alle ruimten op uitkomen. Recht tegenover de trappen en de vide deuren naar de master-suite waar in de master-bedroom een verdiepingshoge en kamerbrede raampartij uitzicht biedt op de tuin en het daarachter gelegen Mauvezand. Aan weerszijden van de kamer de deuren naar de kastenkamer en de badkamer die alles heeft wat u zich wenst. En dan zijn er ook nog vier slaapkamers die twee kastenkamers en twee badkamers delen. Eén blik op de plattegrond maakt duidelijk dat hoe doordacht de verdieping is ingedeeld.
Tijd om af te dalen naar het souterrain waar u alles vindt wat aan het souterrain in een villa van deze klasse niet mag ontbreken. En - niet in de laatste plaats - wat u zich verder nog wenst: meer dan voldoende bergruimte, een CV/techniek-ruimte, een wijnkelder, een toilet en een wasruimte. En dan is er ook nog een zesde slaapkamer met eigen badkamer. Voor gasten of wellicht een au pair? U mag het zeggen. En dat geldt ook voor het gebruik van nog vier riante ruimten. Om te beginnen met een centraal gelegen ruimte die we gemakshalve maar even werkruimte genoemd hebben, maar waar ook alle ruimte is voor tafeltennissen of biljarten. Dat laatste kan ook in de bibliotheek of man cave zo u wilt. Deze ruimte heeft een open haard en een eigen buitenentree via een trap naar de parking. Aansluitend is er een kastenkamer overgaand in een werkkamer met heel veel daglicht door de hoge ramen die uitzicht bieden op de grote koekoek met een talud met een trap naar de tuin. Eenzelfde grote koekoek treft u bij een even riante ruimte aan de andere zijde van het souterrain.
Rest de constatering dat de bouw, de materialen en de techniek van hoge kwaliteit zijn. Wat wilt u nog meer...
Voor een bezichtiging van deze fantastische villa, kunt u contact opnemen met Jacques E. Walch, Register Makelaar en/ of Bart Lammerts, Kandidaat Register Makelaar en Taxateur van ons makelaarskantoor Laren. Nog beter is om uw eigen NVM aankoopmakelaar mee te nemen.
Ruim 450 m² compromisloos woongenot, met twaalf kamers, waarvan zes slaapkamers, vier badkamers, de woonkeuken uit uw dromen en in de tuin, grenzend aan Goois natuurreservaat het Mauvezand, terrassen, een zwembad en een poolhouse.
Wie aan wonen in het Gooi en in Blaricum denkt ziet mooi gerestaureerde boerderijen en rietgedekte landhuizen voor zich. Maar dat is niet het enige; de wat moderner en strakker vormgeven villa’s van recenter datum zijn ook ruim vertegenwoordigd. De villa op Heideweg 5 is er een van. En om maar meteen het vooroordeel dat modern en strak niet sfeervol zou zijn uit de wereld te helpen: modern en strak kan wel degelijk sfeervol zijn, deze villa is het bewijs. Want wat een heerlijk warm huis is dit!
Subliem vormgegeven door de internationaal vermaarde Marcel Wolterinck die ook de vormgeving van de tuin met zwembad en poolhouse voor zijn rekening nam en er zo een fraai ’Gesamtkunstwerk’ van maakte. Wolterinck had daarbij niet alleen oog voor vormgeving maar ook voor de optimale indeling, de gebruiksmogelijkheden, wooncomfort en de details die wonen in deze villa zo vanzelfsprekend comfortabel maakt. Dit is een heerlijk familiehuis waar iedereen zijn eigen plek kan vinden en waar alle ruimte is om samen te zijn met het gezin en met familie en vrienden. Waar gewoond, geleefd en ook nog gewerkt kan worden.
Zullen wij u maar even voorgaan?
We beginnen op de parking achter de solide, op afstand bedienbare, houten poort. Hier is ruim plaats voor vier auto’s en een flink aantal fietsen die een prettige overdekte stalling hebben gekregen. Een doorgang door twee hagen - links meer dan manshoog - biedt zicht op het voorste deel van de tuin. Links het zwembad met daarachter het poolhouse en rechts de villa.
De entreepartij heeft een contrasterende donkere kleur gekregen en doet vanuit de voorgevel een paar stappen naar voren om u en uw gasten een warm welkom te heten. Links en rechts van de villa zijn doorgangen naar het achterste deel van de tuin waar een kavelbreed gazon met een paar prachtige solitaire oude bomen de overgang vormt naar de rust en de stilte van het Mauvezand. Terug naar de voorzijde van de villa die hoewel modern en strak toch ook subtiel refereert aan de meer klassieke architectuur.
Via een paar treetjes gaan we naar het bordes en de verdiepingshoge dubbele voordeur. Eenmaal binnen zien we links en rechts trappen naar de verdieping. Recht voor u de hal die de U-vormige plattegrond in twee vleugels verdeeld. Links de woonkeuken - hier droomde u van - met open haard en aansluitend de bijkeuken. Dubbele deuren bieden daar toegang tot een van de veranda’s. En dan is er links van de bijkeuken nog een ’klompenhok’ en een tweede entree.
Aan de rechterkant van de hal de woonkamer met open haard en openslaande deuren naar het terras op het zuidwesten en het terras aan de zwembadzijde. Aansluitend een tweede woonkamer, eveneens een open haard en uitzicht op de tuin aan de Mauvezandzijde. Terug naar de hal waar zich aan het eind, links en rechts, twee garderobekasten bevinden. Daar tegenover, onder de trap links het toilet en onder de trap rechts de trap naar het souterrain.
Bovengekomen op de 1e verdieping, ziet u links en rechts de overloop. U kijkt naar boven en ziet dat een lichtstraat voor daglicht zorgt, over de gehele lengte van de overloop, waar alle ruimten op uitkomen. Recht tegenover de trappen en de vide deuren naar de master-suite waar in de master-bedroom een verdiepingshoge en kamerbrede raampartij uitzicht biedt op de tuin en het daarachter gelegen Mauvezand. Aan weerszijden van de kamer de deuren naar de kastenkamer en de badkamer die alles heeft wat u zich wenst. En dan zijn er ook nog vier slaapkamers die twee kastenkamers en twee badkamers delen. Eén blik op de plattegrond maakt duidelijk dat hoe doordacht de verdieping is ingedeeld.
Tijd om af te dalen naar het souterrain waar u alles vindt wat aan het souterrain in een villa van deze klasse niet mag ontbreken. En - niet in de laatste plaats - wat u zich verder nog wenst: meer dan voldoende bergruimte, een CV/techniek-ruimte, een wijnkelder, een toilet en een wasruimte. En dan is er ook nog een zesde slaapkamer met eigen badkamer. Voor gasten of wellicht een au pair? U mag het zeggen. En dat geldt ook voor het gebruik van nog vier riante ruimten. Om te beginnen met een centraal gelegen ruimte die we gemakshalve maar even werkruimte genoemd hebben, maar waar ook alle ruimte is voor tafeltennissen of biljarten. Dat laatste kan ook in de bibliotheek of man cave zo u wilt. Deze ruimte heeft een open haard en een eigen buitenentree via een trap naar de parking. Aansluitend is er een kastenkamer overgaand in een werkkamer met heel veel daglicht door de hoge ramen die uitzicht bieden op de grote koekoek met een talud met een trap naar de tuin. Eenzelfde grote koekoek treft u bij een even riante ruimte aan de andere zijde van het souterrain.
Rest de constatering dat de bouw, de materialen en de techniek van hoge kwaliteit zijn. Wat wilt u nog meer...
Voor een bezichtiging van deze fantastische villa, kunt u contact opnemen met Jacques E. Walch, Register Makelaar en/ of Bart Lammerts, Kandidaat Register Makelaar en Taxateur van ons makelaarskantoor Laren. Nog beter is om uw eigen NVM aankoopmakelaar mee te nemen.
| Vastgoed ID | LN101748 |
|---|---|
| Vraagprijs | € 6.250.000 k.k. |
| Woningtype | Villa |
| Woonopp. | 456 m² |
| Perceelopp. | 1.705 m² |
| Bouwjaar | 2005 |
| Renovatiejaar | - |
| Slaapkamers | 6 |
| Badkamers | 4 |
| Garages | - |
| Energielabel | A |
Voorma en Walch Laren Brink 34, 1251 KW Laren
- Telefoon:+31.35.539.90.80
- Email:laren@voorma-walch.nl
- Website:voorma-walch.nl
- Maandag - VrijdagOpen van 08.30 - 17.30
- Zaterdag Open van 10.00 - 16.00
- Zondag Gesloten




















































