Villa te koop in NAARDEN met referentie 19909392186
Bollelaan 6, 1411 JW NAARDEN—Ref. HN102808
Exclusieve Villa in Bikbergen – Luxe, Comfort en Natuur in Perfecte Harmonie
Stap binnen in deze adembenemende villa, waar ruimte, rust en verfijning samenkomen met een betoverend uitzicht over weidse landerijen, waar reeën, ooievaars en paarden zich laten zien. Gelegen aan de rand van de geliefde wijk Bikbergen en verscholen in het lommerrijke en lagergelegen deel van de Bollelaan, vormt deze nieuwgebouwde villa (opgeleverd oktober 2024) een waar toevluchtsoord waar natuur, privacy en luxe elkaar omarmen.
Indeling & Ruimte
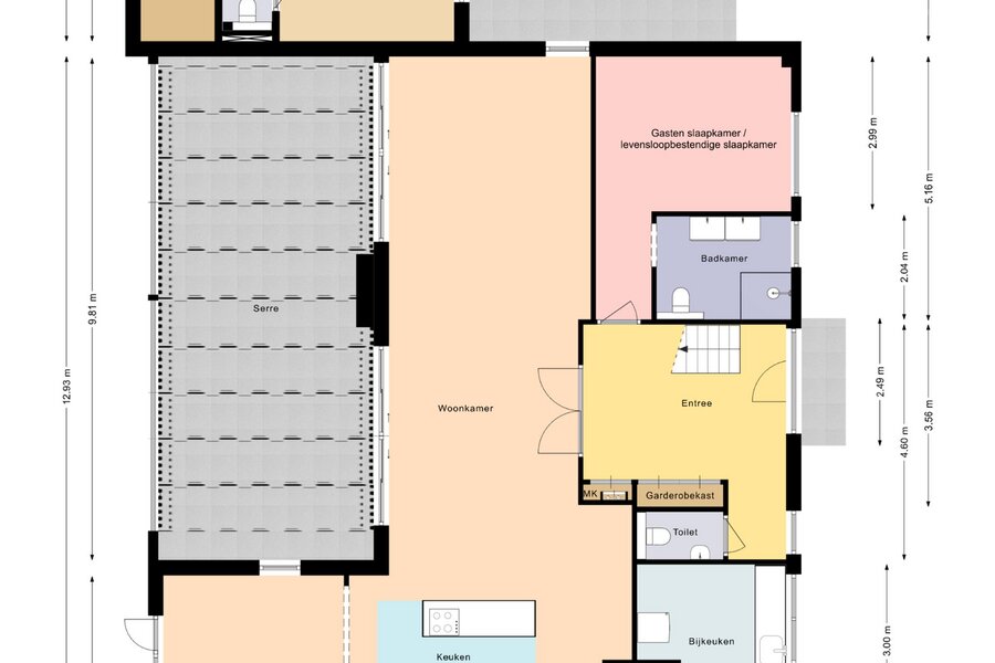
De villa biedt een royale woonoppervlakte, verdeeld over drie verdiepingen en is ontworpen met oog voor detail en gebruik van duurzame materialen. Het huis beschikt over:
- Vijf ruime slaapkamers en vier luxe badkamers.
- Een imposante ontvangsthal met stijlvol trappenhuis en dubbele glazen design deuren.
- Een lichte woon- en eetkamer die naadloos overgaat in een spectaculaire serre van 40 m², compleet met sfeerverlichting, zonnescherm, heaters en vloerverwarming – perfect voor elk seizoen.
- Een ruime leefkeuken met kookeiland, barfunctie en topapparatuur: inductiekookplaat, dubbele koelkast, stoomoven, combi-oven, Quooker, wijnklimaatkast en vaatwasser.
Comfortabel en Toekomstbestendig
De begane grond biedt een volwaardige slaapkamer met eigen badkamer, ideaal als levensloopbestendige oplossing of voor gasten.
De verdiepingen herbergen royale slaapkamers, luxe badkamers met wellnessfaciliteiten (waaronder sauna en dompelbad) én een tweede verdieping die zich uitstekend leent voor zelfstandige bewoning.
Een bijkeuken met warmtepomp, extra vaatwasser en veel bergruimte maakt het geheel compleet.
Energiezuinig & Veilig
De villa is volledig instapklaar, uitgerust met de modernste technologie en duurzaam gebouwd:
Warmtepomp en volledige vloerverwarming én koeling, per ruimte regelbaar.
Alarm- en camerasysteem voor optimale veiligheid.
Elektrisch toegangshek en luxe tuinverlichting.
Buitenleven & Ligging
Het zonnige perceel van ruim 2.287 m² biedt een onderhoudsvriendelijke, sfeervol verlichte tuin heeft een groot zonnig terras op het zuiden en een ongeëvenaard uitzicht op landgoed Zuiderhof en de omliggende natuur. De locatie combineert rust met bereikbaarheid: scholen, winkels, sportverenigingen en openbaar vervoer (bus en trein) zijn dichtbij, terwijl steden als Amsterdam en Utrecht binnen handbereik liggen.
Multifunctioneel Wonen
Naast de royale woonfuncties biedt deze villa volop mogelijkheden voor een kantoor of praktijkruimte aan huis, zonder in te boeten op privacy of leefcomfort.
Extra kenmerken/voorzieningen:
- open haard voorbereiding aanwezig in de woonkamer
- badkamer voorzien van dompelbad, vloerverwarming en koeling en elektrische designradiatoren
- hydrofoorinstallatie en waterontharder.
- 30 zonnepanelen
Een villa waar charme, comfort en luxe samenkomen – een familiehuis dat volledig is voorbereid op de toekomst.
Wij nodigen u van harte uit voor een persoonlijke bezichtiging, waarin u zelf de unieke allure en warme sfeer van deze bijzondere woning zult ervaren.
Bel de makelaar Jan-Willem Baas of beter nog uw eigen NVM aankoopmakelaar.
Stap binnen in deze adembenemende villa, waar ruimte, rust en verfijning samenkomen met een betoverend uitzicht over weidse landerijen, waar reeën, ooievaars en paarden zich laten zien. Gelegen aan de rand van de geliefde wijk Bikbergen en verscholen in het lommerrijke en lagergelegen deel van de Bollelaan, vormt deze nieuwgebouwde villa (opgeleverd oktober 2024) een waar toevluchtsoord waar natuur, privacy en luxe elkaar omarmen.
Indeling & Ruimte
De villa biedt een royale woonoppervlakte, verdeeld over drie verdiepingen en is ontworpen met oog voor detail en gebruik van duurzame materialen. Het huis beschikt over:
- Vijf ruime slaapkamers en vier luxe badkamers.
- Een imposante ontvangsthal met stijlvol trappenhuis en dubbele glazen design deuren.
- Een lichte woon- en eetkamer die naadloos overgaat in een spectaculaire serre van 40 m², compleet met sfeerverlichting, zonnescherm, heaters en vloerverwarming – perfect voor elk seizoen.
- Een ruime leefkeuken met kookeiland, barfunctie en topapparatuur: inductiekookplaat, dubbele koelkast, stoomoven, combi-oven, Quooker, wijnklimaatkast en vaatwasser.
Comfortabel en Toekomstbestendig
De begane grond biedt een volwaardige slaapkamer met eigen badkamer, ideaal als levensloopbestendige oplossing of voor gasten.
De verdiepingen herbergen royale slaapkamers, luxe badkamers met wellnessfaciliteiten (waaronder sauna en dompelbad) én een tweede verdieping die zich uitstekend leent voor zelfstandige bewoning.
Een bijkeuken met warmtepomp, extra vaatwasser en veel bergruimte maakt het geheel compleet.
Energiezuinig & Veilig
De villa is volledig instapklaar, uitgerust met de modernste technologie en duurzaam gebouwd:
Warmtepomp en volledige vloerverwarming én koeling, per ruimte regelbaar.
Alarm- en camerasysteem voor optimale veiligheid.
Elektrisch toegangshek en luxe tuinverlichting.
Buitenleven & Ligging
Het zonnige perceel van ruim 2.287 m² biedt een onderhoudsvriendelijke, sfeervol verlichte tuin heeft een groot zonnig terras op het zuiden en een ongeëvenaard uitzicht op landgoed Zuiderhof en de omliggende natuur. De locatie combineert rust met bereikbaarheid: scholen, winkels, sportverenigingen en openbaar vervoer (bus en trein) zijn dichtbij, terwijl steden als Amsterdam en Utrecht binnen handbereik liggen.
Multifunctioneel Wonen
Naast de royale woonfuncties biedt deze villa volop mogelijkheden voor een kantoor of praktijkruimte aan huis, zonder in te boeten op privacy of leefcomfort.
Extra kenmerken/voorzieningen:
- open haard voorbereiding aanwezig in de woonkamer
- badkamer voorzien van dompelbad, vloerverwarming en koeling en elektrische designradiatoren
- hydrofoorinstallatie en waterontharder.
- 30 zonnepanelen
Een villa waar charme, comfort en luxe samenkomen – een familiehuis dat volledig is voorbereid op de toekomst.
Wij nodigen u van harte uit voor een persoonlijke bezichtiging, waarin u zelf de unieke allure en warme sfeer van deze bijzondere woning zult ervaren.
Bel de makelaar Jan-Willem Baas of beter nog uw eigen NVM aankoopmakelaar.
| Vastgoed ID | HN102808 |
|---|---|
| Vraagprijs | € 2.750.000 k.k. |
| Woningtype | Villa |
| Woonopp. | 338 m² |
| Perceelopp. | 2.287 m² |
| Bouwjaar | 2024 |
| Renovatiejaar | - |
| Slaapkamers | 5 |
| Badkamers | 4 |
| Garages | - |
| Energielabel | A+++ |
Voorma en Walch Huizen Ceintuurbaan 22, 1271 BJ Huizen
- Telefoon:+31.35.525.31.35
- Email:huizen@voorma-walch.nl
- Website:www.voorma-walch.nl
- Maandag - VrijdagOpen van 08.30 - 17.30
- Zaterdag - ZondagGesloten




















































