Villa te koop in LAREN met referentie 19911418335
't Paadje 18, 1251 RJ LAREN—Ref. LN102232
Aan ’t Paadje 18 in het sfeervolle Laren staat een bijzondere atelierwoning met een verhaal. De woning werd gebouwd door kunstschilder Lopes Baruch, die hier niet alleen woonde maar ook werkte. Die creatieve oorsprong is nog altijd merkbaar in de sfeer van het huis. Later werd de woning bewoond door onder anderen Anne Marinus Broeckman, wat bijdraagt aan het artistieke karakter dat deze plek zo eigen maakt. Het is een huis dat door de jaren heen duidelijk een thuis is geweest voor mensen met oog voor kunst en ruimte. De atelierwoning valt op door de prettige lichtinval, de hoge ruimtes en fantastische ligging.
INDELING
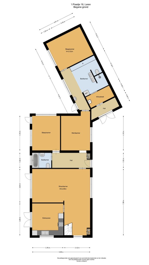
Begane grond: entree en binnenkomst in de hal met meterkast, toegang naar de werkkamer, wc/ badkamer, eerste slaapkamer op de begane grond en de woonkamer. De eerste badkamer ligt aan de achterzijde en is uitgerust met wc, wastafel en ligbad. Slaapkamer eveneens aan de achterkant met openslaande deur naar de achtertuin. Via de werkkamer komt u in de uitbouw waar de hoofdslaapkamer, badkamer, inloopkast en nog een hal met toegang naar de oprit zich bevinden. Aan de linkerzijde van de hal komt u in de woonkamer met indrukwekkende plafondhoogte van ca. 2,9 meter en het atelierraam op het noorden, het perfecte licht voor schilders. De ramen rondom zorgen voor veel daglicht in deze ruimte. In de hoek is de vaste trap naar de eerste verdieping. De eetkeuken ligt aan de achterzijde en is uitgerust met diverse inbouwapparatuur en dubbele openslaande deuren naar de achtertuin.
Eerste verdieping: overloop met toegang naar een berging en slaapkamer. Deze verdieping van ca. 26 m² is niet meegenomen in de gebruiksoppervlakte wonen.
Tuin: aan de voorzijde een eigen oprit met ruimte voor meerdere auto’s, via een toegangspoort aan de zijkant komt u uit bij de royale achtertuin met een zonnige ligging op het zuiden. Hier kunt u het grootste deel van het jaar heerlijk buiten zitten, met privacy dankzij de vele bomen rondom.
OMGEVING & BEREIKBAARHEID
De atelierwoning aan ’t Paadje 18 is gelegen op een rustige en charmante locatie, waar privacy en bereikbaarheid op ideale wijze samenkomen. De woning bevindt zich in een kleinschalige, groene omgeving met een dorps karakter, terwijl alle dagelijkse voorzieningen zich op korte afstand bevinden. In de directe nabijheid vindt u diverse winkels, supermarkten, scholen en sportfaciliteiten, waardoor het wooncomfort optimaal is. Daarnaast biedt de ligging uitstekende verbindingen richting omliggende dorpen en steden. Met de auto bereikt u binnen enkele minuten de uitvalswegen, die zorgen voor een vlotte aansluiting op het regionale wegennet. Ook met het openbaar vervoer is de woning goed bereikbaar. Bushaltes bevinden zich op loop- of korte fietsafstand en bieden regelmatige verbindingen naar nabijgelegen stations en stedelijke voorzieningen. Voor liefhebbers van rust en natuur is dit een ideale plek: wandel- en fietsroutes bevinden zich in de directe omgeving en nodigen uit om het omliggende landschap te verkennen. Kortom, een unieke locatie waar rustig wonen en goede bereikbaarheid perfect in balans zijn.
KENMERKEN
- Atelierwoning met rijke geschiedenis, gebouwd in 1906 in opdracht van kunstschilder Baruch Laguna.
- Gebruiksoppervlakte wonen ca. 148 m² (excl. eerste verdieping van ca. 26 m²) NEN2580 Meetrapport beschikbaar.
- De woning is van cultuurhistorische waarde voor Laren als uitdrukking van de culturele ontwikkeling van Laren als kunstenaarsdorp en daarnaast als voormalige woning van kunstschilder Anne Marinus Broeckman, één van de leden van ‘De Tien’.
- Bijzonder hoge plafonds.
- Twee slaapkamers en badkamer op de begane grond.
- Zonnige achtertuin met veel privacy en ligging op het zuiden.
- Het hoofdgebouw is aangewezen als gemeentelijk monument.
- De woning dient te worden aangepast aan de wensen/ eisen van deze tijd.
- Oplevering in overleg, kan snel.
- Ouderdomsclausule van toepassing.
- Verkoop onder voorbehoud gunning verkoper.
Voor een rondleiding door deze vrijstaande atelierwoning nabij het centrum van Laren kunt u contact opnemen met Aldert J. Froma, NVM Makelaar van ons makelaarskantoor Laren. Nog beter is om uw eigen NVM makelaar mee te nemen.
Deze informatie is door ons met de nodige zorgvuldigheid samengesteld. Onzerzijds wordt echter geen enkele aansprakelijkheid aanvaard voor enige onvolledigheid, onjuistheid of anderszins, dan wel de gevolgen daarvan. Alle opgegeven maten en oppervlakten zijn indicatief. Koper heeft zijn eigen onderzoek plicht naar alle zaken die voor hem of haar van belang zijn. Met betrekking tot deze woning is de makelaar adviseur van verkoper. Wij adviseren u een deskundige (NVM-)makelaar in te schakelen die u begeleidt bij het aankoopproces. Indien u specifieke wensen heeft omtrent de woning, adviseren wij u deze tijdig kenbaar te maken aan uw aankopend makelaar en hiernaar zelfstandig onderzoek te (laten) doen. Indien u geen deskundige vertegenwoordiger inschakelt, acht u zich volgens de wet deskundige genoeg om alle zaken die van belang zijn te kunnen overzien. Van toepassing zijn de NVM voorwaarden.
INDELING
Begane grond: entree en binnenkomst in de hal met meterkast, toegang naar de werkkamer, wc/ badkamer, eerste slaapkamer op de begane grond en de woonkamer. De eerste badkamer ligt aan de achterzijde en is uitgerust met wc, wastafel en ligbad. Slaapkamer eveneens aan de achterkant met openslaande deur naar de achtertuin. Via de werkkamer komt u in de uitbouw waar de hoofdslaapkamer, badkamer, inloopkast en nog een hal met toegang naar de oprit zich bevinden. Aan de linkerzijde van de hal komt u in de woonkamer met indrukwekkende plafondhoogte van ca. 2,9 meter en het atelierraam op het noorden, het perfecte licht voor schilders. De ramen rondom zorgen voor veel daglicht in deze ruimte. In de hoek is de vaste trap naar de eerste verdieping. De eetkeuken ligt aan de achterzijde en is uitgerust met diverse inbouwapparatuur en dubbele openslaande deuren naar de achtertuin.
Eerste verdieping: overloop met toegang naar een berging en slaapkamer. Deze verdieping van ca. 26 m² is niet meegenomen in de gebruiksoppervlakte wonen.
Tuin: aan de voorzijde een eigen oprit met ruimte voor meerdere auto’s, via een toegangspoort aan de zijkant komt u uit bij de royale achtertuin met een zonnige ligging op het zuiden. Hier kunt u het grootste deel van het jaar heerlijk buiten zitten, met privacy dankzij de vele bomen rondom.
OMGEVING & BEREIKBAARHEID
De atelierwoning aan ’t Paadje 18 is gelegen op een rustige en charmante locatie, waar privacy en bereikbaarheid op ideale wijze samenkomen. De woning bevindt zich in een kleinschalige, groene omgeving met een dorps karakter, terwijl alle dagelijkse voorzieningen zich op korte afstand bevinden. In de directe nabijheid vindt u diverse winkels, supermarkten, scholen en sportfaciliteiten, waardoor het wooncomfort optimaal is. Daarnaast biedt de ligging uitstekende verbindingen richting omliggende dorpen en steden. Met de auto bereikt u binnen enkele minuten de uitvalswegen, die zorgen voor een vlotte aansluiting op het regionale wegennet. Ook met het openbaar vervoer is de woning goed bereikbaar. Bushaltes bevinden zich op loop- of korte fietsafstand en bieden regelmatige verbindingen naar nabijgelegen stations en stedelijke voorzieningen. Voor liefhebbers van rust en natuur is dit een ideale plek: wandel- en fietsroutes bevinden zich in de directe omgeving en nodigen uit om het omliggende landschap te verkennen. Kortom, een unieke locatie waar rustig wonen en goede bereikbaarheid perfect in balans zijn.
KENMERKEN
- Atelierwoning met rijke geschiedenis, gebouwd in 1906 in opdracht van kunstschilder Baruch Laguna.
- Gebruiksoppervlakte wonen ca. 148 m² (excl. eerste verdieping van ca. 26 m²) NEN2580 Meetrapport beschikbaar.
- De woning is van cultuurhistorische waarde voor Laren als uitdrukking van de culturele ontwikkeling van Laren als kunstenaarsdorp en daarnaast als voormalige woning van kunstschilder Anne Marinus Broeckman, één van de leden van ‘De Tien’.
- Bijzonder hoge plafonds.
- Twee slaapkamers en badkamer op de begane grond.
- Zonnige achtertuin met veel privacy en ligging op het zuiden.
- Het hoofdgebouw is aangewezen als gemeentelijk monument.
- De woning dient te worden aangepast aan de wensen/ eisen van deze tijd.
- Oplevering in overleg, kan snel.
- Ouderdomsclausule van toepassing.
- Verkoop onder voorbehoud gunning verkoper.
Voor een rondleiding door deze vrijstaande atelierwoning nabij het centrum van Laren kunt u contact opnemen met Aldert J. Froma, NVM Makelaar van ons makelaarskantoor Laren. Nog beter is om uw eigen NVM makelaar mee te nemen.
Deze informatie is door ons met de nodige zorgvuldigheid samengesteld. Onzerzijds wordt echter geen enkele aansprakelijkheid aanvaard voor enige onvolledigheid, onjuistheid of anderszins, dan wel de gevolgen daarvan. Alle opgegeven maten en oppervlakten zijn indicatief. Koper heeft zijn eigen onderzoek plicht naar alle zaken die voor hem of haar van belang zijn. Met betrekking tot deze woning is de makelaar adviseur van verkoper. Wij adviseren u een deskundige (NVM-)makelaar in te schakelen die u begeleidt bij het aankoopproces. Indien u specifieke wensen heeft omtrent de woning, adviseren wij u deze tijdig kenbaar te maken aan uw aankopend makelaar en hiernaar zelfstandig onderzoek te (laten) doen. Indien u geen deskundige vertegenwoordiger inschakelt, acht u zich volgens de wet deskundige genoeg om alle zaken die van belang zijn te kunnen overzien. Van toepassing zijn de NVM voorwaarden.
| Vastgoed ID | LN102232 |
|---|---|
| Vraagprijs | € 1.585.000 k.k. |
| Woningtype | Villa |
| Woonopp. | 148 m² |
| Perceelopp. | 750 m² |
| Bouwjaar | 1906 |
| Renovatiejaar | - |
| Slaapkamers | 3 |
| Badkamers | 2 |
| Garages | - |
| Energielabel | - |
Voorma en Walch Laren Brink 34, 1251 KW Laren
- Telefoon:+31.35.539.90.80
- Email:laren@voorma-walch.nl
- Website:voorma-walch.nl
- Maandag - VrijdagOpen van 08.30 - 17.30
- Zaterdag Open van 10.00 - 16.00
- Zondag Gesloten






































