Villa te koop in BLARICUM met referentie 19110625584
Floris V Dreef 46, 1262 AK BLARICUM—Ref. HN103594
Uitgebouwde energiezuinige A+++ twee-onder-één-kap woning met garage in de Blaricummermeent
Ontdek deze prachtige, uitgebouwde twee-onder-één-kap woning van 162 m² in de geliefde, kindvriendelijke, waterrijke woonwijk Blaricummermeent te Blaricum.
Deze woning combineert ruimte, stijl en comfort met een uitstekende ligging nabij het oude dorp en het betoverende Gooimeer.
Met extra's als vloerverwarming en vloerkoeling op alle verdiepingen en maarliefst 21 zonnepanelen.
Hier ervaart u de hoogwaardige woonkwaliteit waar ’t Gooi om bekend staat: volop groen, karakteristieke architectuur, talrijke voorzieningen en een uitstekende bereikbaarheid.
Met winkels, scholen, sportverenigingen en openbaar vervoer op korte afstand, bovendien zijn uitvalswegen A1 en A27 eenvoudig te bereiken. Hierdoor zijn Utrecht en Amsterdam binnen handbereik!
Indeling:
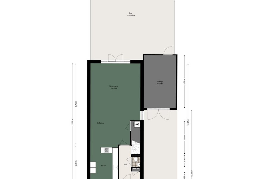
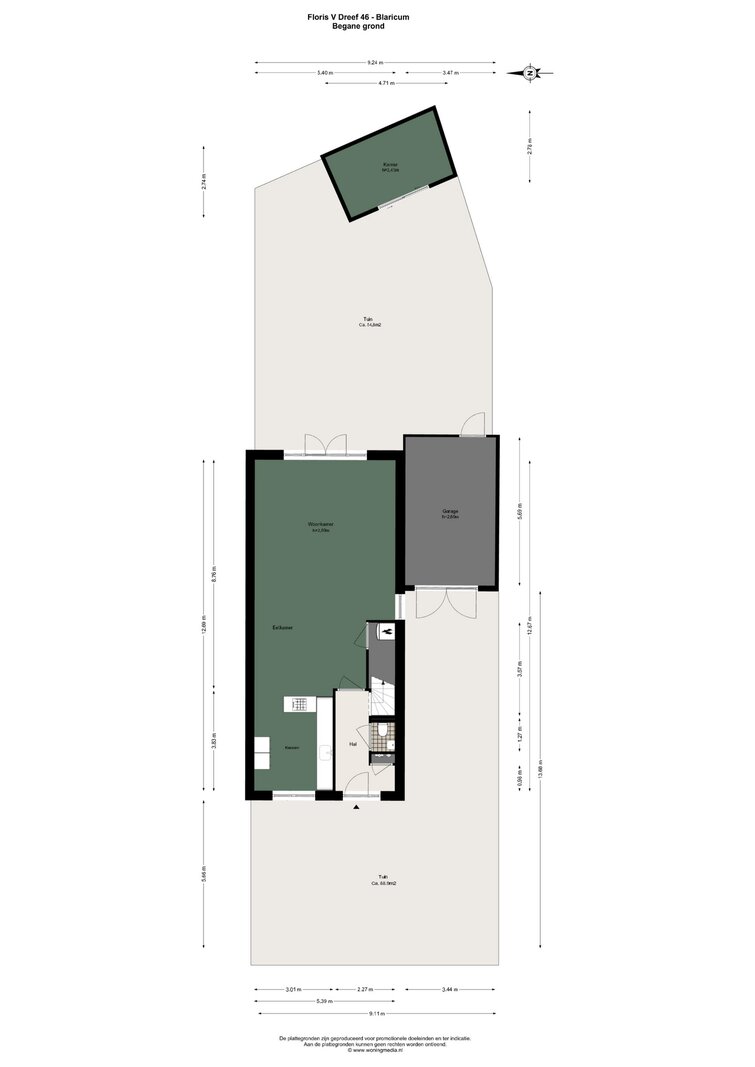
Begane grond:
Bij binnenkomst wordt u verwelkomd in de hal met meterkast en een stijlvol toilet met fontein.
De royale woon/eetkamer is voorzien van een mooie sfeerhaard en een prachtige houten parketvloer.
De open, lichte keuken is van alle gemakken voorzien, met een kookschiereiland, inductiekookplaat, vaatwasser, Quooker, oven, combi-oven/magnetron, koelkast en vriezer.
Via de openslaande deuren betreedt u de fraai aangelegde achtertuin op het zuid-oosten, ideaal voor ontspanning en samenzijn.
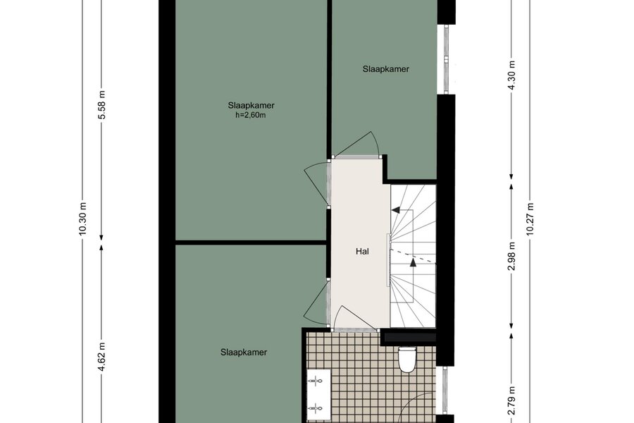
Eerste verdieping:
Op de eerste verdieping vindt u een overloop, en drie slaapkamers. De slaapkamer aan de voorzijde beschikt over een frans balkon met openslaande deuren.
De moderne badkamer is luxe ingericht met een douche, ligbad, dubbele wastafel en toilet.
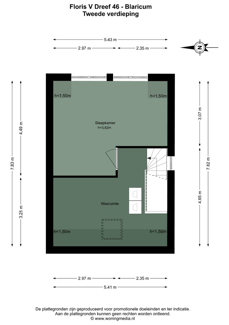
Tweede verdieping:
De tweede verdieping biedt veel ruimte met een overloop voor wasmachine en droger, mechanische ventilatie en voldoende bergruimte.
De vierde slaapkamer, voorzien van een groot dakkapel met elektrisch bedienbaar rolluik, zorgt voor een lichte en comfortabele plek.
Tuin:
De achtertuin is fraai aangelegd met een mooie houten overkapping inclusief heaters, perfect voor het ontvangen van vrienden en familie.
De aangebouwde stenen garage biedt extra opbergruimte en doorsnede naar de achtertuin. Bovendien beschikt u over eigen terrein met parkeergelegenheid voor tot wel 3 auto’s.
Bijzonderheden:
- Aangebouwde garage
- Energielabel A+++
- Energiezuinig en modern, met een aantrekkelijke uitstraling.
- Alle wanden en plafonds zijn glad gestuukt.
- Tuinverlichting en automatische beregening in voor- en achtertuin zorgen voor gemak en sfeer.
- Voorzien van een huur warmtepomp voor zowel verwarming als koeling.
- Voor en achterzijde van de woning voorzien van horren
- Voorzolder voorzien van velux dakraam met luxaflex en hor
- Alle verdiepingen zijn voorzien van vloerverwarming en vloerkoeling
- 21 Zonnepanelen met een gemiddeld opwekvermogen van 5.500 kWh per jaar.
Maak een afspraak voor een bezichtiging en laat u verrassen door de mogelijkheden van deze prachtige woning!
Ontdek deze prachtige, uitgebouwde twee-onder-één-kap woning van 162 m² in de geliefde, kindvriendelijke, waterrijke woonwijk Blaricummermeent te Blaricum.
Deze woning combineert ruimte, stijl en comfort met een uitstekende ligging nabij het oude dorp en het betoverende Gooimeer.
Met extra's als vloerverwarming en vloerkoeling op alle verdiepingen en maarliefst 21 zonnepanelen.
Hier ervaart u de hoogwaardige woonkwaliteit waar ’t Gooi om bekend staat: volop groen, karakteristieke architectuur, talrijke voorzieningen en een uitstekende bereikbaarheid.
Met winkels, scholen, sportverenigingen en openbaar vervoer op korte afstand, bovendien zijn uitvalswegen A1 en A27 eenvoudig te bereiken. Hierdoor zijn Utrecht en Amsterdam binnen handbereik!
Indeling:
Begane grond:
Bij binnenkomst wordt u verwelkomd in de hal met meterkast en een stijlvol toilet met fontein.
De royale woon/eetkamer is voorzien van een mooie sfeerhaard en een prachtige houten parketvloer.
De open, lichte keuken is van alle gemakken voorzien, met een kookschiereiland, inductiekookplaat, vaatwasser, Quooker, oven, combi-oven/magnetron, koelkast en vriezer.
Via de openslaande deuren betreedt u de fraai aangelegde achtertuin op het zuid-oosten, ideaal voor ontspanning en samenzijn.
Eerste verdieping:
Op de eerste verdieping vindt u een overloop, en drie slaapkamers. De slaapkamer aan de voorzijde beschikt over een frans balkon met openslaande deuren.
De moderne badkamer is luxe ingericht met een douche, ligbad, dubbele wastafel en toilet.
Tweede verdieping:
De tweede verdieping biedt veel ruimte met een overloop voor wasmachine en droger, mechanische ventilatie en voldoende bergruimte.
De vierde slaapkamer, voorzien van een groot dakkapel met elektrisch bedienbaar rolluik, zorgt voor een lichte en comfortabele plek.
Tuin:
De achtertuin is fraai aangelegd met een mooie houten overkapping inclusief heaters, perfect voor het ontvangen van vrienden en familie.
De aangebouwde stenen garage biedt extra opbergruimte en doorsnede naar de achtertuin. Bovendien beschikt u over eigen terrein met parkeergelegenheid voor tot wel 3 auto’s.
Bijzonderheden:
- Aangebouwde garage
- Energielabel A+++
- Energiezuinig en modern, met een aantrekkelijke uitstraling.
- Alle wanden en plafonds zijn glad gestuukt.
- Tuinverlichting en automatische beregening in voor- en achtertuin zorgen voor gemak en sfeer.
- Voorzien van een huur warmtepomp voor zowel verwarming als koeling.
- Voor en achterzijde van de woning voorzien van horren
- Voorzolder voorzien van velux dakraam met luxaflex en hor
- Alle verdiepingen zijn voorzien van vloerverwarming en vloerkoeling
- 21 Zonnepanelen met een gemiddeld opwekvermogen van 5.500 kWh per jaar.
Maak een afspraak voor een bezichtiging en laat u verrassen door de mogelijkheden van deze prachtige woning!
| Vastgoed ID | HN103594 |
|---|---|
| Vraagprijs | € 942.500 k.k. |
| Woningtype | Villa |
| Woonopp. | 162 m² |
| Perceelopp. | 286 m² |
| Bouwjaar | 2017 |
| Renovatiejaar | - |
| Slaapkamers | 4 |
| Badkamers | 1 |
| Garages | 1 |
| Energielabel | A+++ |
Voorma en Walch Huizen Ceintuurbaan 22, 1271 BJ Huizen
- Telefoon:+31.35.525.31.35
- Email:huizen@voorma-walch.nl
- Website:www.voorma-walch.nl
- Maandag - VrijdagOpen van 08.30 - 17.30
- Zaterdag - ZondagGesloten






































