Villa te koop in HILVERSUM met referentie 19209783249
Spieghellaan 2, 1217 RL HILVERSUM—Ref. LN102120
Villa ’t Zuydenhoeck: aan één van de mooiste lanen van Hilversum, midden in het centrum, ligt deze indrukwekkende en volledig gerenoveerde vrijstaande villa uit 1902. Spieghellaan 2 is een uniek familiehuis waar historie en modern wooncomfort naadloos samenkomen.
INDELING
Begane grond:
Via de stijlvolle entree betreedt u de ruime hal, voorzien van garderoberuimte en gastentoilet. Vanuit hier heeft u toegang tot de verschillende leef vertrekken.
De woonkamer is indrukwekkend door de plafondhoogte van bijna 3 meter en de speelse erker, die zorgt voor veel lichtinval en een prachtig zicht op de tuin, bereikbaar middels openslaande deuren. Grenzend aan de woonkamer bevindt zich de woonkeuken: een heerlijke plek om samen te komen. Deze moderne en luxe keuken is voorzien van een groot spoeleiland met Quooker, ingebouwd gasfornuis en diverse Miele inbouwapparatuur, waaronder een dubbele oven en wijnklimaatkast. Via een elektrisch bedienbaar luik heeft u toegang naar de royale (wijn)kelder. Ook de woonkeuken is voorzien van openslaande deuren, welke toegang bieden naar het terras van de zonnige tuin. Naast de keuken ligt de praktische bijkeuken, ideaal voor opslag.
Voor meer privacy en ontspanning is er een aparte TV-kamer, evenals een separate study, die uitstekend dienst kan doen als thuiswerkplek of kantoor. De woning beschikt bovendien over een lichte serre, die een prachtig uitzicht biedt op de tuin en een naadloze overgang vormt tussen binnen en buiten.
Eerste verdieping:
Via de elegante trap bereikt u de eerste verdieping, waar de royale overloop met een plafondhoogte van bijna 3 meter toegang biedt tot de diverse vertrekken. Er zijn drie ruime slaapkamers, elk met een eigen karakter en prachtige lichtinval door de vele ramen. De hoofdslaapkamer is extra bijzonder dankzij de aangrenzende kleedkamer met op maat gemaakte kastenwand en directe verbinding met de badkamer.
De luxe badkamer (ook bereikbaar vanuit de overloop) is voorzien van een ligbad, separate douche, dubbele wastafel en toilet. Daarnaast nog een apart toilet voor deze verdieping.
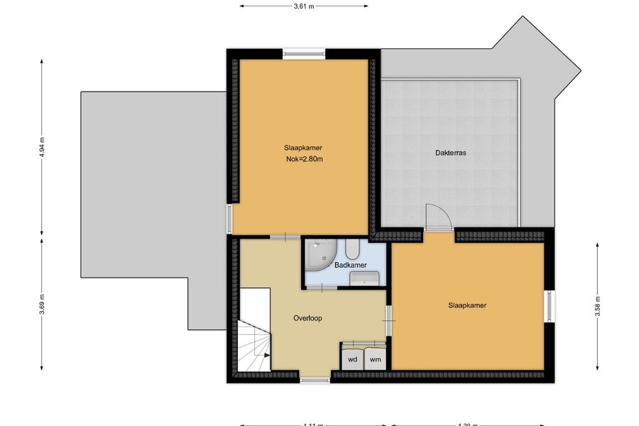
Tweede verdieping:
De tweede verdieping biedt nog eens verrassend veel leefruimte en is ideaal geschikt voor (oudere) kinderen, gasten of een au pair. Vanaf de overloop bereikt u twee goed bemeten slaapkamers, beide met een sfeervolle uitstraling en volop daglicht. Ook hier geeft de plafondhoogte een ruimtelijk gevoel. Eén van de twee slaapkamers heeft toegang tot een uniek dakterras waar u in alle rust kunt genieten van de zon en uitzicht. Daarnaast beschikt deze verdieping over een eigen badkamer, compleet met douche, wastafel en toilet – een groot pluspunt voor privacy en comfort. Op de overloop bevindt zich bovendien praktische ruimte met de aansluitingen voor wasmachine en -droger.
Tuin:
De tuin rondom de villa met eigen sproei installatie is een waar verlengstuk van het woongenot en biedt voor ieder moment van de dag de perfecte plek. Dankzij de diverse zonnige terrassen is er altijd een plek om te ontspannen of te genieten van een goed glas wijn in de zon. Voor ultieme ontspanning beschikt de tuin over een luxe jacuzzi, waar u in alle rust kunt genieten van privacy en comfort. Voor de culinaire liefhebber is er een ingebouwde barbecue, waarmee u buiten kunt koken en dineren in mediterrane sferen. Het praktische en onderhoudsvriendelijke kunstgrasveld maakt de tuin bovendien geschikt voor spel en sport, perfect om het hockeytalent van uw kinderen te ontwikkelen of een ontspannen potje voetbal.
OMGEVING & BEREIKBAARHEID
De villa is gelegen aan de Spieghellaan, in het hart van het gewilde Boomberg – één van de meest karakteristieke en geliefde woonwijken van Hilversum. Boomberg staat bekend om zijn statige lanen, monumentale villa’s en de groene, lommerrijke uitstraling die de wijk zo bijzonder maakt. Een rustige en veilige omgeving, waar kinderen vrij kunnen spelen en waar het gevoel van privacy en exclusiviteit hand in hand gaat met het gemak van nabijgelegen voorzieningen.
Binnen enkele minuten bereikt u het levendige centrum van Hilversum, met een breed aanbod aan hoogwaardige winkels, restaurants, cafés en culturele voorzieningen zoals de schouwburg en filmtheater. Voor de dagelijkse boodschappen zijn er diverse supermarkten en speciaalzaken op korte afstand.
De locatie is daarnaast ideaal voor gezinnen: in de directe omgeving bevinden zich diverse basisscholen, middelbare scholen en internationale scholen, evenals kinderopvang en sportverenigingen.
Ook natuurliefhebbers komen volledig aan hun trekken: de uitgestrekte heidevelden, bossen en de prachtige ’s-Gravelandse buitenplaatsen liggen op fietsafstand, perfect voor wandelingen, hardlopen of fietsen. De uitvalswegen richting de A1, A27 en A2 zijn uitstekend bereikbaar, waardoor u binnen ca. 30 minuten in Amsterdam, Schiphol of Utrecht bent. Het NS-station Hilversum bevindt zich eveneens dichtbij en biedt snelle treinverbindingen met onder meer Amsterdam, Schiphol, Utrecht en Amersfoort.
Voor een rondleiding door deze monumentale villa kunt u contact opnemen met Aldert J. Froma, NVM Makelaar of Bart H.A.M. Lammerts, NVM Makelaar van ons makelaarskantoor Laren. Nog beter is om uw eigen NVM aankoopmakelaar mee te nemen.
INDELING
Begane grond:
Via de stijlvolle entree betreedt u de ruime hal, voorzien van garderoberuimte en gastentoilet. Vanuit hier heeft u toegang tot de verschillende leef vertrekken.
De woonkamer is indrukwekkend door de plafondhoogte van bijna 3 meter en de speelse erker, die zorgt voor veel lichtinval en een prachtig zicht op de tuin, bereikbaar middels openslaande deuren. Grenzend aan de woonkamer bevindt zich de woonkeuken: een heerlijke plek om samen te komen. Deze moderne en luxe keuken is voorzien van een groot spoeleiland met Quooker, ingebouwd gasfornuis en diverse Miele inbouwapparatuur, waaronder een dubbele oven en wijnklimaatkast. Via een elektrisch bedienbaar luik heeft u toegang naar de royale (wijn)kelder. Ook de woonkeuken is voorzien van openslaande deuren, welke toegang bieden naar het terras van de zonnige tuin. Naast de keuken ligt de praktische bijkeuken, ideaal voor opslag.
Voor meer privacy en ontspanning is er een aparte TV-kamer, evenals een separate study, die uitstekend dienst kan doen als thuiswerkplek of kantoor. De woning beschikt bovendien over een lichte serre, die een prachtig uitzicht biedt op de tuin en een naadloze overgang vormt tussen binnen en buiten.
Eerste verdieping:
Via de elegante trap bereikt u de eerste verdieping, waar de royale overloop met een plafondhoogte van bijna 3 meter toegang biedt tot de diverse vertrekken. Er zijn drie ruime slaapkamers, elk met een eigen karakter en prachtige lichtinval door de vele ramen. De hoofdslaapkamer is extra bijzonder dankzij de aangrenzende kleedkamer met op maat gemaakte kastenwand en directe verbinding met de badkamer.
De luxe badkamer (ook bereikbaar vanuit de overloop) is voorzien van een ligbad, separate douche, dubbele wastafel en toilet. Daarnaast nog een apart toilet voor deze verdieping.
Tweede verdieping:
De tweede verdieping biedt nog eens verrassend veel leefruimte en is ideaal geschikt voor (oudere) kinderen, gasten of een au pair. Vanaf de overloop bereikt u twee goed bemeten slaapkamers, beide met een sfeervolle uitstraling en volop daglicht. Ook hier geeft de plafondhoogte een ruimtelijk gevoel. Eén van de twee slaapkamers heeft toegang tot een uniek dakterras waar u in alle rust kunt genieten van de zon en uitzicht. Daarnaast beschikt deze verdieping over een eigen badkamer, compleet met douche, wastafel en toilet – een groot pluspunt voor privacy en comfort. Op de overloop bevindt zich bovendien praktische ruimte met de aansluitingen voor wasmachine en -droger.
Tuin:
De tuin rondom de villa met eigen sproei installatie is een waar verlengstuk van het woongenot en biedt voor ieder moment van de dag de perfecte plek. Dankzij de diverse zonnige terrassen is er altijd een plek om te ontspannen of te genieten van een goed glas wijn in de zon. Voor ultieme ontspanning beschikt de tuin over een luxe jacuzzi, waar u in alle rust kunt genieten van privacy en comfort. Voor de culinaire liefhebber is er een ingebouwde barbecue, waarmee u buiten kunt koken en dineren in mediterrane sferen. Het praktische en onderhoudsvriendelijke kunstgrasveld maakt de tuin bovendien geschikt voor spel en sport, perfect om het hockeytalent van uw kinderen te ontwikkelen of een ontspannen potje voetbal.
OMGEVING & BEREIKBAARHEID
De villa is gelegen aan de Spieghellaan, in het hart van het gewilde Boomberg – één van de meest karakteristieke en geliefde woonwijken van Hilversum. Boomberg staat bekend om zijn statige lanen, monumentale villa’s en de groene, lommerrijke uitstraling die de wijk zo bijzonder maakt. Een rustige en veilige omgeving, waar kinderen vrij kunnen spelen en waar het gevoel van privacy en exclusiviteit hand in hand gaat met het gemak van nabijgelegen voorzieningen.
Binnen enkele minuten bereikt u het levendige centrum van Hilversum, met een breed aanbod aan hoogwaardige winkels, restaurants, cafés en culturele voorzieningen zoals de schouwburg en filmtheater. Voor de dagelijkse boodschappen zijn er diverse supermarkten en speciaalzaken op korte afstand.
De locatie is daarnaast ideaal voor gezinnen: in de directe omgeving bevinden zich diverse basisscholen, middelbare scholen en internationale scholen, evenals kinderopvang en sportverenigingen.
Ook natuurliefhebbers komen volledig aan hun trekken: de uitgestrekte heidevelden, bossen en de prachtige ’s-Gravelandse buitenplaatsen liggen op fietsafstand, perfect voor wandelingen, hardlopen of fietsen. De uitvalswegen richting de A1, A27 en A2 zijn uitstekend bereikbaar, waardoor u binnen ca. 30 minuten in Amsterdam, Schiphol of Utrecht bent. Het NS-station Hilversum bevindt zich eveneens dichtbij en biedt snelle treinverbindingen met onder meer Amsterdam, Schiphol, Utrecht en Amersfoort.
Voor een rondleiding door deze monumentale villa kunt u contact opnemen met Aldert J. Froma, NVM Makelaar of Bart H.A.M. Lammerts, NVM Makelaar van ons makelaarskantoor Laren. Nog beter is om uw eigen NVM aankoopmakelaar mee te nemen.
| Vastgoed ID | LN102120 |
|---|---|
| Vraagprijs | € 2.250.000 k.k. |
| Woningtype | Villa |
| Woonopp. | 270 m² |
| Perceelopp. | 536 m² |
| Bouwjaar | 1902 |
| Renovatiejaar | - |
| Slaapkamers | 5 |
| Badkamers | 2 |
| Garages | 1 |
| Energielabel | - |
Voorma en Walch Laren Brink 34, 1251 KW Laren
- Telefoon:+31.35.539.90.80
- Email:laren@voorma-walch.nl
- Website:voorma-walch.nl
- Maandag - VrijdagOpen van 08.30 - 17.30
- Zaterdag Open van 10.00 - 16.00
- Zondag Gesloten
Makelaar
































































