Villa te koop in WASSENAAR met referentie 19210431976
Prinsenweg 109, 2242 ED WASSENAAR—Ref. WR104579
Karaktervolle, gerenoveerde jaren ’30 villa aan de Zijlwetering
Aan het mooiste deel van de Prinsenweg, op loopafstand van het dorpscentrum van Wassenaar, bevindt zich deze karaktervol gerenoveerde jaren ’30 villa. De woning ligt op een unieke locatie aan de Zijlwetering en combineert het sfeervolle karakter van de jaren dertig met het comfort van nu.
Rondom de villa ligt een smaakvol aangelegde tuin met meerdere terrassen die trapsgewijs aflopen naar het water. Hier bevindt zich tevens een eigen aanlegsteiger, vanwaar u direct kunt uitvaren richting onder meer Leiden en de Kagerplassen. Aan de overzijde van de wetering ligt het fraaie park De Paauw, wat zorgt voor een groen en weids uitzicht.
De villa beschikt bovendien over een zwembad en biedt volop ruimte, rust en privacy — een oase van sereniteit op korte afstand van het levendige dorpscentrum.
Hier geniet men dagelijks van het beste wat Wassenaar te bieden heeft: ruimte, natuur en het plezier van wonen aan vaarwater.
Indeling:
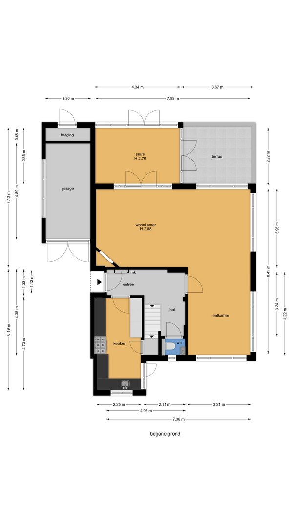
Begane grond:
Royale entree met garderobe en gastentoilet. Vanuit de hal is er toegang tot de volledig uitgeruste keuken met vloerverwarming. De keuken is voorzien van een typisch Engels Falcon 6-pits fornuis met twee heteluchtovens en een glide-out grill — een echte blikvanger. Daarnaast beschikt de keuken over een Quooker met gekoeld en bruisend water en biedt zij toegang tot zowel de voortuin als de kelder.
De L-vormige woon-/eetkamer heeft een mooie parketvloer, glas-in-loodramen in de kozijnen en een sfeervolle open haard. De recent gerealiseerde tuingerichte aanbouw zorgt voor een prachtige lichtinval dankzij de grote glaspartijen en openslaande deuren naar het terras en de achtertuin. De aanbouw is voorzien van vloerverwarming en creëert een harmonieuze verbinding tussen binnen en buiten.
Eerste verdieping
Een ruim en licht trappenhuis leidt naar de eerste verdieping met een royale overloop. Hier bevinden zich drie slaapkamers, waaronder de hoofdslaapkamer met toegang tot een ruim balkon. De slaapkamer aan de achterzijde is voorzien van een vaste kastenwand, evenals de slaapkamer aan de voorzijde. De complete badkamer beschikt over vloerverwarming, een ligbad, inloopdouche, wastafel en toilet. Via een tweede overloop is de trap naar de tweede verdieping bereikbaar.
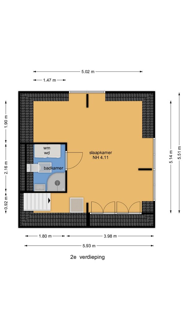
Tweede verdieping
Via de overloop is toegang tot een ruime slaapkamer, die voorheen uit twee kamers bestond. Deze lichte ruimte is voorzien van een vaste kastenwand en een eigen badkamer met douche, wastafel, toilet en wasmachineaansluiting. De open indeling en hoge nok geven de verdieping een loftachtig karakter.
Kelder:
De woning beschikt over een ruime kelder met de opstelling van de cv-ketel en aangebouwde stenen garage.
Buitenruimte:
De verzorgde voortuin beschikt over een oprit met elektrische poort, die toegang biedt tot parkeergelegenheid op eigen terrein en een aangebouwde stenen garage.
De achtertuin is fraai vormgegeven en bijzonder privé, met in 2022 gerealiseerd zwembadhuis inclusief binnenzwembad met HydroDrive-technologie.
Bijzonderheden:
- 180 m² woonoppervlakte, perceel van 565 m²;
- 4 slaapkamers, 2 badkamers;
- Dubbel/HR + (+) glas;
- 10 zonnepanelen (2022);
- Zwembadhuis met zwembad (2022); Endless Pool met HydroDrive Plus technologie;
- Prachtige ligging aan het water met eigen aanlegsteiger;
- Laadpaal elektrische auto;
- Parkeren op eigen terrein;
- Quooker;
- Videofoon;
- Uitzicht op park ‘De Paauw’;
- Gelegen nabij scholen, winkels, sportfaciliteiten en uitvalswegen;
- Beschermd dorpsgezicht;
- Aanvaarding in overleg;
- Ouderdoms- en asbestclausule in de NVM koopakte.
Deze informatie is door ons met de nodige zorgvuldigheid samengesteld. Onzerzijds wordt echter geen enkele aansprakelijkheid aanvaard voor enige onvolledigheid, onjuistheid of anderszins, dan wel de gevolgen daarvan. Alle opgegeven maten en oppervlakten zijn indicatief. Van toepassing zijn de NVM voorwaarden.
Interesse?
Bent u enthousiast geworden en wilt u de ruimte, sfeer en mogelijkheden zelf ervaren? Neem contact met ons op voor een bezichtiging — wij leiden u graag rond door deze karaktervolle woning aan de Prinsenweg 109 in Wassenaar.
Aan het mooiste deel van de Prinsenweg, op loopafstand van het dorpscentrum van Wassenaar, bevindt zich deze karaktervol gerenoveerde jaren ’30 villa. De woning ligt op een unieke locatie aan de Zijlwetering en combineert het sfeervolle karakter van de jaren dertig met het comfort van nu.
Rondom de villa ligt een smaakvol aangelegde tuin met meerdere terrassen die trapsgewijs aflopen naar het water. Hier bevindt zich tevens een eigen aanlegsteiger, vanwaar u direct kunt uitvaren richting onder meer Leiden en de Kagerplassen. Aan de overzijde van de wetering ligt het fraaie park De Paauw, wat zorgt voor een groen en weids uitzicht.
De villa beschikt bovendien over een zwembad en biedt volop ruimte, rust en privacy — een oase van sereniteit op korte afstand van het levendige dorpscentrum.
Hier geniet men dagelijks van het beste wat Wassenaar te bieden heeft: ruimte, natuur en het plezier van wonen aan vaarwater.
Indeling:
Begane grond:
Royale entree met garderobe en gastentoilet. Vanuit de hal is er toegang tot de volledig uitgeruste keuken met vloerverwarming. De keuken is voorzien van een typisch Engels Falcon 6-pits fornuis met twee heteluchtovens en een glide-out grill — een echte blikvanger. Daarnaast beschikt de keuken over een Quooker met gekoeld en bruisend water en biedt zij toegang tot zowel de voortuin als de kelder.
De L-vormige woon-/eetkamer heeft een mooie parketvloer, glas-in-loodramen in de kozijnen en een sfeervolle open haard. De recent gerealiseerde tuingerichte aanbouw zorgt voor een prachtige lichtinval dankzij de grote glaspartijen en openslaande deuren naar het terras en de achtertuin. De aanbouw is voorzien van vloerverwarming en creëert een harmonieuze verbinding tussen binnen en buiten.
Eerste verdieping
Een ruim en licht trappenhuis leidt naar de eerste verdieping met een royale overloop. Hier bevinden zich drie slaapkamers, waaronder de hoofdslaapkamer met toegang tot een ruim balkon. De slaapkamer aan de achterzijde is voorzien van een vaste kastenwand, evenals de slaapkamer aan de voorzijde. De complete badkamer beschikt over vloerverwarming, een ligbad, inloopdouche, wastafel en toilet. Via een tweede overloop is de trap naar de tweede verdieping bereikbaar.
Tweede verdieping
Via de overloop is toegang tot een ruime slaapkamer, die voorheen uit twee kamers bestond. Deze lichte ruimte is voorzien van een vaste kastenwand en een eigen badkamer met douche, wastafel, toilet en wasmachineaansluiting. De open indeling en hoge nok geven de verdieping een loftachtig karakter.
Kelder:
De woning beschikt over een ruime kelder met de opstelling van de cv-ketel en aangebouwde stenen garage.
Buitenruimte:
De verzorgde voortuin beschikt over een oprit met elektrische poort, die toegang biedt tot parkeergelegenheid op eigen terrein en een aangebouwde stenen garage.
De achtertuin is fraai vormgegeven en bijzonder privé, met in 2022 gerealiseerd zwembadhuis inclusief binnenzwembad met HydroDrive-technologie.
Bijzonderheden:
- 180 m² woonoppervlakte, perceel van 565 m²;
- 4 slaapkamers, 2 badkamers;
- Dubbel/HR + (+) glas;
- 10 zonnepanelen (2022);
- Zwembadhuis met zwembad (2022); Endless Pool met HydroDrive Plus technologie;
- Prachtige ligging aan het water met eigen aanlegsteiger;
- Laadpaal elektrische auto;
- Parkeren op eigen terrein;
- Quooker;
- Videofoon;
- Uitzicht op park ‘De Paauw’;
- Gelegen nabij scholen, winkels, sportfaciliteiten en uitvalswegen;
- Beschermd dorpsgezicht;
- Aanvaarding in overleg;
- Ouderdoms- en asbestclausule in de NVM koopakte.
Deze informatie is door ons met de nodige zorgvuldigheid samengesteld. Onzerzijds wordt echter geen enkele aansprakelijkheid aanvaard voor enige onvolledigheid, onjuistheid of anderszins, dan wel de gevolgen daarvan. Alle opgegeven maten en oppervlakten zijn indicatief. Van toepassing zijn de NVM voorwaarden.
Interesse?
Bent u enthousiast geworden en wilt u de ruimte, sfeer en mogelijkheden zelf ervaren? Neem contact met ons op voor een bezichtiging — wij leiden u graag rond door deze karaktervolle woning aan de Prinsenweg 109 in Wassenaar.
| Vastgoed ID | WR104579 |
|---|---|
| Vraagprijs | € 1.595.000 k.k. |
| Woningtype | Villa |
| Woonopp. | 180 m² |
| Perceelopp. | 565 m² |
| Bouwjaar | 1937 |
| Renovatiejaar | - |
| Slaapkamers | 4 |
| Badkamers | 2 |
| Garages | 1 |
| Energielabel | D |
Welp Makelaardij Van Hogendorpstraat 16 d, 2242 KZ Wassenaar
- Telefoon:+31.070.51.11.720
- Email:info@welpmakelaardij.nl
- Website:www.welpmakelaardij.nl
- Maandag - VrijdagOpen van 09.00 - 17.30
- Zaterdag Open van 10.00 - 14.00
- Zondag Gesloten



















































