Villa te koop in BLARICUM met referentie 19506593811
Prins Hendriklaan 14, 1261 AJ BLARICUM—Ref. LN101936
Dit huis is een thuis, waar uw kinderen een heerlijke jeugd hebben en waar u het leven koestert, met uw gezin, familie en vrienden……...
750 m² woongenot tussen rust en randstad. Met 14 kamers, waarvan 7 slaapkamers, 4 badkamers, een woonkeuken die niets te wensen overlaat. Een landhuis met de sfeer van toen en het comfort van nu. Omgeven door een heerlijke tuin in een unieke omgeving.
Even over die naam, de Uylenborgh. Toen de huidige eigenaar potlood op papier zette, jazeker, hij ontwierp dit huis zelf, stond hem een klassieke, Groningse ‘borg’ voor ogen: een robuust landhuis, geworteld in zijn omgeving en met het vleugje classicisme. De voor die bouwstijl typerende symmetrie wordt benadrukt door de iets naar voren springende middenrisaliet, bekroond met een fronton. Op de hoeken van de perfect vierkante plattegrond vormen onderbroken risalieten in baksteen een speels architectonisch detail, terwijl vier stoere schoorstenen het kleinere vierkant van het dak accentueren.
De indeling van de villa:
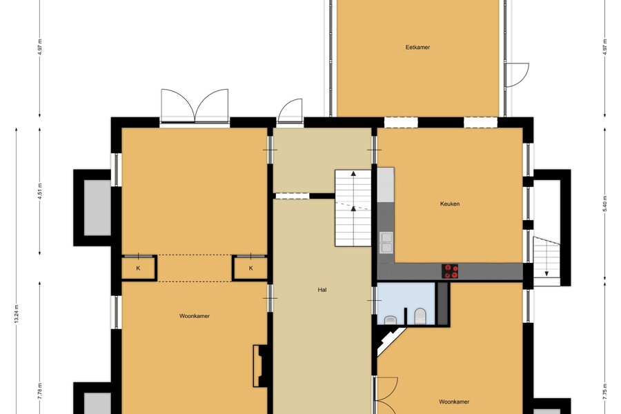
Op de begane grond deelt de heerlijk brede hal het vierkant in tweeën. Links strekt de leefruimte zich over de volle diepte van het pand uit, onderbroken door een klassieke en-suite-partij, terwijl rechts aan de voorzijde een riante kamer dient als tweede zitkamer, formele eetkamer, bibliotheek, muziekkamer, of wat u maar wilt. De keuken rechts achterin is een échte woonkeuken, met een heerlijk lichte eetkamer in de aangrenzende serre, die toegang biedt tot de stijlvolle veranda. Hier geniet u zelfs op de slechtste dagen van de rust en het zicht op uw tuin. Rechts achterin die tuin staat een, opnieuw door de eigenaar ontworpen, stijlvol én praktisch bijgebouw. Hier kunt u al uw hobby’s kwijt en al die spullen, die u niet direct nodig hebt, maar niet weg wilt/mag doen (verbouwen tot een gastenverblijf/mantelzorgwoning is natuurlijk ook een optie).
Terug naar het landhuis: op de eerste verdieping treft u vier vierkante slaapkamers. Voor wie het nog nooit ervaren heeft, niets is zo fijn qua indeling en inrichting als een vierkante kamer. Iedere slaapkamer beschikt over een eigen badkamer. De vijfde kamer op deze verdieping is de perfecte kleedkamer bij uw master-bedroom.
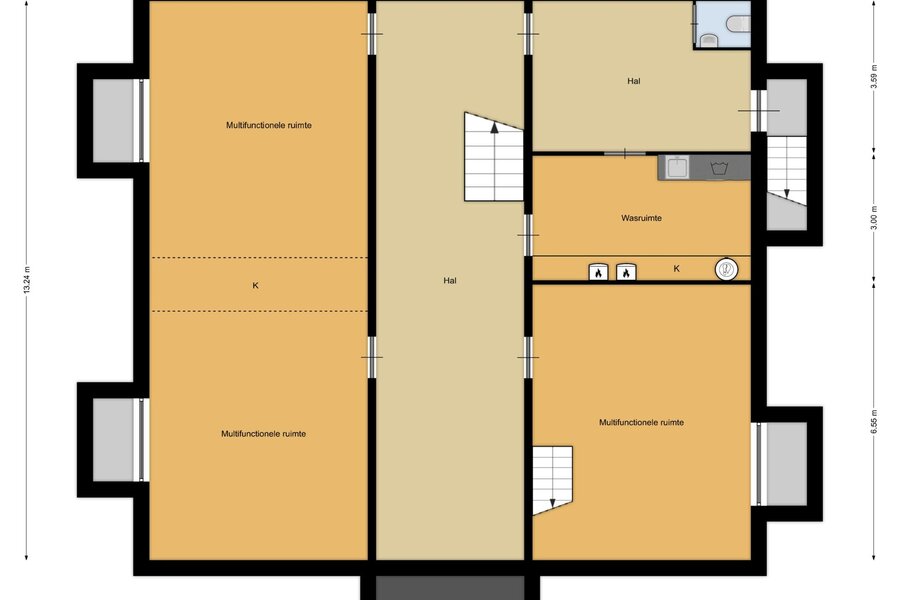
De volwaardige zolderverdieping is bij de bouw voorzien van al het leidingwerk om hier met een eenvoudige ingreep een zelfstandig appartement van te maken, ideaal voor een nanny/au-pair of natuurlijk voor uw gasten.
Het souterrain, dat zowel binnendoor als buitenom bereikbaar is, leent zich uitstekend voor een praktijkruimte, als chill-out zone voor de tieners, of als de plek voor uw gym, biljartkamer en thuisbioscoop.
Volwassen bomen en heesters geven de tuin een gevoel van tijdloosheid én zorgen voor de gewenste privacy. Datzelfde gevoel van tijdloosheid typeert ook het huis zelf: gebouwd in 2000 en dus van alle moderne gemakken voorzien, van superieure isolatie tot een home cinema in het souterrain, maar met de hoge plafonds, riante afmetingen en prettige flow die dit huis kenmerkt. Het oog voor detail in de Uylenborgh is fenomenaal.
De villa ligt exact tussen het Goois Natuurreservaat Blaricummerheide/Noorderheide en de uitvalsweg naar de A1. Met andere woorden: de Uylenborgh biedt u alle rust van het wonen in deze prachtige omgeving, maar met de reuring van de Randstad onder handbereik. Overigens, de huidige eigenaar tipt het busstation, op zo’n 200 meter van de voordeur. Er staan in de zeer gewilde, kleine Koningsbuurt, waar de Prins Hendriklaan deel van uitmaakt, fraaie bolides op de diverse oprijlanen, maar het blijkt dat de meeste eigenaren daarvan net zo lief de bus pakken. Reden? In 15 minuten staat u op het Amstel Station (of in Utrecht of Hilversum).
Kortom dit is een echt familiehuis, waar heerlijk in geleefd kan worden. De gasten die u ontvangt krijgt u nooit meer weg. Want dit is een huis dat haast schreeuwt om etentjes, om verjaardagen, om ‘we doen Kerst toch zeker wel weer bij jullie?’
Voor een rondleiding door dit fantastische familiehuis, kunt u contact opnemen met Bart Lammerts, NVM Makelaar of Jacques E. Walch, NVM Register Makelaar van ons makelaarskantoor Laren. Nog beter is om uw eigen NVM aankoopmakelaar mee te nemen.
750 m² woongenot tussen rust en randstad. Met 14 kamers, waarvan 7 slaapkamers, 4 badkamers, een woonkeuken die niets te wensen overlaat. Een landhuis met de sfeer van toen en het comfort van nu. Omgeven door een heerlijke tuin in een unieke omgeving.
Even over die naam, de Uylenborgh. Toen de huidige eigenaar potlood op papier zette, jazeker, hij ontwierp dit huis zelf, stond hem een klassieke, Groningse ‘borg’ voor ogen: een robuust landhuis, geworteld in zijn omgeving en met het vleugje classicisme. De voor die bouwstijl typerende symmetrie wordt benadrukt door de iets naar voren springende middenrisaliet, bekroond met een fronton. Op de hoeken van de perfect vierkante plattegrond vormen onderbroken risalieten in baksteen een speels architectonisch detail, terwijl vier stoere schoorstenen het kleinere vierkant van het dak accentueren.
De indeling van de villa:
Op de begane grond deelt de heerlijk brede hal het vierkant in tweeën. Links strekt de leefruimte zich over de volle diepte van het pand uit, onderbroken door een klassieke en-suite-partij, terwijl rechts aan de voorzijde een riante kamer dient als tweede zitkamer, formele eetkamer, bibliotheek, muziekkamer, of wat u maar wilt. De keuken rechts achterin is een échte woonkeuken, met een heerlijk lichte eetkamer in de aangrenzende serre, die toegang biedt tot de stijlvolle veranda. Hier geniet u zelfs op de slechtste dagen van de rust en het zicht op uw tuin. Rechts achterin die tuin staat een, opnieuw door de eigenaar ontworpen, stijlvol én praktisch bijgebouw. Hier kunt u al uw hobby’s kwijt en al die spullen, die u niet direct nodig hebt, maar niet weg wilt/mag doen (verbouwen tot een gastenverblijf/mantelzorgwoning is natuurlijk ook een optie).
Terug naar het landhuis: op de eerste verdieping treft u vier vierkante slaapkamers. Voor wie het nog nooit ervaren heeft, niets is zo fijn qua indeling en inrichting als een vierkante kamer. Iedere slaapkamer beschikt over een eigen badkamer. De vijfde kamer op deze verdieping is de perfecte kleedkamer bij uw master-bedroom.
De volwaardige zolderverdieping is bij de bouw voorzien van al het leidingwerk om hier met een eenvoudige ingreep een zelfstandig appartement van te maken, ideaal voor een nanny/au-pair of natuurlijk voor uw gasten.
Het souterrain, dat zowel binnendoor als buitenom bereikbaar is, leent zich uitstekend voor een praktijkruimte, als chill-out zone voor de tieners, of als de plek voor uw gym, biljartkamer en thuisbioscoop.
Volwassen bomen en heesters geven de tuin een gevoel van tijdloosheid én zorgen voor de gewenste privacy. Datzelfde gevoel van tijdloosheid typeert ook het huis zelf: gebouwd in 2000 en dus van alle moderne gemakken voorzien, van superieure isolatie tot een home cinema in het souterrain, maar met de hoge plafonds, riante afmetingen en prettige flow die dit huis kenmerkt. Het oog voor detail in de Uylenborgh is fenomenaal.
De villa ligt exact tussen het Goois Natuurreservaat Blaricummerheide/Noorderheide en de uitvalsweg naar de A1. Met andere woorden: de Uylenborgh biedt u alle rust van het wonen in deze prachtige omgeving, maar met de reuring van de Randstad onder handbereik. Overigens, de huidige eigenaar tipt het busstation, op zo’n 200 meter van de voordeur. Er staan in de zeer gewilde, kleine Koningsbuurt, waar de Prins Hendriklaan deel van uitmaakt, fraaie bolides op de diverse oprijlanen, maar het blijkt dat de meeste eigenaren daarvan net zo lief de bus pakken. Reden? In 15 minuten staat u op het Amstel Station (of in Utrecht of Hilversum).
Kortom dit is een echt familiehuis, waar heerlijk in geleefd kan worden. De gasten die u ontvangt krijgt u nooit meer weg. Want dit is een huis dat haast schreeuwt om etentjes, om verjaardagen, om ‘we doen Kerst toch zeker wel weer bij jullie?’
Voor een rondleiding door dit fantastische familiehuis, kunt u contact opnemen met Bart Lammerts, NVM Makelaar of Jacques E. Walch, NVM Register Makelaar van ons makelaarskantoor Laren. Nog beter is om uw eigen NVM aankoopmakelaar mee te nemen.
| Vastgoed ID | LN101936 |
|---|---|
| Vraagprijs | € 3.495.000 k.k. |
| Woningtype | Villa |
| Woonopp. | 750 m² |
| Perceelopp. | 2.955 m² |
| Bouwjaar | 2000 |
| Renovatiejaar | - |
| Slaapkamers | 7 |
| Badkamers | 3 |
| Garages | - |
| Energielabel | A |
Voorma en Walch Laren Brink 34, 1251 KW Laren
- Telefoon:+31.35.539.90.80
- Email:laren@voorma-walch.nl
- Website:voorma-walch.nl
- Maandag - VrijdagOpen van 08.30 - 17.30
- Zaterdag Open van 10.00 - 16.00
- Zondag Gesloten




















