Villa te koop in BUSSUM met referentie 19608256444
Amersfoortsestraatweg 53, 1402 GP BUSSUM—Ref. BM100732
Zeer royale gezinsvilla met binnenzwembad en parkachtige tuin in het hart van het Gooi!
Op een prachtige, centrale locatie in het Gooi bevindt zich deze uitstekend onderhouden, royale villa. Met een woonoppervlakte van maar liefst ca. 744 m² en een perceel van ca. 3.286 m² biedt deze woning uitzonderlijk veel ruimte, comfort en privacy. De villa is voorzien van alle luxe die men zich kan wensen, waaronder een verwarmd binnenzwembad, een dubbele garage, een multifunctionele zolderverdieping en de mogelijkheid om circa twaalf auto’s op eigen terrein te parkeren. De fraai aangelegde parkachtige tuin rondom maakt dit object tot een unieke woonbeleving.
Indeling
Begane grond
De imposante ontvangsthal met vide, garderobe en plavuizen vloer vormt de entree tot deze villa. De royale woonkamer beschikt over een schouw met open haard en dubbele openslaande deuren naar de tuin. De aangrenzende eetkamer, eveneens met open haard en openslaande deuren naar het terras, vormt samen met de luxe, volledig uitgeruste Miele-keuken het hart van het huis. Aansluitend bevindt zich een sfeervolle zit-/tv-kamer met erker en gashaard, evenals een speelkamer die direct in verbinding staat met de keuken.
De bijkeuken biedt toegang tot de kelder en de eerste verdieping en leidt tevens naar de kleedruimte met toilet ten behoeve van het zwembad . Vanuit hier bereikt u het verwarmde binnenzwembad, dat dankzij meerdere openslaande deuren een directe verbinding heeft met de tuin. Tot slot beschikt de begane grond over een inpandig bereikbare, verwarmde dubbele garage met pantry.
Eerste verdieping
De royale overloop met vide geeft toegang tot de master bedroom met balkon en en suite badkamer, voorzien van dubbele wastafel, toilet, ligbad en inloopdouche. Een tweede kamer is momenteel in gebruik als fitnessruimte. Daarnaast bevinden zich op deze verdieping nog vier slaapkamers, twee badkamers, een linnenkamer en een separaat toilet. Alle slaapkamers zijn ruim bemeten en twee zijn voorzien van vaste kasten.
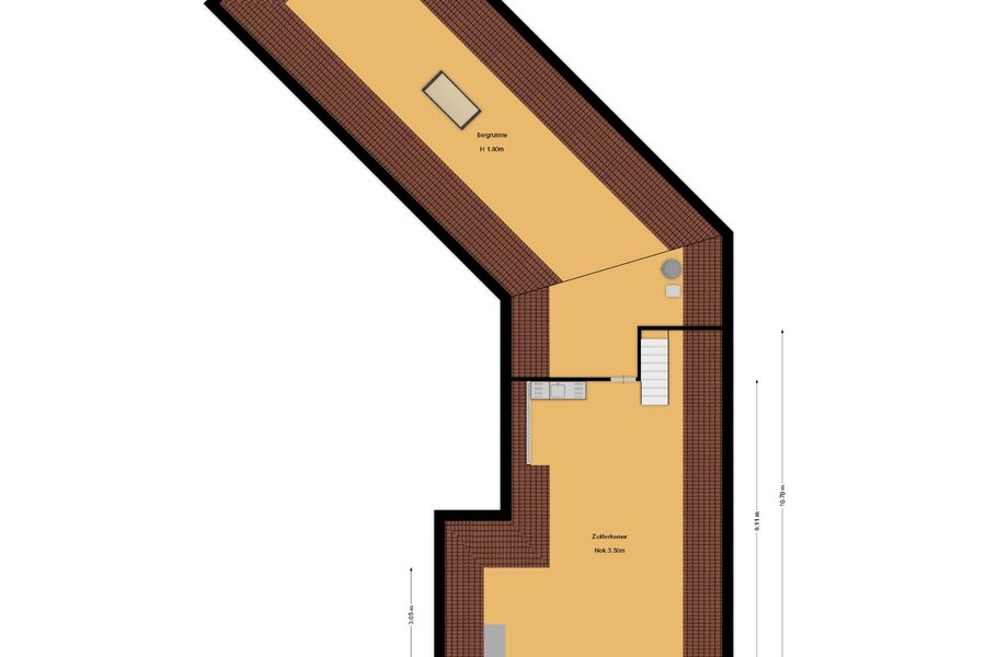
Tweede verdieping
Via een vaste trap bereikt u de tweede verdieping, die momenteel is ingericht als multifunctionele ruimte met kitchenette en dakramen. Hier kan eenvoudig een gastenverblijf of zesde slaapkamer worden gerealiseerd. Tevens bevindt zich hier een bergzolder.
Buitenruimte
De villa is prachtig gesitueerd op het perceel en omgeven door een fraai aangelegde, parkachtige tuin. Deze biedt volledige privacy en is met zijn volwassen beplanting en perfecte ligging op het zuidwesten een oase van rust. De tuin is voorzien van een automatisch irrigatie systeem en tuinverlichting en biedt ruime terrassen waar u de zon van de ochtend tot de late avond kunt volgen.
Bijzonderheden
- Zeer royale vrijstaande villa
- Woonoppervlakte: ca. 744 m²
- Perceeloppervlakte: ca. 3.286 m²
- Bouwjaar: 2000
- Vijf slaapkamers, drie badkamers
- Verwarmd binnenzwembad
- Dubbele inpandige garage voor 2 auto's
-Carport voor 3 auto's
- Ruime parkeergelegenheid op eigen terrein
- Aardwarmtepomp voor C.V.
- Zonnecollectoren ten behoeve van warmwatervoorziening
- Zonneboiler met warmtepomp
- 4 gashaarden waarvan 2 gesloten
- Vloerverwarming met koelfunctie
Voor een rondleiding door deze charmante villa kunt u contact opnemen met Bart Lammerts, NVM Makelaar, of Jacques Walch, NVM Makelaar. Nog beter is om uw eigen NVM-aankoopmakelaar mee te nemen.
Voor een cappuccino met warm appelgebak bent u op zaterdagmorgen tussen 10:00 – 14:00 uur meer dan welkom op ons kantoor te Blaricum aan de Torenlaan 12d (de Garage)
Op een prachtige, centrale locatie in het Gooi bevindt zich deze uitstekend onderhouden, royale villa. Met een woonoppervlakte van maar liefst ca. 744 m² en een perceel van ca. 3.286 m² biedt deze woning uitzonderlijk veel ruimte, comfort en privacy. De villa is voorzien van alle luxe die men zich kan wensen, waaronder een verwarmd binnenzwembad, een dubbele garage, een multifunctionele zolderverdieping en de mogelijkheid om circa twaalf auto’s op eigen terrein te parkeren. De fraai aangelegde parkachtige tuin rondom maakt dit object tot een unieke woonbeleving.
Indeling
Begane grond
De imposante ontvangsthal met vide, garderobe en plavuizen vloer vormt de entree tot deze villa. De royale woonkamer beschikt over een schouw met open haard en dubbele openslaande deuren naar de tuin. De aangrenzende eetkamer, eveneens met open haard en openslaande deuren naar het terras, vormt samen met de luxe, volledig uitgeruste Miele-keuken het hart van het huis. Aansluitend bevindt zich een sfeervolle zit-/tv-kamer met erker en gashaard, evenals een speelkamer die direct in verbinding staat met de keuken.
De bijkeuken biedt toegang tot de kelder en de eerste verdieping en leidt tevens naar de kleedruimte met toilet ten behoeve van het zwembad . Vanuit hier bereikt u het verwarmde binnenzwembad, dat dankzij meerdere openslaande deuren een directe verbinding heeft met de tuin. Tot slot beschikt de begane grond over een inpandig bereikbare, verwarmde dubbele garage met pantry.
Eerste verdieping
De royale overloop met vide geeft toegang tot de master bedroom met balkon en en suite badkamer, voorzien van dubbele wastafel, toilet, ligbad en inloopdouche. Een tweede kamer is momenteel in gebruik als fitnessruimte. Daarnaast bevinden zich op deze verdieping nog vier slaapkamers, twee badkamers, een linnenkamer en een separaat toilet. Alle slaapkamers zijn ruim bemeten en twee zijn voorzien van vaste kasten.
Tweede verdieping
Via een vaste trap bereikt u de tweede verdieping, die momenteel is ingericht als multifunctionele ruimte met kitchenette en dakramen. Hier kan eenvoudig een gastenverblijf of zesde slaapkamer worden gerealiseerd. Tevens bevindt zich hier een bergzolder.
Buitenruimte
De villa is prachtig gesitueerd op het perceel en omgeven door een fraai aangelegde, parkachtige tuin. Deze biedt volledige privacy en is met zijn volwassen beplanting en perfecte ligging op het zuidwesten een oase van rust. De tuin is voorzien van een automatisch irrigatie systeem en tuinverlichting en biedt ruime terrassen waar u de zon van de ochtend tot de late avond kunt volgen.
Bijzonderheden
- Zeer royale vrijstaande villa
- Woonoppervlakte: ca. 744 m²
- Perceeloppervlakte: ca. 3.286 m²
- Bouwjaar: 2000
- Vijf slaapkamers, drie badkamers
- Verwarmd binnenzwembad
- Dubbele inpandige garage voor 2 auto's
-Carport voor 3 auto's
- Ruime parkeergelegenheid op eigen terrein
- Aardwarmtepomp voor C.V.
- Zonnecollectoren ten behoeve van warmwatervoorziening
- Zonneboiler met warmtepomp
- 4 gashaarden waarvan 2 gesloten
- Vloerverwarming met koelfunctie
Voor een rondleiding door deze charmante villa kunt u contact opnemen met Bart Lammerts, NVM Makelaar, of Jacques Walch, NVM Makelaar. Nog beter is om uw eigen NVM-aankoopmakelaar mee te nemen.
Voor een cappuccino met warm appelgebak bent u op zaterdagmorgen tussen 10:00 – 14:00 uur meer dan welkom op ons kantoor te Blaricum aan de Torenlaan 12d (de Garage)
| Vastgoed ID | BM100732 |
|---|---|
| Vraagprijs | € 2.850.000 k.k. |
| Woningtype | Villa |
| Woonopp. | 744 m² |
| Perceelopp. | 3.286 m² |
| Bouwjaar | 2000 |
| Renovatiejaar | - |
| Slaapkamers | 5 |
| Badkamers | 3 |
| Garages | 1 |
| Energielabel | A+ |
Voorma en Walch Blaricum Torenlaan 12 D, 1261 GD Blaricum
- Telefoon:+31.35.531.53.00
- Email:blaricum@voorma-walch.nl
- Website:voorma-walch.nl
- Maandag - VrijdagOpen van 08.30 - 17.30
- Zaterdag Open van 10.00 - 16.00
- Zondag Gesloten
























