Appartement te koop in 'S-GRAVENHAGE met referentie 19610237774
Surinamestraat 49, 2585 GH 'S-GRAVENHAGE—Ref. NY100429
Wonen aan de Surinamestraat betekent leven in de Archipelbuurt, één van de meest begeerde wijken van Den Haag – en mogelijk de mooiste straat van de buurt. De statige herenhuizen en het karaktervolle straatbeeld zorgen voor een charmante en elegante omgeving.
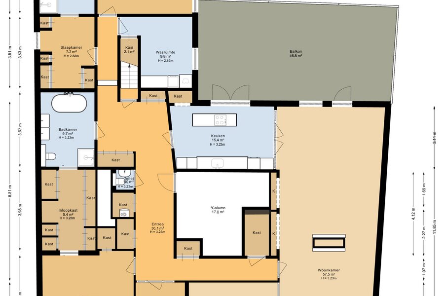
Deze royale woning van circa 266 m² is in 2018 volledig gerenoveerd met oog voor detail; waar gekozen is voor hoogwaardige materialen, moderne installaties en een verfijnde afwerking die het karakter van het pand versterkt. Uniek aan deze woning is de inpandige garage, met autolift geschikt voor twee auto’s, én de eigen lift en interne trap, waardoor comfort en praktische luxe hand in hand gaan. Het royale dakterras van 47 m² maakt dit pand extra bijzonder. Het resultaat is een perfecte balans tussen historische grandeur en hedendaags wooncomfort.
Het hart van de woning bevindt zich op de eerste verdieping. Hier vindt u een royale open woonkeuken, volledig uitgerust met hoogwaardige inbouwapparatuur en een kookeiland, grenzend aan een lichte woonkamer met sfeervolle openhaard. Daarnaast zijn er een multifunctionele TV-kamer en een aparte werkkamer/study, en directe toegang tot het riante terras, ideaal voor ontspanning en entertainment. De gehele verdieping is turnkey gerenoveerd en afgewerkt op een luxueus niveau.
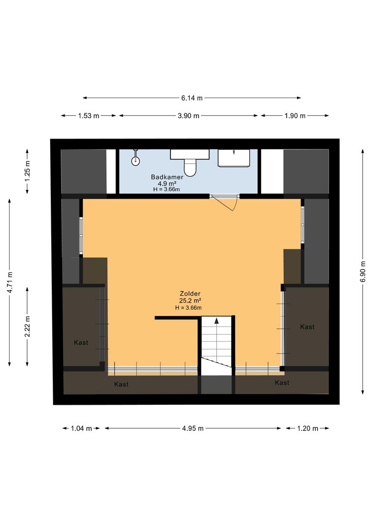
De slaapvertrekken zijn verdeeld over beide verdiepingen. De eerste verdieping biedt de master suite met royale slaapkamer, luxe badkamer en ruime walk-in closet, plus een tweede slaapkamer met eigen badkamer. De tweede verdieping beschikt over een extra slaapkamer met badkamer en-suite, ideaal voor gasten of familie die privacy wensen.
Gelegen in het hart van de prestigieuze Archipelbuurt, biedt de Surinamestraat een ongeëvenaarde combinatie van elegantie, rust en levendigheid. Het groen van de Scheveningse Bosjes, het strand, exclusieve winkels en toprestaurants liggen op loopafstand. Bovendien bent u zeer goed verbonden met het openbaar vervoer en de uitvalswegen, wat de locatie zowel centraal als goed bereikbaar maakt. Deze uitzonderlijke woning is een zeldzame kans voor wie ruimte, luxe en comfort zoekt op het allerhoogste niveau.
Kenmerken:
• Bouwjaar: 1889
• Woonoppervlakte: ca. 266 m²
• Dakterras: ca. 47 m²
• 3 slaapkamers, elk met eigen badkamer
• Master suite met royale walk-in closet
• Inpandige garage met autolift (zeer uniek)
• Eigen lift en interne trap
• Turnkey gerenoveerd in 2018 met hoogwaardig luxe afwerkingsniveau
• Energie A-label
• VvE-bijdrage: €550 per maand
• Open woonkeuken met kookeiland en hoogwaardige inbouwapparatuur
• Woonkamer met sfeervolle openhaard
• TV-kamer en aparte study/werkkamer
• Gelegen in de gewilde Archipelbuurt van Den Haag, op loopafstand van het centrum
• Oplevering in overleg
Interesse in deze exclusieve woning? Neem contact met ons op voor een persoonlijke bezichtiging en ervaar zelf de ruimte, rust en luxe van Surinamestraat 49. Een unieke woning dat zelden beschikbaar komt.
Living on Surinamestraat means experiencing life in the Archipelbuurt, one of The Hague’s most desirable neighborhoods – and possibly the most beautiful street in the area. The stately townhouses and charming streetscape create an elegant and inviting environment.
This spacious home of approximately 266 m² was fully renovated in 2018 with meticulous attention to detail, featuring high-quality materials, modern installations, and refined finishes that enhance the character of the property. Unique to this home is the internal garage with a car lift suitable for two cars, as well as its own elevator and internal staircase, combining comfort with practical luxury. The generous 47 m² rooftop terrace makes this property extra special. The result is a perfect balance between historic grandeur and contemporary living comfort.
The heart of the home is located on the first floor. Here you will find a spacious open-plan kitchen, fully equipped with high-end built-in appliances and a cooking island, adjoining a bright living room with a cozy fireplace. In addition, there is a multifunctional TV room and a separate study/office, with direct access to the large terrace – ideal for relaxation and entertainment. The entire floor has been turnkey renovated and finished to a luxurious standard.
The sleeping quarters are spread over both floors. The first floor offers the master suite with a spacious bedroom, luxury bathroom, and large walk-in closet, plus a second bedroom with its own bathroom. The second floor includes an additional bedroom with en-suite bathroom, perfect for guests or family members seeking privacy.
Located in the heart of the prestigious Archipelbuurt, Surinamestraat offers an unparalleled combination of elegance, tranquility, and vibrancy. The greenery of the Scheveningse Bosjes, the beach, exclusive shops, and top restaurants are all within walking distance. In addition, the area is very well connected by public transport and major roads, making the location both central and easily accessible. This exceptional home represents a rare opportunity for those seeking space, luxury, and comfort at the highest level.
Features:
• Year built: 1889
• Living area: approx. 266 m²
• Rooftop terrace: approx. 47 m²
• 3 bedrooms, each with its own bathroom
• Master suite with spacious walk-in closet
• Internal garage with car lift (highly unique)
• Private elevator and internal staircase
• Turnkey renovated in 2018 with high-end luxury finishes
• Energy label: A
• Homeowners association fee: €550 per month
• Open-plan kitchen with island and high-end appliances
• Living room with cozy fireplace
• TV room and separate study/office
• Located in the sought-after Archipelbuurt of The Hague, within walking distance of the city center
• Delivery in consultation
Interested in this exclusive property? Contact us for a private viewing and experience the space, tranquility, and luxury of Surinamestraat 49 for yourself. A unique home that rarely comes available.
Deze royale woning van circa 266 m² is in 2018 volledig gerenoveerd met oog voor detail; waar gekozen is voor hoogwaardige materialen, moderne installaties en een verfijnde afwerking die het karakter van het pand versterkt. Uniek aan deze woning is de inpandige garage, met autolift geschikt voor twee auto’s, én de eigen lift en interne trap, waardoor comfort en praktische luxe hand in hand gaan. Het royale dakterras van 47 m² maakt dit pand extra bijzonder. Het resultaat is een perfecte balans tussen historische grandeur en hedendaags wooncomfort.
Het hart van de woning bevindt zich op de eerste verdieping. Hier vindt u een royale open woonkeuken, volledig uitgerust met hoogwaardige inbouwapparatuur en een kookeiland, grenzend aan een lichte woonkamer met sfeervolle openhaard. Daarnaast zijn er een multifunctionele TV-kamer en een aparte werkkamer/study, en directe toegang tot het riante terras, ideaal voor ontspanning en entertainment. De gehele verdieping is turnkey gerenoveerd en afgewerkt op een luxueus niveau.
De slaapvertrekken zijn verdeeld over beide verdiepingen. De eerste verdieping biedt de master suite met royale slaapkamer, luxe badkamer en ruime walk-in closet, plus een tweede slaapkamer met eigen badkamer. De tweede verdieping beschikt over een extra slaapkamer met badkamer en-suite, ideaal voor gasten of familie die privacy wensen.
Gelegen in het hart van de prestigieuze Archipelbuurt, biedt de Surinamestraat een ongeëvenaarde combinatie van elegantie, rust en levendigheid. Het groen van de Scheveningse Bosjes, het strand, exclusieve winkels en toprestaurants liggen op loopafstand. Bovendien bent u zeer goed verbonden met het openbaar vervoer en de uitvalswegen, wat de locatie zowel centraal als goed bereikbaar maakt. Deze uitzonderlijke woning is een zeldzame kans voor wie ruimte, luxe en comfort zoekt op het allerhoogste niveau.
Kenmerken:
• Bouwjaar: 1889
• Woonoppervlakte: ca. 266 m²
• Dakterras: ca. 47 m²
• 3 slaapkamers, elk met eigen badkamer
• Master suite met royale walk-in closet
• Inpandige garage met autolift (zeer uniek)
• Eigen lift en interne trap
• Turnkey gerenoveerd in 2018 met hoogwaardig luxe afwerkingsniveau
• Energie A-label
• VvE-bijdrage: €550 per maand
• Open woonkeuken met kookeiland en hoogwaardige inbouwapparatuur
• Woonkamer met sfeervolle openhaard
• TV-kamer en aparte study/werkkamer
• Gelegen in de gewilde Archipelbuurt van Den Haag, op loopafstand van het centrum
• Oplevering in overleg
Interesse in deze exclusieve woning? Neem contact met ons op voor een persoonlijke bezichtiging en ervaar zelf de ruimte, rust en luxe van Surinamestraat 49. Een unieke woning dat zelden beschikbaar komt.
Living on Surinamestraat means experiencing life in the Archipelbuurt, one of The Hague’s most desirable neighborhoods – and possibly the most beautiful street in the area. The stately townhouses and charming streetscape create an elegant and inviting environment.
This spacious home of approximately 266 m² was fully renovated in 2018 with meticulous attention to detail, featuring high-quality materials, modern installations, and refined finishes that enhance the character of the property. Unique to this home is the internal garage with a car lift suitable for two cars, as well as its own elevator and internal staircase, combining comfort with practical luxury. The generous 47 m² rooftop terrace makes this property extra special. The result is a perfect balance between historic grandeur and contemporary living comfort.
The heart of the home is located on the first floor. Here you will find a spacious open-plan kitchen, fully equipped with high-end built-in appliances and a cooking island, adjoining a bright living room with a cozy fireplace. In addition, there is a multifunctional TV room and a separate study/office, with direct access to the large terrace – ideal for relaxation and entertainment. The entire floor has been turnkey renovated and finished to a luxurious standard.
The sleeping quarters are spread over both floors. The first floor offers the master suite with a spacious bedroom, luxury bathroom, and large walk-in closet, plus a second bedroom with its own bathroom. The second floor includes an additional bedroom with en-suite bathroom, perfect for guests or family members seeking privacy.
Located in the heart of the prestigious Archipelbuurt, Surinamestraat offers an unparalleled combination of elegance, tranquility, and vibrancy. The greenery of the Scheveningse Bosjes, the beach, exclusive shops, and top restaurants are all within walking distance. In addition, the area is very well connected by public transport and major roads, making the location both central and easily accessible. This exceptional home represents a rare opportunity for those seeking space, luxury, and comfort at the highest level.
Features:
• Year built: 1889
• Living area: approx. 266 m²
• Rooftop terrace: approx. 47 m²
• 3 bedrooms, each with its own bathroom
• Master suite with spacious walk-in closet
• Internal garage with car lift (highly unique)
• Private elevator and internal staircase
• Turnkey renovated in 2018 with high-end luxury finishes
• Energy label: A
• Homeowners association fee: €550 per month
• Open-plan kitchen with island and high-end appliances
• Living room with cozy fireplace
• TV room and separate study/office
• Located in the sought-after Archipelbuurt of The Hague, within walking distance of the city center
• Delivery in consultation
Interested in this exclusive property? Contact us for a private viewing and experience the space, tranquility, and luxury of Surinamestraat 49 for yourself. A unique home that rarely comes available.
| Vastgoed ID | NY100429 |
|---|---|
| Vraagprijs | € 2.195.000 k.k. |
| Woningtype | Appartement |
| Woonopp. | 266 m² |
| Perceelopp. | - |
| Bouwjaar | 2019 |
| Renovatiejaar | - |
| Slaapkamers | 5 |
| Badkamers | 3 |
| Garages | 1 |
| Energielabel | A |
Netherlands Sotheby's International Realty Emmalaan 23, 1075 AT Amsterdam
- Telefoon:+31.88.37.47.000
- Email:info@sothebysrealty.nl
- Website:www.sothebysrealty.nl
- Maandag - VrijdagOpen van 09.00 - 17.00
- Zaterdag - ZondagGesloten
Makelaar




















































