Villa te koop in HUIZEN met referentie 19708494907
Van Hoorns Houtweg 2, 1272 AH HUIZEN—Ref. HN103056
In de fraaie en zeer geliefde woonwijk Westereng ligt, aan een rustige straat, deze fantastische vrijstaande energiezuinige villa met een gebruiksoppervlakte van maar liefst ruim 311m²!
Deze fijne woning is in 2018 verbouwd en bevindt zich in een in zeer fraaie staat van onderhoud en wordt omgeven door een prachtig perceel van 842m² met naast een heerlijk zonneterras een vrijstaand bijgebouw met overkapping.
De villa ligt op steenworp afstand van het Bos, het perceel is volledig afgeschermd en biedt veel privacy. De toegang tot de tuin is vanaf de weg afgesloten door een elektrisch hek met intercomsysteem. In 2018 heeft de villa een metamorfose ondergaan, waarbij met oog voor detail en op doordachte wijze de villa is verbouwd en deze fors is vergroot. Er is een slaapkamer met badkamer op de begane grond waardoor het huis voor een brede doelgroep geschikt is.
Indeling:
Entree, zeer royale hal met garderobe en modern toilet. Via de hal bevindt zich bij binnenkomst aan de rechterzijde de ingang naar de woonkamer alsmede de slaapkamer met badkamer. Daarnaast is er de trap naar het souterrain. Aan de linkerzijde gaat u naar de heerlijke luxe woonkeuken.
De gezellige woonkamer is voorzien van veel glas waardoor deze ruimte zich kenmerkt door licht en ruimte. De woonkamer heeft genoeg ruimte voor meerdere opstellingen en is voorzien van een houten vloer, open haard en een schuifpui naar de tuin.
De ruime en moderne aangebouwde woonkeuken uit 2018 met kookeiland kenmerkt zich door licht en het speelse hoge plafond en is voorzien van alle diverse inbouwapparatuur. Via openslaande deuren kom je vanaf hier in de tuin met een heerlijke overkapping om tot 's avonds laat te genieten.
Ter completering van deze woonlaag is er een slaapkamer met badkamer (voorzien van douche, ligbad, toilet, bidet en vaste wastafel). Vanuit de centrale hal is tenslotte het souterrain bereikbaar.
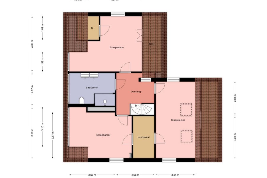
Eerste verdieping:
overloop, 3 riante slaapkamers waarvan 1 met vaste kast en bergruimte en 2 met gedeelde inloopkledingkast en bergruimte, moderne badkamer met douche, dubbele wastafel en toilet. 1 van de slaapkamers heeft ook een fantastische speelse vide. Deze verdieping is voorzien van een schitterende houten vloer.
Souterrain:
hal, provisie/berg/wasruimte, grote multifunctionele (sport)ruimte, goede plafondhoogte en daglichttoetreding door dubbele koekoek, badruimte met sauna en wastafel, het souterrain is tevens bereikbaar via een buitentrap.
Bijgebouw:
Vrijstaand bijgebouw bestaande uit bergruimte en royale overkapping.
Bijzonderheden:
- Elektrisch toegangshek.
- Ruimte voor meerdere auto's en voorzien van laadpaal.
- Alarmsysteem.
- In zeer goede staat van onderhoud.
- Veel woon en perceelmeters.
- Energielabel B, wat voor zo een groot huis vrij uniek is.
- 26 zonnepanelen uit 2024 welke 6339 KWH opleveren per jaar.
- Buitenschilderwerk van 2023.
- Als je deur uitloopt loop je zo het natuurgebied in richting Gooimeer en Naarden Vesting.
Kortom een heerlijke villa op een absolute top plek!
Deze fijne woning is in 2018 verbouwd en bevindt zich in een in zeer fraaie staat van onderhoud en wordt omgeven door een prachtig perceel van 842m² met naast een heerlijk zonneterras een vrijstaand bijgebouw met overkapping.
De villa ligt op steenworp afstand van het Bos, het perceel is volledig afgeschermd en biedt veel privacy. De toegang tot de tuin is vanaf de weg afgesloten door een elektrisch hek met intercomsysteem. In 2018 heeft de villa een metamorfose ondergaan, waarbij met oog voor detail en op doordachte wijze de villa is verbouwd en deze fors is vergroot. Er is een slaapkamer met badkamer op de begane grond waardoor het huis voor een brede doelgroep geschikt is.
Indeling:
Entree, zeer royale hal met garderobe en modern toilet. Via de hal bevindt zich bij binnenkomst aan de rechterzijde de ingang naar de woonkamer alsmede de slaapkamer met badkamer. Daarnaast is er de trap naar het souterrain. Aan de linkerzijde gaat u naar de heerlijke luxe woonkeuken.
De gezellige woonkamer is voorzien van veel glas waardoor deze ruimte zich kenmerkt door licht en ruimte. De woonkamer heeft genoeg ruimte voor meerdere opstellingen en is voorzien van een houten vloer, open haard en een schuifpui naar de tuin.
De ruime en moderne aangebouwde woonkeuken uit 2018 met kookeiland kenmerkt zich door licht en het speelse hoge plafond en is voorzien van alle diverse inbouwapparatuur. Via openslaande deuren kom je vanaf hier in de tuin met een heerlijke overkapping om tot 's avonds laat te genieten.
Ter completering van deze woonlaag is er een slaapkamer met badkamer (voorzien van douche, ligbad, toilet, bidet en vaste wastafel). Vanuit de centrale hal is tenslotte het souterrain bereikbaar.
Eerste verdieping:
overloop, 3 riante slaapkamers waarvan 1 met vaste kast en bergruimte en 2 met gedeelde inloopkledingkast en bergruimte, moderne badkamer met douche, dubbele wastafel en toilet. 1 van de slaapkamers heeft ook een fantastische speelse vide. Deze verdieping is voorzien van een schitterende houten vloer.
Souterrain:
hal, provisie/berg/wasruimte, grote multifunctionele (sport)ruimte, goede plafondhoogte en daglichttoetreding door dubbele koekoek, badruimte met sauna en wastafel, het souterrain is tevens bereikbaar via een buitentrap.
Bijgebouw:
Vrijstaand bijgebouw bestaande uit bergruimte en royale overkapping.
Bijzonderheden:
- Elektrisch toegangshek.
- Ruimte voor meerdere auto's en voorzien van laadpaal.
- Alarmsysteem.
- In zeer goede staat van onderhoud.
- Veel woon en perceelmeters.
- Energielabel B, wat voor zo een groot huis vrij uniek is.
- 26 zonnepanelen uit 2024 welke 6339 KWH opleveren per jaar.
- Buitenschilderwerk van 2023.
- Als je deur uitloopt loop je zo het natuurgebied in richting Gooimeer en Naarden Vesting.
Kortom een heerlijke villa op een absolute top plek!
| Vastgoed ID | HN103056 |
|---|---|
| Vraagprijs | € 1.500.000 k.k. |
| Woningtype | Villa |
| Woonopp. | 311 m² |
| Perceelopp. | 842 m² |
| Bouwjaar | 1960 |
| Renovatiejaar | - |
| Slaapkamers | 4 |
| Badkamers | 2 |
| Garages | - |
| Energielabel | B |
Voorma en Walch Huizen Ceintuurbaan 22, 1271 BJ Huizen
- Telefoon:+31.35.525.31.35
- Email:huizen@voorma-walch.nl
- Website:www.voorma-walch.nl
- Maandag - VrijdagOpen van 08.30 - 17.30
- Zaterdag - ZondagGesloten
































































