Villa te koop in WASSENAAR met referentie 19709153564
Berkenlaan 2, 2243 HX WASSENAAR—Ref. WR104461
Vrijstaande karaktervilla met dubbele garage op royaal perceel in villawijk De Kieviet
Aan de geliefde Berkenlaan, in de groene en rustige villawijk De Kieviet, staat deze karakteristieke vrijstaande villa uit de jaren '70. De woning is goed onderhouden en ligt op een zonnig hoekperceel van maar liefst 790 m². De villa beschikt over een eigen oprijlaan, dubbele stenen garage en parkeergelegenheid op eigen terrein voor meerdere auto's. Rondom de woning ligt een fraai aangelegde tuin met meerdere terrassen, veel privacy en volop zon.
Ligging
De Kieviet is een van de meest gewilde woonwijken van Wassenaar, op korte afstand van strand, duinen en natuurgebied Meyendel. Hier woont u in alle rust, met veel groen en ruimte om u heen, terwijl u toch nabij de voorzieningen en uitvalswegen bent.
Indeling
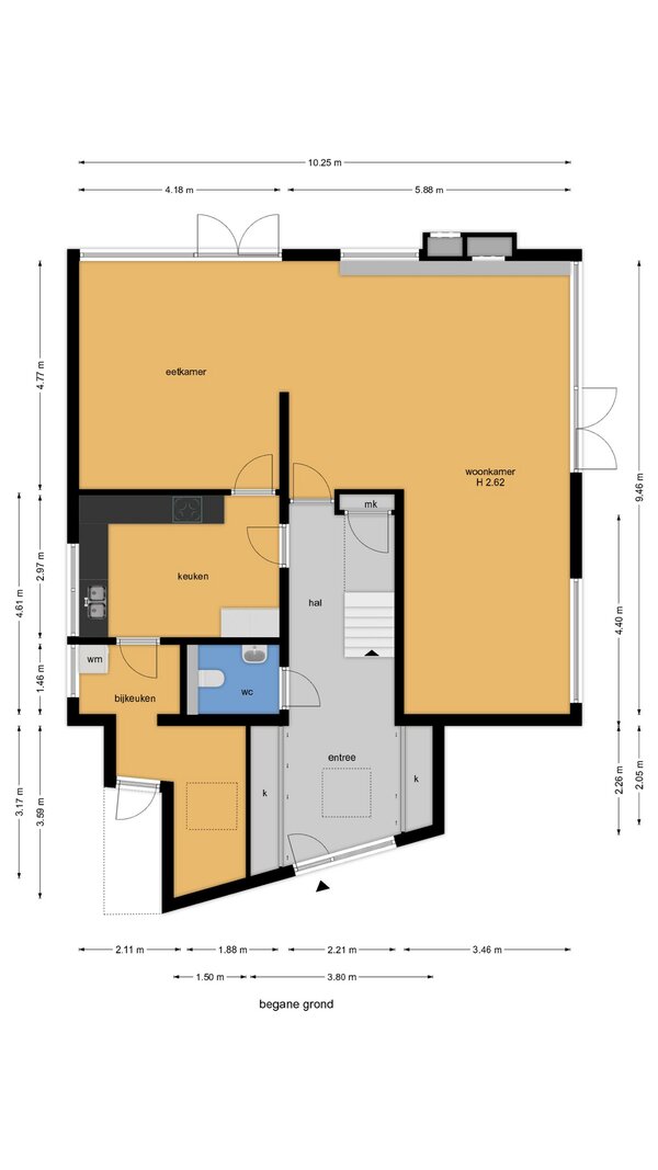
Begane grond
Ruime en lichte entreehal met lichtkoepel, garderobe, modern toilet met fonteintje en meterkast. De royale leefkeuken is voorzien van diverse inbouwapparatuur, waaronder een inductiekookplaat, combimagnetron, vaatwasser en koel-/vriescombinatie. Aansluitend een lichte bijkeuken met lichtkoepel, opstelplaats voor wasmachine en droger en toegang tot het achterterras en de garage.
De ruime L-vormige woon-/eetkamer heeft een sfeervolle parketvloer en grote raampartijen die zorgen voor een prachtige lichtinval. De eetkamer grenst aan de keuken en heeft openslaande deuren naar de zonnige achtertuin op het zuidoosten met een riant terras. De zitkamer beschikt over een gashaard en openslaande deuren naar een tweede, zonnig gelegen terras op het zuiden.
Eerste verdieping
Overloop met toegang tot vier slaapkamers. Aan de voorzijde bevinden zich twee slaapkamers, beiden voorzien van inbouwkasten. Een van deze slaapkamers heeft een royaal balkon. De hoofdslaapkamer ligt aan de achterzijde, heeft ingebouwde kasten en openslaande deuren naar een royaal balkon. Deze kamer beschikt tevens over een eigen badkamer met ligbad, toilet en wastafelmeubel. De vierde slaapkamer bevindt zich eveneens aan de achterzijde. De tweede badkamer is voorzien van douche, toilet en wastafel.
Tweede verdieping
Ruime overloop, vijfde en zesde slaapkamer met dakvensters en een separate berging met CV-opstelling (Remeha Calenta, 2018) en nog een additionele berging. Op deze verdieping is eenvoudig een derde badkamer te realiseren.
Buitenruimte
De villa is centraal op het perceel gesitueerd en omgeven door een fraai aangelegde tuin met veel groen, privacy en zon. De toegang tot het terrein is afgesloten met een elektrische poort. De dubbele garage, voorzien van een elektrische kanteldeur, biedt plaats voor twee auto's en op de oprit is er ruimte voor meerdere voertuigen.
Bijzonderheden:
- Vrijstaande villa op toplocatie in De Kieviet
- Perceeloppervlakte ca. 790 m²
- Woonoppervlakte ca. 257 m²
- Leefkeuken, zes slaapkamers en twee badkamers
- Rondom gelegen tuin met meerdere zonnige terrassen
- Dubbele stenen garage en ruime oprit
- Elektrische poort en zonwering
- Energielabel D
- Asbestclausule en ouderdomsclausule van toepassing op de koopovereenkomst
- Oplevering in overleg
Deze informatie is door ons met de nodige zorgvuldigheid samengesteld. Onzerzijds wordt echter geen enkele aansprakelijkheid aanvaard voor enige onvolledigheid, onjuistheid of anderszins, dan wel de gevolgen daarvan. Alle opgegeven maten en oppervlakten zijn indicatief. Van toepassing zijn de NVM voorwaarden.
Wilt u deze unieke villa met eigen ogen zien en de ruimte en sfeer ervaren?
Neem dan contact met ons op voor een bezichtiging. Wij laten u deze prachtige woning aan de Berkenlaan 2 in Wassenaar graag persoonlijk zien!
Aan de geliefde Berkenlaan, in de groene en rustige villawijk De Kieviet, staat deze karakteristieke vrijstaande villa uit de jaren '70. De woning is goed onderhouden en ligt op een zonnig hoekperceel van maar liefst 790 m². De villa beschikt over een eigen oprijlaan, dubbele stenen garage en parkeergelegenheid op eigen terrein voor meerdere auto's. Rondom de woning ligt een fraai aangelegde tuin met meerdere terrassen, veel privacy en volop zon.
Ligging
De Kieviet is een van de meest gewilde woonwijken van Wassenaar, op korte afstand van strand, duinen en natuurgebied Meyendel. Hier woont u in alle rust, met veel groen en ruimte om u heen, terwijl u toch nabij de voorzieningen en uitvalswegen bent.
Indeling
Begane grond
Ruime en lichte entreehal met lichtkoepel, garderobe, modern toilet met fonteintje en meterkast. De royale leefkeuken is voorzien van diverse inbouwapparatuur, waaronder een inductiekookplaat, combimagnetron, vaatwasser en koel-/vriescombinatie. Aansluitend een lichte bijkeuken met lichtkoepel, opstelplaats voor wasmachine en droger en toegang tot het achterterras en de garage.
De ruime L-vormige woon-/eetkamer heeft een sfeervolle parketvloer en grote raampartijen die zorgen voor een prachtige lichtinval. De eetkamer grenst aan de keuken en heeft openslaande deuren naar de zonnige achtertuin op het zuidoosten met een riant terras. De zitkamer beschikt over een gashaard en openslaande deuren naar een tweede, zonnig gelegen terras op het zuiden.
Eerste verdieping
Overloop met toegang tot vier slaapkamers. Aan de voorzijde bevinden zich twee slaapkamers, beiden voorzien van inbouwkasten. Een van deze slaapkamers heeft een royaal balkon. De hoofdslaapkamer ligt aan de achterzijde, heeft ingebouwde kasten en openslaande deuren naar een royaal balkon. Deze kamer beschikt tevens over een eigen badkamer met ligbad, toilet en wastafelmeubel. De vierde slaapkamer bevindt zich eveneens aan de achterzijde. De tweede badkamer is voorzien van douche, toilet en wastafel.
Tweede verdieping
Ruime overloop, vijfde en zesde slaapkamer met dakvensters en een separate berging met CV-opstelling (Remeha Calenta, 2018) en nog een additionele berging. Op deze verdieping is eenvoudig een derde badkamer te realiseren.
Buitenruimte
De villa is centraal op het perceel gesitueerd en omgeven door een fraai aangelegde tuin met veel groen, privacy en zon. De toegang tot het terrein is afgesloten met een elektrische poort. De dubbele garage, voorzien van een elektrische kanteldeur, biedt plaats voor twee auto's en op de oprit is er ruimte voor meerdere voertuigen.
Bijzonderheden:
- Vrijstaande villa op toplocatie in De Kieviet
- Perceeloppervlakte ca. 790 m²
- Woonoppervlakte ca. 257 m²
- Leefkeuken, zes slaapkamers en twee badkamers
- Rondom gelegen tuin met meerdere zonnige terrassen
- Dubbele stenen garage en ruime oprit
- Elektrische poort en zonwering
- Energielabel D
- Asbestclausule en ouderdomsclausule van toepassing op de koopovereenkomst
- Oplevering in overleg
Deze informatie is door ons met de nodige zorgvuldigheid samengesteld. Onzerzijds wordt echter geen enkele aansprakelijkheid aanvaard voor enige onvolledigheid, onjuistheid of anderszins, dan wel de gevolgen daarvan. Alle opgegeven maten en oppervlakten zijn indicatief. Van toepassing zijn de NVM voorwaarden.
Wilt u deze unieke villa met eigen ogen zien en de ruimte en sfeer ervaren?
Neem dan contact met ons op voor een bezichtiging. Wij laten u deze prachtige woning aan de Berkenlaan 2 in Wassenaar graag persoonlijk zien!
| Vastgoed ID | WR104461 |
|---|---|
| Vraagprijs | € 1.650.000 k.k. |
| Woningtype | Villa |
| Woonopp. | 257 m² |
| Perceelopp. | 790 m² |
| Bouwjaar | 1973 |
| Renovatiejaar | - |
| Slaapkamers | 6 |
| Badkamers | 2 |
| Garages | 1 |
| Energielabel | D |
Welp Makelaardij Van Hogendorpstraat 16 d, 2242 KZ Wassenaar
- Telefoon:+31.070.51.11.720
- Email:info@welpmakelaardij.nl
- Website:www.welpmakelaardij.nl
- Maandag - VrijdagOpen van 09.00 - 17.30
- Zaterdag Open van 10.00 - 14.00
- Zondag Gesloten
Makelaar





























































