Villa te koop in WASSENAAR met referentie 19709564963
Oostdorperweg 5, 2242 ND WASSENAAR—Ref. WR104464
Altijd al willen wonen nabij het gezellige centrum van Wassenaar en op fietsafstand van de Wassenaarse slag? Dan is dit uw kans! Deze zeer ruime jaren dertig tussenwoning met vijf slaapkamers en twee badkamers ademt sfeer en zit vol met karakter. Daarnaast is de woning goed onderhouden en is er een mooi serre met vloerverwarming gerealiseerd.
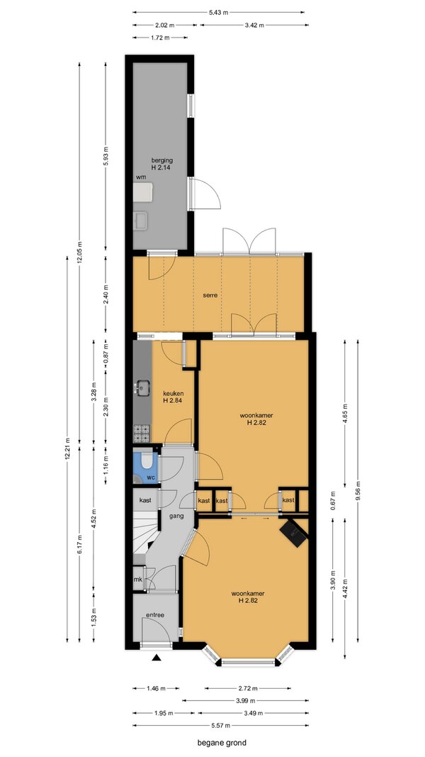
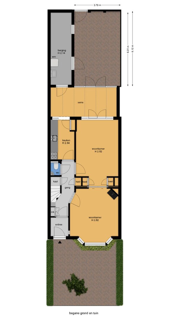
Indeling:
Tochtportaal, gang met gepolijste tegelvoer die doorloopt in de keuken en serre, meterkast, trapkast en toilet met fontein. Zeer lichte woon/eetkamer met erker aan de voorzijde van de woning met een mogelijke aansluiting voor een allesbrander. Fraaie ensuite separatie met vaste kasten en schuifdeuren met glas in lood. Zeer lichte en over de gehele breedte gerealiseerde serre met vloerverwarming en openslaande deuren naar de achtertuin met middag- en avondzon. Keuken met veel kastruimte, vijf-pits gasfornuis en tevens toegang naar de serre. De gehele beneden verdieping, exclusief de serre, is voorzien van een eiken parketvloer. De verlengde berging is via het woongedeelte bereikbaar, geïsoleerd, verwarmd en voorzien van elektra, water en afvoer voor een wasmachine.
1e verdieping:
Overloop met toegang tot de drie slaapkamers, de twee grote slaapkamers hebben een vaste kast, de slaapkamer aan de achterzijde heeft ook toegang tot de badkamer. Deze is voorzien van een ligbad en een losse douchecabine, dubbele wastafelmeubel en toilet. De derde kamer is uitermate geschikt als werk/studeerkamer.
2e verdieping:
Deze verdieping is zeer ruim door de dakkapellen aan beide kanten. De indeling kan nog worden aangepast om tweede grote slaapkamers te creëren. De tweede badkamer met douche, toilet en wastafelmeubel is wel al aanwezig. De vliering is via deze verdieping bereikbaar voor het opbergen van spullen. Ook op deze verdieping is er een aansluiting en afvoer aanwezig voor een wasmachine.
Bijzonderheden:
- Sfeervol jaren '30 woning met veel authentieke elementen
- Aan de rand van het centrum gelegen
- Maar liefst 163m2 woonoppervlakte
- Royale woonverdieping met aangebouwde serre
- 5 slaapkamers en 2 badkamers
- Verlengde berging bereikbaar via woning
- Energielabel C
- Schilderwerk kozijnen 2024
- Ouderdoms-en asbestclausule van toepassing.
Deze informatie is door ons met de nodige zorgvuldigheid samengesteld. Onzerzijds wordt echter geen enkele aansprakelijkheid aanvaard voor enige onvolledigheid, onjuistheid of anderszins, dan wel de gevolgen daarvan. Alle opgegeven maten en oppervlakten zijn indicatief. Van toepassing zijn de NVM voorwaarden.
Bent u enthousiast geworden en wilt u binnenkijken, sfeer proeven en de ruimte beleven?
Wij laten deze unieke woning aan de Oostdorperweg 5 graag zien.
Indeling:
Tochtportaal, gang met gepolijste tegelvoer die doorloopt in de keuken en serre, meterkast, trapkast en toilet met fontein. Zeer lichte woon/eetkamer met erker aan de voorzijde van de woning met een mogelijke aansluiting voor een allesbrander. Fraaie ensuite separatie met vaste kasten en schuifdeuren met glas in lood. Zeer lichte en over de gehele breedte gerealiseerde serre met vloerverwarming en openslaande deuren naar de achtertuin met middag- en avondzon. Keuken met veel kastruimte, vijf-pits gasfornuis en tevens toegang naar de serre. De gehele beneden verdieping, exclusief de serre, is voorzien van een eiken parketvloer. De verlengde berging is via het woongedeelte bereikbaar, geïsoleerd, verwarmd en voorzien van elektra, water en afvoer voor een wasmachine.
1e verdieping:
Overloop met toegang tot de drie slaapkamers, de twee grote slaapkamers hebben een vaste kast, de slaapkamer aan de achterzijde heeft ook toegang tot de badkamer. Deze is voorzien van een ligbad en een losse douchecabine, dubbele wastafelmeubel en toilet. De derde kamer is uitermate geschikt als werk/studeerkamer.
2e verdieping:
Deze verdieping is zeer ruim door de dakkapellen aan beide kanten. De indeling kan nog worden aangepast om tweede grote slaapkamers te creëren. De tweede badkamer met douche, toilet en wastafelmeubel is wel al aanwezig. De vliering is via deze verdieping bereikbaar voor het opbergen van spullen. Ook op deze verdieping is er een aansluiting en afvoer aanwezig voor een wasmachine.
Bijzonderheden:
- Sfeervol jaren '30 woning met veel authentieke elementen
- Aan de rand van het centrum gelegen
- Maar liefst 163m2 woonoppervlakte
- Royale woonverdieping met aangebouwde serre
- 5 slaapkamers en 2 badkamers
- Verlengde berging bereikbaar via woning
- Energielabel C
- Schilderwerk kozijnen 2024
- Ouderdoms-en asbestclausule van toepassing.
Deze informatie is door ons met de nodige zorgvuldigheid samengesteld. Onzerzijds wordt echter geen enkele aansprakelijkheid aanvaard voor enige onvolledigheid, onjuistheid of anderszins, dan wel de gevolgen daarvan. Alle opgegeven maten en oppervlakten zijn indicatief. Van toepassing zijn de NVM voorwaarden.
Bent u enthousiast geworden en wilt u binnenkijken, sfeer proeven en de ruimte beleven?
Wij laten deze unieke woning aan de Oostdorperweg 5 graag zien.
| Vastgoed ID | WR104464 |
|---|---|
| Vraagprijs | € 759.000 k.k. |
| Woningtype | Villa |
| Woonopp. | 163 m² |
| Perceelopp. | 146 m² |
| Bouwjaar | 1939 |
| Renovatiejaar | - |
| Slaapkamers | 5 |
| Badkamers | 2 |
| Garages | - |
| Energielabel | C |
Welp Makelaardij Van Hogendorpstraat 16 d, 2242 KZ Wassenaar
- Telefoon:+31.070.51.11.720
- Email:info@welpmakelaardij.nl
- Website:www.welpmakelaardij.nl
- Maandag - VrijdagOpen van 09.00 - 17.30
- Zaterdag Open van 10.00 - 14.00
- Zondag Gesloten

















































