Villa te koop in WASSENAAR met referentie 19809888477
Van Zuylen van Nijeveltstraat 86, 2242 AS WASSENAAR—Ref. WR104438
Karakteristiek en uitgebouwd jaren '30 herenhuis met diepe tuin aan de 'Van Zuylen'!
Aan het mooie stuk van de Van Zuylen van Nijeveltstraat ligt dit charmante jaren ’30 herenhuis met een woonoppervlakte van 203 m² en overige ruimte van 34 m2! Het huis is voorzien van een nieuw dak (2021), 17 zonnepanelen, ademt karakter door de hoge plafonds en royale indeling en combineert dit met alle comfort van nu.
Met 6 slaapkamers, 2 badkamers, een ruime kelder en vliering met daarbij een uitgebouwde woonkeuken is dit een woning die luxe, ruimte en functionaliteit naadloos samenbrengt. De achtertuin van ruim 20 meter diep is goed gelegen zodat je de hele dag door kunt genieten van de zon. De ligging is rustig, maar tegelijkertijd zeer centraal: vlakbij (internationale) scholen, winkels en uitvalswegen.
Ben je nieuwsgierig geworden? Wij nodigen je van harte uit voor een bezichtiging!
Indeling:
Begane grond: via de ruime voortuin is de entree te bereiken. De vestibule hal met originele granitovloer en garderobe leidt naar de centrale hal. Hier bevindt zich het moderne, vergrote toilet met fonteinmeubel.
Paneeldeuren met glas geven toegang tot de ruime, lichte kamer-en suite met schuifseparatie en erker aan de voorzijde. De sfeervolle salon beschikt over een fraaie hout gestookte open haard met zwart marmeren Jugendstil schouw en een hoog plafond met lijstwerk en de schuifseparatie bevat vaste kasten. Aan de achterzijde bevindt zich de (woon-) eetkamer met drie openslaande deuren naar het zonnige terras en de diepe achtertuin met houten berging.
De design leefkeuken (Eggersmann) is uitgevoerd met een spoel- en kookeiland en inbouwapparatuur van Siemens, waaronder een vaatwasser op werkhoogte, koel-/vriescombinatie, inductiekookplaat, een afzuigkap van Guttmann, combi-oven en een grote spoelbak. De kastenwand (o.a. apothekerskasten en kasten met roldeuren ) en slimme stopcontactoplossingen maken de keuken zowel stijlvol als functioneel. Door de uitbouw is er aan de achterzijde een woonkeuken ontstaan met een eetkamer die gericht is op de tuin. In het dak zijn (elektrische) dakramen met regensensor geplaatst, waardoor de ruimte licht en open aanvoelt. Samen met de keuken vormt dit het hart van het huis. De woonkamer en keuken zijn voorzien van een robuuste Frans eiken visgraatvloer met zwarte bies.
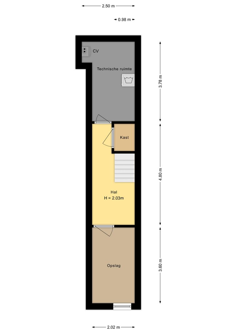
Vanuit de centrale gang is de kelder bereikbaar. Deze ruimte met goede stahoogte biedt plaats aan wasmachine en droger, beschikt over een provisieruimte en is ideaal te gebruiken als wijnkelder.
1e verdieping:
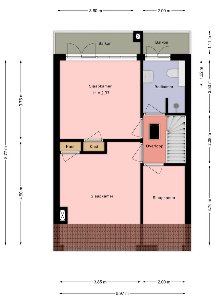
Via de trap bereik je de eerste verdieping met een ruime overloop. Aan de voorzijde bevindt zich de voorzijslaapkamer met vaste kast en de voorslaapkamer met meerdere vaste kasten en openslaande deuren naar een zonnig balkon. Aan de achterzijde bevindt zich de royale ouderslaapkamer met eveneens vaste kasten en toegang tot een ruim balkon met vrij uitzicht over de achtertuin.
De badkamer is modern uitgevoerd en voorzien van een jacuzzi, een vrijhangend toilet, dubbele wastafel en vloerverwarming.
2e verdieping:
Overloop, aan de voorzijde een voorzijslaapkamer en een voorslaapkamer met dakkapel. Aan de achterzijde een slaapkamer met toegang tot een balkon en een tweede moderne badkamer met inloopdouche, vrijhangend toilet, wastafelmeubel en vloerverwarming. Ook deze ruimte biedt toegang tot het balkon.
Via een vlizotrap bereik je de goed geïsoleerde zolder met een goede nokhoogte. Deze ruimte biedt extra bergruimte en/of de mogelijkheid tot uitbreiding van woonruimte.
Bijzonderheden:
- royaal herenhuis op een centrale locatie;
- woonoppervlakte 203 m2 ;
- overig inpandige ruimte 34 m2;
- 6 slaapkamers, 2 badkamers en uitgebouwde woonkeuken;
- veel karaktervolle elementen zijn bewaard gebleven;
- dak in 2021 vernieuwd en in 2022 zonnepanelen geplaatst;
- goede isolatie dak en vloer, dubbel glas aanwezig;
- energielabel C;
- heerlijke achtertuin van ruim 20 meter diep;
- kelder en vliering met stahoogte;
- ouderdomsclausule en asbestclausule van toepassing op de koopovereenkomst.
Deze informatie is door ons met de nodige zorgvuldigheid samengesteld. Onzerzijds wordt echter geen enkele aansprakelijkheid aanvaard voor enige onvolledigheid, onjuistheid of anderszins, dan wel de gevolgen daarvan. Alle opgegeven maten en oppervlakten zijn indicatief. Van toepassing zijn de NVM voorwaarden.
Ben je enthousiast geworden en wil je binnenkijken, sfeer proeven en de ruimte beleven?
We laten deze woning aan de Van Zuylen van Nijeveltstraat 86 graag zien!
Aan het mooie stuk van de Van Zuylen van Nijeveltstraat ligt dit charmante jaren ’30 herenhuis met een woonoppervlakte van 203 m² en overige ruimte van 34 m2! Het huis is voorzien van een nieuw dak (2021), 17 zonnepanelen, ademt karakter door de hoge plafonds en royale indeling en combineert dit met alle comfort van nu.
Met 6 slaapkamers, 2 badkamers, een ruime kelder en vliering met daarbij een uitgebouwde woonkeuken is dit een woning die luxe, ruimte en functionaliteit naadloos samenbrengt. De achtertuin van ruim 20 meter diep is goed gelegen zodat je de hele dag door kunt genieten van de zon. De ligging is rustig, maar tegelijkertijd zeer centraal: vlakbij (internationale) scholen, winkels en uitvalswegen.
Ben je nieuwsgierig geworden? Wij nodigen je van harte uit voor een bezichtiging!
Indeling:
Begane grond: via de ruime voortuin is de entree te bereiken. De vestibule hal met originele granitovloer en garderobe leidt naar de centrale hal. Hier bevindt zich het moderne, vergrote toilet met fonteinmeubel.
Paneeldeuren met glas geven toegang tot de ruime, lichte kamer-en suite met schuifseparatie en erker aan de voorzijde. De sfeervolle salon beschikt over een fraaie hout gestookte open haard met zwart marmeren Jugendstil schouw en een hoog plafond met lijstwerk en de schuifseparatie bevat vaste kasten. Aan de achterzijde bevindt zich de (woon-) eetkamer met drie openslaande deuren naar het zonnige terras en de diepe achtertuin met houten berging.
De design leefkeuken (Eggersmann) is uitgevoerd met een spoel- en kookeiland en inbouwapparatuur van Siemens, waaronder een vaatwasser op werkhoogte, koel-/vriescombinatie, inductiekookplaat, een afzuigkap van Guttmann, combi-oven en een grote spoelbak. De kastenwand (o.a. apothekerskasten en kasten met roldeuren ) en slimme stopcontactoplossingen maken de keuken zowel stijlvol als functioneel. Door de uitbouw is er aan de achterzijde een woonkeuken ontstaan met een eetkamer die gericht is op de tuin. In het dak zijn (elektrische) dakramen met regensensor geplaatst, waardoor de ruimte licht en open aanvoelt. Samen met de keuken vormt dit het hart van het huis. De woonkamer en keuken zijn voorzien van een robuuste Frans eiken visgraatvloer met zwarte bies.
Vanuit de centrale gang is de kelder bereikbaar. Deze ruimte met goede stahoogte biedt plaats aan wasmachine en droger, beschikt over een provisieruimte en is ideaal te gebruiken als wijnkelder.
1e verdieping:
Via de trap bereik je de eerste verdieping met een ruime overloop. Aan de voorzijde bevindt zich de voorzijslaapkamer met vaste kast en de voorslaapkamer met meerdere vaste kasten en openslaande deuren naar een zonnig balkon. Aan de achterzijde bevindt zich de royale ouderslaapkamer met eveneens vaste kasten en toegang tot een ruim balkon met vrij uitzicht over de achtertuin.
De badkamer is modern uitgevoerd en voorzien van een jacuzzi, een vrijhangend toilet, dubbele wastafel en vloerverwarming.
2e verdieping:
Overloop, aan de voorzijde een voorzijslaapkamer en een voorslaapkamer met dakkapel. Aan de achterzijde een slaapkamer met toegang tot een balkon en een tweede moderne badkamer met inloopdouche, vrijhangend toilet, wastafelmeubel en vloerverwarming. Ook deze ruimte biedt toegang tot het balkon.
Via een vlizotrap bereik je de goed geïsoleerde zolder met een goede nokhoogte. Deze ruimte biedt extra bergruimte en/of de mogelijkheid tot uitbreiding van woonruimte.
Bijzonderheden:
- royaal herenhuis op een centrale locatie;
- woonoppervlakte 203 m2 ;
- overig inpandige ruimte 34 m2;
- 6 slaapkamers, 2 badkamers en uitgebouwde woonkeuken;
- veel karaktervolle elementen zijn bewaard gebleven;
- dak in 2021 vernieuwd en in 2022 zonnepanelen geplaatst;
- goede isolatie dak en vloer, dubbel glas aanwezig;
- energielabel C;
- heerlijke achtertuin van ruim 20 meter diep;
- kelder en vliering met stahoogte;
- ouderdomsclausule en asbestclausule van toepassing op de koopovereenkomst.
Deze informatie is door ons met de nodige zorgvuldigheid samengesteld. Onzerzijds wordt echter geen enkele aansprakelijkheid aanvaard voor enige onvolledigheid, onjuistheid of anderszins, dan wel de gevolgen daarvan. Alle opgegeven maten en oppervlakten zijn indicatief. Van toepassing zijn de NVM voorwaarden.
Ben je enthousiast geworden en wil je binnenkijken, sfeer proeven en de ruimte beleven?
We laten deze woning aan de Van Zuylen van Nijeveltstraat 86 graag zien!
| Vastgoed ID | WR104438 |
|---|---|
| Vraagprijs | € 1.095.000 k.k. |
| Woningtype | Villa |
| Woonopp. | 203 m² |
| Perceelopp. | 268 m² |
| Bouwjaar | 1933 |
| Renovatiejaar | - |
| Slaapkamers | 6 |
| Badkamers | 2 |
| Garages | - |
| Energielabel | C |
Welp Makelaardij Van Hogendorpstraat 16 d, 2242 KZ Wassenaar
- Telefoon:+31.070.51.11.720
- Email:info@welpmakelaardij.nl
- Website:www.welpmakelaardij.nl
- Maandag - VrijdagOpen van 09.00 - 17.30
- Zaterdag Open van 10.00 - 14.00
- Zondag Gesloten



















































