Villa te koop in BAARN met referentie 19710432499
Stationsweg 114, 3743 ES BAARN—Ref. NY100409
Duurzaam wonen op een unieke locatie in Baarn – energielabel A++
Dit karaktervolle huis uit de jaren ’70 combineert ruimte, comfort en luxe met een uitzonderlijk energielabel A++. Dankzij de recente verduurzaming is de woning volledig gasloos en klaar voor de toekomst — een zeldzaamheid voor een huis uit deze bouwperiode.
Luxe en comfort in een groene oase
Het huis is ontworpen met oog voor ruimte, licht en leefcomfort. De huidige eigenaren vonden hier het ideale familiehuis, waar kinderen konden opgroeien in de beschutte, parkachtige tuin en genoten van het verwarmde binnenzwembad met vriendjes. Door de recente verduurzamingsinvesteringen — waaronder een warmtepomp voor het zwembad — is dit bijzondere element nu niet alleen comfortabel, maar ook energiezuinig.
Veelzijdig bijgebouw met eindeloze mogelijkheden
Een waardevolle toevoeging aan het perceel is het royale bijgebouw uit 1991. Deze multifunctionele ruimte is momenteel ingericht als kantoor, compleet met eigen wijnkelder en inpandige garage. Ideaal voor wie thuis wil werken, gasten wil ontvangen of mantelzorg wil verlenen. De indeling en voorzieningen maken het geschikt voor uiteenlopende woon- en werkvormen.
Wat maakt dit huis zo bijzonder?
- Energielabel A++ – dankzij ingrijpende verduurzaming met o.a. warmtepomp, zonnepanelen en zonneboiler is de woning volledig gasloos.
- Binnenzwembad – het verwarmde, energiezuinige zwembad biedt het hele jaar door ontspanning en plezier.
- Ruimte en flexibiliteit – met een woonoppervlakte van ca. 289 m² en een bijgebouw van 87 m² is er volop ruimte voor wonen, werken en recreëren.
- Tijdloze architectuur – de robuuste jaren ’70 bouwstijl vormt een solide basis voor modernisering naar eigen smaak.
- Toplocatie in Baarn – op een perceel van bijna 2.000 m² met een prachtige, onder architectuur aangelegde tuin met eigen waterbron, veel privacy en rust, op loopafstand van het centrum en het station.
Indeling van het huis (1977)
Souterrain – wellness met binnenzwembad, sauna en fitnessruimte, werkkamer met eigen entree, technische ruimte en bergruimte.
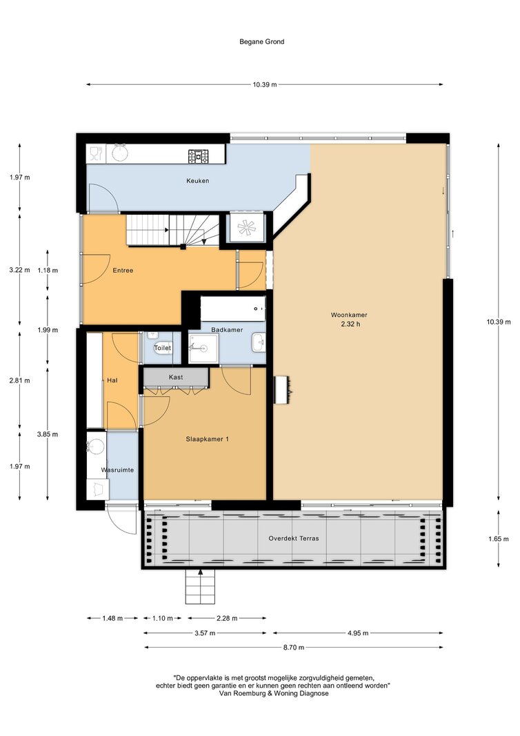
Begane grond – royale woonkamer met open keuken en toegang tot twee zonnige terrassen, ruime slaapkamer met badkamer, garderobe en wasruimte.
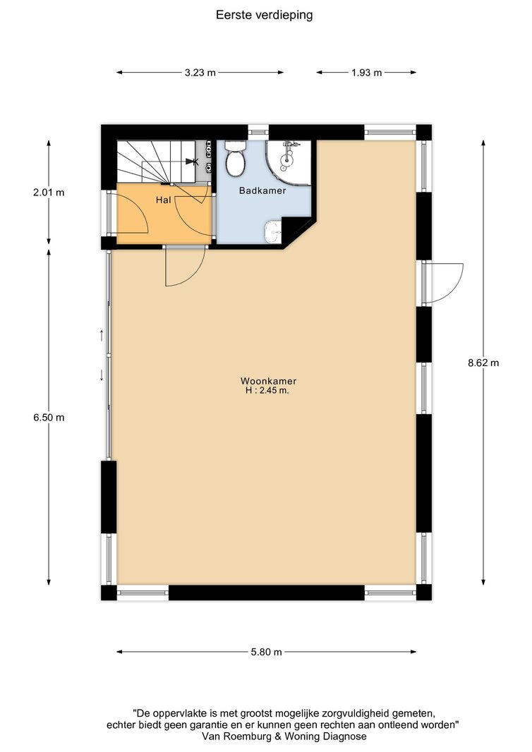
Eerste verdieping – drie lichte slaapkamers, badkamer met douche, overloop en apart toilet.
Bijgebouw (1991)
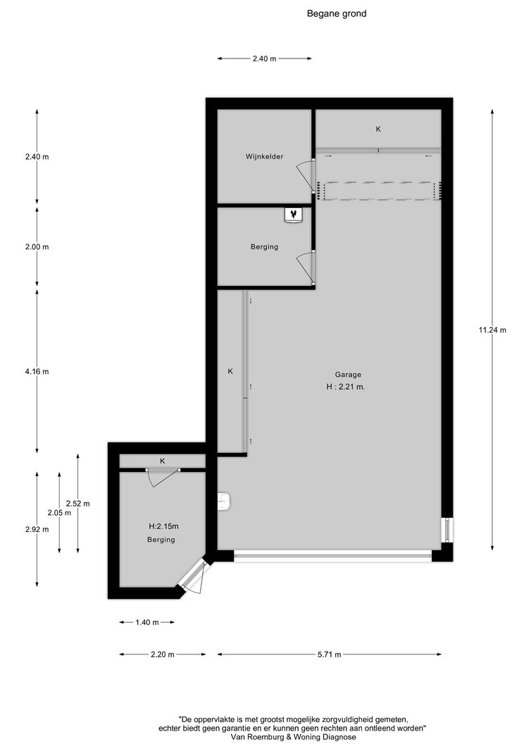
Souterrain – inpandige garage voor drie auto’s met elektrische deur, geklimatiseerde wijnkelder en berging.
Begane grond – hal, badkamer en ruime woon-/werkkamer met openslaande deuren.
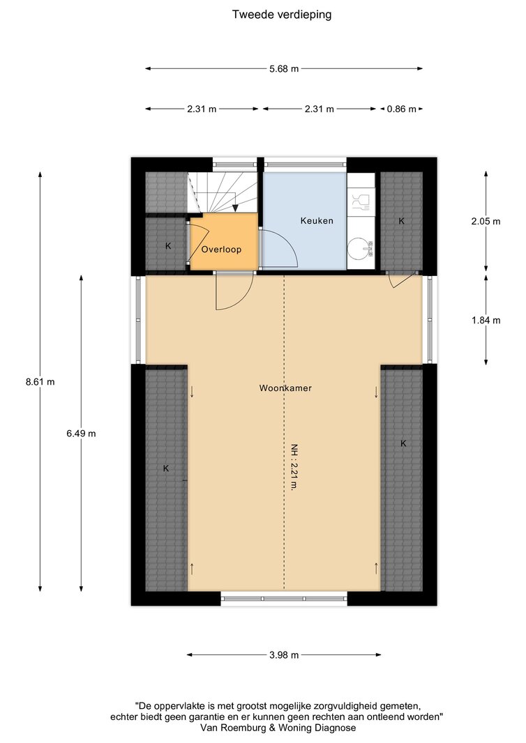
Verdieping – grote multifunctionele ruimte met keuken en extra bergruimte.
De tuin
De parkachtige tuin, ontworpen door tuinarchitect Francis van der Staal, is volledig omzoomd en biedt maximale privacy. Dankzij de automatische beregening en eigen waterbron blijft het groen het hele jaar door weelderig. De sfeervolle verlichting, koperen lantaarns en doordachte zichtlijnen maken dit tot een heerlijke plek om in alle rust te genieten van het buitenleven.
====================================================================
Sustainable Living in a Unique Baarn Location – Energy Label A++
This characterful 1970s home combines space, comfort, and elegance with an exceptional A++ energy rating. Thanks to recent sustainability upgrades, the property is now completely gas-free and future-proof — a true rarity for a house from this era.
Luxury and Comfort in a Green Oasis
Designed with a focus on space, light, and convenience, this home perfectly balances luxury and functionality. For the current owners, it has been the ideal family home — a place where children could safely play in the lush, park-like garden and enjoy the heated indoor pool with friends. Following recent eco-friendly investments, including a heat pump for the pool, this unique feature is now both energy-efficient and wonderfully comfortable.
Versatile Outbuilding with Endless Possibilities
A valuable addition to the property is the spacious outbuilding built in 1991. Currently serving as an office, it includes a wine cellar and an integrated garage. Ideal for working from home, welcoming guests, or providing private care accommodation. Its flexible layout and facilities make it suitable for a wide range of uses.
What Makes This Home Special?
- Energy label A++ – achieved through extensive sustainability measures, including a heat pump, solar panels, and solar water heater; fully gas-free.
- Indoor pool – a heated, energy-efficient pool for year-round relaxation and fun.
- Space and flexibility – with approx. 289 m² of living space and an 87 m² outbuilding, there is plenty of room for living, working, and leisure.
- Timeless architecture – the solid 1970s design provides an excellent foundation for modernisation to your personal taste.
- Prime Baarn location – set on nearly 2,000 m² of landscaped grounds with a private water source, privacy, and tranquillity, within walking distance of Baarn’s lively centre and train station.
Layout of the House (1977)
Basement – wellness area with indoor pool, sauna and fitness room, study with private entrance, technical room, and ample storage.
Ground floor – spacious living room with open kitchen and access to two sunny terraces, large bedroom with bathroom, cloakroom, and laundry room.
First floor – three bright bedrooms, bathroom with shower, landing, and separate toilet.
Outbuilding (1991)
Basement – garage for three cars with electric door, climate-controlled wine cellar, and storage space.
Ground floor – hall, bathroom, and large living/office area with French doors.
Upper floor – spacious multifunctional room with kitchen and additional storage.
The Garden
The park-like garden, designed by landscape architect Francis van der Staal, is fully enclosed and offers complete privacy. With an automatic irrigation system and private water source, it remains lush and green throughout the year. Subtle lighting, copper lanterns, and thoughtful sightlines create an enchanting atmosphere — a perfect setting to enjoy peace, nature, and outdoor living.
Dit karaktervolle huis uit de jaren ’70 combineert ruimte, comfort en luxe met een uitzonderlijk energielabel A++. Dankzij de recente verduurzaming is de woning volledig gasloos en klaar voor de toekomst — een zeldzaamheid voor een huis uit deze bouwperiode.
Luxe en comfort in een groene oase
Het huis is ontworpen met oog voor ruimte, licht en leefcomfort. De huidige eigenaren vonden hier het ideale familiehuis, waar kinderen konden opgroeien in de beschutte, parkachtige tuin en genoten van het verwarmde binnenzwembad met vriendjes. Door de recente verduurzamingsinvesteringen — waaronder een warmtepomp voor het zwembad — is dit bijzondere element nu niet alleen comfortabel, maar ook energiezuinig.
Veelzijdig bijgebouw met eindeloze mogelijkheden
Een waardevolle toevoeging aan het perceel is het royale bijgebouw uit 1991. Deze multifunctionele ruimte is momenteel ingericht als kantoor, compleet met eigen wijnkelder en inpandige garage. Ideaal voor wie thuis wil werken, gasten wil ontvangen of mantelzorg wil verlenen. De indeling en voorzieningen maken het geschikt voor uiteenlopende woon- en werkvormen.
Wat maakt dit huis zo bijzonder?
- Energielabel A++ – dankzij ingrijpende verduurzaming met o.a. warmtepomp, zonnepanelen en zonneboiler is de woning volledig gasloos.
- Binnenzwembad – het verwarmde, energiezuinige zwembad biedt het hele jaar door ontspanning en plezier.
- Ruimte en flexibiliteit – met een woonoppervlakte van ca. 289 m² en een bijgebouw van 87 m² is er volop ruimte voor wonen, werken en recreëren.
- Tijdloze architectuur – de robuuste jaren ’70 bouwstijl vormt een solide basis voor modernisering naar eigen smaak.
- Toplocatie in Baarn – op een perceel van bijna 2.000 m² met een prachtige, onder architectuur aangelegde tuin met eigen waterbron, veel privacy en rust, op loopafstand van het centrum en het station.
Indeling van het huis (1977)
Souterrain – wellness met binnenzwembad, sauna en fitnessruimte, werkkamer met eigen entree, technische ruimte en bergruimte.
Begane grond – royale woonkamer met open keuken en toegang tot twee zonnige terrassen, ruime slaapkamer met badkamer, garderobe en wasruimte.
Eerste verdieping – drie lichte slaapkamers, badkamer met douche, overloop en apart toilet.
Bijgebouw (1991)
Souterrain – inpandige garage voor drie auto’s met elektrische deur, geklimatiseerde wijnkelder en berging.
Begane grond – hal, badkamer en ruime woon-/werkkamer met openslaande deuren.
Verdieping – grote multifunctionele ruimte met keuken en extra bergruimte.
De tuin
De parkachtige tuin, ontworpen door tuinarchitect Francis van der Staal, is volledig omzoomd en biedt maximale privacy. Dankzij de automatische beregening en eigen waterbron blijft het groen het hele jaar door weelderig. De sfeervolle verlichting, koperen lantaarns en doordachte zichtlijnen maken dit tot een heerlijke plek om in alle rust te genieten van het buitenleven.
====================================================================
Sustainable Living in a Unique Baarn Location – Energy Label A++
This characterful 1970s home combines space, comfort, and elegance with an exceptional A++ energy rating. Thanks to recent sustainability upgrades, the property is now completely gas-free and future-proof — a true rarity for a house from this era.
Luxury and Comfort in a Green Oasis
Designed with a focus on space, light, and convenience, this home perfectly balances luxury and functionality. For the current owners, it has been the ideal family home — a place where children could safely play in the lush, park-like garden and enjoy the heated indoor pool with friends. Following recent eco-friendly investments, including a heat pump for the pool, this unique feature is now both energy-efficient and wonderfully comfortable.
Versatile Outbuilding with Endless Possibilities
A valuable addition to the property is the spacious outbuilding built in 1991. Currently serving as an office, it includes a wine cellar and an integrated garage. Ideal for working from home, welcoming guests, or providing private care accommodation. Its flexible layout and facilities make it suitable for a wide range of uses.
What Makes This Home Special?
- Energy label A++ – achieved through extensive sustainability measures, including a heat pump, solar panels, and solar water heater; fully gas-free.
- Indoor pool – a heated, energy-efficient pool for year-round relaxation and fun.
- Space and flexibility – with approx. 289 m² of living space and an 87 m² outbuilding, there is plenty of room for living, working, and leisure.
- Timeless architecture – the solid 1970s design provides an excellent foundation for modernisation to your personal taste.
- Prime Baarn location – set on nearly 2,000 m² of landscaped grounds with a private water source, privacy, and tranquillity, within walking distance of Baarn’s lively centre and train station.
Layout of the House (1977)
Basement – wellness area with indoor pool, sauna and fitness room, study with private entrance, technical room, and ample storage.
Ground floor – spacious living room with open kitchen and access to two sunny terraces, large bedroom with bathroom, cloakroom, and laundry room.
First floor – three bright bedrooms, bathroom with shower, landing, and separate toilet.
Outbuilding (1991)
Basement – garage for three cars with electric door, climate-controlled wine cellar, and storage space.
Ground floor – hall, bathroom, and large living/office area with French doors.
Upper floor – spacious multifunctional room with kitchen and additional storage.
The Garden
The park-like garden, designed by landscape architect Francis van der Staal, is fully enclosed and offers complete privacy. With an automatic irrigation system and private water source, it remains lush and green throughout the year. Subtle lighting, copper lanterns, and thoughtful sightlines create an enchanting atmosphere — a perfect setting to enjoy peace, nature, and outdoor living.
| Vastgoed ID | NY100409 |
|---|---|
| Vraagprijs | € 1.999.999 k.k. |
| Woningtype | Villa |
| Woonopp. | 376 m² |
| Perceelopp. | 1.913 m² |
| Bouwjaar | 1977 |
| Renovatiejaar | - |
| Slaapkamers | 4 |
| Badkamers | 3 |
| Garages | 1 |
| Energielabel | A++ |
Netherlands Sotheby's International Realty Emmalaan 23, 1075 AT Amsterdam
- Telefoon:+31.88.37.47.000
- Email:info@sothebysrealty.nl
- Website:www.sothebysrealty.nl
- Maandag - VrijdagOpen van 09.00 - 17.00
- Zaterdag - ZondagGesloten






























































