Villa te koop in HUIZEN met referentie 19710829391
Haardstedelaan 19a, 1271 NK HUIZEN—Ref. HN103300
Op zoek naar een woning die niet alleen een huis is, maar een plek waar herinneringen worden gemaakt.
Deze charmante uitgebouwde jaren ’30 hoekwoning met atelier op een perceel van bijna 500m2, combineert het beste van twee werelden: authentieke details én modern wooncomfort.
Vanaf het moment dat je binnenstapt, proef je de sfeer. De originele glas-in-loodramen vangen het licht op een betoverende manier, terwijl de klassieke paneeldeuren het huis zo karakteristiek maken.
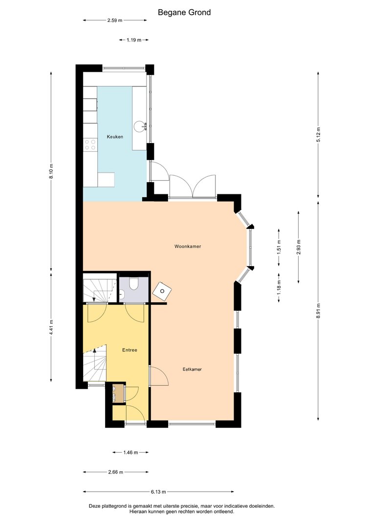
De royale woonkamer met vloerverwarming en een knisperende houtkachel nodigt uit tot lange avonden samen, en via de openslaande deuren wandel je zó de zonnige en diepe achtertuin in – jouw eigen groene oase vol fruitbomen en veel privacy.
De uitgebouwde woonkeuken vormt het hart van het huis. Met een granieten aanrecht, alle moderne inbouwapparatuur én ruimte voor wasmachine en droger zijn aanwezig.
Eerste verdieping:
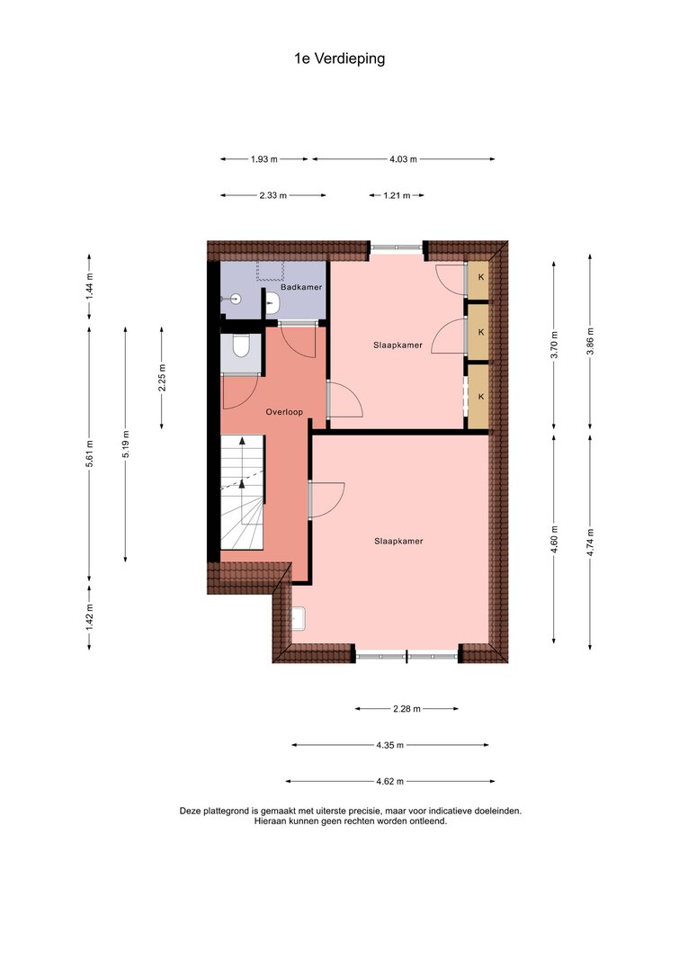
Boven vind je een slaapkamer met vaste kast, een badkamer met inloopdouche en een royale ouderslaapkamer met wastafel.
De tweede verdieping biedt nog een sfeervolle zolderkamer met dakkapel – ideaal als extra slaapkamer, werkruimte of hobbykamer.
En alsof dat nog niet genoeg is, ligt er in de achtertuin een prachtig, geïsoleerd atelier (26m2) met openslaande deuren, pantry en eigen toiletvoorziening.
Perfect voor creatievelingen, thuiswerkers of gasten die je in alle comfort wilt ontvangen.
Pluspunten die het verschil maken:
- Originele jaren ’30 details in goede harmonie met modern comfort
- Begane grond volledig voorzien van vloerverwarming
- Strak gestuukte wanden en plafonds
- 9 zonnepanelen (420 Wp)
- HR++ glas
- Atelier met toilet van ca 26m2
- Garage en eigen oprit
Een tuin die voelt als vakantie, midden in je eigen huis.
Voor meer informatie contact de makelaar Jan-Willem Baas of beter nog uw eigen NVM aankoopmakelaar.
Deze charmante uitgebouwde jaren ’30 hoekwoning met atelier op een perceel van bijna 500m2, combineert het beste van twee werelden: authentieke details én modern wooncomfort.
Vanaf het moment dat je binnenstapt, proef je de sfeer. De originele glas-in-loodramen vangen het licht op een betoverende manier, terwijl de klassieke paneeldeuren het huis zo karakteristiek maken.
De royale woonkamer met vloerverwarming en een knisperende houtkachel nodigt uit tot lange avonden samen, en via de openslaande deuren wandel je zó de zonnige en diepe achtertuin in – jouw eigen groene oase vol fruitbomen en veel privacy.
De uitgebouwde woonkeuken vormt het hart van het huis. Met een granieten aanrecht, alle moderne inbouwapparatuur én ruimte voor wasmachine en droger zijn aanwezig.
Eerste verdieping:
Boven vind je een slaapkamer met vaste kast, een badkamer met inloopdouche en een royale ouderslaapkamer met wastafel.
De tweede verdieping biedt nog een sfeervolle zolderkamer met dakkapel – ideaal als extra slaapkamer, werkruimte of hobbykamer.
En alsof dat nog niet genoeg is, ligt er in de achtertuin een prachtig, geïsoleerd atelier (26m2) met openslaande deuren, pantry en eigen toiletvoorziening.
Perfect voor creatievelingen, thuiswerkers of gasten die je in alle comfort wilt ontvangen.
Pluspunten die het verschil maken:
- Originele jaren ’30 details in goede harmonie met modern comfort
- Begane grond volledig voorzien van vloerverwarming
- Strak gestuukte wanden en plafonds
- 9 zonnepanelen (420 Wp)
- HR++ glas
- Atelier met toilet van ca 26m2
- Garage en eigen oprit
Een tuin die voelt als vakantie, midden in je eigen huis.
Voor meer informatie contact de makelaar Jan-Willem Baas of beter nog uw eigen NVM aankoopmakelaar.
| Vastgoed ID | HN103300 |
|---|---|
| Vraagprijs | € 765.000 k.k. |
| Woningtype | Villa |
| Woonopp. | 131 m² |
| Perceelopp. | 494 m² |
| Bouwjaar | 1930 |
| Renovatiejaar | - |
| Slaapkamers | 3 |
| Badkamers | 1 |
| Garages | 1 |
| Energielabel | C |
Voorma en Walch Huizen Ceintuurbaan 22, 1271 BJ Huizen
- Telefoon:+31.35.525.31.35
- Email:huizen@voorma-walch.nl
- Website:www.voorma-walch.nl
- Maandag - VrijdagOpen van 08.30 - 17.30
- Zaterdag - ZondagGesloten




























































