Villa te koop in NAARDEN met referentie 19909719574
Meentweg 2, 1411 GS NAARDEN—Ref. LN101818
Een absolute buitenkans voor wie wil wonen in het mooiste stukje van het Gooi – "The Garden of Amsterdam"
Net buiten het vestingstadje Naarden ligt het idyllische buurtschap "Valkeveen", een verzameling van landgoederen, villa’s en boerderijen in een van de groenste gebieden van Nederland. In deze prachtige omgeving staat landhuis ‘Heerlijkheid’ al meer dan een eeuw trots op zijn plek: een charmante, karaktervolle villa waar sfeer, comfort en stijl perfect samenkomen.
De charme van toen met het comfort van nu, dat is precies wat dit landhuis uniek maakt. Het is een huis dat ‘welkom’ zegt, ‘doe je jas uit, ga zitten, fijn dat je er bent’. Een huis voor gezinnen, voor muziek, voor lange diners met vrienden, op het terras of rond de grote eettafel. Een plek waar het leven geleefd mag worden.
En een heerlijkheid is het voor het oog, maar vooral ook voor het hart. Alleen de aanblik al: stralend wit pleisterwerk, off-black louvre-luiken en een elegante nieuwe rieten kap. Onder de brede bakgoten sieren klassieke gootklossen het geheel en de topgevels zijn voorzien van romantisch gesneden windveren. Dit is een huis voor zwoele zomeravonden buiten en knusse winterdagen bij het haardvuur. Stel u voor: een dun laagje sneeuw op het dak, de kerstboom aan de ene kant, een warm dekentje aan de andere.
Dit huis is voor mensen die houden van mooi en stijlvol wonen, maar geen museum zoeken. Voor wie ruimte belangrijk is, zonder afstandelijkheid. De praktische gietvloer met vloerverwarming en brede houten vloerdelen geven het huis niet alleen warmte, maar ook een robuust en leefbaar karakter.
Het landhuis is zorgvuldig gemoderniseerd met respect voor de originele stijl. Technisch is alles up-to-date, van airco tot vloerverwarming en van snel internet tot een geavanceerd alarmsysteem. Slimme aanpassingen zoals het weghalen van deuren en het verbreden van doorgangen zorgen voor een open, lichte woonbeleving. De wissel van keuken en eetkamer bleek een gouden zet: de keuken is nu werkelijk het kloppend hart van het huis.
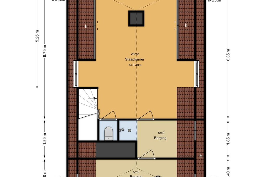
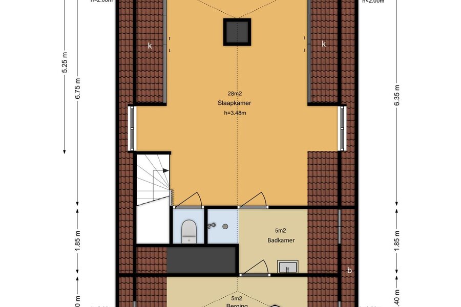
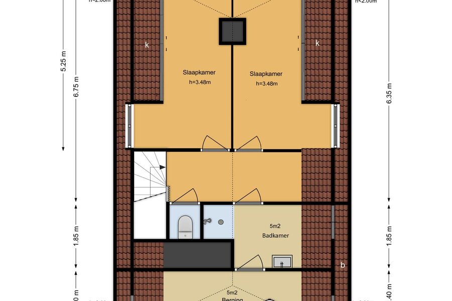
Op de eerste verdieping bevindt zich een royale master suite met walk-in closet en luxe badkamer, evenals een tweede slaapkamer met eigen badkamer. De tweede verdieping biedt volop ruimte voor extra slaapkamers, werkkamers of hobbyruimte en beschikt over een vierde badkamer. Met een woonoppervlakte van 325 m² heeft u aan ruimte geen gebrek.
En dan is er nog het voormalige koetshuis een rietgedekt bijgebouw dat momenteel dienstdoet als inspirerende werk- of atelierruimte. Ideaal voor wie thuis wil schrijven, creëren of gewoon ongestoord wil werken.
De tuin van ruim circa 6.000 m² is met liefde en vakmanschap aangelegd en biedt verschillende terrassen, borders, gazons en – uniek – een eigen aanlegsteiger aan de achterzijde, waar u zo het water op kunt. Rust, privacy en natuur zijn hier vanzelfsprekend, terwijl Amsterdam en Utrecht op korte afstand liggen.
Voor meer informatie en een rondleiding van dit bijzondere landhuis met uitmuntende hippische faciliteiten, kunt u contact opnemen met Jacques E. Walch NVM Register Makelaar, lid Fiabci. Nog beter is om uw eigen NVM aankoopmakelaar mee te nemen.
Net buiten het vestingstadje Naarden ligt het idyllische buurtschap "Valkeveen", een verzameling van landgoederen, villa’s en boerderijen in een van de groenste gebieden van Nederland. In deze prachtige omgeving staat landhuis ‘Heerlijkheid’ al meer dan een eeuw trots op zijn plek: een charmante, karaktervolle villa waar sfeer, comfort en stijl perfect samenkomen.
De charme van toen met het comfort van nu, dat is precies wat dit landhuis uniek maakt. Het is een huis dat ‘welkom’ zegt, ‘doe je jas uit, ga zitten, fijn dat je er bent’. Een huis voor gezinnen, voor muziek, voor lange diners met vrienden, op het terras of rond de grote eettafel. Een plek waar het leven geleefd mag worden.
En een heerlijkheid is het voor het oog, maar vooral ook voor het hart. Alleen de aanblik al: stralend wit pleisterwerk, off-black louvre-luiken en een elegante nieuwe rieten kap. Onder de brede bakgoten sieren klassieke gootklossen het geheel en de topgevels zijn voorzien van romantisch gesneden windveren. Dit is een huis voor zwoele zomeravonden buiten en knusse winterdagen bij het haardvuur. Stel u voor: een dun laagje sneeuw op het dak, de kerstboom aan de ene kant, een warm dekentje aan de andere.
Dit huis is voor mensen die houden van mooi en stijlvol wonen, maar geen museum zoeken. Voor wie ruimte belangrijk is, zonder afstandelijkheid. De praktische gietvloer met vloerverwarming en brede houten vloerdelen geven het huis niet alleen warmte, maar ook een robuust en leefbaar karakter.
Het landhuis is zorgvuldig gemoderniseerd met respect voor de originele stijl. Technisch is alles up-to-date, van airco tot vloerverwarming en van snel internet tot een geavanceerd alarmsysteem. Slimme aanpassingen zoals het weghalen van deuren en het verbreden van doorgangen zorgen voor een open, lichte woonbeleving. De wissel van keuken en eetkamer bleek een gouden zet: de keuken is nu werkelijk het kloppend hart van het huis.
Op de eerste verdieping bevindt zich een royale master suite met walk-in closet en luxe badkamer, evenals een tweede slaapkamer met eigen badkamer. De tweede verdieping biedt volop ruimte voor extra slaapkamers, werkkamers of hobbyruimte en beschikt over een vierde badkamer. Met een woonoppervlakte van 325 m² heeft u aan ruimte geen gebrek.
En dan is er nog het voormalige koetshuis een rietgedekt bijgebouw dat momenteel dienstdoet als inspirerende werk- of atelierruimte. Ideaal voor wie thuis wil schrijven, creëren of gewoon ongestoord wil werken.
De tuin van ruim circa 6.000 m² is met liefde en vakmanschap aangelegd en biedt verschillende terrassen, borders, gazons en – uniek – een eigen aanlegsteiger aan de achterzijde, waar u zo het water op kunt. Rust, privacy en natuur zijn hier vanzelfsprekend, terwijl Amsterdam en Utrecht op korte afstand liggen.
Voor meer informatie en een rondleiding van dit bijzondere landhuis met uitmuntende hippische faciliteiten, kunt u contact opnemen met Jacques E. Walch NVM Register Makelaar, lid Fiabci. Nog beter is om uw eigen NVM aankoopmakelaar mee te nemen.
| Vastgoed ID | LN101818 |
|---|---|
| Vraagprijs | Op aanvraag k.k. |
| Woningtype | Villa |
| Woonopp. | 325 m² |
| Perceelopp. | 6.335 m² |
| Bouwjaar | 1905 |
| Renovatiejaar | - |
| Slaapkamers | 4 |
| Badkamers | 4 |
| Garages | 1 |
| Energielabel | D |
Voorma en Walch Laren Brink 34, 1251 KW Laren
- Telefoon:+31.35.539.90.80
- Email:laren@voorma-walch.nl
- Website:voorma-walch.nl
- Maandag - VrijdagOpen van 08.30 - 17.30
- Zaterdag Open van 10.00 - 16.00
- Zondag Gesloten
Makelaar















































