Villa te koop in EEMNES met referentie 19410723141
Hasselaarlaan 12, 3755 AW EEMNES—Ref. LN102193
Ruime helft van dubbele villa met garage en zonnige tuin op het zuiden.
Op een rustige en kindvriendelijke locatie, aan een hofje met enkel bestemmingsverkeer, ligt deze goed onderhouden helft van dubbele villa met garage, eigen oprit, fraai aangelegde voortuin en een besloten zonnige achtertuin op het zuiden die volop privacy biedt.
Indeling
Begane grond:
Overdekte entree, hal met vernieuwde meterkast, garderobe en toilet. De royale woon-/eetkamer beschikt over een sfeervolle open haard, grote raampartijen en dubbele openslaande deuren naar de achtertuin en een fraaie houten parketvloer. De moderne open woonkeuken met eiland is voorzien van diverse inbouwapparatuur en biedt eveneens toegang tot de tuin.
De gehele begane grond is recent volledig gemoderniseerd en heeft een lichte, eigentijdse uitstraling.
Eerste verdieping:
Overloop met toegang tot drie slaapkamers. De ruime ouderslaapkamer beschikt over een vaste kastenwand. De tweede slaapkamer heeft eveneens een vaste kast en een deur naar het overdekte balkon. De derde kamer is ideaal als kinder- of werkkamer. De moderne badkamer is uitgerust met een inloopdouche, dubbele wastafel met meubel en handdoekenradiator. Het toilet is separaat op de overloop.
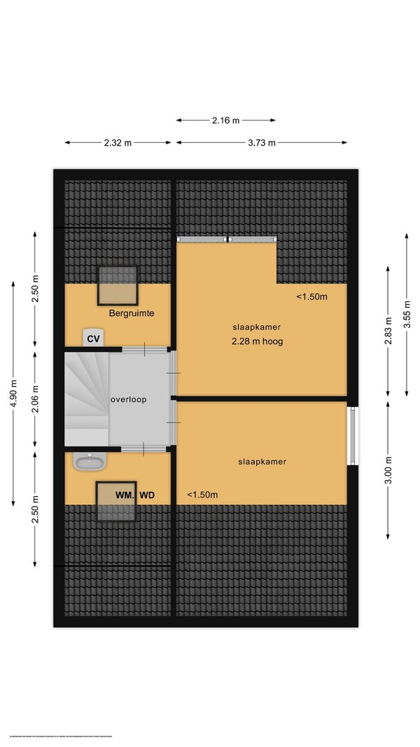
Tweede verdieping:
Via een vaste trap bereikt u de tweede verdieping met overloop, bergkast met c.v.-opstelling, een vierde ruime slaapkamer met dakkapel, een vijfde slaapkamer en een aparte waskamer met aansluiting voor wasmachine, droger en wastafel.
Bijzondere kenmerken:
• Heerlijk lichte en recent gemoderniseerde begane grond met open woonkeuken
• Stijlvol vernieuwde badkamer en separaat toilet
• Ruime gezinswoning met maar liefst vijf slaapkamers
• Energiezuinig wonen dankzij 6 zonnepanelen, spouwmuurisolatie, dubbele beglazing HR++, dakisolatie en een c.v.-ketel uit 2021
• Zonnige, besloten achtertuin op het zuiden met volop privacy
• Garage met elektrische overheaddeur
• Eigen oprit met parkeergelegenheid voor meerdere auto's
Ligging & Bereikbaarheid
Eemnes ligt centraal in Nederland, aan de rand van het Gooi – een ideale locatie voor wie dorps wil wonen met stadse bereikbaarheid. De woning bevindt zich in een rustige, kindvriendelijke wijk met enkel bestemmingsverkeer. Kinderen kunnen lopend naar school en spelen in de diverse nabijgelegen speeltuintjes.
In de directe omgeving vindt u winkels, horeca, sportclubs, natuurgebieden en uitvalswegen (A1 en A27). Ook de dorpen Laren, Blaricum, Huizen, Baarn en Hilversum liggen op korte afstand en bieden een ruim aanbod aan voorzieningen. Natuurliefhebbers kunnen genieten van wandel- en fietsroutes langs de Eemnesser Vaart, door de polder of richting het Goois Natuurreservaat.
De woning is uitstekend bereikbaar met het openbaar vervoer: de snelle HOV-bus brengt u rechtstreeks naar treinstation Hilversum, Amsterdam-Amstel en Utrecht Science Park.
Voor een rondleiding door deze gezinsvilla kunt u contact opnemen met Laura Smit, NVM Makelaar van ons makelaarskantoor Laren. Nog beter is om uw eigen NVM makelaar mee te nemen.
Op een rustige en kindvriendelijke locatie, aan een hofje met enkel bestemmingsverkeer, ligt deze goed onderhouden helft van dubbele villa met garage, eigen oprit, fraai aangelegde voortuin en een besloten zonnige achtertuin op het zuiden die volop privacy biedt.
Indeling
Begane grond:
Overdekte entree, hal met vernieuwde meterkast, garderobe en toilet. De royale woon-/eetkamer beschikt over een sfeervolle open haard, grote raampartijen en dubbele openslaande deuren naar de achtertuin en een fraaie houten parketvloer. De moderne open woonkeuken met eiland is voorzien van diverse inbouwapparatuur en biedt eveneens toegang tot de tuin.
De gehele begane grond is recent volledig gemoderniseerd en heeft een lichte, eigentijdse uitstraling.
Eerste verdieping:
Overloop met toegang tot drie slaapkamers. De ruime ouderslaapkamer beschikt over een vaste kastenwand. De tweede slaapkamer heeft eveneens een vaste kast en een deur naar het overdekte balkon. De derde kamer is ideaal als kinder- of werkkamer. De moderne badkamer is uitgerust met een inloopdouche, dubbele wastafel met meubel en handdoekenradiator. Het toilet is separaat op de overloop.
Tweede verdieping:
Via een vaste trap bereikt u de tweede verdieping met overloop, bergkast met c.v.-opstelling, een vierde ruime slaapkamer met dakkapel, een vijfde slaapkamer en een aparte waskamer met aansluiting voor wasmachine, droger en wastafel.
Bijzondere kenmerken:
• Heerlijk lichte en recent gemoderniseerde begane grond met open woonkeuken
• Stijlvol vernieuwde badkamer en separaat toilet
• Ruime gezinswoning met maar liefst vijf slaapkamers
• Energiezuinig wonen dankzij 6 zonnepanelen, spouwmuurisolatie, dubbele beglazing HR++, dakisolatie en een c.v.-ketel uit 2021
• Zonnige, besloten achtertuin op het zuiden met volop privacy
• Garage met elektrische overheaddeur
• Eigen oprit met parkeergelegenheid voor meerdere auto's
Ligging & Bereikbaarheid
Eemnes ligt centraal in Nederland, aan de rand van het Gooi – een ideale locatie voor wie dorps wil wonen met stadse bereikbaarheid. De woning bevindt zich in een rustige, kindvriendelijke wijk met enkel bestemmingsverkeer. Kinderen kunnen lopend naar school en spelen in de diverse nabijgelegen speeltuintjes.
In de directe omgeving vindt u winkels, horeca, sportclubs, natuurgebieden en uitvalswegen (A1 en A27). Ook de dorpen Laren, Blaricum, Huizen, Baarn en Hilversum liggen op korte afstand en bieden een ruim aanbod aan voorzieningen. Natuurliefhebbers kunnen genieten van wandel- en fietsroutes langs de Eemnesser Vaart, door de polder of richting het Goois Natuurreservaat.
De woning is uitstekend bereikbaar met het openbaar vervoer: de snelle HOV-bus brengt u rechtstreeks naar treinstation Hilversum, Amsterdam-Amstel en Utrecht Science Park.
Voor een rondleiding door deze gezinsvilla kunt u contact opnemen met Laura Smit, NVM Makelaar van ons makelaarskantoor Laren. Nog beter is om uw eigen NVM makelaar mee te nemen.
| Vastgoed ID | LN102193 |
|---|---|
| Vraagprijs | € 775.000 k.k. |
| Woningtype | Villa |
| Woonopp. | 144 m² |
| Perceelopp. | 276 m² |
| Bouwjaar | 1973 |
| Renovatiejaar | - |
| Slaapkamers | 5 |
| Badkamers | 1 |
| Garages | 1 |
| Energielabel | B |
Voorma en Walch Laren Brink 34, 1251 KW Laren
- Telefoon:+31.35.539.90.80
- Email:laren@voorma-walch.nl
- Website:voorma-walch.nl
- Maandag - VrijdagOpen van 08.30 - 17.30
- Zaterdag Open van 10.00 - 16.00
- Zondag Gesloten













































